このページは物件の広告情報ではありません。
過去にLIFULL HOME'Sへ掲載された不動産情報と提携先の地図情報を元に生成した参考情報です。また、一般から投稿された情報など主観的な情報も含みます。
情報更新日: 2025/11/21
パレスト・リッツガーデン百道
| 所在地 | 福岡県福岡市早良区西新7丁目801-39(地番)、福岡県福岡市早良区西新7丁目8-11(住所表示) |
|---|---|
| 交通 |
|
スポンサーリンク
パレスト・リッツガーデン百道の建物情報
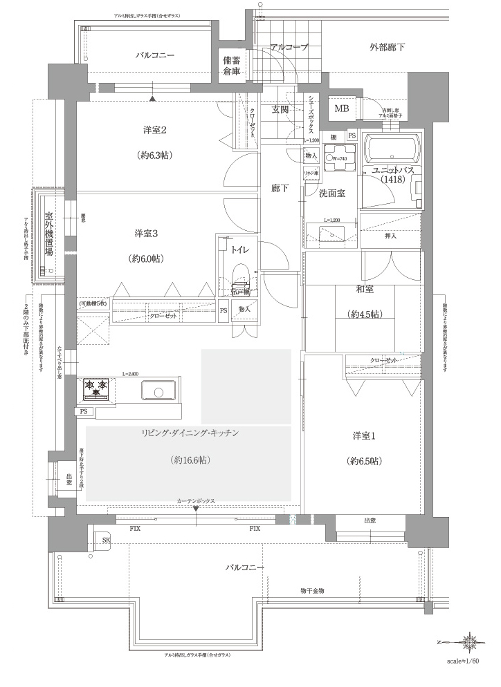
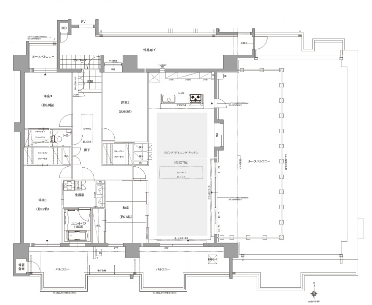
物件概要
| 物件種別 | マンション |
|---|---|
| 築年月(築年数) | 2017年5月 (築9年) |
| 建物構造 | 鉄筋コンクリート造, 地上10階 |
| 総戸数/総区画数 | 91戸 |
| 敷地全体面積 | 5,241.31m2 |
| 用途地域 | 第一種中高層住居専用 |
| 地目 | 宅地 |
| 土地権利 | 所有権 |
| 建築確認番号 | 第 ERI15043961 号(平成27年11月19日) |
| 施工会社 | 株式会社川口建設 |
| 売主 | 株式会社ダックス |
| 販売会社 | 株式会社ダックス(売主) |
設備・条件
- 太陽光発電
- 追い焚き
- 浴室乾燥機
- システムキッチン
- 食器洗い乾燥機
- ディスポーザー
- 高効率給湯器
- 浄水器・活水器
- 床暖房
- トランクルーム
- 4LDK以上
- オートロック
- エレベーター
- 駐車場完備
- 宅配ボックス
- コンシェルジュサービス
- 100m2以上
- 即入居可
- 環境にやさしい
- 小学校800m以内
※最新の状態と異なる場合があります
売りたい不動産をお持ちの方へ
このエリアの所有不動産を査定する
売却査定手続きの流れ、費用相場や注意点など不動産売却について詳しく知りたい方はLIFULL HOME'S 不動産査定へ
パレスト・リッツガーデン百道の周辺施設
-
買い物
日用品 -
- 生活彩家 チョコットももち店
- ファミリーマート 福岡西南学院前店
- コクミンドラッグボンラパス百道店
- ボンラパス百道店
- 買い物
大型店 -
- SUIT SELECT FUKUOKA NISHIJIN
- プラリバ
- 無印良品 PRALIVA店
- グルメ
-
- リンガーハット 福岡百道店
- 31アイスクリーム 福岡高取店
- フレッシュネスバーガー 西新店
- 大阪王将西新店
- 娯楽施設
-
- 百道中央公園球技場
- 百道中央公園
- 福岡市ももち体育館
- FiT24西新店
- 文化施設
-
- 福岡市博物館
- 西南学院大学博物館
- 役所
公共施設 -
- 福岡市総合図書館
- 早良警察署
- 早良郵便局
- 福岡市早良区役所
- 医療
-
- 医療法人社団高邦会福岡山王病院
- 吉村病院
- 医療法人社団福光会福田眼科病院
- 福岡大学西新病院
- 保育施設
-
- 西南幼稚園
- ふたば保育園
- ここ葉保育園
- 第二高取保育園
- 学校
-
- 福岡市立西新小学校
- 私立西南学院大学
- 福岡県立修猷館高校
- 福岡市立百道小学校
パレスト・リッツガーデン百道周辺の物件情報
周辺の問合せ可能な物件
福岡県福岡市早良区の問合せ可能な物件のうち、この物件の周辺にあるものから表示しています
賃貸
-
募集中
- サンハイツ西新
- 4.3万円
- 福岡市地下鉄空港線 西新駅 徒歩11分
- 福岡県福岡市早良区西新7丁目
- 19.44m² / 1DK
-
募集中
- シャインハイツ西新
- 3.5万円
- 福岡市地下鉄空港線 藤崎駅 徒歩12分
- 福岡県福岡市早良区西新7丁目5-25
- 20.0m² / 1K
-
募集中
- リリーフ西新
- 5万円
- 福岡市地下鉄空港線 藤崎駅 徒歩8分
- 福岡県福岡市早良区西新7丁目6番16号
- 22.4m² / 1K
-
募集中
- ル・サンク西新六丁目
- 17万円
- 福岡市地下鉄空港線 西新駅 徒歩11分
- 福岡県福岡市早良区西新6丁目
- 75.93m² / 3LDK
-
募集中
- アドバンテージ百道
- 14.5万円
- 福岡市地下鉄空港線 藤崎駅 徒歩6分
- 福岡県福岡市早良区百道1丁目16-6
- 80.18m² / 3LDK
-
募集中
- 百道パーク・ホームズ
- 18.8万円
- 福岡市地下鉄空港線 藤崎駅 徒歩8分
- 福岡県福岡市早良区百道1丁目
- 95.03m² / 3LDK
-
募集中
- ホワイトプラザ百道
- 2.7万円
- 福岡市地下鉄空港線 藤崎駅 徒歩6分
- 福岡県福岡市早良区百道1丁目2-22
- 17.28m² / 1K
-
募集中
- 福岡市地下鉄空港線 藤崎駅 徒歩7分
- 5.8万円
- 福岡市地下鉄空港線 藤崎駅 徒歩7分
- 福岡県福岡市早良区百道1丁目12-10
- 32.6m² / 1LDK
-
募集中
- エルモス百道
- 5.8万円
- 福岡市地下鉄空港線 藤崎駅 徒歩7分
- 福岡県福岡市早良区百道1丁目
- 32.6m² / ワンルーム
-
募集中
- リブリ・百道
- 6.3万円
- 福岡市地下鉄空港線 藤崎駅 徒歩7分
- 福岡県福岡市早良区百道1丁目19-1
- 28.56m² / 1K
新築マンション
※完成後1年以上経過した未入居の物件が含まれている場合があります
-
売出し中
- 福岡市地下鉄空港線「室見」駅 徒歩4分
- 未定
- 福岡市地下鉄空港線「室見」駅 徒歩4分
- 福岡県福岡市早良区室見一丁目13番15(地番)
- 83.8m² / 2LDK ・ 3LDK
-
売出し中
- 福岡市地下鉄七隈線「野芥」駅 徒歩10分
- 3,990万円(1戸)~6,130万円(1戸)
- 福岡市地下鉄七隈線「野芥」駅 徒歩10分
- 福岡県福岡市早良区干隈3丁目295-1
- 84.53m² / 2LDK、3LDK、4LDK
-
売出し中
- 福岡市地下鉄空港線「室見」駅 徒歩6分 (420m)
- 未定
- 福岡市地下鉄空港線「室見」駅 徒歩6分 (420m)
- 福岡県福岡市早良区南庄6丁目16-1
- 72.12m² / 2LDK、3LDK
-
売出し中
- 福岡市地下鉄空港線「西新」駅 徒歩7分
- 209,600,000円~294,800,000円
- 福岡市地下鉄空港線「西新」駅 徒歩7分
- 福岡県福岡市早良区西新二丁目166-1(地番)
- 122.0m² / 3LDK~4LDK
中古マンション
-
売出し中
- ビレッタ百道
- 2580万円
- 福岡市地下鉄空港線 藤崎駅 徒歩11分
- 福岡県福岡市早良区百道1丁目
- 60.5m² / 2LDK
-
売出し中
- 百道タワー
- 1億980万円
- 福岡市地下鉄空港線 西新駅 徒歩13分
- 福岡県福岡市早良区百道浜1丁目
- 108.68m² / 3LDK
-
売出し中
- ライオンズマンション西新
- 3380万円
- 福岡市地下鉄空港線 藤崎駅 徒歩4分
- 福岡県福岡市早良区西新7丁目
- 66.36m² / 2LDK
-
売出し中
- ロワールマンション高取
- 3280万円
- 福岡市地下鉄空港線 藤崎駅 徒歩3分
- 福岡県福岡市早良区高取1丁目
- 66.77m² / 3LDK
-
売出し中
- 藤崎センタービル 601
- 2699万円
- 福岡市地下鉄空港線 藤崎駅 徒歩1分
- 福岡県福岡市早良区高取2丁目18-6
- 64.5m² / 2LDK
-
売出し中
- グランドメゾン百道浜
- 5999万円
- 福岡市地下鉄空港線 西新駅 徒歩18分
- 福岡県福岡市早良区百道浜3丁目9-26
- 61.12m² / 2LDK
-
売出し中
- グランドメゾン百道浜オーシャン&フォレスト
- 7200万円
- バス 福岡タワー下車 徒歩1分
- 福岡県福岡市早良区百道浜3丁目
- 77.33m² / 3LDK
-
売出し中
- サンリヤン藤崎駅前
- 5980万円
- 福岡市地下鉄空港線 藤崎駅 徒歩1分
- 福岡県福岡市早良区藤崎1丁目
- 79.05m² / 3LDK
-
売出し中
- ファーネスト百道二丁目
- 6500万円
- 福岡市地下鉄空港線 藤崎駅 徒歩3分
- 福岡県福岡市早良区百道2丁目15-17
- 87.85m² / 4LDK
一戸建て
-
売出し中
- 福岡市地下鉄箱崎線「西新」駅 徒歩9分
- 5,880万円
- 福岡市地下鉄箱崎線「西新」駅 徒歩9分
- 福岡県福岡市早良区城西3丁目
- 81.0m² / 3LDK
-
売出し中
- 福岡市地下鉄空港線 藤崎駅 徒歩14分
- 1億2600万円
- 福岡市地下鉄空港線 藤崎駅 徒歩14分
- 福岡県福岡市早良区昭代2丁目
- 137.26m² / 6SDK
-
売出し中
- 福岡県福岡市早良区室見4丁目
- 9800万円
- 福岡市地下鉄空港線 室見駅 徒歩2分
- 福岡県福岡市早良区室見4丁目
- 115.97m² / 4LDK
-
売出し中
- 福岡県福岡市早良区城西2丁目
- 1億4000万円
- 福岡市地下鉄七隈線 別府駅 徒歩12分
- 福岡県福岡市早良区城西2丁目
- 153.66m² / 4LDK
-
売出し中
- 福岡市地下鉄空港線「藤崎」駅 徒歩14分
- 10,800万円
- 福岡市地下鉄空港線「藤崎」駅 徒歩14分
- 福岡県福岡市早良区弥生2丁目
- 113.47m² / 3SLDK
-
売出し中
- 原一丁目戸建
- 3000万円
- 福岡市地下鉄空港線 藤崎駅 徒歩14分
- 福岡県福岡市早良区原1丁目40
- 82.39m² / 2LDK
-
売出し中
- 福岡市地下鉄空港線「室見」駅 徒歩10分
- 5780万円
- 福岡市地下鉄空港線「室見」駅 徒歩10分
- 福岡県福岡市 早良区南庄2丁目23
- 97.69m² / 4LDK
-
売出し中
- 福岡市地下鉄七隈線「茶山」駅 徒歩22分
- 4,799万円
- 福岡市地下鉄七隈線「茶山」駅 徒歩22分
- 福岡県福岡市早良区飯倉2丁目25-7
- 102.94m² / 4LDK
-
売出し中
- 福岡市地下鉄空港線「室見」駅 徒歩20分
- 5300万円~5330万円
- 福岡市地下鉄空港線「室見」駅 徒歩20分
- 福岡県福岡市 早良区原4丁目18-12
- 115.47m² / 3SLDK~4LDK
-
売出し中
- 福岡市地下鉄七隈線「金山」駅 徒歩19分
- 4190万円・4490万円
- 福岡市地下鉄七隈線「金山」駅 徒歩19分
- 福岡県福岡市早良区飯倉2丁目
- 97.29m² / 3LDK
注文住宅
※表示価格は延べ床面積約132m²の場合の建物価格の参考値です
-
資料請求受付中
- 3200万円〜
- ダイワハウス
- 【ダイワハウス】 xevoΣ<ジーヴォシグマ> ~天井高2m72cmの高さというゆとり空間~
-
資料請求受付中
- 3000万円〜
- 株式会社スウェーデンハウス
- 【スウェーデンハウス】お客様満足度総合第1位の声「No.1 Sweden House News」
-
資料請求受付中
- 2000万円〜
- 一条工務店
- 【一条工務店】 建築実例集3冊セット(HOME’S限定)
-
資料請求受付中
- 2200万円〜
- 株式会社Lib Work 福岡店
- sketch総合カタログ
-
資料請求受付中
- 1868万円〜
- タマホーム株式会社
- 大安心の家シリーズ
-
資料請求受付中
- -
- へーベルハウス
- 【ヘーベルハウス】:ヘーベルハウス総合カタログ
-
資料請求受付中
- -
- 積水ハウス
- BRAND BOOK
-
資料請求受付中
- 3200万円〜
- 三井ホーム株式会社
- 三井ホームのご紹介
-
資料請求受付中
- 3000万円〜
- セキスイハイム
- 【セキスイハイム|平屋】ザ・デザイナーズハイムD1
-
資料請求受付中
- 3400万円〜
- ディー・アンド・エイチ株式会社
- 2,975万円~の家づくり|カタログ4冊セット|『ZEH基準の高性能住宅+福岡の土地情報に強いD&H』家づくりに関することをトータルでご提案。
エリア・駅で絞り込んで探す
福岡県のパレストが含まれるマンション
物件の種類から探す
福岡市早良区で募集中の物件のみを検索できます
掲載情報に誤りや問題がある場合
LIFULL HOME'Sは「不動産会社」ではなく「情報掲載サイト」です
- ※管理会社の情報はLIFULL HOME'Sでは保持していないためお答えできません。お問合せはお控えください
- ※最新の募集状況は掲載中の不動産会社があれば、不動産会社へ直接お問合せください
掲載情報の訂正依頼 専用ダイヤル
0120-987-243
- 専用ダイヤル受付時間:10:00〜18:00
- ※土日・祝日、臨時休業日は除く
不動産データのご利用について
不動産事業におけるDX、サービスの改善、新規事業開発等をご検討中の方へ不動産データの活用をご提案します。LIFULL HOME'Sで集約した不動産情報や外部データは、不動産事業DX、不正決済防止、ローン審査、事業開発、研究等さまざまな事業でご活用いただいています。詳しくは以下よりご確認ください。
不動産アーカイブご利用アンケートにご協力ください
不動産アーカイブの掲載情報は、LIFULL HOME'S掲載の不動産情報および提携先の不動産情報を統計情報として集積したものであり、その存在や信憑性を保証するものではありません。