このページは物件の広告情報ではありません。
過去にLIFULL HOME'Sへ掲載された不動産情報と提携先の地図情報を元に生成した参考情報です。また、一般から投稿された情報など主観的な情報も含みます。
情報更新日: 2026/04/02
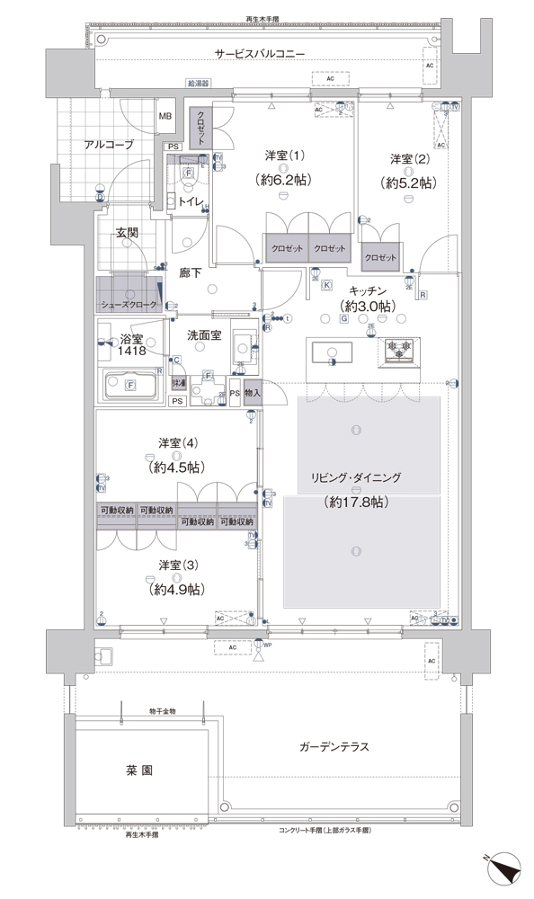
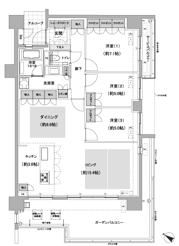
照葉テラス パークカーサ03
スポンサーリンク
照葉テラス パークカーサ03の建物情報
物件概要
| 物件種別 | マンション |
|---|---|
| 築年月(築年数) | 2018年2月 (築9年) |
| 建物構造 | 鉄筋コンクリート造・地上11階建て(パークカーサ03) 鉄骨造2階建て(パークカーサ駐車場棟) |
| 総戸数/総区画数 | 52戸 |
| 敷地全体面積 | 19,230.94m2 |
| 延べ床面積 | 999.76m2(パークカーサ03)、1,868.75m2(パークカーサ駐車場棟) |
| 用途地域 | 第二種中高層住居専用、第二種住居 |
| 土地権利 | 所有権 |
| 建築確認番号 | 第KJH15-04028-1号(平成28年3月31日付)、第KJH15-04028-2号(平成28年12月20日付) |
| 施工会社 | 株式会社淺沼組 |
| 売主 | ●積水ハウス株式会社福岡マンション事業部〒810-0001福岡市中央区天神1-15-6綾杉ビル8階 TEL092-716-0808・国土交通大臣(14)第540号・(一社)不動産協会会員・(公社)首都圏不動産公正取引協議会加盟 ●株式会社九宅協住宅開発〒812-0011福岡市博多区博多駅前2-11-16第2大西ビル TEL092-472-7410・福岡県知事(3)第15299号 ●福岡地所株式会社〒812-0018福岡市博多区住吉1-2-25キャナルシティビジネスセンタービル10F TEL092-272-2787・国土交通大臣(2)第008153号 |
| 販売会社 | 販売提携(代理)住友不動産販売株式会社九州販売センター〒810-0001福岡市中央区天神1丁目13番2号福岡興銀ビル7階 TEL092-739-4170・国土交通大臣免許(12)第2077号・(一社)不動産流通経営協会会員・(一社)不動産協会会員・(公社)首都圏不動産公正取引協議会加盟 |
設備・条件
- 追い焚き
- システムキッチン
- 4LDK以上
- オートロック
- 100m2以上
※最新の状態と異なる場合があります
売りたい不動産をお持ちの方へ
このエリアの所有不動産を査定する
売却査定手続きの流れ、費用相場や注意点など不動産売却について詳しく知りたい方はLIFULL HOME'S 不動産査定へ
照葉テラス パークカーサ03の周辺施設
-
買い物
日用品 -
- ファミリーマート 福岡香椎照葉四丁目店
- ローソン 福岡アイランドシティ店
- セブンイレブン 福岡市総合体育館店
- にしてつストアレガネットマルシェ香椎照葉
- 買い物
大型店 -
- アイランドアイ
- グルメ
-
- コメダ珈琲店福岡香椎浜店
- 娯楽施設
-
- アイランドシティ中央公園
- TERIHA SEKISUI HOUSE ARENA
- セントラルスポーツジムスタ24福岡アイランドシティ
- 香椎浜北公園
- 医療
-
- 地方独立行政法人福岡市立病院機構福岡市立こども病院
- 医療法人相生会福岡みらい病院
- 保育施設
-
- 第1アイランドシティコスモス保育園
- 第2アイランドシティコスモス保育園
- 香椎照葉幼稚園
- 照葉けいあい保育園
- 学校
-
- 福岡市立照葉中学校
- 福岡市立照葉小学校
- 福岡市立照葉北小学校
- 私立サイバー大学
※学区外の学校が含まれる場合があります。実際の学区は必ず各自治体へご確認ください。
照葉テラス パークカーサ03周辺の物件情報
周辺の問合せ可能な物件
福岡県福岡市東区の問合せ可能な物件のうち、この物件の周辺にあるものから表示しています
賃貸
-
募集中
- プライムメゾン セントラルパーク
- 12.6万円
- 西鉄バス「照葉小学校前」下車 徒歩2分
- 福岡県福岡市東区香椎照葉4丁目2-5
- 74.26m² / 2SLDK
-
募集中
- セントラルパーク香椎照葉弐番館
- 18.5万円
- 西鉄貝塚線 香椎花園前駅 徒歩28分
- 福岡県福岡市東区香椎照葉4丁目2-2
- 95.31m² / 4LDK
-
募集中
- JR鹿児島本線 香椎駅 徒歩33分
- 17.5万円
- JR鹿児島本線 香椎駅 徒歩33分
- 福岡県福岡市東区香椎照葉4丁目
- 83.75m² / 3LDK
-
募集中
- アイランドシティ・ヴェルデコートI区4番館
- 16.8万円
- 西鉄貝塚線 香椎花園前駅 徒歩19分
- 福岡県福岡市東区香椎照葉1丁目
- 87.57m² / 3LDK
-
募集中
- アイランドシティオーシャン&フォレストタワーレジデンスEAST棟
- 14.3万円
- JR鹿児島本線 香椎駅 3.5km
- 福岡県福岡市東区香椎照葉6丁目2-52
- 62.26m² / 2LDK
-
募集中
- 西鉄貝塚線 香椎花園前駅 徒歩25分
- 27.5万円
- 西鉄貝塚線 香椎花園前駅 徒歩25分
- 福岡県福岡市東区香椎照葉6丁目
- 89.72m² / 3LDK
-
募集中
- アイランドシティオーシャン&フォレストタワーレジデンスEAST
- 14万円
- 西鉄貝塚線 香椎花園前駅 徒歩29分
- 福岡県福岡市東区香椎照葉6丁目27-51
- 60.86m² / 2LDK
-
募集中
- パークフロント香椎照葉
- 20万円
- 西鉄貝塚線 香椎花園前駅 徒歩27分
- 福岡県福岡市東区香椎照葉4丁目4-20
- 85.14m² / 3LDK
-
募集中
- LaSante照葉オーシャンテラス
- 13.3万円
- JR鹿児島本線 千早駅 バス13分 アイランドシティ中央公園下車 徒歩6分
- 福岡県福岡市東区香椎照葉1丁目4-2
- 74.94m² / 3LDK
-
募集中
- アイランドシティ・インフィニガーデンノース棟
- 13.9万円
- 西鉄貝塚線 香椎花園前駅 徒歩20分
- 福岡県福岡市東区香椎照葉3丁目
- 89.88m² / 3LDK
新築マンション
※完成後1年以上経過した未入居の物件が含まれている場合があります
-
売出し中
- JR鹿児島本線「箱崎」駅 徒歩5分
- 4,288万円~8,400万円
- JR鹿児島本線「箱崎」駅 徒歩5分
- 福岡県福岡市東区箱崎1丁目2037番1(地番)
- 74.33m² / 1LDK~3LDK
-
売出し中
- JR香椎線「和白」駅 徒歩8分 (約630m)
- 4,380万円~5,990万円
- JR香椎線「和白」駅 徒歩8分 (約630m)
- 福岡県福岡市東区和白二丁目1211番11(地番)、福岡市東区和白二丁目9番29-000号(住居表示)
- 95.55m² / 3LDK・4LDK
-
売出し中
- 福岡市地下鉄箱崎線「貝塚」駅 徒歩10分
- 3,590万円~5,490万円
- 福岡市地下鉄箱崎線「貝塚」駅 徒歩10分
- 福岡県福岡市東区箱崎ふ頭三丁目2番18(地番)
- 70.09m² / 2LDK・2LDK+S(納戸)・3LDK
-
売出し中
- 西鉄貝塚線「香椎花園前」駅 徒歩33分
- 3,920万円 ~ 8,610万円
- 西鉄貝塚線「香椎花園前」駅 徒歩33分
- 福岡県福岡市東区香椎照葉7丁目27番1、28番5及び29番2
- 103.69m² / 1LDK ~ 3LDK
中古マンション
-
売出し中
- 照葉テラス・パークカーサ02
- 5790万円
- 西鉄貝塚線 香椎花園前駅 徒歩23分
- 福岡県福岡市東区香椎照葉2丁目1-2
- 94.03m² / 3LDK
-
売出し中
- 照葉テラス・パークカーサ01
- 4480万円
- 西鉄貝塚線 香椎花園前駅 徒歩20分
- 福岡県福岡市東区香椎照葉2丁目
- 76.35m² / 3LDK
-
売出し中
- セントラルパーク香椎照葉壱番館E棟
- 4230万円
- 西鉄貝塚線 香椎花園前駅 徒歩28分
- 福岡県福岡市東区香椎照葉4丁目
- 83.49m² / 3LDK
-
売出し中
- 照葉テラス マリナコート3番館
- 3590万円
- 西鉄貝塚線 香椎花園前駅 徒歩20分
- 福岡県福岡市東区香椎照葉2丁目
- 84.91m² / 3LDK
-
売出し中
- アイランドシティオーシャン&フォレストタワーレジデンス
- 1億1350万円
- 西鉄貝塚線 香椎花園前駅 徒歩28分
- 福岡県福岡市東区香椎照葉6丁目2-51
- 105.54m² / 4LDK
-
売出し中
- アイランドシティオーシャン&フォレストタワーレジデンスEAST
- 1億1350万円
- 西鉄貝塚線 香椎花園前駅 徒歩31分
- 福岡県福岡市東区香椎照葉6丁目2-51
- 105.54m² / 4LDK
-
売出し中
- アイランドシティオーシャンフォレストタワーレジデンスEAST
- 9480万円
- 西鉄貝塚線 香椎花園前駅 徒歩28分
- 福岡県福岡市東区香椎照葉6丁目2-51
- 83.5m² / 3LDK
-
売出し中
- パークフロント香椎照葉
- 5180万円
- 西鉄貝塚線 香椎花園前駅 徒歩29分
- 福岡県福岡市東区香椎照葉4丁目4-20
- 85.14m² / 3LDK
-
売出し中
- 照葉ザ・タワー
- 6090万円
- 西鉄貝塚線 香椎花園前駅 徒歩28分
- 福岡県福岡市東区香椎照葉7丁目
- 85.74m² / 3SLDK
-
売出し中
- 照葉ザ・タワー
- 5980万円
- 西鉄貝塚線 香椎花園前駅 徒歩29分
- 福岡県福岡市東区香椎照葉7丁目5-3
- 79.14m² / 3LDK
一戸建て
-
売出し中
- 香椎照葉2丁目戸建
- 7620万円
- 西鉄貝塚線 香椎花園前駅 徒歩20分
- 福岡県福岡市東区香椎照葉2丁目
- 129.73m² / 4LDK
-
売出し中
- 香椎照葉七丁目戸建
- 2億4900万円
- 西鉄バス「照葉北小学校前」下車 徒歩11分
- 福岡県福岡市東区香椎照葉7丁目
- 305.35m² / 4LDK
-
売出し中
- 東区香住ヶ丘四丁目戸建1号棟
- 4598万円
- 西鉄貝塚線 香椎花園前駅 徒歩5分
- 福岡県福岡市東区香住ヶ丘4丁目
- 110.34m² / 4LDK
-
売出し中
- 東区香住ヶ丘四丁目戸建2号棟
- 4398万円
- 西鉄貝塚線 香椎花園前駅 徒歩5分
- 福岡県福岡市東区香住ヶ丘4丁目
- 98.74m² / 4LDK
-
売出し中
- 福岡市東区香住ケ丘5丁目1期K 1号棟(全1棟)
- 4168万円
- 西鉄貝塚線 唐の原駅 徒歩12分
- 福岡県福岡市東区香住ヶ丘5丁目
- 105.73m² / 3LDK
-
売出し中
- 西鉄貝塚線「唐の原」駅 徒歩12分
- 4168万円
- 西鉄貝塚線「唐の原」駅 徒歩12分
- 福岡県福岡市東区香住ヶ丘5丁目
- 105.73m² / 4LDK
-
売出し中
- 福岡市東区香住ヶ丘5丁目
- 3250万円
- 西鉄貝塚線 唐の原駅 徒歩12分
- 福岡県福岡市東区香住ヶ丘5丁目
- 124.58m² / 3LDK
-
売出し中
- 福岡市東区香住ヶ丘5丁目第1 D号棟(全6棟)
- 3690万円
- 西鉄貝塚線 唐の原駅 徒歩13分
- 福岡県福岡市東区香住ヶ丘5丁目18-12の隣地
- 97.71m² / 4LDK
-
売出し中
- 西鉄貝塚線「唐の原」駅 徒歩13分
- 3,690万円
- 西鉄貝塚線「唐の原」駅 徒歩13分
- 福岡県福岡市東区香住ヶ丘5丁目
- 97.71m² / 4LDK
注文住宅
※表示価格は延べ床面積約132m²の場合の建物価格の参考値です
-
資料請求受付中
- -
- アキュラホーム(AQ Group)
- 「超空間の家」
-
資料請求受付中
- 2600万円〜
- 健康住宅株式会社
- 【健康住宅】選ばれ続けるヒミツがわかる会社紹介パンフレット
-
資料請求受付中
- 3000万円〜
- 株式会社スウェーデンハウス
- 【スウェーデンハウス】お客様満足度総合第1位の声「No.1 Sweden House News」
-
資料請求受付中
- 3400万円〜
- ディー・アンド・エイチ株式会社
- 2,975万円~の家づくり|カタログ4冊セット|『ZEH基準の高性能住宅+福岡の土地情報に強いD&H』家づくりに関することをトータルでご提案。
-
資料請求受付中
- 3400万円〜
- へーベルハウス
- 【ヘーベルハウス】:ヘーベルハウス総合カタログ
-
資料請求受付中
- 1868万円〜
- タマホーム株式会社
- 大安心の家シリーズ
-
資料請求受付中
- 3000万円〜
- セキスイハイム
- 【セキスイハイム】総合カタログ(heimism)
-
資料請求受付中
- 2800万円〜
- ミサワホーム株式会社
- 【MISAWA】ミサワホーム代表カタログ3冊セット(HOME'S限定)
-
資料請求受付中
- 2800万円〜
- 【悠悠ホーム | 健康、快適、長寿命の家】
- 【悠悠ホーム】オーナー様邸 施工実例集 20選 《人気の平屋間取り付き》
-
資料請求受付中
- 2000万円〜
- 一条工務店
- 【一条工務店】 建築実例集3冊セット(HOME’S限定)
エリア・駅で絞り込んで探す
物件の種類から探す
福岡市東区で募集中の物件のみを検索できます
掲載情報に誤りや問題がある場合
LIFULL HOME'Sは「不動産会社」ではなく「情報掲載サイト」です
- ※管理会社の情報はLIFULL HOME'Sでは保持していないためお答えできません。お問合せはお控えください
- ※最新の募集状況は掲載中の不動産会社があれば、不動産会社へ直接お問合せください
掲載情報の訂正依頼 専用ダイヤル
0120-987-243
- 専用ダイヤル受付時間:10:00〜18:00
- ※土日・祝日、臨時休業日は除く
不動産データのご利用について
不動産事業におけるDX、サービスの改善、新規事業開発等をご検討中の方へ不動産データの活用をご提案します。LIFULL HOME'Sで集約した不動産情報や外部データは、不動産事業DX、不正決済防止、ローン審査、事業開発、研究等さまざまな事業でご活用いただいています。詳しくは以下よりご確認ください。
不動産アーカイブご利用アンケートにご協力ください
不動産アーカイブの掲載情報は、LIFULL HOME'S掲載の不動産情報および提携先の不動産情報を統計情報として集積したものであり、その存在や信憑性を保証するものではありません。