このページは物件の広告情報ではありません。
過去にLIFULL HOME'Sへ掲載された不動産情報と提携先の地図情報を元に生成した参考情報です。また、一般から投稿された情報など主観的な情報も含みます。
情報更新日: 2025/12/30
シティテラス吉祥寺南
スポンサーリンク
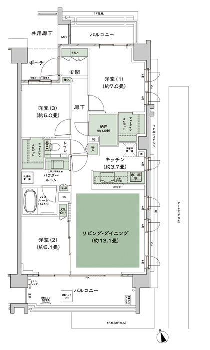
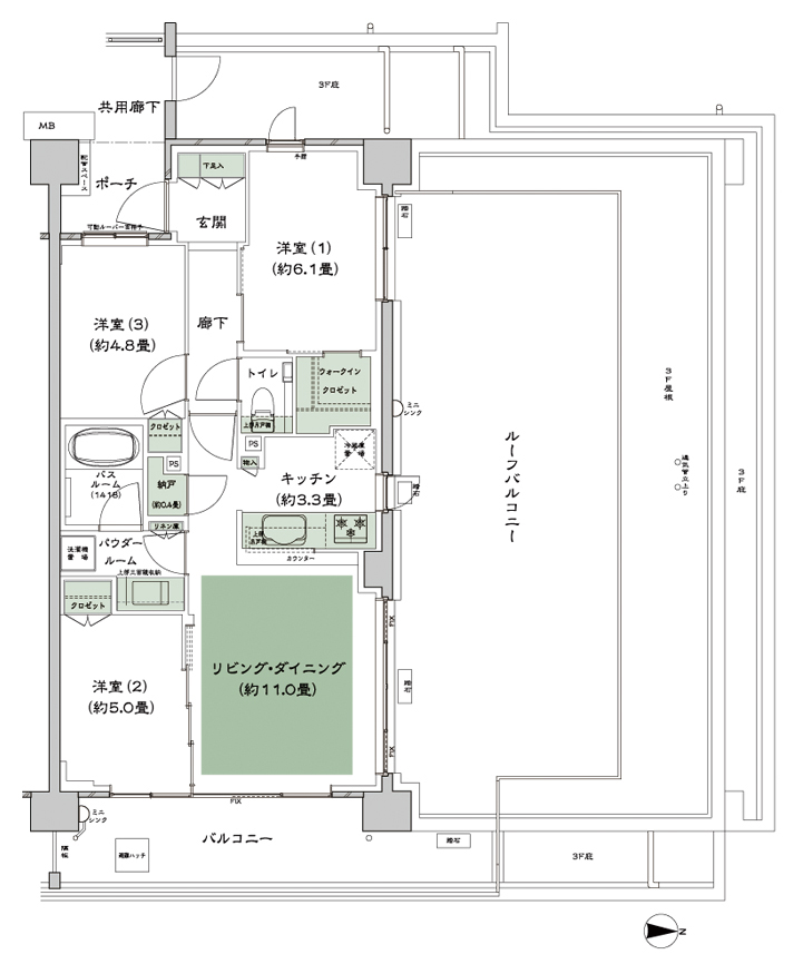
シティテラス吉祥寺南の建物情報
物件概要
| 物件種別 | マンション |
|---|---|
| 築年月(築年数) | 2015年10月 (築11年) |
| 建物構造 | 鉄筋コンクリート造・地下1階地上6階建 |
| 総戸数/総区画数 | 268戸 |
| 敷地全体面積 | 16,249.89平米<11,187.41平米(サウス)、4,158.44平米(ノース)、他に692.92平米(自主管理公園1)、211.12平 |
| 用途地域 | 第一種低層住宅専用、第一種中高層住居専用 |
| 地目 | 宅地 |
| 土地権利 | 所有権 |
| 建築確認番号 | ERI 14025523号(平成26年7月15日付) |
| 売主 | 住友不動産株式会社 |
| 販売会社 | 売主/住友不動産株式会社 |
設備・条件
- 追い焚き
- 浴室乾燥機
- システムキッチン
- ディスポーザー
- ウォークインクローゼット
- オートロック
- 防犯カメラ
- エレベーター
※最新の状態と異なる場合があります
売りたい不動産をお持ちの方へ
このエリアの所有不動産を査定する
売却査定手続きの流れ、費用相場や注意点など不動産売却について詳しく知りたい方はLIFULL HOME'S 不動産査定へ
シティテラス吉祥寺南の周辺施設
-
買い物
日用品 -
- サミットストア 三鷹台団地店
- Seriaいなげや三鷹牟礼店
- いなげや 三鷹牟礼店
- ウェルパーク三鷹牟礼店
- 買い物
大型店 -
- ユニクロ 三鷹新川店
- グルメ
-
- ロイヤルホスト 牟礼店
- すき家 三鷹牟礼店
- 味の民芸 三鷹牟礼店
- マクドナルド 東八道路牟礼店
- 娯楽施設
-
- ヤナギテニススクール三鷹台
- 井の頭恩賜公園
- 役所
公共施設 -
- 三鷹牟礼二郵便局
- 三鷹井の頭郵便局
- 三鷹市立東部図書館
- 三鷹台郵便局
- 医療
-
- 医療法人財団紘友会三鷹病院
- 保育施設
-
- 三鷹赤とんぼ保育園
- 牟礼の森トキ保育園分園
- みたかこころ保育園
- 牟礼の森トキ保育園
- 学校
-
- 三鷹市立高山小学校
- 私立法政大学高校
- 私立法政大学中学校
- 三鷹市立第三中学校
シティテラス吉祥寺南周辺の物件情報
周辺の問合せ可能な物件
東京都三鷹市の問合せ可能な物件のうち、この物件の周辺にあるものから表示しています
賃貸
-
募集中
- シティテラス吉祥寺南ノース
- 23万円
- 京王井の頭線 三鷹台駅 徒歩14分
- 東京都三鷹市牟礼3丁目
- 67.13m² / 3LDK
-
募集中
- カメーリエ
- 16.7万円
- 京王井の頭線 三鷹台駅 徒歩15分
- 東京都三鷹市牟礼3丁目
- 54.25m² / 2LDK
-
募集中
- 京王井の頭線 三鷹台駅 徒歩11分
- 6.85万円
- 京王井の頭線 三鷹台駅 徒歩11分
- 東京都三鷹市牟礼2丁目
- 25.0m² / 1DK
-
募集中
- 第5常葉コーポ
- 12.9万円
- 京王井の頭線 井の頭公園駅 徒歩13分
- 東京都三鷹市牟礼4丁目
- 46.28m² / 2LDK
-
募集中
- コアパレス常葉3
- 8.7万円
- 京王井の頭線 井の頭公園駅 徒歩14分
- 東京都三鷹市牟礼3丁目10-19
- 23.48m² / ワンルーム
-
募集中
- 京王井の頭線 井の頭公園駅 徒歩15分
- 8.7万円
- 京王井の頭線 井の頭公園駅 徒歩15分
- 東京都三鷹市牟礼3丁目
- 23.48m² / ワンルーム
-
募集中
- 第3常葉コーポ
- 8.2万円
- 京王井の頭線 井の頭公園駅 徒歩15分
- 東京都三鷹市牟礼3丁目
- 23.48m² / ワンルーム
-
募集中
- ポン・プランシュ
- 8.5万円
- JR中央本線 三鷹駅 バス13分 西ヶ原下車 徒歩2分
- 東京都三鷹市牟礼6丁目
- 29.17m² / 1K
-
募集中
- JR中央線 吉祥寺駅 徒歩30分
- 8.5万円
- JR中央線 吉祥寺駅 徒歩30分
- 東京都三鷹市牟礼6丁目1-43
- 29.17m² / 1K
-
募集中
- ホワイト イン ブラック
- 16.2万円
- 京王井の頭線 三鷹台駅 徒歩11分
- 東京都三鷹市牟礼2丁目
- 64.47m² / 3LDK
新築マンション
※完成後1年以上経過した未入居の物件が含まれている場合があります
-
売出し中
- JR中央線「三鷹」駅 徒歩8分
- 未定
- JR中央線「三鷹」駅 徒歩8分
- 東京都三鷹市下連雀三丁目171番1(地番)
- 72.41m² / 2LDK・3LDK
-
売出し中
- JR中央本線「三鷹」駅 徒歩7分
- 未定
- JR中央本線「三鷹」駅 徒歩7分
- 東京都三鷹市下連雀三丁目230番83(地番)、東京都三鷹市下連雀三丁目30番9(住居表示)
- 76.61m² / 1LDK~3LDK
-
売出し中
- JR中央線「三鷹」駅 徒歩11分
- 7,898万円・8,798万円
- JR中央線「三鷹」駅 徒歩11分
- 東京都三鷹市下連雀4丁目242番29(地番)
- 63.82m² / 1LDK+S・3LDK
-
売出し中
- JR中央線「吉祥寺」駅 バス14分 (小田急バス)「三鷹三中前」バス停 徒歩2分
- 6,580万円・7,450万円
- JR中央線「吉祥寺」駅 バス14分 (小田急バス)「三鷹三中前」バス停 徒歩2分
- 東京都三鷹市牟礼4丁目18番5
- 66.7m² / 2LDK・2LDK+S
-
売出し中
- JR中央線「三鷹」駅 JR中央線「三鷹」駅 までバス15分「三鷹農協前」バス停 徒歩2分 ※JR中央線「三鷹」駅からバス8分「三鷹農協前」バス停下車徒歩3分
- 6,200万円台~8,300万円台(100万円単位)(予定)
- JR中央線「三鷹」駅 JR中央線「三鷹」駅 までバス15分「三鷹農協前」バス停 徒歩2分 ※JR中央線「三鷹」駅からバス8分「三鷹農協前」バス停下車徒歩3分
- 東京都三鷹市下連雀八丁目488-1(地番)
- 63.93m² / 1LDK~3LDK
中古マンション
-
売出し中
- マイキャッスル三鷹台
- 4799万円
- 京王井の頭線 三鷹台駅 徒歩19分
- 東京都三鷹市牟礼6丁目
- 62.8m² / 2SLDK
-
売出し中
- ライオンズマンション吉祥寺南
- 5280万円
- 京王井の頭線 三鷹台駅 徒歩13分
- 東京都三鷹市牟礼2丁目
- 60.51m² / 3LDK
-
売出し中
- 三鷹ナシヨナルコート1号棟
- 4699万円
- JR総武線 吉祥寺駅 バス8分 牟礼団地・三鷹イースト前下車 徒歩5分
- 東京都三鷹市牟礼6丁目24-12
- 69.28m² / 3LDK
-
売出し中
- パークハウス吉祥寺トリニファイ
- 8280万円
- JR中央線 吉祥寺駅 バス13分 下連雀五丁目下車 徒歩1分
- 東京都三鷹市下連雀5丁目
- 79.05m² / 3LDK
-
売出し中
- プラウドシティ吉祥寺G棟
- 9680万円
- JR中央線 吉祥寺駅 バス12分 プラウドシティ吉祥寺下車 徒歩1分
- 東京都三鷹市下連雀5丁目
- 74.29m² / 3LDK
-
売出し中
- 井の頭公園コーポラス
- 3680万円
- 京王井の頭線 井の頭公園駅 徒歩9分
- 東京都三鷹市井の頭4丁目
- 50.22m² / 1SLDK
-
売出し中
- アイディスクエア吉祥寺
- 5980万円
- 京王井の頭線 吉祥寺駅 バス23分 新川宿下車 徒歩2分
- 東京都三鷹市新川3丁目14-12
- 70.5m² / 2SLDK
-
売出し中
- マイキャッスル三鷹台
- 4799万円
- 京王井の頭線 三鷹台駅 徒歩19分
- 東京都三鷹市下連雀6丁目24-1
- 62.8m² / 2SLDK
-
売出し中
- ユニアスサンハイム
- 2980万円
- JR中央線 三鷹駅 徒歩16分
- 東京都三鷹市下連雀2丁目6-27
- 41.54m² / 1LDK
一戸建て
-
売出し中
- 三鷹市牟礼5丁目 全21区画 新築分譲住宅 21号棟
- 7290万円
- 京王井の頭線 三鷹台駅 徒歩17分
- 東京都三鷹市牟礼5丁目11
- 89.9m² / 4LDK
-
売出し中
- 三鷹市牟礼5丁目 全21区画 新築分譲住宅 19号棟
- 7090万円
- 京王井の頭線 三鷹台駅 徒歩17分
- 東京都三鷹市牟礼5丁目11
- 89.1m² / 2SLDK
-
売出し中
- 三鷹市牟礼7期 1号棟
- 8998万円
- 京王井の頭線 三鷹台駅 徒歩19分
- 東京都三鷹市牟礼5丁目
- 86.27m² / 3LDK
-
売出し中
- 三鷹市牟礼7期 2号棟
- 8698万円
- 京王井の頭線 三鷹台駅 徒歩19分
- 東京都三鷹市牟礼5丁目
- 90.05m² / 4LDK
-
売出し中
- 三鷹市井の頭2丁目借地権付戸建
- 6780万円
- JR中央線 吉祥寺駅 徒歩19分
- 東京都三鷹市井の頭2丁目
- 117.01m² / 6SDK
-
売出し中
- JR中央線「吉祥寺」駅 徒歩16分
- 17980万円(1戸)
- JR中央線「吉祥寺」駅 徒歩16分
- 東京都三鷹市井の頭3丁目911番73
- 104.98m² / 3LDK(1戸)
-
売出し中
- 京王井の頭線 井の頭公園駅 徒歩5分
- 9580万円
- 京王井の頭線 井の頭公園駅 徒歩5分
- 東京都三鷹市井の頭3丁目
- 95.53m² / 3LDK
-
売出し中
- 三鷹市牟礼5丁目 全3棟 新築分譲住宅 3号棟
- 7998万円
- 京王井の頭線 三鷹台駅 徒歩19分
- 東京都三鷹市牟礼5丁目
- 91.06m² / 3LDK
-
売出し中
- 京王井の頭線「三鷹台」駅 徒歩19分
- 7998万円~8998万円
- 京王井の頭線「三鷹台」駅 徒歩19分
- 東京都三鷹市牟礼5
- 91.6m² / 3LDK+ロフト+WIC・4LDK+WIC
-
売出し中
- 三鷹市牟礼5丁目の新築戸建
- 7998万円
- 京王井の頭線 三鷹台駅 徒歩19分
- 東京都三鷹市牟礼5丁目
- 91.06m² / 4LDK
注文住宅
※表示価格は延べ床面積約132m²の場合の建物価格の参考値です
エリア・駅で絞り込んで探す
東京都のシティテラスが含まれるマンション
周辺の建物情報
物件の種類から探す
三鷹市で募集中の物件のみを検索できます
掲載情報に誤りや問題がある場合
LIFULL HOME'Sは「不動産会社」ではなく「情報掲載サイト」です
- ※管理会社の情報はLIFULL HOME'Sでは保持していないためお答えできません。お問合せはお控えください
- ※最新の募集状況は掲載中の不動産会社があれば、不動産会社へ直接お問合せください
掲載情報の訂正依頼 専用ダイヤル
0120-987-243
- 専用ダイヤル受付時間:10:00〜18:00
- ※土日・祝日、臨時休業日は除く
不動産データのご利用について
不動産事業におけるDX、サービスの改善、新規事業開発等をご検討中の方へ不動産データの活用をご提案します。LIFULL HOME'Sで集約した不動産情報や外部データは、不動産事業DX、不正決済防止、ローン審査、事業開発、研究等さまざまな事業でご活用いただいています。詳しくは以下よりご確認ください。
不動産アーカイブご利用アンケートにご協力ください
不動産アーカイブの掲載情報は、LIFULL HOME'S掲載の不動産情報および提携先の不動産情報を統計情報として集積したものであり、その存在や信憑性を保証するものではありません。