このページは物件の広告情報ではありません。
過去にLIFULL HOME'Sへ掲載された不動産情報と提携先の地図情報を元に生成した参考情報です。また、一般から投稿された情報など主観的な情報も含みます。
情報更新日: 2026/03/17
ミルウィンドウ 3LDK 5階
部屋情報
| 所在地 | 京都府京都市下京区西錺屋町14 |
|---|---|
| 交通 |
|
| AI予測賃料 |
14.3万円 〜 16.2万円
AI予測賃料とは
※LIFULL HOME'Sが独自で計算した参考情報であり、実際の取引価格とは異なります。 (算出ロジックについて ) |
| 専有面積 | 65.83m² |
| 所在階/階数 | 5階/10階 |
| 主採光 | 南 |
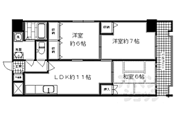
| 間取り | 3LDK (リビングダイニングキッチン11.5帖 洋室6.0帖 洋室6.0帖 和室6.0畳) |
スポンサーリンク
LIFULL HOME'S 掲載履歴
ミルウィンドウの賃貸掲載履歴
全5件
| 年/月 | 賃料 |
|---|---|
| 2025年12月〜2026年3月 | 14万円 / 月 |
| 2021年6月〜2021年12月 | 13.82万円 / 月 |
| 2020年11月〜2021年2月 | 13.82万円 / 月 |
| 2016年5月 | 9.3万円 / 月 |
| 2016年4月 | 9.26万円 / 月 |
売りたい不動産をお持ちの方へ
このエリアの所有不動産を査定する
売却査定手続きの流れ、費用相場や注意点など不動産売却について詳しく知りたい方はLIFULL HOME'S 不動産査定へ
ミルウィンドウ周辺の物件情報
周辺の問合せ可能な物件
京都府京都市下京区の問合せ可能な物件のうち、この物件の周辺にあるものから表示しています
賃貸
-
募集中
- フレア五条
- 14.5万円
- 京都市営烏丸線 五条駅 徒歩9分
- 京都府京都市下京区柿本町
- 68.74m² / 3LDK
-
募集中
- フレア五条
- 14.5万円
- 京都市営烏丸線 五条駅 徒歩9分
- 京都府京都市下京区猪熊通五条下る柿本町
- 68.74m² / 3LDK
-
募集中
- 京都市営烏丸線 五条駅 徒歩9分
- 14.5万円
- 京都市営烏丸線 五条駅 徒歩9分
- 京都府京都市下京区猪熊通花屋町上る柿本町
- 68.74m² / 3LDK
-
募集中
- 京都市営烏丸線 五条駅 徒歩9分
- 14.5万円
- 京都市営烏丸線 五条駅 徒歩9分
- 京都府京都市下京区猪熊通五条下る柿本町
- 68.74m² / 3LDK
-
募集中
- 京都市営烏丸線 五条駅 徒歩9分
- 14.5万円
- 京都市営烏丸線 五条駅 徒歩9分
- 京都府京都市下京区猪熊通松原下る柿本町
- 68.74m² / 3LDK
-
募集中
- フレア五条
- 14.5万円
- 京都市営烏丸線 五条駅 徒歩9分
- 京都府京都市下京区猪熊通松原下る柿本町
- 68.74m² / 3LDK
-
募集中
- 京都市営烏丸線 五条駅 徒歩9分
- 14.5万円
- 京都市営烏丸線 五条駅 徒歩9分
- 京都府京都市下京区五条通堀川西入柿本町
- 68.74m² / 3LDK
-
募集中
- フレア五条
- 14.5万円
- 京都市営烏丸線 五条駅 徒歩9分
- 京都府京都市下京区猪熊通花屋町上る柿本町
- 68.74m² / 3LDK
-
募集中
- アンビエント高辻通
- 16.2万円
- 阪急京都本線 大宮駅 徒歩9分
- 京都府京都市下京区住吉町
- 67.7m² / 3LDK
-
募集中
- グラシオーズ芦刈山
- 16.5万円
- 京都市営烏丸線 四条駅 徒歩6分
- 京都府京都市下京区綾小路通油小路東入芦刈山町
- 76.0m² / 3LDK
新築マンション
※完成後1年以上経過した未入居の物件が含まれている場合があります
-
売出し中
- 京都市営烏丸線「五条」駅 徒歩1分
- 未定
- 京都市営烏丸線「五条」駅 徒歩1分
- 京都府京都市下京区室町通五条下る大黒町196番
- 70.01m² / 1LDK~2LDK+S
-
売出し中
- JR東海道・山陽本線「西大路」駅 徒歩5分
- 3,700万円~6,190万円
- JR東海道・山陽本線「西大路」駅 徒歩5分
- 京都府京都市下京区七条御所ノ内本町84番1
- 67.62m² / 1LDK~3LDK
-
売出し中
- 京都市営烏丸線「五条」駅 徒歩4分 (出入口3)
- 5,100万円台~10,900万円台(予定)
- 京都市営烏丸線「五条」駅 徒歩4分 (出入口3)
- 京都府京都市下京区富小路通五条下る本塩竈町596番他(地番)
- 85.03m² / 1LDK ~ 3LDK
中古マンション
-
売出し中
- ヴィルヌーブ堀川五条
- 4980万円
- 京都市営烏丸線 五条駅 徒歩8分
- 京都府京都市下京区五条通堀川東入中金仏町
- 60.91m² / 3LDK
-
売出し中
- アルモード京都高辻 中古マンション
- 4380万円
- 阪急京都本線 大宮駅 徒歩10分
- 京都府京都市下京区麓町
- 66.29m² / 3LDK
-
売出し中
- アルモード京都高辻
- 4380万円
- 京都市営烏丸線 四条駅 徒歩10分
- 京都府京都市下京区麓町
- 66.29m² / 3LDK
-
売出し中
- アルモード京都高辻
- 4380万円
- 京都市営烏丸線 四条駅 徒歩10分
- 京都府京都市下京区油小路通高辻下る麓町
- 66.29m² / 3LDK
-
売出し中
- アルモード京都高辻
- 4480万円
- 京都市営烏丸線 四条駅 徒歩10分
- 京都府京都市下京区油小路通高辻下る麓町
- 66.29m² / 3LDK
-
売出し中
- ル・パルトネール京都丹波口
- 4480万円
- JR山陰本線 丹波口駅 徒歩7分
- 京都府京都市下京区朱雀分木町
- 68.83m² / 3LDK
-
売出し中
- ルパルトネール京都丹波口
- 4480万円
- JR山陰本線 丹波口駅 徒歩7分
- 京都府京都市下京区朱雀分木町45-2
- 67.33m² / 3LDK
-
売出し中
- パデシオン京都七条ミッドパーク 中古マンション
- 4780万円
- JR山陰本線 梅小路京都西駅 徒歩10分
- 京都府京都市下京区西七条東八反田町
- 69.27m² / 3LDK
一戸建て
-
売出し中
- 京都市下京区若宮通五条上る布屋町 戸建
- 5300万円
- 京都市営烏丸線 五条駅 徒歩5分
- 京都府京都市下京区布屋町
- 83.43m² / 4DK
-
売出し中
- 舟屋町
- 850万円
- 京都市営烏丸線 四条駅 徒歩9分
- 京都府京都市下京区舟屋町
- 19.17m² / 3K
-
売出し中
- 烏丸五条町家 駅徒歩1分 7%
- 1億6000万円
- 京都市営烏丸線 五条駅 徒歩1分
- 京都府京都市下京区上平野町
- 63.46m² / 3LDK
-
売出し中
- 下京区仏具屋町
- 1億9800万円
- 京都市営烏丸線 五条駅 徒歩10分
- 京都府京都市下京区仏具屋町
- 292.82m² / 9LDK
-
売出し中
- 京都市営烏丸線 四条駅 徒歩7分
- 2億5000万円
- 京都市営烏丸線 四条駅 徒歩7分
- 京都府京都市下京区綾西洞院町
- 194.35m² / 4LDK
-
売出し中
- 下京区東若松町
- 8380万円
- 京都市営烏丸線 五条駅 徒歩8分
- 京都府京都市下京区新町通花屋町下る東若松町
- 103.02m² / 3LDK
-
売出し中
- 京都市下京区坊門町 新築戸建
- 4280万円
- 阪急京都本線 大宮駅 徒歩7分
- 京都府京都市下京区坊門町
- 83.02m² / 3LDK
-
売出し中
- 中堂寺前田町中古戸建
- 780万円
- JR山陰本線 丹波口駅 徒歩5分
- 京都府京都市下京区中堂寺前田町21-11
- 22.87m² / 2DK
注文住宅
※表示価格は延べ床面積約132m²の場合の建物価格の参考値です
-
資料請求受付中
- 2000万円〜
- 一条工務店
- 【一条工務店】 建築実例集3冊セット(HOME’S限定)
-
資料請求受付中
- 3200万円〜
- 大和ハウス
- 【大和ハウス】天井高2m72cmの高さというゆとり空間 xevoΣ<ジーヴォシグマ>
-
資料請求受付中
- 2432万円〜
- ヤマト住建株式会社
- 【LEGANTIA】邸宅の頂点がここにある。受け継がれる価値、未来へ続く邸宅
-
資料請求受付中
- 1868万円〜
- タマホーム株式会社
- 大安心の家シリーズ
-
資料請求受付中
- 3000万円〜
- セキスイハイム
- 【セキスイハイム|平屋】ザ・デザイナーズハイムD1
-
資料請求受付中
- 3400万円〜
- へーベルハウス
- 【ヘーベルハウス】:ヘーベルハウス総合カタログ
-
資料請求受付中
- 2800万円〜
- ミサワホーム株式会社
- 【MISAWA】ミサワホーム代表カタログ3冊セット(HOME'S限定)
-
資料請求受付中
- -
- 積水ハウス
- BRAND BOOK
エリア・駅で絞り込んで探す
賃貸
物件の種類から探す
京都市下京区で募集中の物件のみを検索できます
掲載情報に誤りや問題がある場合
LIFULL HOME'Sは「不動産会社」ではなく「情報掲載サイト」です
- ※管理会社の情報はLIFULL HOME'Sでは保持していないためお答えできません。お問合せはお控えください
- ※最新の募集状況は掲載中の不動産会社があれば、不動産会社へ直接お問合せください
掲載情報の訂正依頼 専用ダイヤル
0120-987-243
- 専用ダイヤル受付時間:10:00〜18:00
- ※土日・祝日、臨時休業日は除く
不動産データのご利用について
不動産事業におけるDX、サービスの改善、新規事業開発等をご検討中の方へ不動産データの活用をご提案します。LIFULL HOME'Sで集約した不動産情報や外部データは、不動産事業DX、不正決済防止、ローン審査、事業開発、研究等さまざまな事業でご活用いただいています。詳しくは以下よりご確認ください。
不動産アーカイブご利用アンケートにご協力ください
不動産アーカイブの掲載情報は、LIFULL HOME'S掲載の不動産情報および提携先の不動産情報を統計情報として集積したものであり、その存在や信憑性を保証するものではありません。