このページは物件の広告情報ではありません。
過去にLIFULL HOME'Sへ掲載された不動産情報と提携先の地図情報を元に生成した参考情報です。また、一般から投稿された情報など主観的な情報も含みます。
情報更新日: 2026/04/15
【募集中あり】ファミールガーデン二条駅前WEST 2LDK 10階
部屋情報
| 所在地 | 京都府京都市中京区壬生天池町1 |
|---|---|
| 交通 |
|
| AI予測賃料 |
15.2万円 〜 17.2万円
AI予測賃料とは
※LIFULL HOME'Sが独自で計算した参考情報であり、実際の取引価格とは異なります。 (算出ロジックについて ) |
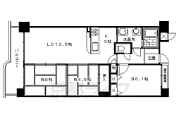
| 専有面積 | 68.34m² |
| 所在階/階数 | 10階/11階 |
| 主採光 | 西 |
| 間取り | 2LDK |
スポンサーリンク
LIFULL HOME'S 掲載履歴
ファミールガーデン二条駅前WESTの賃貸掲載履歴
全1件
| 年/月 | 賃料 |
|---|---|
| 2019年4月〜2019年7月 | 15.5万円 / 月 |
売りたい不動産をお持ちの方へ
このエリアの所有不動産を査定する
売却査定手続きの流れ、費用相場や注意点など不動産売却について詳しく知りたい方はLIFULL HOME'S 不動産査定へ
ファミールガーデン二条駅前WEST周辺の物件情報
周辺の問合せ可能な物件
京都府京都市中京区の問合せ可能な物件のうち、この物件の周辺にあるものから表示しています
賃貸
-
募集中
- カルム二条
- 15.5万円
- JR山陰本線 二条駅 徒歩4分
- 京都府京都市中京区西ノ京小倉町
- 53.76m² / 2LDK
-
募集中
- JR山陰本線 二条駅 徒歩4分
- 15.5万円
- JR山陰本線 二条駅 徒歩4分
- 京都府京都市中京区西ノ京小倉町
- 53.76m² / 2LDK
-
募集中
- ジオエント四条大宮
- 17.55万円
- 阪急京都本線 大宮駅 徒歩4分
- 京都府京都市中京区壬生坊城町
- 50.72m² / 2LDK
-
募集中
- 阪急京都本線 大宮駅 徒歩4分
- 17.55万円
- 阪急京都本線 大宮駅 徒歩4分
- 京都府京都市中京区壬生坊城町
- 50.72m² / 2LDK
-
募集中
- ジオエント四条大宮
- 17.55万円
- 阪急京都本線 大宮駅 徒歩4分
- 京都府京都市中京区壬生坊城町
- 50.72m² / 2LDK
-
募集中
- シャーメゾン池ノ内
- 16.9万円
- JR山陰本線 二条駅 徒歩8分
- 京都府京都市中京区西ノ京池ノ内町
- 59.35m² / 2LDK
-
募集中
- JR山陰本線 二条駅 徒歩8分
- 16.9万円
- JR山陰本線 二条駅 徒歩8分
- 京都府京都市中京区西ノ京池ノ内町
- 59.35m² / 2LDK
-
募集中
- 京都地下鉄東西線 二条駅 徒歩3分
- 15.2万円
- 京都地下鉄東西線 二条駅 徒歩3分
- 京都府京都市中京区西ノ京北聖町
- 60.34m² / 2LDK
-
募集中
- サンクチュアリ二条城
- 15.2万円
- 京都地下鉄東西線 二条駅 徒歩3分
- 京都府京都市中京区西ノ京北聖町
- 60.34m² / 2LDK
-
募集中
- アークレジデンス中京四条大宮
- 15万円
- 阪急京都本線 大宮駅 徒歩3分
- 京都府京都市中京区壬生坊城町
- 55.89m² / 2LDK
新築マンション
※完成後1年以上経過した未入居の物件が含まれている場合があります
-
売出し中
- JR山陰本線「二条」駅 徒歩4分
- 未定
- JR山陰本線「二条」駅 徒歩4分
- 京都府京都市中京区西ノ京東月光町22-13(地番)
- 125.95m² / 1LDK~3LDK
-
売出し中
- 京都地下鉄東西線「二条城前」駅 徒歩6分 (出入口1)
- 5,470万円~6,590万円
- 京都地下鉄東西線「二条城前」駅 徒歩6分 (出入口1)
- 京都府京都市中京区岩上通三条下る下八文字町700番(地番)
- 55.49m² / 1LDK
-
売出し中
- 京都地下鉄東西線「二条城前」駅 徒歩5分
- 5,160万円~25,900万円
- 京都地下鉄東西線「二条城前」駅 徒歩5分
- 京都府京都市中京区堀川通姉小路下る姉東堀川町78-1
- 121.54m² / 1LDK(1戸)~3LDK(5戸)
-
売出し中
- 阪急京都本線「大宮」駅 徒歩1分
- 3,980万円・6,490万円
- 阪急京都本線「大宮」駅 徒歩1分
- 京都府京都市中京区四条通大宮西入錦大宮町140番(地番)
- - / 1LDK・2LDK
中古マンション
一戸建て
-
売出し中
- 中京区壬生森町 中古戸建
- 2580万円
- 阪急京都本線 西院駅 徒歩10分
- 京都府京都市中京区壬生森町
- 34.71m² / 2DK
-
売出し中
- 京都地下鉄東西線 二条駅 徒歩6分
- 2700万円
- 京都地下鉄東西線 二条駅 徒歩6分
- 京都府京都市中京区西ノ京勧学院町
- 63.31m² / 4K
-
売出し中
- 中京区西ノ京池ノ内町 中古戸建
- 5570万円
- 京都地下鉄東西線 二条駅 徒歩7分
- 京都府京都市中京区西ノ京池ノ内町
- 54.53m² / 5K
-
売出し中
- JR山陰本線 二条駅 徒歩6分
- 990万円
- JR山陰本線 二条駅 徒歩6分
- 京都府京都市中京区西ノ京勧学院町
- 21.06m² / 1K
-
売出し中
- 三条会商店街近く ー伝統技術が体感できる京町家ー
- 8980万円
- 阪急京都本線 大宮駅 徒歩9分
- 京都府京都市中京区今新在家西町29-6
- 56.99m² / 4LDK
-
売出し中
- 中古テラスハウス 京都市中京区壬生上大竹町
- 2530万円
- 京福電気鉄道嵐山本線 西大路三条駅 徒歩4分
- 京都府京都市中京区壬生上大竹町
- 84.0m² / 3DK
-
売出し中
- 中京区壬生森町 中古テラス
- 8000万円
- 阪急京都本線 西院駅 徒歩7分
- 京都府京都市中京区壬生森町
- 63.81m² / 2K
-
売出し中
- 中京区西ノ京星池町 中古戸建
- 6500万円
- 京都地下鉄東西線 二条駅 徒歩5分
- 京都府京都市中京区西ノ京星池町
- 53.83m² / 3LDK
注文住宅
※表示価格は延べ床面積約132m²の場合の建物価格の参考値です
-
資料請求受付中
- 3400万円〜
- へーベルハウス
- 【ヘーベルハウス】:ヘーベルハウス総合カタログ
-
資料請求受付中
- 2000万円〜
- 一条工務店
- 【一条工務店】 建築実例集3冊セット(HOME’S限定)
-
資料請求受付中
- 1868万円〜
- タマホーム株式会社
- 大安心の家シリーズ
-
資料請求受付中
- 3200万円〜
- 大和ハウス
- 【大和ハウス】天井高2m72cmの高さというゆとり空間 xevoΣ<ジーヴォシグマ>
-
資料請求受付中
- 3000万円〜
- セキスイハイム
- 【セキスイハイム|平屋】ザ・デザイナーズハイムD1
-
資料請求受付中
- -
- 積水ハウス
- BRAND BOOK
-
資料請求受付中
- 3000万円〜
- トヨタホーム
- FIRST CLASS LIVING
-
資料請求受付中
- 2432万円〜
- ヤマト住建株式会社
- 【LEGANTIA】邸宅の頂点がここにある。受け継がれる価値、未来へ続く邸宅
エリア・駅で絞り込んで探す
賃貸
中古マンション
-
中古マンションを探す
-
京都府の中古マンションを探す
-
京都市中京区の中古マンションを探す
-
二条駅周辺の中古マンションを探す
-
二条駅周辺の中古マンションを探す
-
西大路三条駅周辺の中古マンションを探す
-
西院駅周辺の中古マンションを探す
-
大宮駅周辺の中古マンションを探す
-
四条大宮駅周辺の中古マンションを探す
-
西大路御池駅周辺の中古マンションを探す
-
JR山陰本線の中古マンションを探す
-
京都地下鉄東西線の中古マンションを探す
-
京福電気鉄道嵐山本線の中古マンションを探す
-
京福電気鉄道嵐山本線の中古マンションを探す
-
阪急京都本線の中古マンションを探す
-
京福電気鉄道嵐山本線の中古マンションを探す
-
京都地下鉄東西線の中古マンションを探す
物件の種類から探す
京都市中京区で募集中の物件のみを検索できます
掲載情報に誤りや問題がある場合
LIFULL HOME'Sは「不動産会社」ではなく「情報掲載サイト」です
- ※管理会社の情報はLIFULL HOME'Sでは保持していないためお答えできません。お問合せはお控えください
- ※最新の募集状況は掲載中の不動産会社があれば、不動産会社へ直接お問合せください
掲載情報の訂正依頼 専用ダイヤル
0120-987-243
- 専用ダイヤル受付時間:10:00〜18:00
- ※土日・祝日、臨時休業日は除く
不動産データのご利用について
不動産事業におけるDX、サービスの改善、新規事業開発等をご検討中の方へ不動産データの活用をご提案します。LIFULL HOME'Sで集約した不動産情報や外部データは、不動産事業DX、不正決済防止、ローン審査、事業開発、研究等さまざまな事業でご活用いただいています。詳しくは以下よりご確認ください。
不動産アーカイブご利用アンケートにご協力ください
不動産アーカイブの掲載情報は、LIFULL HOME'S掲載の不動産情報および提携先の不動産情報を統計情報として集積したものであり、その存在や信憑性を保証するものではありません。