建築条件付き土地 フォレステージ藤井寺II期※※※長期優良住宅認定仕様です※※※
- 価格
- 1897万円・2350万円
- 所在地
- 大阪府藤井寺市小山2-11番2から分筆、3番1及び14番1から分筆
- 交通
- 近鉄南大阪線「藤井寺」駅 徒歩13分~14分
乗り換え案内
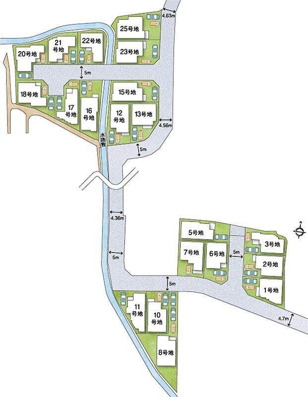
- 土地面積
- 101m2(約30.55坪)・117m2(約35.39坪)
- 販売区画数 / 総区画数
- 2区画 / 20区画
- 建築条件
- 付
【5/21更新】
全20区画の分譲地。自由設計対応で叶える理想の我が家!
■近鉄南大阪線「藤井寺」駅まで徒歩13~14分。
・大阪の主要エリアへ快適アクセス!
■車などの通り抜けが少ない、安心の街区設計。
■敷地の形状を活かした、多彩な建物プラン例をご提案!
■教育・医療施設、ショッピングセンターが徒歩10分圏。
~次世代まで住み継げる家「FWP-ES工法」の大切なポイント~
■揺れを抑えて建物を守る!オリジナル「耐震&制震工法」を採用!
■ローン金利・税制の優遇もある「長期優良住宅認定仕様」!
0037-633-75798
無料
魅力1 ◆生活利便施設が徒歩圏内に充実◆ 小学校、ショッピングセンターが徒歩10分圏内!
【1】藤井寺市立藤井寺北小学校: 徒歩7分(約492m~約530m)
通学に負担の少ない距離。教育目標は「学びあい、つながりあい、高まる喜びを感じながら、 たくましく健やかに生きる人間の育成」です。
【2】イオン藤井寺ショッピングセンター:徒歩9分~10分(約717m~約755m)
スーパー、日用品、インテリア用品などのほか、衣料品、飲食店など多彩な専門店が揃います。
【3】白川医院:徒歩10分(約729m~約767m)
診療科目は、内科、小児科。徒歩でも行き来できる距離で、体調を崩しやすい小さなお子様がいらっしゃるご家庭にも嬉しい立地です。休診日:水曜、土曜午後、日曜、祝日。
魅力2 いろんなタイプのモデルハウスが随時見学可能です。お好みの雰囲気をお伝えください。
【1】LDK/当社施工例
LDKを通り2階へ繋がる設計に。生活の中で、ご家族が自然に顔を合わせられる機会が増え、豊かなコミュニケーションを育むことができそうです。
【2】キッチン/当社施工例
リビング全体を見渡せるアイランドキッチン。ご家族やゲストとゆったりお料理を楽しめる仕様です。便利なグリル付き3口ガスコンロ&食器洗乾燥機付きです。
【3】洋室(約9.75帖)/当社施工例
2ヶ所に出入口があり、約5.25帖と約4.5帖の2部屋にも変更可能(別途工事費要)。ライフスタイルの変化に対応しやすい間取りです。
魅力3 見えない部分までこだわることで、ご家族の未来を守る「安心して暮らせる家」を提供。
耐震+制振の2つの力で住まいを守る、ファミティホーム独自の『FWP-ES工法』を採用。
ローンの金利や税制の優遇もある『長期優良住宅認定仕様』や
施工品質を保つ『住宅性能評価書取得』を標準化。
街全体が「安全・安心・長持ち」の ファミティホームで統一されます。
断熱性・省エネ性が高い『断熱等性能等級6』を採用。
樹脂+LOW-E複層ガラスにアルゴンガス封入で、国内最高レベルの断熱性を実現。冬は暖かく、夏は涼しい住まいをご提供します。
ガス衣類乾燥機『乾太くん』を標準採用。
季節や天候の影響を避け、時間帯を気にせずに洗濯が可能。
バルコニーのない間取りが叶い、家事の効率化にもつながります。
0037-633-75798
無料
区画図
0037-633-75798
無料
内観・室内
0037-633-75798
無料
設備・仕様
0037-633-75798
無料
外観・分譲地
外観・分譲地のこだわりポイント
- 総戸数・総区画数が10以上〜30未満
- 角地
- 南道路
0037-633-75798
無料
参考プラン
0037-633-75798
無料
周辺環境・地図
-
【その他】
藤井寺市立藤井寺幼稚園 (約726m~約764m 徒歩10分)
4歳児、5歳児を対象とした幼稚園。保育の中で絵本の読み聞かせ、...
-
【学校】
藤井寺市立藤井寺北小学校 (約492m~約530m 徒歩7分)
通学に負担の少ない距離。教育目標は「学びあい、つながりあい、高...
-
【学校】
藤井寺市立第三中学校 (約1815m~約1853m 徒歩23~24分)
部活動は、野球部、サッカー部など10の運動部と、吹奏楽部、美術...
-
【買い物】
サンプラザ 小山店 (約827m~約865m 徒歩11分)
2023年5月にリニューアルされたスーパー。ベーカリーコーナー...
-
【買い物】
万代 羽曳野島泉店 (約1250m~約1288m 徒歩16~17分)
価格や品質にこだわったプライベートブランド「万代選品」の商品も...
-
【買い物】
イオン藤井寺ショッピングセンター (約717m~約755m 徒歩9~10分)
スーパー、日用品、インテリア用品などのほか、衣料品、飲食店など...
-
案内図
-
交通図
周辺環境のこだわりポイント
- スーパー 800m以内
- 小学校 800m以内
- 公園 400m以内
0037-633-75798
無料
物件概要
| 所在地 | 大阪府藤井寺市小山2-11番2から分筆、3番1及び14番1から分筆 | ||
|---|---|---|---|
| 交通 |
近鉄南大阪線「藤井寺」駅 徒歩13分~14分 |
||
| 販売価格 | 1897万円・2350万円 | 最多価格帯 | - |
| 建物面積 | - | 土地面積 | 101m2(約30.55坪)・117m2(約35.39坪) |
| 開発面積 | 2942.36m2 | 建ぺい率・容積率 | 建ぺい率:60%、容積率:200% |
| 建築条件 | 建築条件付 建築条件付き土地とは一定期間内に、その土地に建築する建物の請負契約が締結されることを条件に販売される土地のことです。 土地売買契約締結後、建築請負会社と購入した土地に建築する建物について協議することになります。広告に参考プランが掲載されている場合でも、プランは一例であり、実際の建築プランは建築請負会社と土地購入者で協議・検討することが可能です。 期間内に建築プランが決まらず建築請負契約が成立しなければ土地売買契約は白紙となり、支払済みの金銭はすべて返還されます。 建築請負会社が指定されている場合と指定されていない場合があります。 また、建築条件付き土地の価格には、建物価格は含まれません。 |
||
| 販売スケジュール | 販売中 | ||
| 販売区画数 / 総区画数 | 2区画 / 20区画 | ||
| 造成完了予定日 | - | 引き渡し可能年月 | 相談 |
| 駐車場 | カースペース1~2台分(車種による)※区画により駐車台数が異なります。 | 道路の幅員 | 小山113号線:約3.9m~4.7m、開発地内:開発道路約5.0m |
| 用途地域 | 第一種住居地域、第一種中高層住居専用地域 | 都市計画 | 市街化区域 |
| 地目 | 宅地 | 国土法 | - |
| 土地の権利 | 所有権 | 借地権の種類・期間 | - |
| その他費用 | 丹北小山地区自治会:自治会費3600円/年 | ||
| 主たる設備の概要 | 関西電力、公営水道、浄化槽、L型側溝及び集水桝、大阪ガス、J-COM・eo光 | 開発許可番号 | 完成済みのため省略 |
| 施工会社 | - | 機構融資 | - |
| 売主 | ファミティホーム株式会社 [大阪府知事(8)第041868号] | 取引態様 | 松原住宅株式会社(売主代理) |
| 備考 |
・文化財保護法、景観法、準防火地域 ・屋外広告物法・宅地造成及び特定盛土等規制法 ・水防法に基づく水害ハザードマップ:【洪水】有 ・藤井寺市独自の雨水出水ハザードマップ有 ・分譲地付近の南北に走る道路に時間帯通行規制の設定有 ※開発道路と東側道路後退部分は現在ファミティホーム(株)の所有ですが、藤井寺市へ帰属予定です。 ※売主と土地売買契約後3ヶ月以内に住宅の建築請負契約を締結して頂くことを条件として販売します。この期間内に住宅を建築しないことが確定した時、または住宅の建築請負契約が成立しなかった場合は土地売買契約は白紙となり受領した金額は全額お返しします。 ■□ご来場頂くと...□■ ・家探しのポイント、住宅購入の流れや住宅ローンのご説明 ・松原住宅のご紹介 ・ご希望条件のご相談 ・現地、物件の詳細見学 ・モデルハウスのご見学 などなど、お客様のご要望によってご案内させていただきます。 具体的なお家づくりのイメージをお持ちの方も、そうでない方にも お客様お一人お一人に寄り添った、オンリーワンの内容でご案内いたします。 お時間がなかなか取れない方も、所要時間をご指定頂ければ お客様の時間に合わせて実際に現地をご見学頂けるようプラン設定します♪ まずはお気軽にご相談ください。 |
||
| 情報更新日 | 2026/05/21 | 次回更新予定日 | 2026/05/31 |
| 取引条件有効期限 | 2026/05/31 | ||
販売概要・権利のこだわりポイント
- 建築条件付き
- 所有権
- 仲介手数料不要
- 売主・代理
- 自由設計対応
0037-633-75798
無料
取扱い不動産会社
松原住宅株式会社の会社情報
お電話でのお問合せは「LIFULL HOME'S(ライフルホームズ)を見て」とお伝えください
松原住宅株式会社
0037-633-75798
無料
- ※携帯電話はご利用いただけます
- ※光IP電話、及びIP電話をご利用のお客様はTEL:0120-836-777へご連絡ください
- ※携帯電話からお問合せいただいた方には、ショートメッセージ(SMS)またはLINE通知メッセージによるお問合せ内容に関する通知をお届けする場合があり、お客様の電話番号は株式会社LIFULLで一定期間保管されます
- ※株式会社LIFULLの個人情報の取扱い方針に同意のうえ、お電話ください
| 会社名 |
松原住宅株式会社 |
|---|---|
| 免許番号 | 大阪府知事 (13) 第 17696 号 |
| 所在地 | 大阪府羽曳野市誉田3-14-16 |
| 所属団体 |
(一社)大阪府宅地建物取引業協会 |
この物件にお問合せする
実際に物件・周辺環境を見て検討したい!
近隣建物や接道の状況など資料で分からない部分も一目瞭然。 まずはWEBで事前予約、スムーズに見学しましょう
ご予約無しに直接ご来場された場合、担当者不在であったり、
他のお客様のご案内の都合上、お待たせしてしまうことがございます。
不動産会社に電話で相談したい!
松原住宅株式会社
0037-633-75798
無料
電話でのお問合せは「LIFULL HOME'S(ライフルホームズ)を見て」とお伝えください
- ※携帯電話はご利用いただけます
- ※光IP電話、及びIP電話をご利用のお客様はTEL:0120-836-777へご連絡ください
- ※携帯電話からお問合せいただいた方には、ショートメッセージ(SMS)またはLINE通知メッセージによるお問合せ内容に関する通知をお届けする場合があり、お客様の電話番号は株式会社LIFULLで一定期間保管されます
- ※株式会社LIFULLの個人情報の取扱い方針に同意のうえ、お電話ください
LIFULL HOME'Sは物件鮮度No.1を目指していきます 物件情報に誤りがある場合はコチラからご連絡ください
- 【物件番号】
- 1701479-0000096
- ※完成後1年未満で未入居の物件を「新築」と表示しております。
- ※完成予想図やCG合成画像は、門塀・植栽・庭・外観等、実際とは多少異なる場合があります。
物件を再検索する
大阪府の人気エリアから土地を探す














