JR東海道・山陽本線 石山駅 バス20分 里下車 徒歩3分

この物件を何度も見ています
土地JR東海道・山陽本線 石山駅 バス20分 里下車 徒歩3分
外観
その他
その他

この物件が気になりましたか?
内観外観
内観・外観画像
- 外観
位置
- 平坦地
周辺環境
周辺情報
学校
- 田上小学校(400m)
- 田上中学校(3,000m)
その他周辺情報
- バス停3分以内
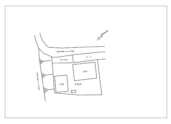
周辺地図
滋賀県大津市枝2丁目1-1
ハザード情報
周辺駅の口コミ
石山
いいね度:
幼稚園 、小学校が近く子育てしやすい。高速道路のアクセスがよいが、バスの便が悪い。 (50代女性)
いいね度:
歴史があり、昔からの営みが普通の日常の中に溶け込んでいるところと、いい人が多いところです。 (30代女性)
いいね度:
気兼ねなく 生活できるのと、車さえあれば 近くに 商業施設がある (50代男性)
口コミ情報は、LIFULL HOME’Sが18歳〜69歳の男女を対象にWEBアンケートを実施し、独自に集計しています。内容には回答者の主観的な表現が含まれる場合があるほか、事実と異なる場合もございます。ご了承ください
物件概要
| 価格 | 880万円(坪単価:8.1万円) |
|---|---|
| 土地面積/坪 | 363.5㎡/109.95坪 |
| 所在地 | 滋賀県大津市枝2丁目1-1 |
| 交通 |
|
| 総区画 | 1区画 |
| 接道状況 | 一方 |
| セットバック | 無 |
| 都市計画 | 市街化調整区域 |
| 地目 | 宅地 |
| 地勢 | 平坦 |
| 建ぺい率 | 60% |
| 容積率 | 200% |
| 建築条件 | 無 |
| 国土法届出 | 不要 |
| 土地権利 | 所有権 |
| 現況 | 古家あり ご希望のお日にちなど、お気軽にお問合せください |
| 引渡し | 即時 |
| 取引態様 | 専任媒介 |
| LIFULL HOME'S 物件番号 | 0128431-0000009 |
情報公開日:2024/03/27
最新情報提供日:2026/04/04
情報有効期限:2026/04/18
この物件について問合せませんか?
会社情報
有限会社不動産の英和
| 交通 |
|
|---|---|
| 営業時間 | 09:00 〜 19:00 |
| 定休日 | - |
| 免許番号 | 滋賀県知事(5)第2977号 |
優良店認定について
より安心で快適な住まい探しをしていただけるように、LIFULL HOME'S加盟店に対して独自調査を実施。一定の基準をクリアしている店舗を「優良店」に認定する制度です。
この会社に相談しませんか?
プロの意見がもらえる
資金計画や条件整理のアドバイスがもらえます
最新情報が手に入る
物件や周辺エリアの最新の詳細情報を知ることができます
具体的な検討ができる
購入シミュレーションや住宅ローンの仮審査などの相談も可能です
支払い目安
月々支払額
-
万円/月
支払いの内訳
元金(住宅ローン)
- -万円/月
金利(住宅ローン)
- -万円/月
算出の内訳
- 価格
- 880万円
金利について
金利は借入額に応じて支払う利息の割合で、低いほど返済額が少なくなります。
変動金利は固定金利より金利が低い傾向にありますが、金利見直しのタイミングで上昇する可能性もあります。
都市銀行の参考値
- 変動
- 0.640%~0.925%
- 10年固定
- 2.260%~3.100%
- 全期間固定
- 1.380%~2.890%
- ※5.0%以内で設定してください
- ※月々支払額算出用の初期値は都市銀行変動金利下限金利の平均値を設定しています
- ※参考値に記載の金利は「融資利率の下限金利」のレンジを表示しています
- ※都市銀行:りそな銀行、三井住友銀行、三菱UFJ銀行、みずほ銀行とする
- ※金利タイプについてはこちら
返済期間について
返済期間を短く設定すると利息の支払いを少なく抑えられますが、毎月の返済額は多くなります。返済可能な額を念頭に、収入が得られる期間までに完済できるように検討するといいでしょう。
一般的には35年以内で完済する人が多いようです。
- ※50年以内で設定してください
- ※初期値は35年を設定しています
頭金について
住宅購入金額のうち、現金で支払う金額が頭金です。一般的には物件価格の20%程度価格が必要といわれていますが、頭金なしで融資可能な金融機関もあります。頭金を多く用意することで借入額を減らすことができますが、将来のライフイベントも考慮して手元に資金をいくら残すかを検討してみましょう。
- ※価格の50%以内で設定してください
ボーナス返済について
毎月の返済額に加えて、ボーナス月には指定した金額を返済します。金融機関によって異なりますが、契約額の40~50%をボーナス返済にすることが可能です。 住宅ローンの返済は長期にわたるため、今後、ボーナスの減額や転職の予定がある場合は、ボーナス返済を設定しない、もしくは金額を少なくするほうがいいでしょう。
- ※年間返済額の50%以内で設定してください
- ※年2回(お客様が入力した金額×2回)として計算しています
このシミュレーションは、LIFULL HOME'Sで試算した概算です。参考情報としてご活用ください。
- ご利用にあたって
- ※このシミュレーションは、LIFULL HOME'Sで試算した概算であるため、月々支払額の目安の正確性・妥当性や借り入れを保証するものではありません。参考情報としてお客様にご活用いただくものです。また、お借り入れを保証するものではありません。 実際の購入・借入にあたっては、金融機関でご確認ください
- ※初期値として入力されている金利は、2025年12月01日時点での都市銀行変動金利下限金利の平均値です
- ※変動金利は一般的に年2回金利が見直され、返済額の変更は5年ごとに行われます
- ※物件によっては、借地料(地代)や設備利用料、セキュリティー費用などが別途かかる場合がございます。詳細は不動産会社にご確認ください
- ※金利は住宅ローン申込時ではなく、金融機関からの資金受取時点における金利が適用されます
- ※住宅ローン契約の際には、諸費用が別途かかります(手数料や印紙税、保証料など)。適正予算チェックの購入希望予算・購入上限予算では一律7%を諸費用として算出しています
- ※月々支払額の目安は「万円」単位で、(管理費等・修繕積立金は合算後)100円台を切り上げた上で小数点第一位までを表示しています
- ※実際の金利などの詳細は、金融機関にご確認ください
- ※当社は、お客様のLIFULL HOME'Sの閲覧履歴(閲覧物件・お気に入り物件・検索条件・問合せ件数・訪問時間帯等をいい、以下閲覧履歴情報といいます)を取得保有しております。今回ご入力いただいた内容とお客様の閲覧履歴情報を紐づけて、以下の目的で利用いたします。・お客様に有益と思われるご提案・情報のご提供をするための分析・情報配信・その他当社の個人情報の取扱い方針に記載する利用目的
- ※また、ご入力いただいた内容は以下の利用目的のため、お客様がLIFULL HOME'Sを通じて過去および将来お問合せされる不動産会社に提供させて頂くことがあります。・お問合せ先不動産会社から、お客様に有益と思われるご提案または情報をご提供するため
- ※当社における個人情報の取扱い詳細については、当社の個人情報の取扱い方針をご参照ください
ローン・購入について、不動産会社に相談
お問合せ方法
不動産会社へのお問合せは、下記の3種類からお選びいただけます。
※不動産会社へのお問合せには料金は発生しません
物件に関して気になっていることを相談できます
不動産会社からメールで連絡がありますので、内見の相談をメール上で行うことも可能です。
内見したい日時が決まっている方
不動産会社から折り返し連絡がありますので、日程調整を行ってください。
物件の空き状況など今すぐ確認できます
直接お話しを聞きたい場合は電話でのお問合せも可能です。営業時間を確認の上、電話をおかけください。
予算を検討する
予算条件を入力
おうち予算シミュレーション年齢・子供の有無・世帯収入などから、購入できる住宅価格の目安を詳細に計算できます。
住宅ローン診断一番おトクな住宅ローンを比較・診断します。提供元:モゲチェック
今の家、いくらで売れる?売却額で購入予算と月々の支払いが変わります。ローン・購入について、不動産会社に相談
お問合せ方法
不動産会社へのお問合せは、下記の3種類からお選びいただけます。
※不動産会社へのお問合せには料金は発生しません
物件に関して気になっていることを相談できます
不動産会社からメールで連絡がありますので、内見の相談をメール上で行うことも可能です。
内見したい日時が決まっている方
不動産会社から折り返し連絡がありますので、日程調整を行ってください。
物件の空き状況など今すぐ確認できます
直接お話しを聞きたい場合は電話でのお問合せも可能です。営業時間を確認の上、電話をおかけください。
お問合せ(無料)
お問合せの前に確認!
問合せ先:有限会社不動産の英和
不動産会社にお問合せ(無料)
お問合せ先
有限会社不動産の英和
- 営業時間
- 09:00 〜 19:00
- 定休日
- -
物件を保存・共有する
LINEで共有
URLをコピー
物件情報ページのQRコード
QRコードを読み取ると、物件情報ページが開きます
お問合せの注意事項
- ※お客様の電話番号は不動産会社に通知されません
- ※光IP電話、及びIP電話からはご利用になれません
- ※お電話によるお問合せは、店舗営業時間内にお願いします
- ※不動産会社がお電話に出られなかった場合、お問合せいただいた後に不動産会社より折り返しのお電話がある場合がございます(電話会社が提供するサービスを介して折り返しお電話をするため、この場合においてもお客様の電話番号は不動産会社に通知されません。)
- ※携帯電話からお問合せいただいた方には、電話会社が提供するメッセージサービスを介してショートメッセージ(SMS)またはLINE通知メッセージによるお問合せ内容に関する通知をお届けする場合があります
- ※お客様が通話中に不動産会社にお伝えになったお客様の個人情報及び、電話会社が発番する折り返し専用の電話番号は、お問合せ先不動産会社が資料送付・電子メール送信・電話連絡などの目的で保管する可能性があります。お問合せ先不動産会社が保管する個人情報の取扱いについては、各不動産会社に直接お問合せください
- ※株式会社LIFULLでは本サービスを円滑に運用するために、お客様の発信者番号をサービスご利用の控えとして一定期間保管いたします
- ※上記および株式会社LIFULLの個人情報の取扱い方針に同意のうえ、お問合せください
- ※不動産会社の方からの上記電話番号によるお問合せはお断りしております
- ※各種情報と現状に差異がある場合は、現状優先となります
- ※不動産会社が入力した情報を基に物件付近の地図を表示しており、物件の所在地を示したものではありません。詳しくは不動産会社までお問合せください
- ※QRコードは株式会社デンソーウェーブの登録商標です
ご意見をお寄せください
サイトへのリクエスト・ご意見
みなさまからのリクエストやご意見を参考に、サイト改善に取り組んでいます。
物件情報に誤りがある場合
LIFULL HOME'Sは物件鮮度No.1を目指していきます。お気づきの点がございましたら、ご連絡ください。
LIFULL HOME'S 地図・周辺情報
「周辺施設・災害リスク」を表示するには縮尺を変える必要があります。
この物件周辺の施設一覧
買い物:日用品
- ファミリーマート 大津黒津店
- ドラッグユタカ大津黒津店
- エフ・マーケットもみじヶ丘店
- ファミリーマート 大津稲津一丁目店
- ドラッグユタカ南郷店
買い物:大型店
- ワークマン 大津石山店
グルメ
- 天下一品田上店
- 小僧寿し南郷店
娯楽施設
- 田上公園プール
- 田上公園テニスコート
- 田上公園
- 南郷公園プール
- 田上公園グラウンド
文化施設
- 田上鉱物博物館
役所・公共施設
- 関ノ津郵便局
- 大津南郷郵便局
- 石山別所郵便局
保育施設
- 大津市立田上幼稚園
- 田上保育園
- 大津市立南郷幼稚園
- 保育の家しょうなん
- 大津市立石山幼稚園
学校
- 大津市立田上小学校
- 大津市立田上中学校
- 国立滋賀大学教育学部
- 大津市立南郷小学校
- 大津市立石山中学校
- 周辺施設について
- 周辺施設は、参考情報としてのみご利用ください(周辺施設は、株式会社LIFULLが地図情報の提供事業者から提供を受けた情報とLIFULL HOME’Sの物件情報に基づき、独自の方法で抽出し提供しているものです。周辺施設は、移転や閉鎖等により情報が最新ではない、または正しくない場合がありますが、地図情報の提供事業者から提供された情報をそのまま周辺施設として表示しているため、正確かつ最新の情報へ修正することができないことがあります。)
- 周辺施設は、株式会社LIFULLが掲載するものであり、不動産物件情報を掲載している不動産会社が掲載するものではありません
- 避難所以外の周辺情報は2023年7月21日時点のものになります
- 避難所について
- データ出典:国土交通省 国土政策局 国土数値情報 「国土数値情報 避難施設データ」(平成24年度)をもとに株式会社LIFULLが編集・加工
- 開設が必要な施設もあります。避難の際や、最新の情報は自治体へご確認ください。
- 本データは、原則として地方公共団体の地域防災計画に記載された避難所リストを参考にしています。ただし、地方公共団体によっては、他の情報源から整備しているものもあり、地方公共団体ごとの避難施設データの整備基準が異なりますので、注意ください。
- 本データの利用により、ご利用者様又は第三者に生じた損害については、ご利用者様がその責任を負うものとし、当社および出典元である国土交通省国土情報課、各データの原典作成者は一切責任を負いません。
- 学区について
- 学区情報は参考情報としてお客様にご活用いただくものです。
- 学区情報の正確性、完全性、最新性などについて、保証いたしかねます。
- ご判断については、各自治体の教育委員会にもご確認されるなどされたうえで、お客様自身のご責任で行ってください。
- お客様は、自己の責任に基づき本サービスを利用するものとし、事由の如何を問わず、株式会社LIFULL、物件を掲載している不動産会社、データ提供元は一切責任を負いません。
- 本サービスは予告なく終了する場合があります。
- 本データは、合同会社ジオ・ケイが提供する学校区データベース小学校・中学校【2020年度版】を株式会社LIFULLが加工のうえ、表示したものです。
- 学区は随時見直しの対象となり、最新のデータは各自治体の教育委員会が保有しています。
この物件は、最大浸水深が指定されていないエリアにあります。
この物件は、最大浸水深が50cm未満のエリアにあります。
この物件は、最大浸水深が1m未満のエリアにあります。
この物件は、最大浸水深が2m未満のエリアにあります。
この物件は、最大浸水深が5m未満のエリアにあります。
この物件は、最大浸水深が5m以上のエリアにあります。
指定されていないエリアです。しかし、この災害リスクは76mメッシュで評価したものでピンポイントで安全性を見るものではありません。必ず現地では物件周辺をチェックし周囲との高低差を確認しましょう。
一般的な一戸建てで浸水深が50cm未満の場合には床下浸水の可能性があります。土地が周囲から想定される浸水深以上に高い、高くなるようにかさ上げされている、建物の基礎が高く作られている、1階に居住スペースが作られていないなどの場合には浸水せずに済むこともあり得るので、実際の土地、建物と周囲の関係、浸水対策などを確認してみましょう。
一般的な一戸建ての場合、浸水深が50cm以上になると床上浸水する恐れがあり、2mとなると1階軒下まで水が来ると考えられます。その危険を考えるとリビングなど生活の場は2階以上を中心にしておくのが現実的でしょう。大きな家具、家電は1階に置かない、エアコンの室外機や外部電源は浸水を避けられる位置につける、子どもや高齢者のいる家庭では階段を使いやすいものにしておくなどの工夫も考えられます。
一般的な一戸建ての場合、浸水深が2mとなると1階部分まで、5mとなると2階軒下まで水が来ると考えられます。この場合、建物内での避難は難しいため、台風、豪雨等の情報には常に注意を払い、遅れることなく避難できるようにしましょう。そのためには立地のチェックが大事です。近隣の避難場所を確認するだけではなく、避難場所への経路に土地が低いなどで通れなくなる場所がないかなども現地で確認しましょう。市町村を超えた広域避難が呼びかけられている場所では親戚、友人宅など避難できる場所をあらかじめ確保しておくことも大事です。
この物件は、土砂災害警戒区域に指定されていないエリアにあります。
この物件は、土砂災害警戒区域に指定されているエリアにある可能性があります。
この物件は、土砂災害特別警戒区域に指定されているエリアにある可能性があります。
指定されていないエリアです。しかし、この災害リスクは250mメッシュで評価したものでピンポイントで安全性を見るものではありません。土砂災害警戒区域・土砂災害特別警戒区域内に立地する建物については、不動産取引での説明が義務付けられています。物件が該当するかは、不動産会社にお問い合わせください。
各都道府県が調査・区域指定をしている土砂災害が発生した場合に、住民に危害が生ずるおそれがあると認められる区域です。この災害リスクは250mメッシュで評価したもので、実際とは異なる可能性があります。土砂災害警戒区域・土砂災害特別警戒区域内に立地する建物については、不動産取引での説明が義務付けられています。物件が該当するかは、不動産会社にお問い合わせください。
この物件は、液状化リスクが不明なエリアにあります。
この物件は、液状化リスクが低いエリアにあります。
この物件は、液状化リスクがやや低いエリアにあります。
この物件は、液状化リスクがやや高いエリアにあります。
この物件は、液状化リスクが高いエリアにあります。
この物件は、液状化リスクが非常に高いエリアにあります。
液状化リスクは表層地盤の地形から評価したもので、地盤改良工事でリスクを軽減することができます。液状化は震度5以上の地震で起こりやすく、地盤沈下や路面の亀裂、地中の下水道管が隆起・破損が発生することがあるため、周辺施設のチェックも必要です。購入前には必ず物件の地盤調査、地盤改良の有無を不動産会社に確認しましょう。
この物件は、最大震度が不明なエリアにあります。
この物件は、最大震度5弱以下が予測されるエリアにあります。
この物件は、最大震度5強が予測されるエリアにあります。
この物件は、最大震度6弱が予測されるエリアにあります。
この物件は、最大震度6強が予測されるエリアにあります。
この物件は、最大震度7が予測されるエリアにあります。
震度5強以下の地震が起きた場合でも、新耐震基準の物件は軽微なひび割れ程度に留まる設計がされています。予測データでは比較的に地震の揺れが大きくないエリアですが、耐震性能は工法やメーカーによって異なります。長く安心して住むために耐震性能に加え、耐久性、メンテナンスのしやすいかを不動産会社に確認しましょう。
震度6弱以上の地震が起きた場合、耐震性能が低い一戸建ての場合は倒壊しないものの、ひび割れ等の被害が想定されます。予測データでは比較的に地震の揺れが大きなエリアなので、住宅の耐震性能について不動産会社に確認しましょう。長く安心して住むために耐震性能に加え、耐久性、メンテナンスのしやすさもポイントです。
災害リスク情報は、株式会社LIFULLが掲載するものであり、不動産物件情報を掲載している不動産会社が掲載するものではありません
災害リスク情報は、参考情報として提供するものです。災害リスク情報の正確性・完全性・最新性について保証するものではありません。本サービス利用により生じた損害等について、株式会社LIFULLおよび各データの出典元は一切責任を負いません
地図の拡大レベルによっては、エリアに表示される災害レベルが変わることがあります
ハザード情報のご利用について
詳細なハザード情報は
提供元データをご確認ください
本情報は、株式会社LIFULLが地図情報の提供事業者から提供を受けた情報とLIFULL HOME'Sの物件情報に基づき、独自の方法で抽出・加工し提供しているものです。ハザード情報を詳しくお調べになりたい場合は、提供元の情報または自治体の公表データをご確認ください
※本情報は、株式会社LIFULLが掲載するものであり、不動産会社が掲載するものではありません
外観

1/1
- 外観
その他

1/2
- その他

2/2
- その他