このページは物件の広告情報ではありません。
過去にLIFULL HOME'Sへ掲載された不動産情報と提携先の地図情報を元に生成した参考情報です。また、一般から投稿された情報など主観的な情報も含みます。
情報更新日: 2026/04/02
サーパス大分金池
スポンサーリンク
サーパス大分金池の建物情報
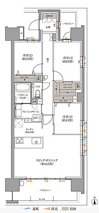
物件概要
| 物件種別 | マンション |
|---|---|
| 築年月(築年数) | 2027年1月 (完成予定) |
| 建物構造 | 鉄筋コンクリート造 地上14階・地下1階建て |
| 総戸数/総区画数 | 38戸 |
| 敷地全体面積 | 728.78m2 |
| 延べ床面積 | 311.13m2 |
| 用途地域 | 商業 |
| 地目 | 宅地 |
| 土地権利 | 所有権 |
| 建築確認番号 | 第ERI-24029088号(2024年10月16日) |
| 施工会社 | 株式会社穴吹工務店 |
| 売主 | 株式会社穴吹工務店 福岡支店 |
| 販売会社 | 株式会社大京(販売提携・媒介) |
設備・条件
- 追い焚き
- 浴室乾燥機
- コンロ三口以上
- システムキッチン
- 食器洗い乾燥機
- 高効率給湯器
- 浄水器・活水器
- ウォークインクローゼット
- シングル&DINKS向け
- 複層ガラス採用(二重サッシ・防犯サッシ等)
- オートロック
- 防犯カメラ
- セキュリティ充実
- エレベーター
- 宅配ボックス
- 南向き
- 環境にやさしい
- 子育てに優しい環境
- スーパー800m以内
- コンビニ400m以内
- 小学校800m以内
- 公園400m以内
※最新の状態と異なる場合があります
売りたい不動産をお持ちの方へ
このエリアの所有不動産を査定する
売却査定手続きの流れ、費用相場や注意点など不動産売却について詳しく知りたい方はLIFULL HOME'S 不動産査定へ
サーパス大分金池の周辺施設
-
買い物
日用品 -
- ローソン 大分顕徳町店
- セブンイレブン 大分要町店
- セブンイレブン 大分金池町店
- ファミリーマート 大分府内町店
- 買い物
大型店 -
- ユナイテッドアローズ大分店
- ミキハウス大分トキハ本店
- トキハ 本店
- トキハ本店
- グルメ
-
- ガスト 大分駅前店(から好し取扱店)
- モスバーガー 大分駅前店
- 焼肉酒家牛角大分府内店
- カフェ・ド・クリエ大分トキハ店
- 娯楽施設
-
- ルネサンスおおいた
- お部屋ラボ祝祭の広場
- シネマ5
- シネマ5bis
- 公園
-
- 遊歩公園
- 文化施設
-
- アートプラザ
- 役所
公共施設 -
- 大分市民図書館コンパルホール分館
- 大分県庁内郵便局
- 大分駅内郵便局
- 大分県警察本部
- 医療
-
- 整形外科八木病院
- 医療法人慈善会膳所胃腸肛門泌尿器病院
- 社会医療法人恵愛会大分中村病院
- 圭成会大分泌尿器科病院
- 保育施設
-
- 大分市立かないけ認定こども園
- ゆめのほし保育園
- かがやきの森こども園
- 中央町保育園
- 学校
-
- 大分市立金池小学校
- 大分市立上野ケ丘中学校
- 大分市立長浜小学校
- 私立楊志館高校
※学区外の学校が含まれる場合があります。実際の学区は必ず各自治体へご確認ください。
サーパス大分金池周辺の物件情報
周辺の問合せ可能な物件
大分県大分市の問合せ可能な物件のうち、この物件の周辺にあるものから表示しています
賃貸
-
募集中
- きさらぎビル
- 5.2万円
- JR日豊本線 大分駅 徒歩8分
- 大分県大分市金池町2丁目
- 52.84m² / 1LDK
-
募集中
- ヴィータセレーナ金池
- 6.5万円
- JR日豊本線 大分駅 徒歩12分
- 大分県大分市金池町3丁目
- 31.7m² / 1LDK
-
募集中
- Grand JADE金池
- 5.7万円
- JR日豊本線 大分駅 徒歩8分
- 大分県大分市金池町3丁目
- 29.2m² / 1K
-
募集中
- ロイヤルヒルズ金池
- 12.8万円
- JR日豊本線 大分駅 徒歩11分
- 大分県大分市金池町3丁目
- 70.53m² / 3LDK
-
募集中
- ラトゥール金池
- 3.3万円
- JR日豊本線 大分駅 徒歩8分
- 大分県大分市金池町1丁目
- 25.2m² / 1K
-
募集中
- サンシティ金池509号
- 3.3万円
- JR日豊本線 大分駅 徒歩5分
- 大分県大分市金池町1丁目
- 22.36m² / 1DK
-
募集中
- サンシティ吉成805号
- 3.6万円
- JR日豊本線 大分駅 徒歩6分
- 大分県大分市金池町1丁目
- 24.74m² / 1DK
-
募集中
- 金池マンション 305号
- 3.9万円
- JR日豊本線 大分駅 徒歩5分
- 大分県大分市金池町2丁目
- 33.62m² / 1LDK
-
募集中
- シャルマン外堀
- 4.3万円
- JR日豊本線 大分駅 徒歩12分
- 大分県大分市大手町1丁目
- 25.0m² / 1K
-
募集中
- EverGreen顕徳
- 5.4万円
- JR日豊本線 大分駅 徒歩9分
- 大分県大分市顕徳町1丁目
- 34.78m² / 1DK
新築マンション
※完成後1年以上経過した未入居の物件が含まれている場合があります
-
売出し中
- JR久大本線「大分」駅 徒歩6分 (約460m)
- 4,240万円(1戸)~7,190万円(1戸)
- JR久大本線「大分」駅 徒歩6分 (約460m)
- 大分県大分市東大道2丁目108番
- 79.8m² / 2LDK・3LDK・4LDK
-
売出し中
- JR久大本線「大分」駅 徒歩3分 (北口)
- 3,190万円~5,610万円
- JR久大本線「大分」駅 徒歩3分 (北口)
- 大分県大分市末広町1丁目33(地番)
- 85.42m² / 1LDK~4LDK
-
売出し中
- 大分バス 県庁前バス停 徒歩3分 (約240m)※サブエントランス利用
- 未定
- 大分バス 県庁前バス停 徒歩3分 (約240m)※サブエントランス利用
- 大分県大分市大手町3丁目1-2,1-4,3-2,4-1,5-2,9,10-1,10-2,13,14-1,14-2
- 102.56m² / 2LDK、3LDK、4LDK
-
売出し中
- JR日豊本線「牧」駅 徒歩7分
- 2,700万円台~5,000万円台(予定)
- JR日豊本線「牧」駅 徒歩7分
- 大分県大分市大字下郡字尾西1607番9、1607番4、大分県大分市大字牧字空1045番6(地番)
- 92.0m² / 3LDK・4LDK
-
売出し中
- JR久大本線「大分」駅 徒歩5分 (約330m)
- 3,310万円~6,230万円
- JR久大本線「大分」駅 徒歩5分 (約330m)
- 大分県大分市金池町2丁目2709-2
- 71.25m² / 1LDK、2LDK、3LDK
-
売出し中
- JR日豊本線「大分」駅 徒歩2分
- 6,720万円~11,500万円
- JR日豊本線「大分」駅 徒歩2分
- 大分県大分市末広町一丁目200番(地番)
- 101.55m² / 3LDK(10戸)・4LDK(3戸)
-
売出し中
- プレミストタワー大分
- 2億円
- JR日豊本線 大分駅 徒歩5分
- 大分県大分市末広町1丁目
- 95.01m² / 2LDK
中古マンション
-
売出し中
- パークサイド大分駅まえ
- 4980万円
- JR日豊本線 大分駅 徒歩5分
- 大分県大分市金池町2丁目7-21
- 180.08m² / 5SLDK
-
売出し中
- サンシティ金池
- 348万円
- JR日豊本線 大分駅 徒歩4分
- 大分県大分市金池町1丁目5-7
- 23.52m² / 1DK
-
売出し中
- 三和コーポ大手町13号
- 269万円
- JR久大本線 大分駅 徒歩14分
- 大分県大分市大手町1丁目2-5
- 54.35m² / 3DK
-
売出し中
- サンパーク金池イクシア
- 1億4800万円
- JR久大本線 大分駅 徒歩8分
- 大分県大分市顕徳町1丁目
- 103.66m² / 4LDK
-
売出し中
- MJR大分駅前
- 4580万円
- JR日豊本線 大分駅 徒歩4分
- 大分県大分市要町
- 81.24m² / 3LDK
-
売出し中
- グラディス大分駅前
- 4500万円
- JR日豊本線 大分駅 徒歩4分
- 大分県大分市要町5-20
- 60.16m² / 2LDK
-
売出し中
- サンライズ長浜
- 1100万円
- JR日豊本線 大分駅 徒歩19分
- 大分県大分市長浜町1丁目
- 79.38m² / 3LDK
-
売出し中
- M&M長浜
- 2200万円
- JR日豊本線 大分駅 徒歩20分
- 大分県大分市長浜町1丁目12-3
- 87.63m² / 3LDK
-
売出し中
- 皐月マンション第3大分
- 1000万円
- JR日豊本線 大分駅 徒歩20分
- 大分県大分市長浜町1丁目11-3
- 61.34m² / 3DK
-
売出し中
- サーパス上野
- 2700万円
- JR日豊本線 大分駅 徒歩17分
- 大分県大分市上野町11-31
- 67.61m² / 2LDK
一戸建て
-
売出し中
- 長浜町2丁目中古
- 3800万円
- JR日豊本線 大分駅 徒歩18分
- 大分県大分市長浜町2丁目6番地1
- 121.74m² / 7DK
-
売出し中
- 上野丘W 新築
- 6480万円
- JR日豊本線 大分駅 徒歩12分
- 大分県大分市上野丘1丁目1番11号(1025番3)
- 113.06m² / 4LDK
-
売出し中
- 上野丘E 新築
- 6980万円
- JR日豊本線 大分駅 徒歩12分
- 大分県大分市上野丘1丁目1番12号(1025番4)
- 113.61m² / 3LDK
-
売出し中
- HT長浜
- 4200万円
- JR日豊本線 大分駅 徒歩24分
- 大分県大分市長浜町3丁目3863-1
- 107.44m² / 3LDK
-
売出し中
- JR豊肥本線「大分」駅 徒歩15分
- 6,180万円
- JR豊肥本線「大分」駅 徒歩15分
- 大分県大分市田室町1154番18、22一部
- 109.64m² / 4LDK(1号地)
-
売出し中
- 大分 新川1丁目
- 3690万円
- JR日豊本線 大分駅 徒歩23分
- 大分県大分市新川町1丁目1215-6
- 106.4m² / 5LDK
-
売出し中
- 今津留2丁目1期1号棟
- 3798万円
- JR日豊本線 牧駅 徒歩20分
- 大分県大分市今津留2丁目88番
- 105.25m² / 4LDK
-
売出し中
- 豊町1丁目 中古戸建
- 2880万円
- JR久大本線 大分駅 徒歩35分
- 大分県大分市豊町1丁目
- 82.8m² / 3LDK
-
売出し中
- 西大道 新築
- 4980万円
- JR日豊本線 大分駅 徒歩25分
- 大分県大分市西大道3丁目584番1
- 113.61m² / 3LDK
-
売出し中
- 今津留第1-2号棟
- 3188万円
- JR日豊本線 牧駅 徒歩19分
- 大分県大分市今津留3丁目
- 94.77m² / 4LDK
注文住宅
※表示価格は延べ床面積約132m²の場合の建物価格の参考値です
-
資料請求受付中
- 3000万円〜
- 株式会社スウェーデンハウス
- 【スウェーデンハウス】お客様満足度総合第1位の声「No.1 Sweden House News」
-
資料請求受付中
- 3000万円〜
- セキスイハイム
- 【セキスイハイム】総合カタログ(heimism)
-
資料請求受付中
- 2800万円〜
- ミサワホーム株式会社
- 【MISAWA】ミサワホーム代表カタログ3冊セット(HOME'S限定)
-
資料請求受付中
- 2000万円〜
- 一条工務店
- 【一条工務店】 建築実例集3冊セット(HOME’S限定)
-
資料請求受付中
- 1868万円〜
- タマホーム株式会社
- 大安心の家シリーズ
-
資料請求受付中
- -
- 積水ハウス
- BRAND BOOK
-
資料請求受付中
- 3200万円〜
- 大和ハウス
- 【大和ハウス】 xevoΣ<ジーヴォシグマ> ~天井高2m72cmの高さというゆとり空間~
-
資料請求受付中
- 1660万円〜
- クリエイトホームズ大分中央店
- Sourire
エリア・駅で絞り込んで探す
大分県のサーパスが含まれるマンション
周辺の建物情報
物件の種類から探す
大分市で募集中の物件のみを検索できます
掲載情報に誤りや問題がある場合
LIFULL HOME'Sは「不動産会社」ではなく「情報掲載サイト」です
- ※管理会社の情報はLIFULL HOME'Sでは保持していないためお答えできません。お問合せはお控えください
- ※最新の募集状況は掲載中の不動産会社があれば、不動産会社へ直接お問合せください
掲載情報の訂正依頼 専用ダイヤル
0120-987-243
- 専用ダイヤル受付時間:10:00〜18:00
- ※土日・祝日、臨時休業日は除く
不動産データのご利用について
不動産事業におけるDX、サービスの改善、新規事業開発等をご検討中の方へ不動産データの活用をご提案します。LIFULL HOME'Sで集約した不動産情報や外部データは、不動産事業DX、不正決済防止、ローン審査、事業開発、研究等さまざまな事業でご活用いただいています。詳しくは以下よりご確認ください。
不動産アーカイブご利用アンケートにご協力ください
不動産アーカイブの掲載情報は、LIFULL HOME'S掲載の不動産情報および提携先の不動産情報を統計情報として集積したものであり、その存在や信憑性を保証するものではありません。