パークタワー向ヶ丘遊園のモデルルームに行ってきました!
本コンテンツは、株式会社LIFULLからライターに依頼し、コメントを一部編集して掲載しています。
女性にやさしいマンション情報「WoMansion」は、女性ライターが新築分譲マンションのモデルルームを訪問し、見たこと、聞いたこと、感じたことを紹介します。
(モデルルーム訪問日:2024年2月27日)
こんにちは、夫と2人暮らしをしているyumiです。 駅前に立つランドマークのようなタワーマンションを見るたびに、こんなところに住みたいなと憧れます。今回は駅徒歩わずか2分の場所に立つ「パークタワー向ヶ丘遊園」のモデルルームを訪問してきました。急行停車駅という交通利便性の良さ、開発により整えられる街の便利さ、多摩地域の自然の豊かさなど魅力がつまったマンションです。
目次
駅徒歩2分、新宿駅まで直通21分の好立地
「パークタワー向ヶ丘遊園」は急行・通勤急行が停車する小田急小田原線「向ヶ丘遊園」駅まで徒歩2分、快速急行が停車する小田急小田原線「登戸」駅まで徒歩7分、JR南武線「登戸」駅まで徒歩8分の立地。3駅2路線を使うことができます。
「向ヶ丘遊園」駅からは通勤急行利用で「新宿」駅まで直通21分、「下北沢」駅から京王井の頭線に乗り換えて「渋谷」駅まで26分。小田急線は東京メトロ千代田線に乗り入れているので、通勤急行を利用し「代々木上原」駅から千代田線に乗り換えて「表参道」駅まで21分、「大手町」駅まで36分。都心まで快適にアクセスできます。また、急行・準急・各停の始発駅なので通勤時間帯の7時から8時にかけて10本の始発があり、うち7本は千代田線直通。座って通勤できるのはいいですね。
「川崎」駅方面に向かうならJR「登戸」駅が便利。JR南武線利用、直通で「武蔵小杉」駅まで18分、「川崎」駅まで31分。勤務地や通学先が川崎や横浜にある人にも便利な立地です。

交通アクセス図。図中の「武蔵小杉」駅と「川崎」駅までの所要時間は「向ヶ丘遊園」駅から小田急線を利用し、「登戸」駅でJR南武線に乗り換えて到着駅までの時間となります
掲載の所要時間は通勤時を表示しており時間帯により異なります。また、乗り換え・待ち時間を含んでおります。(2023年8月時点)
<物件概要>
所在地: 神奈川県川崎市多摩区登戸土地区画整理事業施工地区内51街区1-1画地他(仮換地指定済)(地番)
神奈川県川崎市多摩区登戸字戊耕地2085番5他(従前地)川崎市多摩区登戸字戊耕地2162番1(の一部)他(底地)(地番)
交通:小田急電鉄小田原線「向ヶ丘遊園」駅 徒歩2分、小田急電鉄小田原線「登戸」駅 徒歩7分、南武線「登戸」駅 徒歩8分
総戸数:241戸(一般販売対象戸数201戸、ほかに店舗5戸)
階数:地上25階建て
引き渡し年月:2025年12月下旬入居予定
施工会社:三井住友建設株式会社
売主:三井不動産レジデンシャル株式会社、小田急不動産株式会社
開発が進む街の利便性と豊かな自然を享受できる環境
「登戸」駅から「向ヶ丘遊園」駅にかけては、総面積約37.2ヘクタールになる大規模な土地区画整理事業が行われ、宅地や道路の整備、電柱の地中化などが進められています。この事業の一環として整備される約5,400m2の「向ヶ丘遊園駅北口駅前広場」の前に「パークタワー向ヶ丘遊園」は建設されます。
駅北口改札を出ると、駅前広場を挟んで正面にマンションの建設現場が見え、徒歩2分という近さを実感しました。マンションの横には、2023年5月に開通した「向ヶ丘遊園」駅から「登戸」駅を結ぶ道路「登戸2号線」があり、この道はマンションから「登戸」駅までのルートとなります。“居心地がよく、歩きたくなる通り”を目指して幅広い歩道が造られ、憩いや交流の場となるベンチなどが設置される予定。訪問時、まだ歩道などは整備中でしたが、完成したら歩くのが楽しい道になりそうです。

左:登戸土地区画整理事業エリア図。駅前地区、住宅地地区、界隈商業地区などそれぞれに目的を定めて開発が行われています 右:駅改札を出てすぐ、正面に見える建設現地。手前の空き地が駅前広場となります
「向ヶ丘遊園」駅は開発が進められている街ですが、もともと住宅地だったため、生活利便施設はしっかりそろっています。徒歩圏内にスーパーが3軒あり、食品も扱っている大型ドラッグストアやコンビニエンスストア、100円均一ショップなども点在しています。

現地案内図。整備中の登戸2号線沿いに建つ新しいビルには店舗が入る予定だとモデルルームでお聞きしましした
近いスーパーマーケットは「Odakyu OX 向ヶ丘遊園店」(徒歩4分、約270m)、「オーケー登戸店」(徒歩4分、約320m)。それぞれに特徴があり買い物のスタイルや目的で選べます。私なら品ぞろえが豊富な「オーケー」をメイン使いしながら、いつもと違う商品が欲しいときに「Odakyu OX」を使うかなと思いました。「登戸」駅を利用するなら、駅前にある「マルエツ 登戸駅前店」(徒歩6分、約450m)が便利です。深夜1時まで営業しているので、帰宅が遅くなったときも重宝しそう。そのほか、駅南口側には2024年4月に商業施設「クロス向ヶ丘」がオープンし、家電量販店「ノジマ クロス向ヶ丘店」が入ります。日常生活で必要な買い物は駅周辺でほとんど済ますことができますね。さらにマンション1階と2階には複数の店舗が入る予定。どんな店が入るのかまだ決まっていませんが、この街での暮らしをさらに魅力的にしてくれそうです。
便利だなと思ったのが多摩区総合庁舎(徒歩4分、約320m)が近いこと。庁舎内には多摩区役所のほかに、市民館、図書館、休日夜間急患診療所が入っています。すぐそばに急なときでも診てもらえる診療所があるのは心強いですね。

左:「Odakyu OX 向ヶ丘遊園店」(徒歩4分、約270m)。この通りは新しい建物が並んでいて、1階にはカフェやパティスリーなどが入っていました。お気に入りの店を見つけるのも楽しそう 中:オープンを控えた新しい商業施設「クロス向ヶ丘」 右:モデルルームでいただいた街紹介パンフレットにも載っていたベーカリー。パンがあまりにもおいしそうなのでたくさん買ってしまいました。おいしかったです!
いちばん近い公園は「クローバー広場」があった場所に造られる「登戸2号街区公園」(徒歩3分、約210m)。2024年以降に整備に取りかかる予定で、訪問時は、まだ更地のままでした。モデルルームでお聞きしたところ、公園内にカフェを造る計画もあるのだそう。どんな公園になるのか楽しみですね。ほかに「登戸1号街区公園」(徒歩5分、約400m)、「登戸第一公園」(徒歩9分、約650m)が近くにあります。
向ヶ丘遊園の魅力は、多摩丘陵や多摩川の自然を身近に親しめることでしょう。その一つが緑の宝庫「生田緑地」(徒歩12分、約940m)。多摩丘陵の自然をそのまま生かして造られた緑地内には雑木林や湧き水などがあり、ランチ持参で訪れれば、郊外の野山にピクニックに出かけた気分になります。園内には広々とした芝生の「中央広場」や「市立日本民家園」(徒歩17分、約1,290m)、「川崎市岡本太郎美術館」(約2,130m)、「かわさき宙と緑の科学館」(徒歩19分、約1,450m)があります。いちばん高い場所にある「枡形山広場」の展望台からは富士山が見える日もあるそうです。私が行ったときは、富士山は見えませんでしたが、マンションの眺望と同じ方角に緑いっぱいの景色が広がっていて、部屋からこんな景色が眺められるんだなと思うとうらやましくなりました。

左:生田緑地の中央広場 右:「枡形山広場」。桜の名所としても有名です
「パークタワー向ヶ丘遊園」は多摩川へも歩ける距離。河川敷に広がる「稲田多摩川公園」(徒歩9分、約720m)は、遊具などはないですが、広々としていて心地よい公園。散歩をしたり、ベンチでくつろいだりしている人も見かけました。夏には「狛江・多摩川花火大会」が開催されます。例年、毎年行われており、コロナがあったため昨年が4年ぶりの開催となりました。家族みんなの夏の楽しみになりそうですね。

「稲田多摩川公園」。休日には野球やサッカーなどを楽しむ子どもたちでにぎわうそう
通学校は「市立登戸小学校」(徒歩13分、約980m ※通学路)。2023年に創立150周年を迎えた歴史ある小学校です。
駅前の風景を変える、ランドマーク!
「パークタワー向ヶ丘遊園」の敷地は4方接道、南側は前述した駅前広場になり、駅近とは思えない開放感のある恵まれた立地です。

建設現地(南西側)
マンションは南側を中心に東西に扇のように広がる形状になっています。南向き住戸が多く、一部住戸が西向きと東向きとなります。総合設計制度を利用しているため25階建ての高層マンションが実現しました。開口部側にはほとんど高い建物はなく、南東向きや南西向きなら多摩丘陵が、北東向きなら多摩川や都心の風景が眺められます。南東側に23階建てのマンションが立っており、南東側住戸の視野に入ってきますが、位置が少しずれているので、真正面に向き合うことはないでしょう。

立地概念図。南側開口部は駅前広場に面し、その向こうは駅舎、5階建ての建物と続き、高い建物はありません
1階と2階は店舗、3階は共用施設、住居は4階からとなります。敷地北側にはタワーパーキング、北東側には約590m2の広々とした公開空地を配置。公開空地には四季折々の花々が楽しめる植栽のほか、人工芝のスペースも設けられるので、子どもの遊び場としても利用できます。

敷地配置・1階完成予想イラスト。商業施設の出入り口は南側、居住者専用エントランスは東側としっかり分けられています
外観は駅前のランドマークにふさわしく、存在感のある洗練されたデザインだなと思いました。多摩地域の豊かな自然をテーマに基壇部はガラスウォールを多用し、東から西にかけて約10mの高木を等間隔に植樹。ガラスウォールに緑が映り込む景色は都会的でかっこよく、駅前でひときわ目を引きそう。住居エリアとなる上層階は、中住戸のバルコニーに重厚感のあるタイル、角住戸は軽やかなガラスの手すりと異なる素材が使われ、落ち着いた雰囲気。駅の正面になる南の妻側は、シックな濃色のブラウンタイルを使って目立たせ、角を落としたやわらかい印象のあるデザインで、改札を出て見上げれば、きっと誇らしく思うでしょう。

左:外観完成予想CG。濃いブラウンの色調の部分が駅を出たら真正面に見えます。かっこいいです! 右:エントランス完成予想CG。エントランス入り口には、天然石を使ったゲートを設置し、高級感を演出します
共用施設には「ワーキングスペース」「キッズスペース」「グランピングルーム」「スカイラウンジ」「屋上テラス」とタワーマンションならではの充実した内容。「キッズスペース」は半屋外になったユニークな空間で人工芝の上で風を感じながら、思いっきり遊べそう。最上階には「スカイラウンジ」、屋上にはテラスが造られ、低層階で暮らしてもタワーマンションならではの眺望を楽しめるのがいいですね。
自転車置き場は総戸数241戸に対して482台が駐輪可能。1戸当たり2台置くことができます。屋外と3階に設けられ、屋外は38台なので、ほとんどの自転車を屋内に置くことができます。駐車場はタワーパーキングと平置き合わせて155台分用意されています。設置率62%と高く、子育て中で車が必要な家族にはうれしいですね。

左:キッズスペース完成予想CG。壁面は自由に落書きができるようになっています 右:ワーキングスペース完成予想CG。ワーキングスペースには個室も用意されています
開放感を楽しむマンションにふさわしいゆとりの間取りと充実した設備仕様
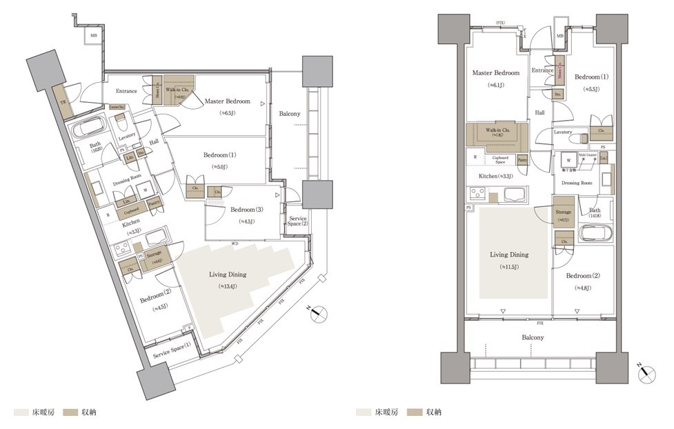
間取りは1LDK~4LDK、専有面積は37.16m2~84.19m2(一部住戸はトランクルーム面積1.05m2~1.27m2を含みます)。前述したように開放感のある立地なので、どの向きの住戸も日当たり、通風のよさが期待できます。間取りの種類は12タイプあり、そのうち70m2以上のゆとりあるものが6タイプと豊富なのが魅力。
バルコニー側の室内には梁や柱の出っ張りがなく、部屋の隅がスッキリとしているのがいいなと思いました。家具などが配置しやすく、部屋も実際の面積より広く感じられます。

左:こんな部屋に住みたいなと思った憧れの間取り、F type、4LDK+WIC+S+TR、84.19m2。南側に面した広々としたリビングが気持ちよさそう! 右:C type、3LDK+WIC+S、71.46m2。収納スペースが充実。ユニークなのが、洗濯機置き場横のランドリースペース。物干金物があるので、天気の悪い日はここで洗濯物が干せます
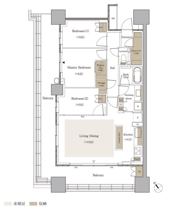
一部の住戸はプレミアムプランとなります。タワーマンションの場合、階層でグレードが分かれることがよくありますが、「パークタワー向ケ丘遊園」では部屋のタイプで分かれています。プレミアムプランは角住戸3LDKのB type、J type、4LDKのF typeの3つ。モデルルームは、そのうちのB type、3LDK+WIC+SIC+S+TR、80.51m2、南西向きの角住戸。リビング・ダイニングと隣接の洋室をつなげて一体化させ、2LDKの間取りに変更しています。

B type、3LDK+WIC+SIC+S+TR、80.51m2の基本プラン。センターオープンサッシのリビングが魅力的です
リビング・ダイニングは角住戸ならではの2面採光の明るい空間。天井高が約2.45m。アウトフレームで柱の出っ張りがないことも相まって、広さが感じられ、開放感のあるリビングです。いいなと思ったのが、キッチンの隣に洗面室があリ、廊下側とキッチン側からの2WAYになっていること。キッチンで家事をしながら洗濯をするなど、家事効率がアップします。

左:キッチン側から見たリビング・ダイニング。広々としていて家族が快適に過ごせそう。この開放感をぜひモデルルームで体感していただきたいです! 右:サッシが天井の近くまであり、カーテンボックスも天井から設置されているので、専有面積よりも広く感じました
収納ではバルコニーにあるトランクルームが便利だなと思いました。共用廊下側にトランクルームが設置されている住戸をよく見ますが、バルコニーだと家の中なので、服装などに気を使わず、必要な物を出し入れできるのがいいですね。
「パークタワー向ケ丘遊園」はZEH-M orientedの基準を満たす環境に配慮したマンション。断熱性能を向上させ、効率的な設備などを導入して大幅な省エネルギーの実現を目指します。このため専有部でも消費電力が少ない「LED照明」や水の使用量を抑える「節水シャワーヘッド」「節水トイレ」、断熱効果のある「エコガラス」といった設備を採用。光熱費が抑えられ、家計にもやさしいメリットがあります。
設備仕様ではキッチンや洗面化粧台のトップにフィオレストーン天板を標準装備しているのが贅沢だなと思いました! 高級感があり、耐水性にも優れているあこがれの素材です。そのほかの仕様もディスポーザー、食器洗い乾燥機、ガス温水式床暖房、プレミアムプランのみの仕様となるタッチレス水栓、ガラストップ使用のガスビルトインコンロと充実。“これがあったら暮らしがよくなるな”と思えるものがしっかり備わっています。

左:温かみのある木目調シートを使用したバルコニー。アウトドア家具を置いてリビングのように使いたいです。このプランにはバルコニーにスロップシンクもあり、ガーデニングなどに便利です(スロップシンクは一部プランのみ) 中:主寝室のウォークインクローゼットは扉がガラス扉に変更されていました。有償オプションですが、モダンな雰囲気になって部屋が明るく見えます 右:洋室(1)。女の子の部屋の設定。左側の壁にパンチングボードが取り付けられていました。フックなどを付ければ、収納が増やせ、子どもが小さいうちは低いところにフックを付けるなど自由にアレンジできます。ぜひ真似したいアイデアだと思いました
【価格とまとめ】交通利便性と自然に囲まれた暮らしを享受できる街のシンボルとなるマンション
第1期の販売開始は3月中旬を予定しており、訪問時(2月27日)は、販売戸数、予定販売価格はともに未定となっていました。都心部のマンション価格の高騰もあり、モデルルームには広域でマンションを探している方が多く訪れていらっしゃるそうです。3LDK 、70m2以上の間取りがメインになるので、広さが欲しいファミリ―の検討者が多数と予想していましたが、実際は、夫婦共働きで将来子どもを持つことを考えているプレファミリーも検討者として多いということでした。開口部の向きや階層の希望も特に偏りがなく、なかには低層階を希望される方もいるとのこと。駅徒歩2分、都心へのアクセスが良い交通至便な立地に魅力を感じている人が多いからではと感じました。
マンションの周辺を歩くと、あちこちに空き地があり、重機やクレーンが作業をしていて、新しく生まれ変わる街の活気を感じました。わが家も現在の住まいは周囲がまだ空き地が多かった時期に購入しました。しっかりした再開発の計画があり、街が発展していく姿をイメージすることができたからです。区画整理事業が進み、新たに賑わう駅街の顔ともいえる存在になるマンション。どんな店や施設ができるかなと想像しながら暮らす楽しさが味わえます。都心に程よく近く、自然を身近に感じられる向ヶ丘遊園のシンボルとなるマンションにぜひ訪れてみてください。
※掲載の情報は見学時点の情報です。(モデルルーム訪問日:2024年2月27日)
本コンテンツは、株式会社LIFULLからライターに依頼し、コメントを一部編集して掲載しています。
最新の詳細情報は、LIFULL HOME’S 「パークタワー向ヶ丘遊園の詳細情報」 をご確認ください。

同じ神奈川県のマンション【WoMansion】
公開日: