THE TOWER 湘南辻堂のメディア向け内覧会に行ってきました!
本コンテンツは、株式会社LIFULLからライターに依頼し、コメントを一部編集して掲載しています。
女性にやさしいマンション情報「WoMansion」は、女性ライターが新築分譲マンションのモデルルームを訪問し、見たこと、聞いたこと、感じたことをそのまま紹介します。
(メディア発表会訪問日:2024年2月22日)
こんにちは! 子育てママのsoraです。 今回は、「THE TOWER 湘南辻堂」のメディア発表会に参加させていただき、後日、現地周辺も見学してきました! 生活利便施設が身近にあり、自然を感じられる公園や海にも行きやすい、日々の生活が充実しそうな街に立つマンションです。
目次
横浜や都内主要駅まで直通でアクセスできる「辻堂」駅
最寄り駅である「辻堂」駅からはJR東海道本線と湘南新宿ラインが運行しており、「新宿」方面にも「東京」方面にも直通でアクセスできるのが魅力。「辻堂」駅からJR東海道本線(上野東京ライン)を利用して「横浜」駅まで直通25分、「品川」駅まで直通43分、「東京」駅まで直通53分。JR湘南新宿ライン快速を利用して「渋谷」駅まで直通56分、「新宿」駅まで直通61分と、1時間程度で都内主要駅までアクセス可能。都内に勤務している方でも十分通勤できる距離だと思います。
※掲載の電車所要時間は、平日の通勤時(目的駅に 7:00~9:00着)のもので、時間帯により異なります。( )内は日中時(目的駅10:00~16:00着)の所要時間です。また、乗換、待ち時間を含みます。出典:「駅すぱあと」に基づいて作成(2023年11月時点)

交通アクセス図。JR東海道本線と湘南新宿ラインを利用して、都内の主要駅まで快適にアクセスできます
新湘南バイパスの「藤沢」I.C.まで車で4分(約2.1km)なので、車での移動も便利そう。「箱根口」I.C.まで約46分(約49km)、「御殿場」I.C.まで約47分(約63km)と、有名なレジャースポットまでも快適にアクセスできます。
※掲載の高速道路入り口までの分数は、一般道を時速約40km/hで走行想定したものです。最寄ICまでの分数は時速40㎞にて算出しています。高速道路は「ドラぷら」調べ(2023年11月現在)。

カーアクセス図。「藤沢」I.C.まで近いので、観光地や都内への車でのアクセスもスムーズ
<物件概要>
所在地:神奈川県藤沢市辻堂1丁目1589-1 他36筆
交通:JR東海道本線・湘南新宿ライン「辻堂」駅南口まで徒歩2分
総戸数:196戸(一般販売対象外住戸24戸含む)、他に店舗11区画(高層棟:8区画、低層棟:3区画)
階数:(高層棟)地下2階・地上29階建て、(低層棟)地上3階建て
引き渡し可能年月:2025年11月中旬(予定)、2026年2月下旬(予定)
施工会社:株式会社鴻池組
売主:リストデベロップメント株式会社
「辻堂」駅直結徒歩2分の利便性を享受しながら、海を身近に感じられる「THE TOWER 湘南辻堂」
メディア向け内覧会は、午前と午後の2回行われました。
プロジェクトの概要説明のあと、2班に分かれてモデルルームとシアター、模型を見学します。見学中もターゲットとなる世帯や価格帯、専有部の仕様についてなど、さまざまな質問が飛んでいました。
「THE TOWER 湘南辻堂」は、「辻堂」駅南口から新たに設置されるペデストリアンデッキを通って直結で徒歩2分という近さ。駅改札を出てからマンションエントランスまでダイレクトにアクセスできるというのは便利ですね。また、駅の南北自由通路を通って駅の北口と歩行者デッキで直結している「テラスモール湘南」(徒歩3分、約240m)にもダイレクトに行くことができます。

現地案内図。「辻堂」駅の北口方面は商業施設、マンションの立つ南口方面は住宅地が広がっています
「テラスモール湘南」がある北口周辺は、2000年代より進められてきた再開発エリア「湘南C-X」にあたります。大型商業施設やマンション、公的施設、病院、公園などによって構成されており、この北口エリアで生活に必要なものはすべて完結するといってもいいほどの充実ぶり。マンションからこの北口エリアまで、ペデストリアンデッキで行き来できるので、子どもが習い事に通ったり、買い物に行ったりするときも、信号や車通りを心配しなくていいのは心強いなと思いました。

「テラスモール湘南」は広くて、お店が充実していています。行くたびにわくわくします!
「テラスモール湘南」には、売り場面積の広いスーパー「サミット」を始めとし、「成城石井」「澤光青果」「DEAN&DELUCA」「カルディ・コーヒーファーム」「久世福商店」など、食料品を購入できるお店があります。総菜も充実しているので、“今日は料理したくない!”という日もいろいろ買って帰ることもできますね。「ユニクロ」「無印良品」「ZARA」「H&M」など、子ども服が買えるお店が充実しているのもうれしい! 他にも「ロフト」「アカチャンホンポ」「有隣堂」やレストラン街、フードコート、各種クリニック、映画館「109CINEMAS」などが入っています。3階にはボーネルンドプロデュースの遊具が設置されたキッズテラスがあり、子どもが楽しく遊べる場所があるのも魅力的。全体的に広くてゆとりがあるので、リゾートを感じることができる大型商業施設です。
ほかにも北口には「Luz湘南辻堂」(徒歩5分、約360m)と「ココテラス湘南」(徒歩9分、約660m)といった複合施設もあります。
「Luz湘南辻堂」には、スーパー「R・GENKI」や100円ショップの「ダイソー」、リサイクルショップ「BOOKOFF SUPER BAZAAR」、飲食店などのほかにも、カラオケ「コート・ダジュール」、インターネットカフェ「快活CLUB」、フィットネスジム「FiT24 Luz湘南辻堂店」、クリニックや学習塾なども入っているため、多様な用途で利用することができる施設です。
「ココテラス湘南」には、勉強やスポーツ、音楽などのさまざまな教室や保育園、学童クラブなどの教育施設が主に入っています。この施設内だけでも多彩な習い事ができるので、子どもにたくさんの選択肢を与えられるのがいいですね。

左:北口の街並み 右:駅の近くから富士山が見えました。THE TOWER 湘南辻堂の西向きの高層階の住戸からも富士山が見えそうです
北口には、商業施設のほかに藤沢市の指定緊急避難場所になっている「神台公園」(徒歩7分、約560m)もあります。広大な芝生広場や遊具が設置されており、のびのびと遊ぶことができます。休日には子ども向けワークショップが開かれたり、キッチンカーが出店されたりしています。
湘南エリアに住む醍醐味といえば、海を日常的に感じられるということ! 海まではのんびり徒歩や自転車で行くことができる距離。また、駅前からバスで気軽に遊びに行くことができます。海に近づくにつれ、道路やお店もリゾートの雰囲気がより濃くなっていきます。
「辻堂海浜公園」(徒歩21分、約1,650m)には、自転車などの練習ができる交通公園や、流れるプールを含む計6つのプールがあるジャンボプール、サッカーなどができる多目的グラウンドがあります。
「辻堂海浜公園」に隣接する辻堂海岸では、釣りや海水浴、散歩など、思い思いの海のレジャーが楽しめます。
また、観光地でもある江の島(自転車25分、約6.1km)にも、気軽に行ける距離。私は先日観光で訪れ、海を眺めて癒されてきました。いつでもこの景色を見に行ける距離なのはうらやましいです!

サイクリングマップ。自転車を利用すれば、藤沢・茅ヶ崎エリアを広範囲に楽しむことができます
湘南エリア(※)最高層の29階建てタワーマンション
「THE TOWER 湘南辻堂」は、29階建て、高さが約98.9mと湘南エリア(※)での最高層となるタワーマンションです。
※湘南エリアとは、神奈川県が推進している「かながわシープロジェクト」において湘南地域(藤沢市·茅ヶ崎市·平塚市·二宮町·大磯町)と位置付けているエリアを指します。

駅(北側)から見た完成予想図。海に向けて低層の住宅地が広がります
マンションが立つ駅前エリアの南側は、第一種低層住居専用地域を含む住宅地。湘南新道の南側は、美しい海辺の景観を守るための風致地区になっています。
西側、南側、北側の3本接道で、東西に横長の敷地形状です。マンションの北側は道路を挟んで店舗などが並び、さらにその先は駅や線路になります。東側は商業ビル、南側は道路を挟んで4~5階建ての建物、西側は道路を挟んで向かい側に同じリストデベロップメントさんが分譲した20階建ての「リストレジデンス辻堂タワー」があります。どの方角も比較的低層階から(西側のみ中層階から)、抜け感のある眺望が期待できそうです。

左:駅のペデストリアンデッキから見た建設現地。完成時には駅からペデストリアンデッキで2階に入れるようになります 中央:南側から見た建設現地。日当たりがよさそうです! 右:北側の道路。左奥が建設地。歩道がしっかりあって歩きやすく、気持ちがいい街並みです
マンションの敷地の西側と南側には広場が設けられ、広場の中間部分には、3階建ての低層棟が配置されています。
高層階の1階~2階と3階建ての低層棟には商業施設が入る予定。商業施設の区画も分譲されますので、何のショップが入るかは全く未定だそうですが、きっと駅前にあると便利なショップが入ると期待します!

駅からマンションの2階へペデストリアンデッキが新設されます。駅前の広場は街になじむことでしょう!
外観は、“呼吸する”ということが一つのテーマとなっている、シンプルでナチュラルなデザイン。透明のガラス手すりと白を基調としたデザインは、周辺の環境と調和するよう落ち着いた色合いになっています。
特筆すべきは、このデザイン監修をGlamorousの森田恭通氏が手掛けていること。日本のみならず、海外にも活躍の場を広げ、インテリア、グラフィック、プロダクトと幅広い創作活動を行っているデザイナーです。有明エリアで共用スペースをGlamorousが監修したマンションを見学したことがありますが、空間を上手に使ったモダンなデザインだなと感じました。
また、同じくGlamorous監修のエントランスホールでは、特徴的な螺旋階段が目を引きます。水面反射をデザインに取り込んだ上質な空間はマンションの象徴的な場所になるでしょう。

左:外観完成予想CG。「辻堂」駅の新たなランドマークとなるマンションにふさわしく、洗練されたデザイン 右:エントランスホール完成予想CG。外観と同じく落ち着いた色味を基調としています
3階にはオーナーズラウンジ(集会室)・ワークラウンジ・プライベートリビング・ゲストルームといった共用施設。プライベートリビング・ゲストルームは同時に予約して利用することができ、パーティールーム兼ゲストルームのように使うことができるとのことでした。
なお、3階の共用施設の空間デザイン監修は、Cassina IXC.が担当。落ち着いて大人な空間を作り上げています。

Cassina IXC.監修の共用施設の完成予想図。友人や親戚を招きたくなる空間です
全フロアにゴミステーションと防災倉庫設置、また、次世代型宅配システム「Pabbit」も導入予定になっています。「Pabbit」とは、すべての宅配物が持つ伝票番号で集合住宅などのオートロックを解除できるシステムのこと。居住者がどこにいても、各階の宅配ボックスまで荷物を届けてもらうことができます。1階で宅配ボックスを開けたら、夫あての重い荷物で「これ…持って上がるのか」と思うことが頻繁にあるので、各階まで届けてもらうことができるのはいいなと思いました。

敷地配置図。駅前ながら、3方接道の開放的な立地です
1R~4LDKの多彩なプラン! 全フロア内廊下仕様
「THE TOWER 湘南辻堂」は、1R~4LDK、34.90m2~92.83m2(一般販売対象外住戸24戸除く)、全196戸のマンションです。全フロアがホテルライクな内廊下仕様。
全体的に、ワイドスパン中心でゆとりあるプランなのが魅力。各洋室も細長くなく、家具配置がしやすそうです。浴室が1618や1620など、広めにプランニングされているのもいいなと思いました。

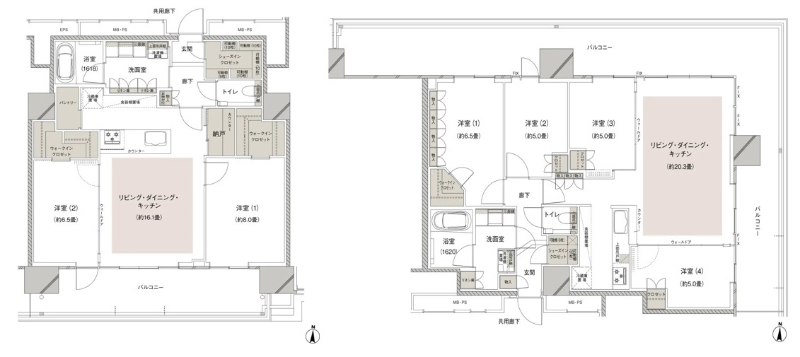
左:Ptype、2LDK+2WIC+SIC、79.07m2の間取り図。リビング・ダイニングと洋室2部屋がともにバルコニーに面しており、明るく開放感があります。シューズクローゼット、ウォークインクローゼットが2つ、広めの納戸、パントリーと収納が充実しているのもいいですね 右:Itype、4LDK+WIC+SIC、90.63m2の間取り図。角部屋で、接している部屋が少なく独立性が高いのも魅力的です。リビング・ダイニングと接する洋室(4)や洋室(3)のウォールドアを開けば、広々としたリビング・ダイニング・キッチンとして使うこともできます
モデルルームはHtype(83.60m2)とAtype(47.51m2)の2つ用意されています。
もともと3LDKのプランであるHtypeは、リビングの横の洋室をDENにプラン変更し、2LDKになっていました。南東の角部屋で、18階相当の眺望イメージが再現されています。高い建物が無く、海が見え、遠くには江の島も見えます! キッチンはかなり広めのアイランドキッチンでこんな家に住むことができたらすてきだと思いました。

Htypeのモデルルーム。こんな見事な眺望を眺めながら暮らしてみたいです!
もう一つのAtypeは、1LDKのプラン。大きなプラン変更はなく、設備仕様のアップグレードも少ないので、実際の生活をイメージしやすいモデルルームです。
廊下が短く、効率のいい間取りで、有効面積が広いことと、間口が広いので部屋が細長くなく、使いやすそうな形です。47m2とは思えないくらい広く感じる部屋でした。

Atypeのモデルルーム。専有面積よりもずっと広く感じました。こんな住戸に一人暮らししたいです。
専有部の仕様としては、天井高は約2.5m。ディスポーザー、リビングには床暖房、玄関にはカメラ付きインターフォン、ラクセスキーと変えづらいところはしっかりと標準仕様になっていていいなと思いました。
【まとめ】駅直結2分の利便性を享受できる住まい
1R~4LDKと幅広いプランがあるので、単身の方やファミリーまで、幅広い層が検討しやすいマンションです。価格や商品性から、長くこのエリアに住むシニア世帯の住み替えも多そうです。
メディア向け内覧会では、「住環境に関する意識調査」の結果として、近距離移住するなら、都心から電車で1時間以内。条件に合致する場所として湘南エリアが人気というアンケート結果も共有されました。横浜や都内に直通でアクセスでき、利便性の高い辻堂エリアであれば「近距離移住」希望の方の選択肢に十分なり得るでしょう。売主であるリストデベロップメントさんは、「もともと一戸建て中心のエリアではあるが、街に対して多様な価値観を持っている方を広域から集客することを検討した際に、タワーマンションを作ることにした」とおっしゃっていました。
実際、今問合せの傾向を見ても、東京都をはじめとして、県外からの問合せも多いそうです。
湘南エリアで最高層のタワーマンションということから、注目度が高い「THE TOWER 湘南辻堂」。「辻堂」駅北口の商業施設を普段使いできるという利便性がありながら、海が近く、自然も感じることができる立地です。モデルルームを訪問したら、ぜひ「辻堂」駅周辺も散策して、さらなる魅力を発見してみてください。
竣工したら、実物を見に来たいなと思うマンションがまた一つ増えました!
※掲載の情報は見学時点の情報です。(メディア発表会訪問日:2024年2月22日)
公開日: / 更新日: