シティタワーズ東京ベイのモデルルームに行ってきました!
女性にやさしいマンション情報「WoMansion」は、女性ライターが新築分譲マンションのモデルルームを訪問し、見たこと、聞いたこと、感じたことをそのまま紹介します。
(モデルルーム訪問日:2020年7月30日)
こんにちは! 子育てママのsoraです。
有明エリアに国家戦略特区認定事業として誕生した「シティタワーズ東京ベイ」。
WoMansionでも以前(2017年11月)に見学をし、
完成を楽しみにしていたマンションのひとつです。
マンションが完成し、さらに隣接する商業施設「有明ガーデン」もオープンしましたので、実物を見にモデルルームへ行ってきました!
目次
「国際展示駅から徒歩4分、「有明」駅から徒歩3分の「シティタワーズ東京ベイ」
マンションから徒歩4分のりんかい線「国際展示場」駅から「渋谷」駅まで直通19分、「新宿」駅から直通25分、「東京」駅まで12分、「羽田空港第1ビル」駅まで19分。
徒歩3分のゆりかもめ「有明」駅から「豊洲」駅まで直通6分、「台場」駅まで直通10分、「汐留」駅まで直通23分、「有楽町」駅14分。勤務地によってはかなり便利そうです。
直線距離が都心まで近く、車での移動が便利なことも湾岸エリアの魅力のひとつ。タクシーやバスを使えば、東京駅・銀座までもすぐアクセスできます。隣接する有明ガーデンからは羽田空港や成田空港行きのバスも運行予定。さらに、マンションの前から豊洲駅の近くまで行く居住者専用のシャトルバスが出ています。
そのほか、水上バス、BRT(バス高速輸送システム)などたくさんの交通手段に恵まれており、平日も休日もアクティブに過ごすことができそうな利便性の高い環境です。

2路線利用可能に加え、シャトルバスやBRTなど複数の交通手段があります。
【物件概要】
所在地:東京都江東区有明二丁目1番210、211、219、235、238、239(地番)他
交通:東京臨海高速鉄道りんかい線「国際展示場」駅から徒歩4分、ゆりかもめ「有明」駅から徒歩3分
総戸数:1,539戸
階数:〈ウエストタワー〉地上32階地下1階搭屋2階、〈セントラルタワー〉地上33階搭屋2階、〈イーストタワー〉地上33階搭屋2階
入居時期:2021年4月下旬 (予定)
施工会社:前田建設工業株式会社
売主:住友不動産株式会社

完成予想CG。リビングから足元に広がる夜景を見ながらゆっくりお酒を飲んだりしたいです!
子育てファミリーにうれしい!隣接する「有明ガーデン」
シティタワーズ東京ベイは、住宅・商業の複合開発となるプロジェクト。住宅だけではなく、商業施設、ホテル、シアターなど複数の施設がオープンします。
すでに大規模天然温泉「泉天空の湯」、最大約8,000人収容の劇場型ホール「東京ガーデンシアター」はオープン。749室を擁する「ホテルヴィラフォンテーヌグランド東京有明」と6,800m2の広大な「有明ガーデンパーク」は2020年8月1日オープン。ライオンキングが上演される「有明四季劇場」は2021年オープン予定です。

複数の施設がオープン。ホテルや温泉まであるのが魅力的ですね
1階の有明ガーデンパークに隣接して店舗らしきものが準備されていたので、何になるか聞いたところカフェができるとのことでした。公園に隣接するカフェ…自然を眺めながら休憩できるのはいいですね。
さらに、現在スポーツエンターテインメント広場とされているところは、有明エリアの状況を考えたうえで、またゆくゆく何か建設される可能性もあるそうです。プロジェクトとして、エリアに不足しているものを見極めたうえで、何をつくるか決めるという「余白」があるということで期待が膨らみます。
そして、何よりも約200店舗の大規模な商業施設「ショッピングシティ」。食料品、ファッション、スポーツ、飲食店などさまざまなお店が入っています。

左:後日、オープンした「有明ガーデンパーク」を見に行きました。これは小さいお子さんがいるご家庭にはうれしい! 右:駅から有明ガーデンに向かう通路。右側はマンションの入り口になります
私自身は湾岸住まいではありませんが、湾岸エリアは大好き。特に、有明エリアには魅力を感じるので、以前、ブリリアマーレ有明タワー&ガーデンに宿泊させていただいたことも。 その際に周辺環境として感じたのは自然環境に恵まれていて、開放感もあり気持ちがいいけれど、「スーパーが近くに1つしかないのか…」というのが正直な感想でした。
2020年6月17日に「有明ガーデン ショッピングシティ」がオープン。大型の商業施設ができたことによって、このエリアの生活利便性がぐっとアップしました。
1階には大きなイオンスタイルがあり、毎日の食料はここで十分。レジゴーという端末があり、買い物をしながらセルフレジができる仕組みだとのこと。有明エリアに住む知人に聞くと、まだ使いづらいところがあるからあんまり使っていないと言っていましたが(苦笑)、きっとこれから改善されていくはず! そんなふうに時短できるような新しい試みがあるのもいいなと思いました。
2階は、ファッション、生活用品、食物販のフロア。私はH&Mで子ども服を大量に購入してしまいました…。カルディコーヒーファームやキタノエースがあるのも個人的にはポイントが高いです!
3階は、スポーツ・ファッション・生活雑貨のフロア。スポーツ施設の多い有明エリアにふさわしく、スポーツ用品店はかなり充実している印象。
そして、子育てファミリーとして本当に羨ましいと思ったのが、4階のキッズ・生活サービスのフロア。 子ども服、おもちゃ、お菓子、キッズスペース、本屋、クリニックなどのほかに、各種スクールが入っています。子どもの習い事って本当に通わせるのが大変。それが隣接している商業施設にあったら送り迎えの時間も短縮できますね。わが家は以前、公文に通わせていたのですが、教室が終わるまでの間、近くで待機していないといけなくて、道にぼーっと立っていました。有明ガーデン内にある公文だったら買い物したり、お茶をしたりしながら待てそうです。
さらに、子ども用の美容室や写真館などもありました。子どもの髪の毛を切るのって、嫌がったり、じっとしていてくれなかったりして思わぬ苦労をするもの。子どもの対応に慣れている美容院が家の近くにあれば、私はかなり重宝したはずです。
4階に限らず、「有明ガーデン」の子ども向け施設は、対象を未就学児か小学校低学年くらいまでに設定されているものが多い気がして、対象年齢層が多少偏っているかなとも感じましたが、きっと少しずつ住民のニーズに合わせて微調整されていき、ちょうどよくなっていくのかなとも思いました。
5階は飲食・美容サービス・アミューズメントのフロア。全13店舗からなるフードコートがあります。子どもと気軽に飲食できるという意味で、フードコートが充実しているのはうれしい!
「水のテラス」では、オープンテラスのような開放感のあるところで食事ができます。また、天気の良い日には子ども噴水で水遊びができます。気軽に子どもに水遊びをさせてあげられる環境ってなかなかないですが、シティタワーズ東京ベイに住んでいたら、多少服が濡れてもすぐ家に帰ることができるので、寛容な気持ちで見守ってあげられそうです。

左:有明ガーデンのマンションギャラリーから「水のテラス」の向こうにシティタワーズ東京ベイが見えました 右:私が見学したのは平日でしたが、「水のテラス」では子どもたちが水遊びしていました!
実際の眺望や間取りが確認できる棟内モデルルーム
シティタワーズ東京ベイのマンションギャラリーは有明ガーデンの5階。レストランフロアの一角にあります。出迎えてくれるのは、東京湾岸エリアのジオラマ。歩く人たちがみんな、つい足を止めて見入ってしまう仕組み。そのままマンションにも興味を持って…とよくできています(笑)。
さらに、ギャラリーからは水のテラスの向こうに「シティタワーズ東京ベイ」が見えるようになっており、商談をしながら、外観や位置関係を確認することもできます。今まで住友不動産さんのマンションギャラリーは、ビルの一角が多かったのですが、この「有明ガーデン」内にギャラリーを設けたのは正解!と感じました。
コロナ対策として、営業担当者との間には透明なアクリル板。正直、話はしづらいです。託児スペースもクローズしていました。外出を極力したくないとお考えの方は、オンライン相談も実施しているようなので家からマンションのことをいろいろ聞いてみることもできます。

左:シティタワーズ東京ベイのマンションギャラリー入口には湾岸エリアのジオラマがあります。これを見ているだけでも楽しい! 右:マンションの模型もじっくり確認できます
私は、以前、ギャラリーを見学済みでしたので、早速棟内モデルルームを見学させてもらいました。現在販売中の住戸も実物を見学して購入判断することができます。すでに一部購入者が入居済みですので、どのような方が入居しているのかの雰囲気も感じることができます。
シティータワーズ東京ベイは、3棟からなる大規模マンション。
駅から一番近いウエストタワー、3棟の真ん中に位置し一番規模の大きいセントラルタワー、北西側の抜け感も魅力的なイーストタワー。
共用施設はマンションの規模から考えると少ない印象。ホテルが隣接しているのでゲストルームはありません。バーやスパも有明ガーデンに行けばありますので用意されていません。あるのは、ウエストタワー2階にパーティールーム。セントラルタワー2階にキッズルーム&ペアレンツサロン、20階にパーティーラウンジ、ライブラリーラウンジ。イーストタワー2階にミーティングルーム。
共用施設が増えるとどうしても管理費は上がっていきますので、共用施設はあまり使わないという方にも公平なマンションかもしれません(しかも、隣接施設に行けば同様の機能を果たす施設があるのでニーズを満たすことができるというのがいいですね)。

共用施設のパーティーラウンジとキッズルーム・ペアレンツサロン完成予想図
エントランスホールなどの共用スペースは高級感があります。いつも思うのですが、住友不動産さんのマンションは共用スペースが素敵で、実物を見るとテンションが上がる! なお、コンシェルジュカウンターはセントラルタワーにあります。

左:下から見上げてみてもかっこいい外観です 中央:セントラルタワーのエントランスホール 右:ウエストタワーのエントランスホール。右側には駅に向かっていくエスカレーターがあります
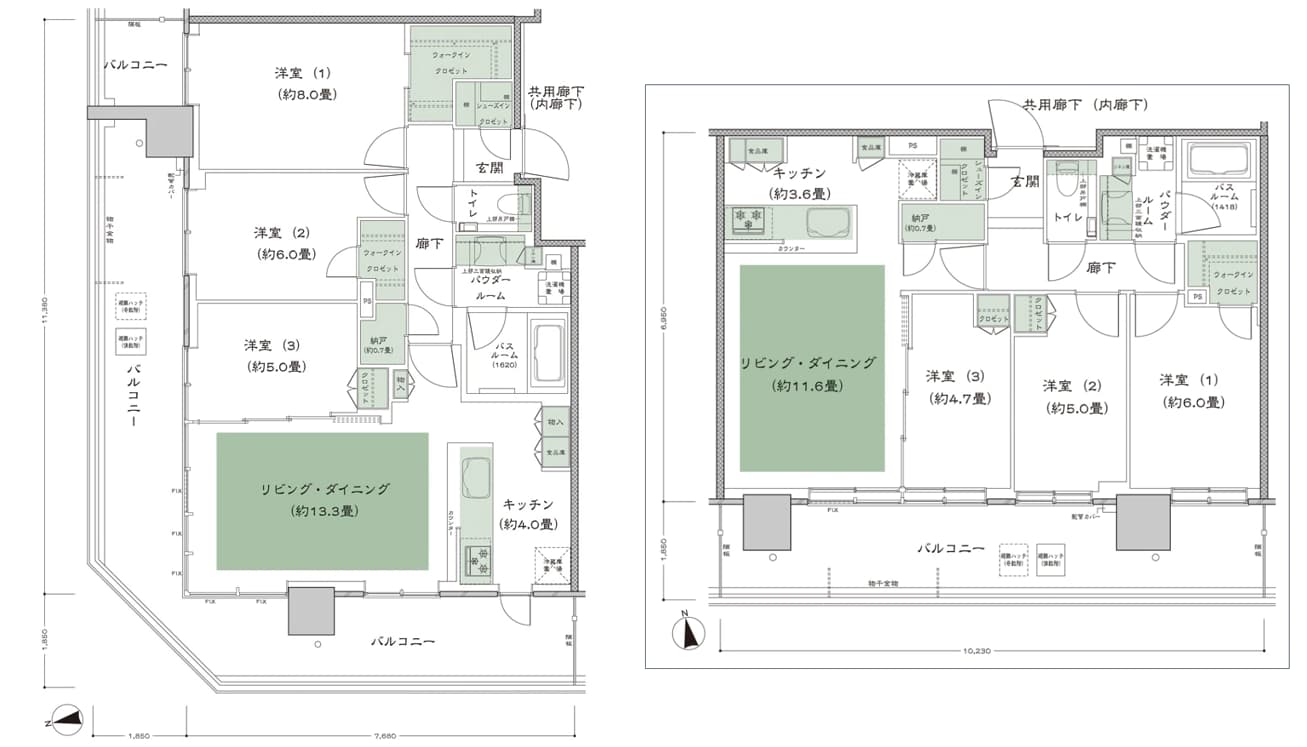
棟内のモデルルームはいくつかあって、見学者の希望に近い住戸を見学させてもらえるようです。私は、イーストタワー27階の北西角の3LDK・82.88m2と、3LDK・70.25m2の南側中住戸を見学させてもらいました。
シティタワーズ東京ベイの魅力のひとつは内廊下のマンションとして理想的なワイドスパンの間取り。今回見学した住戸もワイドスパンで快適に暮らせそうでした。柱の出っ張りもなく部屋の形はきれいですし、リビングの梁も控えめですっきりとした空間になっています。

左:85Qタイプの間取り図。ワイドスパン・角住戸ならではの開放的な眺望が楽しめるプランです 右:70Kタイプの間取り図。こちらもワイドスパン。シューズインクロゼット、納戸、ウォークインクロゼットがあり、収納も充実しています
リビングに入った途端、びっくりするのは開放感のある眺望。北西側の角部屋は東京タワーやレインボーブリッジが見えるシティービュー。南側は緑や水や空がずっと見渡せる開けた景色。どちらも素敵で、どちらがいいかはもう好みの問題かなと思いました。
シティタワーズ東京ベイは3棟が同じマンションでありながら、ある程度距離が取れていること、またそれぞれが向きをずらして設計されていますので真正面からお見合いにならないことから、比較的どの住戸も眺望にも恵まれています。

北西の角部屋のモデルルーム。この眺望はぜひ実際に見ていただきたいです! キッチンは、吊戸棚のないフラットなカウンター。バルコニーに面した窓もあって、使い勝手がよさそうです。
ちなみに、南側は足元に高速道路が走っており、窓を開けるとどうしても音は聞こえてきます。二重サッシになっていて、窓を閉めたら音が気になることはありませんでした。実際の音も確認できるのが棟内モデルルームのメリットのひとつ。音の感じ方は人それぞれですので、ぜひご自身で確認していただきたいです。
高速道路を夜見ると車のライトが線になってきれいな夜景になるのだそうです。ぜひ夜の景色も見てみたくなりました!

棟内モデルルームは、眺望、通風、明るさ、天井の高さ、収納の形、設備・仕様などが確認できます。さらに、家具の配置なども参考にでき、より具体的に実際の生活をイメージできます
天井高はリビング・ダイニング、各洋室が約2.6m。天井が高めな分、ウォークインクローゼットも上まで使えるようになっているので、収納力がありそうです。
設備仕様は、最低限欲しいと思うものはきっちり揃っている印象。
音だけではなく、設備仕様、間取りや日当たり、風通しなど、すべてが確認できるのが棟内モデルルームならではですので、ぜひ実際の眺望を見にモデルルームに行っていただきたいです。
大型商業施設が隣接。自然環境・眺望にも恵まれ、毎日快適に暮らすマンション
現在は価格を公開している住戸から先着順で販売中。いろいろなメディアでも紹介されているイーストタワー北西角の3LDK・82.88m2は20階で9,500万円。決して安いとは感じませんが、眺望、専有面積、角部屋というさまざまな条件を考えると魅力的な価格だと思いました。
先に販売をしたウエストタワーとセントラルタワーは販売が進んでいて、これから本格的に販売していくイーストタワーはまだまだ希望住戸を選ぶことができそうな状況です。次期以降の販売も含めると38.20m2〜100m2超のプランまで幅広く選ぶことができます。
モデルルームに行けば価格表をもらえますので、ぜひ行ってみてください。

外観写真。住友不動産さんらしいスタイリッシュなタワーマンションです
実は3年前にギャラリーを見学した時は、この商業施設の全容がまったく分かっていない状態でした。本当に商業施設ができるのか、できるとしたらどんなお店が入るのか…。
今回、有明ガーデンがオープンして見てみたら、子育てファミリーには非常に過ごしやすそうなお店のラインナップ。
この商業施設のイメージができていたら、我が家も本気で購入を検討したと思います。
育休中、まだ小さい子どもと何をするか、どこに行くかを毎日考えることに苦労していました。遠出をしたら荷物が増えますし、いざというときにパッと帰ることができるのが理想です。しかも、子どもと一緒でもあまり気兼ねせずにいることができるスペースはなかなかなく、ついワンパターンになっていました。
有明ガーデンなら、子連れで買い物に行くのにも、子どもをちょっとしたスペースで遊ばせるのも、何でもできそう!
隣接の施設で毎日違う時間を過ごせるというのは、とても助かるはずです。
今、出産予定、出産直後の知人がマンションを探していたら「有明ガーデンの近くいいよ! シティタワーズ東京ベイはどう?」と全力で勧めます!
駅近でありながら、大型商業施設が隣接。自然環境や眺望にも恵まれた魅力的なマンションです。モデルルームへ行く際は、有明ガーデンにも立ち寄れるよう、ぜひ時間に余裕のあるに見学してみてください!
最新の詳細情報は、LIFULL HOME’S 「シティタワーズ東京ベイの詳細情報」 をご確認ください。
公開日: / 更新日: