新築一戸建て 新築デザイナーズ分譲住宅全4棟 洗練されたモダンラグジュアリー LDK20帖超 麻生区千代ヶ丘
- 価格
- 4,980万円~5,980万円
- 所在地
- 神奈川県川崎市麻生区千代ヶ丘6
- 交通
- 小田急小田原線「新百合ヶ丘」駅 バス5分「千代ヶ丘七丁目」バス停 徒歩2分小田急小田原線「百合ヶ丘」駅 徒歩16分京王相模原線「京王よみうりランド」駅 徒歩30分
乗り換え案内
- 土地面積
- 139.33m2~144.95m2
- 建物面積
- 99.16m2~102.06m2
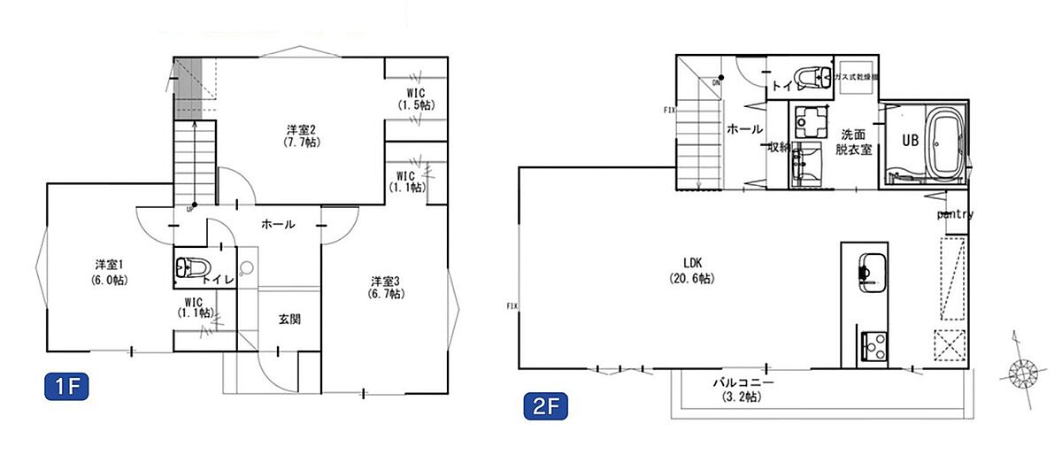
- 間取り
- 3LDK~3LDK+S
目を奪われる洗練されたデザイン! LDK20帖超&駐車2台可能なゆとり!
0037-618-95491
無料
魅力1 スムージングハウスでは当日の現地見学も可能です!お気軽にご連絡ください。
魅力2 スムージングハウスでは当日の現地見学も可能です!お気軽にご連絡ください。
魅力3 スムージングハウスでは当日の現地見学も可能です!お気軽にご連絡ください。
0037-618-95491
無料
間取り図
0037-618-95491
無料
内観・室内
間取り・内観のこだわりポイント
- LDK15帖以上
- 吹き抜け
- ワイドバルコニー
- 南面バルコニー
- 全室2面採光
- 全室フローリング
0037-618-95491
無料
設備・仕様
設備・仕様のこだわりポイント
- キッチン
-
- カウンターキッチン
- 食器洗い乾燥機
- 浄水器・活水器
- ガスコンロ
- 収納
-
- 床下収納
- ウォークインクローゼット
- シューズクローク
- パントリー
- 全居室収納
- その他設備
-
- 都市ガス
- シャワー付洗面化粧台
- 温水洗浄便座
- 浴室乾燥機
- 浴室暖房
- トイレ2ヶ所以上
- 節水型トイレ
- 複層ガラス採用(二重サッシ・防犯サッシ等)
- スマートキー
- 省エネ給湯器
- TVモニタ付インターホン
- 宅配ボックス
省エネ性能
- エネルギー消費性能:★★★(削減率20%達成)
- 断熱性能:5段階/7段階
- 目安光熱費:約19.3〜21.1万円/年 ※「省エネ性能ラベル」は特定の住戸の性能を示し、全ての住戸の性能を示していない場合があります。
0037-618-95491
無料
外観・分譲地
外観・分譲地のこだわりポイント
- 駐車場あり
- 低層住宅地
- 地盤調査済
- 角地
- 整形地
- 前面道路6m以上
- 隣家との間隔が広い
0037-618-95491
無料
周辺環境・地図
-
【買い物】
小田急マルシェ新百合ヶ丘 (1820m)
新百合ヶ丘駅南口すぐに位置する、ガラス張りの外観が印象的な駅直...
-
【買い物】
ユーコープ千代ケ丘店 (970m)
新百合ヶ丘駅から徒歩13分またはバスで約10分の住宅街に位置す...
-
【買い物】
OdakyuOX万福寺店 (1480m)
新百合ヶ丘駅から徒歩5分の住宅街に位置する、上質な日常を提案す...
-
【買い物】
クリエイトエス・ディー川崎千代ケ丘店 (210m)
医薬品から生鮮食品・酒・たばこまで幅広く揃え、調剤薬局や宅配サ...
-
【学校】
川崎市立千代ケ丘小学校 (600m)
川崎市で最も標高の高い場所に位置し、富士山を望む自然豊かな環境...
-
【学校】
川崎市立金程中学校 (1100m)
川崎市麻生区金程にある公立中学校で、「多様性を大切にし、誰もが...
-
案内図
-
交通図
周辺環境のこだわりポイント
- スーパー 800m以内
- コンビニ 400m以内
- 小学校 800m以内
- 公園 400m以内
- 保育園・幼稚園 400m以内
- 複数路線
0037-618-95491
無料
物件概要
| 所在地 | 神奈川県川崎市麻生区千代ヶ丘6 | ||
|---|---|---|---|
| 交通 |
小田急小田原線「新百合ヶ丘」駅 バス5分「千代ヶ丘七丁目」バス停 徒歩2分 小田急小田原線「百合ヶ丘」駅 徒歩16分 京王相模原線「京王よみうりランド」駅 徒歩30分 |
||
| 販売価格 | 4,980万円~5,980万円 | 最多価格帯 | - |
| 建物面積 | 99.16m2~102.06m2 | 土地面積 | 139.33m2~144.95m2 |
| 間取り | 3LDK~3LDK+S | 建物構造 | 木造2階建 |
| 販売スケジュール | 販売中 | ||
| 販売戸数 / 総戸数 | 3戸 / 4戸 | ||
| 完成予定日 | 2025年11月 | 引き渡し可能年月 | 即引渡可 |
| 駐車場 | 1台 | 道路の幅員 | 4m~6m |
| 用途地域 | 第一種低層住居専用地域 | 都市計画 | 市街化区域 |
| 地目 | 宅地 | 国土法 | - |
| 土地の権利 | 所有権 | 借地権の種類・期間 | - |
| 主たる設備の概要 | 公営水道、本下水、都市ガス | 建築確認番号 | 完成済みのため省略 |
| 施工会社 | - | 機構融資 | - |
| 売主 | 取引態様 | (株)スムージングハウス 仲介 | |
| 備考 |
☆☆スムージングハウスでは当日の現地見学も可能です!お気軽に『0120-75-3232』までお問い合わせください!☆☆ ■スムージングハウスの各種無料サービス (1)ライフプランシュミレーション 最もご好評頂いているサービス。 生涯のお金の計算書を無料で作成させていただきます! 住宅費と教育費を払いながらも65歳時点で老後資金を2500万円以上の確保できるプランをご提案! (2)物件調査 近隣への聞き込みで、過去の災害や事件、トラブルは勿論のこと、教育環境等も調査し、ご契約前にご報告いたします。 (3)その他、6種のサービスを無料で利用できます。 |
||
| 情報更新日 | 2026/05/14 | 次回更新予定日 | 2026/05/28 |
| 取引条件有効期限 | 2026/12/31 | ||
住宅性能・販売概要・権利のこだわりポイント
- 所有権
- 瑕疵担保付き
- フラット35・S適合証明書
- 即入居可
0037-618-95491
無料
取扱い不動産会社
スタッフからのコメント
- 「不動産売買を、もっとスムーズに。もっと安心に。」
- 物件提案だけでなく、資金計画やライフプラン、ときには将来の売却や住み替えまで、一歩先を見据えたご提案をお約束します。
これからマイホームをご検討されるすべてのご家族に、“スムーズなお取り引き”をお届けできるよう、全力でサポートいたします。
売りたい物件を売るのではなく、お客様のニーズにあった提案をさせていただき、満足していただけるよう、培ってきた経験を生かし、一生の思い出に残る住宅探しのお手伝いをさせていただきますので是非とも私共にお任せください!
本田 裕輝
株式会社スムージングハウスの会社情報
お電話でのお問合せは「LIFULL HOME'S(ライフルホームズ)を見て」とお伝えください
(株)スムージングハウス
0037-618-95491
無料
- ※携帯電話はご利用いただけます
- ※光IP電話、及びIP電話をご利用のお客様はTEL:0120-75-3232へご連絡ください
- ※携帯電話からお問合せいただいた方には、ショートメッセージ(SMS)またはLINE通知メッセージによるお問合せ内容に関する通知をお届けする場合があり、お客様の電話番号は株式会社LIFULLで一定期間保管されます
- ※株式会社LIFULLの個人情報の取扱い方針に同意のうえ、お電話ください
| 会社名 |
株式会社スムージングハウス |
|---|---|
| 免許番号 | 神奈川県知事 (1) 第 32856 号 |
| 所在地 | 神奈川県横浜市港北区新横浜3丁目12-1 ドレッセ新横浜 1階 |
| 所属団体 |
(公社)全日本不動産協会神奈川県本部 |
この物件にお問合せする
実際に物件・周辺環境を見て検討したい!
近隣建物や接道の状況など資料で分からない部分も一目瞭然。 まずはWEBで事前予約、スムーズに見学しましょう
ご予約無しに直接ご来場された場合、担当者不在であったり、
他のお客様のご案内の都合上、お待たせしてしまうことがございます。
不動産会社に電話で相談したい!
(株)スムージングハウス
0037-618-95491
無料
電話でのお問合せは「LIFULL HOME'S(ライフルホームズ)を見て」とお伝えください
- ※携帯電話はご利用いただけます
- ※光IP電話、及びIP電話をご利用のお客様はTEL:0120-75-3232へご連絡ください
- ※携帯電話からお問合せいただいた方には、ショートメッセージ(SMS)またはLINE通知メッセージによるお問合せ内容に関する通知をお届けする場合があり、お客様の電話番号は株式会社LIFULLで一定期間保管されます
- ※株式会社LIFULLの個人情報の取扱い方針に同意のうえ、お電話ください
LIFULL HOME'Sは物件鮮度No.1を目指していきます 物件情報に誤りがある場合はコチラからご連絡ください
- 【物件番号】
- 1708590-0000045
- ※完成後1年未満で未入居の物件を「新築」と表示しております。
- ※完成予想図やCG合成画像は、門塀・植栽・庭・外観等、実際とは多少異なる場合があります。














