新築一戸建て ジーステージ 港区惟信町第3 全3邸
- 価格
- 3090万円・3190万円
- 所在地
- 愛知県名古屋市港区惟信町4
- 交通
- 名古屋臨海高速あおなみ線「荒子川公園」駅 徒歩21分名古屋臨海高速あおなみ線「港北」駅 徒歩33分名古屋臨海高速あおなみ線「稲永」駅 徒歩33分
乗り換え案内
- 土地面積
- 119.06m2・128.89m2(36.01坪・38.98坪)
- 建物面積
- 105.3m2・105.71m2(31.85坪・31.97坪)
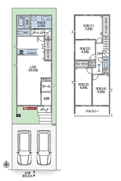
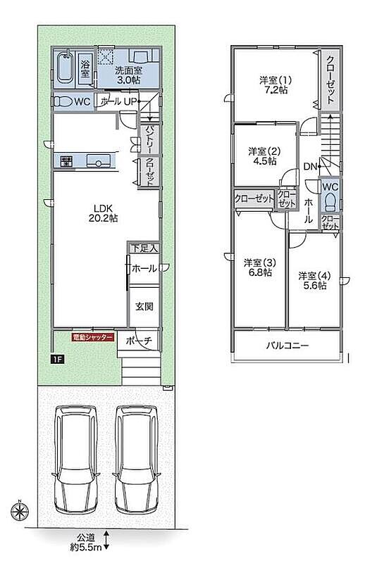
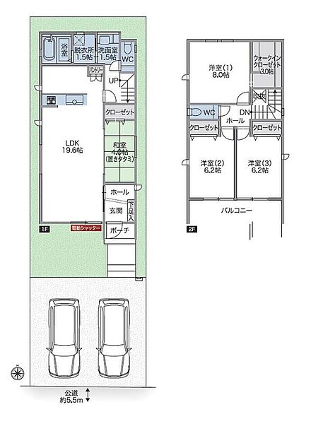
- 間取り
- 4LDK
この物件は未完成のため、掲載写真(外観、内観、設備等)には、施工例が含まれている場合があります。物件詳細については、掲載の不動産会社宛にお問合せください。
【本日モデルルーム内覧可能!】長期優良住宅&地震に強い家
○毎日のお買い物に便利
スーパー徒歩14分、コンビニ徒歩5分、ドラッグストア徒歩10分
小学校徒歩9分、中学校徒歩20分、保育園徒歩8分
■長期優良住宅!耐震等級3等級
■充実の使用設備
・梅雨の時期や風の強い日でも安心の浴室乾燥機
・家族との会話が弾む対面式キッチン
・全居室収納、パントリーなど収納豊富
・駐車スペース2台付きでお客様が来た時も安心
0037-618-05685
無料
魅力1 家族の暮らしに寄り添う、安心と快適を備えた住まい
●見栄えも良くお手入れもスムーズなシステムキッチン
システムキッチンには豊富な収納スペースがあり、食器や調理器具、食材を整理しやすく、キッチンを清潔に保つのに役立ちます。調理作業もスムーズに行え、家事が楽になります。
●利便性の高いリモコンキー
鍵をバッグやポケットから取り出さずにドアを開錠・施錠出来るため、手がふさがっている時や急いでいる時に便利です。
●快適な室温と省エネを実現
Low-Eガラスは、高い断熱性で夏は涼しく冬は暖かい快適空間を実現します。冷暖房効率が上がり光熱費も削減、結露も抑えて窓周りもいつも清潔です。
魅力2 毎日のお買い物が楽々!小・中学校など教育環境も充実の理想の住環境
【学校】
名古屋市立神宮寺小学校:徒歩9分(670m)
名古屋市立宝神中学校:徒歩20分(1600m)
【幼稚園・保育園】
幼保連携型認定こども園たからうらこども園:徒歩9分(649m)
惟信保育園:徒歩8分(601m)
【買い物】
アピタ港店:徒歩14分(1109m)
ヤマナカみなと当知店:徒歩16分(1209m)
ローソン港区甚兵衛通店:徒歩5分(331m)
V・drug油屋店:徒歩10分(732m)
ヤマダデンキヤマダアウトレット名古屋店:徒歩21分(1627m)
【その他】
当知中央公園:徒歩15分(1168m)
荒子川公園:徒歩21分(1650m)
魅力3 【ホームトレードセンター】による一括サポート!お気軽にお問い合わせください!
☆ホームトレードセンターは日本一の分譲実績を誇る飯田グループホールディングス株式会社唯一の不動産販売専門会社です。
専門知識の高い販売専門のプロがアフターケアまでしっかりとサポート致します!
マイホーム探しや住宅購入、お住まいの住み替えご相談ください♪
当社買い取り保証サービスもご好評いただいております。もちろん住宅ローンのシミュレーション、資金計画等も承っております。
0037-618-05685
無料
間取り図
0037-618-05685
無料
内観・室内
間取り・内観のこだわりポイント
- LDK15帖以上
- 4LDK以上
- バリアフリー
- 和室
- ワイドバルコニー
- 南面バルコニー
- 全室フローリング
0037-618-05685
無料
設備・仕様
設備・仕様のこだわりポイント
- キッチン
-
- カウンターキッチン
- 浄水器・活水器
- 収納
-
- 床下収納
- ウォークインクローゼット
- パントリー
- 全居室収納
- その他設備
-
- 都市ガス
- シャワー付洗面化粧台
- 温水洗浄便座
- 浴室乾燥機
- トイレ2ヶ所以上
- 複層ガラス採用(二重サッシ・防犯サッシ等)
- 電動シャッター
- TVモニタ付インターホン
0037-618-05685
無料
外観・分譲地
外観・分譲地のこだわりポイント
- 駐車場あり
- 地盤調査済
- 南道路
- 整形地
- 平坦地
- 高台
0037-618-05685
無料
周辺環境・地図
周辺環境のこだわりポイント
- コンビニ 400m以内
- 小学校 800m以内
0037-618-05685
無料
物件概要
| 所在地 | 愛知県名古屋市港区惟信町4 | ||
|---|---|---|---|
| 交通 |
名古屋臨海高速あおなみ線「荒子川公園」駅 徒歩21分 名古屋臨海高速あおなみ線「港北」駅 徒歩33分 名古屋臨海高速あおなみ線「稲永」駅 徒歩33分 |
||
| 販売価格 | 3090万円・3190万円 | 最多価格帯 | - |
| 建物面積 | 105.3m2・105.71m2(31.85坪・31.97坪) | 土地面積 | 119.06m2・128.89m2(36.01坪・38.98坪) |
| 間取り | 4LDK | 建物構造 | 木造2階建てガルバリウム鋼板葺 |
| 販売スケジュール | 販売中 | ||
| 販売戸数 / 総戸数 | 2戸 / 3戸 | ||
| 完成予定日 | 2026年6月予定 | 引き渡し可能年月 | 相談 |
| 駐車場 | 2台 | 道路の幅員 | 道路幅:5.5m、アスファルト舗装、南側 約5.5m 公道接道 |
| 用途地域 | 第一種住居地域 | 都市計画 | - |
| 地目 | 宅地 | 国土法 | - |
| 土地の権利 | 所有権 | 借地権の種類・期間 | - |
| 主たる設備の概要 | 中部電力、都市ガス、公営水道、公共下水 | 建築確認番号 | 第KS125-0420-59435号他 |
| 施工会社 | - | 機構融資 | - |
| 売主 | 取引態様 | 飯田グループホールディングス ホームトレードセンター(株)名古屋中川営業所<仲介> | |
| 備考 |
《その他制限事項》準防火地域 【イベント情報】 現地見学会(事前に必ずお問い合わせください) 日程/公開中 時間/10:00~18:00 ◎貴重なお時間の中で、ご希望の情報をご案内致します! お客様のご都合に合わせて「知りたい情報だけ」という短時間のご案内も可能です。 事前にお申し付けください。 ◎見学の際はお客様のご希望に合わせて3コース設けております。 当日はデジカメやスマホでの写真撮影ももちろん可能です。ご自宅でのご検討の際にお役立てください。 1)さくっと現地見学コース(所要時間:30分) お忙しいお客様向けです。物件のご案内(主に間取り)のみさせていただきます。 2)じっくり見学コース(所要時間:1時間) 物件の雰囲気だけではなく、設備などもしっかり確認されたいお客様向けです。 間取りに加え、システムキッチンなど気になる設備もしっかりご案内いたします。 3)納得見学コース(所要時間:2時間) 「見学予約」の際は、上記希望の番号をご入力ください。 「お電話やメール」の際も、番号をお伝えいただけると、ご案内がスムーズです。 ◎物件の間取り、設備に加え、周辺環境もご案内いたします。 現時点では、小学校、スーパー、図書館などご家族でご利用されることが予想される施設を車で回る予定です。「こんな施設があったら見学したい!」というようなご希望があればぜひご連絡ください。 ◎初めての住宅購入で、何から始めればいいか分からない! そんなお客様に、経験豊富なスタッフがわかりやすく丁寧にご案内致します! 小さなお子様連れでもゆったりと見学いただけますので、まずはお気軽にお問い合わせください。 ◎案内員が常駐しておりませんので、見学の際は必ず事前にお問い合わせいただけますと幸いです。 |
||
| 情報更新日 | 2026/05/25 | 次回更新予定日 | 2026/06/01 |
| 取引条件有効期限 | 2026/12/31 | ||
住宅性能・販売概要・権利のこだわりポイント
- 所有権
- 瑕疵担保付き
- 耐震・制震・免震構造
- 長期優良住宅
- 設計住宅性能評価書
- フラット35・S適合証明書
- 建設住宅性能評価書(新築時)
0037-618-05685
無料
取扱い不動産会社
スタッフからのコメント
- テレビCMでおなじみ【飯田グループHD販売専門スタッフ】
- 住宅ローンにお困りのお客様に複数の提携ローンの中から、お客様のご希望に合った住宅ローンをご提案致します。☆お気軽にご相談ください♪
《この物件について》日当たり良好な南向き☆ゆとりある並列2台駐車可能スペース♪ウォークインクローゼットやパントリー等、豊富な収納スペースがあり、快適性と機能美を兼ね備えた無駄のないシンプルで飽きのこないデザイン♪
《得意エリア》愛知県・三重県全域
鬼頭 淳治
ホームトレードセンター株式会社 名古屋中川営業所の会社情報
お電話でのお問合せは「LIFULL HOME'S(ライフルホームズ)を見て」とお伝えください
飯田グループホールディングス ホームトレードセンター(株)名古屋中川営業所
0037-618-05685
無料
- ※携帯電話はご利用いただけます
- ※光IP電話、及びIP電話をご利用のお客様はTEL:052-387-8578へご連絡ください
- ※携帯電話からお問合せいただいた方には、ショートメッセージ(SMS)またはLINE通知メッセージによるお問合せ内容に関する通知をお届けする場合があり、お客様の電話番号は株式会社LIFULLで一定期間保管されます
- ※株式会社LIFULLの個人情報の取扱い方針に同意のうえ、お電話ください
| 会社名 |
ホームトレードセンター株式会社 名古屋中川営業所 |
|---|---|
| 免許番号 | 国土交通大臣 (3) 第 8044 号 |
| 所在地 | 愛知県名古屋市中川区中郷1-36 グランスイート高畑西1F |
| 所属団体 |
(公社)全日本不動産協会東京都本部 |
この物件にお問合せする
実際に物件・周辺環境を見て検討したい!
近隣建物や接道の状況など資料で分からない部分も一目瞭然。 まずはWEBで事前予約、スムーズに見学しましょう
ご予約無しに直接ご来場された場合、担当者不在であったり、
他のお客様のご案内の都合上、お待たせしてしまうことがございます。
不動産会社に電話で相談したい!
飯田グループホールディングス ホームトレードセンター(株)名古屋中川営業所
0037-618-05685
無料
電話でのお問合せは「LIFULL HOME'S(ライフルホームズ)を見て」とお伝えください
- ※携帯電話はご利用いただけます
- ※光IP電話、及びIP電話をご利用のお客様はTEL:052-387-8578へご連絡ください
- ※携帯電話からお問合せいただいた方には、ショートメッセージ(SMS)またはLINE通知メッセージによるお問合せ内容に関する通知をお届けする場合があり、お客様の電話番号は株式会社LIFULLで一定期間保管されます
- ※株式会社LIFULLの個人情報の取扱い方針に同意のうえ、お電話ください
LIFULL HOME'Sは物件鮮度No.1を目指していきます 物件情報に誤りがある場合はコチラからご連絡ください
- 【物件番号】
- 1708578-0000170
- ※完成後1年未満で未入居の物件を「新築」と表示しております。
- ※完成予想図やCG合成画像は、門塀・植栽・庭・外観等、実際とは多少異なる場合があります。








