新築一戸建て 茅ヶ崎市松林3丁目 新築戸建 全1棟
- 価格
- 4190万円
- 所在地
- 神奈川県茅ヶ崎市松林3丁目
- 交通
- JR相模線「北茅ケ崎」駅 徒歩28分JR東海道本線「辻堂」駅 徒歩30分JR相模線「香川」駅
乗り換え案内
- 土地面積
- 99.94m2
- 建物面積
- 94.81m2
- 間取り
- 4LDK
◆TVコマーシャル・youtube広告放映開始 ◆2025年グループ成約数2271件の実績 !◆MEグループ提携住宅ローン50行以上!
◆本日ご内見可能です!お客様に安心して楽しくご見学いただくために、無料で自宅送迎サービスも行ってます!お気軽にお申しつけ下さい♪
◆見学後のご不安の解消に役立つ、物件ごとの周辺環境がわかる物件調査レポートをご希望の方に差し上げております!お気軽にご相談下さい!
0037-618-72177
無料
魅力1 ◆「今すぐ見たい!」にも対応します。『045-489-5600』にお電話を◆
マイホーム探し一番の資料は、「実際に見てみる事」です!そんな皆様のご要望に対応できるように、弊社では総勢20名以上の経験豊富な営業スタッフが皆さまの「今すぐ見たい」をサポートします!ぜひお気軽にお問い合わせくださいませ♪
魅力2 ◆「エムイーPLUS横浜」は「お子様、女性にやさしい店づくり」◆
お子様連れのお客様も安心して打ち合わせができるように、「フリードリンクサービス」・「キッズスペース」・「free wifiサービス」をご用意させて頂いております。どうぞご家族皆様で、お越しください♪
魅力3 ◆「住宅ローンに強く」、「頭金0円が希望の方」は、エムイーPLUS横浜まで♪
MEグループ全体で50行以上の銀行と住宅ローンの提携をしています。諸経費や家具家電もまとめて住宅ローンに組み込んで頭金0円でマイホームを購入する「やどかりっち」サービスから、既存のお借入を住宅ローンに組み込む「オーバーローン」サービスなど、皆さんのお金の希望は全てお任せください♪
0037-618-72177
無料
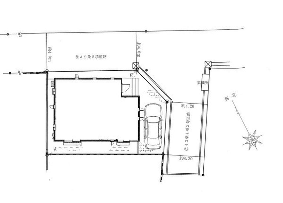
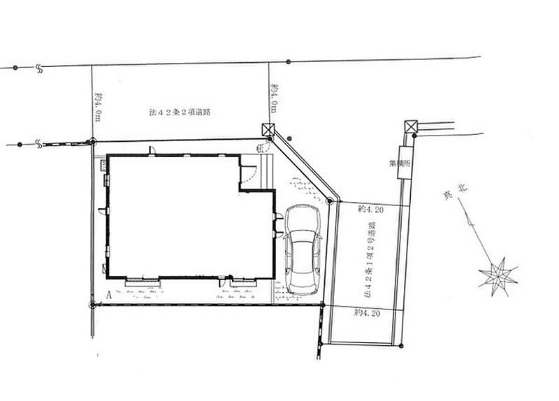
間取り図
0037-618-72177
無料
内観・室内
間取り・内観のこだわりポイント
- LDK15帖以上
- 4LDK以上
- 南面バルコニー
- 全室2面採光
- 全室フローリング
0037-618-72177
無料
設備・仕様
設備・仕様のこだわりポイント
- キッチン
-
- カウンターキッチン
- 収納
-
- 床下収納
- 全居室収納
- その他設備
-
- 都市ガス
- トイレ2ヶ所以上
0037-618-72177
無料
外観・分譲地
外観・分譲地のこだわりポイント
- 駐車場あり
- 角地
0037-618-72177
無料
周辺環境・地図
周辺環境のこだわりポイント
- スーパー 800m以内
- 小学校 800m以内
- 複数路線
0037-618-72177
無料
物件概要
| 所在地 | 神奈川県茅ヶ崎市松林3丁目 | ||
|---|---|---|---|
| 交通 |
JR相模線「北茅ケ崎」駅 徒歩28分 JR東海道本線「辻堂」駅 徒歩30分 JR相模線「香川」駅 |
||
| 販売価格 | 4190万円 | 最多価格帯 | - |
| 建物面積 | 94.81m2 | 土地面積 | 99.94m2 |
| 間取り | 4LDK | 建物構造 | 木造 2階建 |
| 販売スケジュール | 先着順受付中/販売中 | ||
| 販売戸数 / 総戸数 | 1戸 / 1戸 | ||
| 完成予定日 | 2026年04月 | 引き渡し可能年月 | 即入居可 |
| 駐車場 | 1台 | 道路の幅員 | :北4m 東4.2m |
| 用途地域 | 第一種中高層住居専用地域 | 都市計画 | 市街化区域 |
| 地目 | 宅地 | 国土法 | 届出不要 |
| 土地の権利 | 所有権 | 借地権の種類・期間 | - |
| 主たる設備の概要 | 都市ガス/公営水道/下水 | 建築確認番号 | 第HPA-25-11940-1号 |
| 施工会社 | - | 機構融資 | - |
| 売主 | - | 取引態様 | エムイーPLUS横浜株式会社/仲介 |
| イベント情報 |
|
||
| 備考 |
『接道』角地 北4m公道 東4.2m公道 『法令上の制限』準防火地域:有 設備:都市ガス 公営水道 下水 駐車場1台 角地 システムキッチン カウンタキッチン 対面キッチン バス・トイレ別 トイレ2ヶ所 浴室に窓 バルコニー 南面バルコニー 2階建 LDK15畳以上 採光2面 全室2面採光 室内洗濯機置き場 フローリング 全室フローリング 床下収納 全居室収納 洗面所独立 |
||
| 情報更新日 | 2026/05/18 | 次回更新予定日 | 2026/06/01 |
| 取引条件有効期限 | 2026/05/21 | ||
住宅性能・販売概要・権利のこだわりポイント
- 所有権
- 即入居可
0037-618-72177
無料
現地・イベント情報
◆住宅ローンアドバイザーによる無料住宅相談◆
| 開催日時 |
2026年03月01日〜2026年05月31日
|
|---|---|
| 開催場所 | 神奈川県茅ヶ崎市松林3丁目 |
| 交通 |
JR相模線「北茅ケ崎」駅 徒歩28分 |
不動産のプロである宅地建物取引だけでなく、「住宅ローンの提案に強い」、「住宅ローンアドバイザー」が弊社には常駐しております。借り入れ可能額を調べるだけでなく、下記内容もお任せ下さい♪ 1.ズバリお得な金利で住宅ローンを組みたい方 2.頭金0円、家具・家電・その他の諸費用もまとめて住宅ローンに組み込みたい方 3.他の不動産会社で断わられた方(永住権なし・信用情報で過去問題があった) 4.今のお借入を住宅ローンにまとめたい方♪
取扱い不動産会社
スタッフからのコメント
- ◆お住まい探しにPLUSの提案と価値をお届けします♪◆
- 首都圏に広がるME Group/マイホーム購入に特化した不動産コンサルタント会社。それしかできません。でもそれが『とにかく得意』です
戎屋智博
エムイーPLUS横浜株式会社の会社情報
お電話でのお問合せは「LIFULL HOME'S(ライフルホームズ)を見て」とお伝えください
エムイーPLUS横浜株式会社
0037-618-72177
無料
- ※携帯電話はご利用いただけます
- ※光IP電話、及びIP電話をご利用のお客様はTEL:045-489-5600へご連絡ください
- ※携帯電話からお問合せいただいた方には、ショートメッセージ(SMS)またはLINE通知メッセージによるお問合せ内容に関する通知をお届けする場合があり、お客様の電話番号は株式会社LIFULLで一定期間保管されます
- ※株式会社LIFULLの個人情報の取扱い方針に同意のうえ、お電話ください
| 会社名 |
エムイーPLUS横浜株式会社 |
|---|---|
| 免許番号 | 神奈川県知事 (1) 第 31938 号 |
| 所在地 | 神奈川県横浜市瀬谷区三ツ境1-9 ブルーヘンビル2階 |
| 所属団体 |
(公社)全日本不動産協会神奈川県本部 |
この物件にお問合せする
実際に物件・周辺環境を見て検討したい!
近隣建物や接道の状況など資料で分からない部分も一目瞭然。 まずはWEBで事前予約、スムーズに見学しましょう
ご予約無しに直接ご来場された場合、担当者不在であったり、
他のお客様のご案内の都合上、お待たせしてしまうことがございます。
不動産会社に電話で相談したい!
エムイーPLUS横浜株式会社
0037-618-72177
無料
電話でのお問合せは「LIFULL HOME'S(ライフルホームズ)を見て」とお伝えください
- ※携帯電話はご利用いただけます
- ※光IP電話、及びIP電話をご利用のお客様はTEL:045-489-5600へご連絡ください
- ※携帯電話からお問合せいただいた方には、ショートメッセージ(SMS)またはLINE通知メッセージによるお問合せ内容に関する通知をお届けする場合があり、お客様の電話番号は株式会社LIFULLで一定期間保管されます
- ※株式会社LIFULLの個人情報の取扱い方針に同意のうえ、お電話ください
LIFULL HOME'Sは物件鮮度No.1を目指していきます 物件情報に誤りがある場合はコチラからご連絡ください
- 【物件番号】
- 1708151-0001056
- ※完成後1年未満で未入居の物件を「新築」と表示しております。
- ※完成予想図やCG合成画像は、門塀・植栽・庭・外観等、実際とは多少異なる場合があります。
物件を再検索する
神奈川県の人気エリアから新築一戸建てを探す














