新築一戸建て 即日内見可能 × LDK22帖超の大空間 × 水廻り同フロア集約型 × 耐震・制震工法のお家
- 価格
- A号棟:14580万円
- 所在地
- 東京都杉並区高円寺北4丁目
- 交通
- JR中央線「高円寺」駅 徒歩10分JR総武線「高円寺」駅 徒歩10分JR中央線「阿佐ケ谷」駅 徒歩10分
乗り換え案内
- 土地面積
- A号棟:100.10m2
- 建物面積
- A号棟:97.19m2
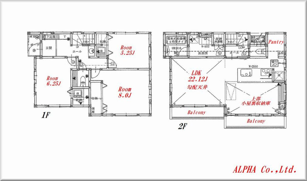
- 間取り
- A号棟:3LDK
都心部でありながら第一種低層住居専用地域内の落ち着いた住環境が魅力の場所です。高円寺駅は純情商店街など、お店で賑わい日々の暮らしがとても楽しくなります。利便性にも富む、暮らし易さが伝わってきます。
ゆとりの2階建、暮らしの中心となるLDKは22帖超を確保しております。皆様が自然と集い触れ合える場所を実現、ずっと想いを繋ぐ事が出来る間取りになります。収納力をUPする事で快適な居住空間となります。
耐震・制震工法、省エネ基準対応住宅など細部にまで拘り抜いた建物構造が永い暮らしに安心と安全をお届けします。暮らしを彩る多彩な設備仕様は日々の暮らしも優雅に演出します。ワンランク上のお家になります。
0037-618-66562
無料
魅力1 細部にまで拘り抜いた想いが存分に伝わるおススメのお住まいです。
魅力2 暮らしの中心となるLDKは皆様が快適にお過ごしいただける設計となっております。
魅力3 収納力を豊富に設置する事で快適な居住空間を演出します。
0037-618-66562
無料
間取り図
0037-618-66562
無料
内観・室内
間取り・内観のこだわりポイント
- LDK15帖以上
- 4LDK以上
- バリアフリー
- 南面バルコニー
- 全室2面採光
- 全室フローリング
0037-618-66562
無料
設備・仕様
設備・仕様のこだわりポイント
- キッチン
-
- カウンターキッチン
- 食器洗い乾燥機
- ガスコンロ
- 収納
-
- 床下収納
- ウォークインクローゼット
- 屋根裏収納
- シューズクローク
- パントリー
- 全居室収納
- その他設備
-
- 都市ガス
- シャワー付洗面化粧台
- 温水洗浄便座
- 浴室乾燥機
- 浴室暖房
- トイレ2ヶ所以上
- タンクレストイレ
- 節水型トイレ
- 床暖房
- スマートキー
- 省エネ給湯器
- TVモニタ付インターホン
- 宅配ボックス
0037-618-66562
無料
外観・分譲地
外観・分譲地のこだわりポイント
- 駐車場あり
- 低層住宅地
- 地盤調査済
- 整形地
- 平坦地
0037-618-66562
無料
周辺環境・地図
周辺環境のこだわりポイント
- スーパー 800m以内
- コンビニ 400m以内
- 小学校 800m以内
- 公園 400m以内
- 中学校 800m以内
- 保育園・幼稚園 400m以内
- 複数路線
0037-618-66562
無料
物件概要
| 所在地 | 東京都杉並区高円寺北4丁目 | ||
|---|---|---|---|
| 交通 |
JR中央線「高円寺」駅 徒歩10分 JR総武線「高円寺」駅 徒歩10分 JR中央線「阿佐ケ谷」駅 徒歩10分 |
||
| 販売価格 | A号棟:14580万円 | 最多価格帯 | - |
| 建物面積 | A号棟:97.19m2 | 土地面積 | A号棟:100.10m2 |
| 間取り | A号棟:3LDK | 建物構造 | 木造2階建 |
| 販売スケジュール | 販売中 | ||
| 販売戸数 / 総戸数 | 2戸 / 2戸 | ||
| 完成予定日 | 2026年3月末 | 引き渡し可能年月 | 即時 |
| 駐車場 | 有り (1台) | 道路の幅員 | 西側約4m |
| 用途地域 | 第一種低層住居専用地域 | 都市計画 | 市街化区域 |
| 地目 | 宅地 | 国土法 | 届出不要 |
| 土地の権利 | 所有権 | 借地権の種類・期間 | - |
| 主たる設備の概要 | 電気・公営水道・都市ガス | 建築確認番号 | 第R07確認K建築杉並00005号 |
| 施工会社 | - | 機構融資 | - |
| 売主 | 取引態様 | 株式会社アルファ / 仲介 | |
| 備考 |
ALPHA SELECTION ********************************** 現地案内会開催中 随時受け付けております。 事前にご予約をいただきますよう宜しくお願いいたします。 ▼幅広いエリアの情報力▼ 弊社では城西エリアに特化した情報は勿論の事、幅広いエリア情報のご紹介をしております。 お客様とお会いさせて頂きまして必ずご満足いただけますように常に物件収集をしております。 ▼お客様に合った提案力▼ お客様により優先順位やライフスタイルなど様々です。 弊社ではお客様のご要望を全て把握した上で最良のご提案をさせていただいております。 ▼不動産以外の事も完全サポートシステム▼ 不動産購入では不動産の事以外にも知らなければならない知識がたくさんあります。 ローン・税法・登記関係...などお客様に分かりやすくトータルアドバイザーとして努めます。 ▼お客様のライフスタイルに合った金融機関の選択▼ 金融機関によって商品は様々です。 どのご選択がお客様にとって最良なのか、 将来のライフ設計もご安心いただけますようご提案させていただきます。 ▼お客様のご指定いただく場所まで送迎サポート▼ お問い合わせをいただきました際にお待ち合わせ場所をお申し付けくださいませ。 ご案内終了時もお申し付けいただければご指定の場所までお送りいたします。 小さなお子様がいらっしゃるご家族もご安心頂けますようチャイルドシートもご用意ございます。 ▼ベストパートナーとして完全サポート▼ 常にお客様の立場になり全てにおいて全力でバックアップさせていただきます。 購入のタイミングやどのような物件がお客様にとって最適なのか、 などお客様と同じ目線になりサポートさせていただきます。 |
||
| 情報更新日 | 2026/04/27 | 次回更新予定日 | 随時 |
| 取引条件有効期限 | 2026/08/30 | ||
住宅性能・販売概要・権利のこだわりポイント
- 所有権
- 瑕疵担保付き
- 耐震・制震・免震構造
- フラット35・S適合証明書
- 即入居可
0037-618-66562
無料
取扱い不動産会社
スタッフからのコメント
- お客様に寄り添い、後悔のないお住まい探しをサポートします。
- 高円寺は弊社が営むおススメの街♪商店街があり毎日の暮らしも楽しくなります。私も休憩時間に色々なお店に足を運び、高円寺の街を楽しんでおります。本物件は駅から徒歩10分の場所にある低層エリアの落ち着いた住環境、住まう場所としては最適だと思います。近くには人気の馬橋公園もあり、自然と触れ合る事も出来ます。利便性・住環境、そして資産性も兼ね備えた魅力の立地条件です。
ゆったり2階建のお家、LDKは20帖超を確保しておりますので皆様が快適にお過ごしいただけます。A号棟・B号棟それぞれ間取りの良さがありますので暮らしに合わせてご選択ください♪建売住宅とは思えないラグジュアリー感溢れるお住まいになります。
関 綾乃
株式会社アルファの会社情報
お電話でのお問合せは「LIFULL HOME'S(ライフルホームズ)を見て」とお伝えください
株式会社アルファ
0037-618-66562
無料
- ※携帯電話はご利用いただけます
- ※光IP電話、及びIP電話をご利用のお客様はTEL:03-5929-7290へご連絡ください
- ※携帯電話からお問合せいただいた方には、ショートメッセージ(SMS)またはLINE通知メッセージによるお問合せ内容に関する通知をお届けする場合があり、お客様の電話番号は株式会社LIFULLで一定期間保管されます
- ※株式会社LIFULLの個人情報の取扱い方針に同意のうえ、お電話ください
| 会社名 |
株式会社アルファ |
|---|---|
| 免許番号 | 東京都知事 (2) 第 101657 号 |
| 所在地 | 東京都杉並区高円寺北2-3-4高円寺ビル301 |
| 所属団体 |
(公社)全日本不動産協会東京都本部 |
アルファの会社紹介
この物件にお問合せする
実際に物件・周辺環境を見て検討したい!
近隣建物や接道の状況など資料で分からない部分も一目瞭然。 まずはWEBで事前予約、スムーズに見学しましょう
ご予約無しに直接ご来場された場合、担当者不在であったり、
他のお客様のご案内の都合上、お待たせしてしまうことがございます。
不動産会社に電話で相談したい!
株式会社アルファ
0037-618-66562
無料
電話でのお問合せは「LIFULL HOME'S(ライフルホームズ)を見て」とお伝えください
- ※携帯電話はご利用いただけます
- ※光IP電話、及びIP電話をご利用のお客様はTEL:03-5929-7290へご連絡ください
- ※携帯電話からお問合せいただいた方には、ショートメッセージ(SMS)またはLINE通知メッセージによるお問合せ内容に関する通知をお届けする場合があり、お客様の電話番号は株式会社LIFULLで一定期間保管されます
- ※株式会社LIFULLの個人情報の取扱い方針に同意のうえ、お電話ください
LIFULL HOME'Sは物件鮮度No.1を目指していきます 物件情報に誤りがある場合はコチラからご連絡ください
- 【物件番号】
- 1707987-0000191
- ※完成後1年未満で未入居の物件を「新築」と表示しております。
- ※完成予想図やCG合成画像は、門塀・植栽・庭・外観等、実際とは多少異なる場合があります。














