新築一戸建て 八王子市長房町 1期
- 価格
- 4590万円
- 所在地
- 東京都八王子市長房町 230-16
- 交通
- JR中央本線「西八王子」駅 神奈川中央交通「田谷(厚木市)」バス停から徒歩4分 徒歩29分京王高尾線「狭間」駅 西東京バス「さくら台団地中央」バス停から徒歩2分 徒歩2分JR横浜線「八王子」駅 西東京バス「カインズ八王子長房店前」バス停から徒歩9分 徒歩9分
乗り換え案内
- 土地面積
- 187.03m2
- 建物面積
- 111.83m2
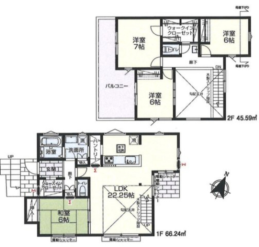
- 間取り
- 4LDK
この物件は未完成のため、掲載写真(外観、内観、設備等)には、施工例が含まれている場合があります。物件詳細については、掲載の不動産会社宛にお問合せください。
床暖房 浴室1坪以上 通風良好 温水洗浄便座 宅配ボックス
動線を意識したデザインのシステムキッチン付きで作業能率が上がります
建物面積111.83m2もありますので、ご検討ください。快適な生活を送れる4LDKの物件情報あります。新築戸建てで新生活を始めてはいかがでしょうか。
0037-618-12615
無料
魅力1 コチラの物件は、新築の戸建て物件で設備も充実しています。
デザイン性のあるシステムキッチン付きなので、キッチンがお洒落なスペースになっています。浴室乾燥機付きの物件は、浴室乾燥機のスイッチを入れればすぐに湿気を除去できるためカビや雑菌などの発生が抑えられます。足元から暖まる床暖房が付いています。一戸建て情報が豊富な住まいの広場でなら、八王子市のマイホームも見つかるでしょう。0120-168-015からご希望の条件をお申し付けください。
魅力2 設備充実の新築物件で新生活をはじめませんか。
足元から暖まる床暖房が付いています。ここでご紹介している物件は、南東向きです。宅配ボックスがあれば就寝中やリモートワークなど自宅にいても手が離せないときに、再配達の手間なしに荷物を受け取れます。システムキッチン付きの物件です。設備も充実している新築戸建ての物件はいかがでしょうか。水道代節約につながる追い焚き機能付きです。TVインターホン付きなので、女性の方も安心です。
魅力3 資料請求・見学予約は下記ボタンからお問い合わせください!
現地での案内のほか、どこからでも物件見学ができる「オンライン現地案内」を実施しています。「物件を見に行く時間が作れない」というお客様ばかりでなく、昨今は「コロナが気になって外出を控えたい」というお客様も。そのようなお客様でも「オンライン現地案内」ならお昼休みのちょっとした合間に1件だけ見学することもできます。どこからでも物件をご覧頂けるため、他人との接触も避けられます。簡単操作なので、スマホやパソコンの操作が苦手なお客様でも安心。接続をした後は現場でカメラを構えているスタッフへ撮影箇所の指示をしていただくだけです。ぜひご利用ください。
0037-618-12615
無料
間取り図
0037-618-12615
無料
内観・室内
間取り・内観のこだわりポイント
- LDK15帖以上
- 4LDK以上
- 全居室6帖以上
- 吹き抜け
- 和室
- ワイドバルコニー
- 全室2面採光
0037-618-12615
無料
設備・仕様
設備・仕様のこだわりポイント
- キッチン
-
- 食器洗い乾燥機
- 浄水器・活水器
- 収納
-
- 床下収納
- ウォークインクローゼット
- シューズクローク
- パントリー
- 全居室収納
- その他設備
-
- 都市ガス
- シャワー付洗面化粧台
- 温水洗浄便座
- 浴室乾燥機
- 浴室1.6×1.8m以上
- トイレ2ヶ所以上
- 床暖房
- 複層ガラス採用(二重サッシ・防犯サッシ等)
- 省エネ給湯器
- TVモニタ付インターホン
- 宅配ボックス
0037-618-12615
無料
外観・分譲地
外観・分譲地のこだわりポイント
- 駐車場あり
- 低層住宅地
- 角地
- 南道路
- 整形地
- 前面道路6m以上
0037-618-12615
無料
周辺環境・地図
周辺環境のこだわりポイント
- スーパー 800m以内
- 小学校 800m以内
- 総合病院 800m以内
- 公園 400m以内
- 複数路線
- 最寄り駅が始発駅
0037-618-12615
無料
物件概要
| 所在地 | 東京都八王子市長房町 230-16 | ||
|---|---|---|---|
| 交通 |
JR中央本線「西八王子」駅 神奈川中央交通「田谷(厚木市)」バス停から徒歩4分 徒歩29分 京王高尾線「狭間」駅 西東京バス「さくら台団地中央」バス停から徒歩2分 徒歩2分 JR横浜線「八王子」駅 西東京バス「カインズ八王子長房店前」バス停から徒歩9分 徒歩9分 |
||
| 販売価格 | 4590万円 | 最多価格帯 | - |
| 建物面積 | 111.83m2 | 土地面積 | 187.03m2 |
| 間取り | 4LDK | 建物構造 | 木造2階建 |
| 販売スケジュール | 販売中 | ||
| 販売戸数 / 総戸数 | 1戸 / 1戸 | ||
| 完成予定日 | 2026年6月 | 引き渡し可能年月 | 応相談 |
| 駐車場 | 1台 | 道路の幅員 | 西側5.0m |
| 用途地域 | 第一種低層住居専用地域 | 都市計画 | - |
| 地目 | 宅地 | 国土法 | 届出不要 |
| 土地の権利 | 所有権 | 借地権の種類・期間 | - |
| 主たる設備の概要 | 電気、公営水道、都市ガス | 建築確認番号 | 25UDI1T建03789 |
| 施工会社 | - | 機構融資 | - |
| 売主 | 取引態様 | (株)住まいの広場TOWNS(仲介) | |
| 備考 |
お客様がそれぞれ抱えている、「ローン」「税金」「売却」「リフォーム」「建築」「ライフプラン」「相続」に関しての不安を専門家と一緒に解決致します。一人で考える必要はございません!プロ集団が全面サポート!! 【年中無休/9:00~21:00】 人気物件は特にお問い合わせが集中するため、お早めにお電話下さい。 「室内・現地を見学する」ボタンよりご予約頂くとご見学がスムーズです。 ■その他、各種ご相談も承っております。 ○住宅ローンのご相談 ○ライフプランのシミュレーション ■住まいの広場TOWNSからお客様へ 経験豊富なスタッフが親身になってお客様に合った物件をご紹介させて頂きます! 未公開物件/他社様掲載物件も併せてご紹介可能ですのでお気軽にお問い合わせ下さい♪ 駐車場もございますので、お車でのお越しも大歓迎です! ・駅徒歩5分 ・無料駐車場あり ・送迎サービスあり ・夜9時まで営業 ・キッズルームあり ・ドリンクバーあり ・WEB接客/WEB案内実施 フリーダイヤル・資料請求は下のボタンからお問い合わせください。 |
||
| 情報更新日 | 2026/01/17 | 次回更新予定日 | 随時 |
| 取引条件有効期限 | 2027/01/17 | ||
住宅性能・販売概要・権利のこだわりポイント
- 所有権
- 瑕疵担保付き
0037-618-12615
無料
取扱い不動産会社
スタッフからのコメント
- 親切丁寧に対応致します♪
- 不動産探しから購入、そしてアフターフォローまで当社が親切丁寧にサポートいたします。地元のことを知り尽くしているスタッフの揃う当社へぜひお任せください。
岸田周平
株式会社住まいの広場TOWNSの会社情報
お電話でのお問合せは「LIFULL HOME'S(ライフルホームズ)を見て」とお伝えください
(株)住まいの広場TOWNS(仲介)
0037-618-12615
無料
- ※携帯電話はご利用いただけます
- ※光IP電話、及びIP電話をご利用のお客様はTEL:042-769-8099へご連絡ください
- ※携帯電話からお問合せいただいた方には、ショートメッセージ(SMS)またはLINE通知メッセージによるお問合せ内容に関する通知をお届けする場合があり、お客様の電話番号は株式会社LIFULLで一定期間保管されます
- ※株式会社LIFULLの個人情報の取扱い方針に同意のうえ、お電話ください
| 会社名 |
株式会社住まいの広場TOWNS |
|---|---|
| 免許番号 | 神奈川県知事 (2) 第 27368 号 |
| 所在地 | 神奈川県相模原市中央区相模原4-6-16 |
| 所属団体 |
(公社)全日本不動産協会神奈川県本部 |
この物件にお問合せする
実際に物件・周辺環境を見て検討したい!
近隣建物や接道の状況など資料で分からない部分も一目瞭然。 まずはWEBで事前予約、スムーズに見学しましょう
ご予約無しに直接ご来場された場合、担当者不在であったり、
他のお客様のご案内の都合上、お待たせしてしまうことがございます。
不動産会社に電話で相談したい!
(株)住まいの広場TOWNS(仲介)
0037-618-12615
無料
電話でのお問合せは「LIFULL HOME'S(ライフルホームズ)を見て」とお伝えください
- ※携帯電話はご利用いただけます
- ※光IP電話、及びIP電話をご利用のお客様はTEL:042-769-8099へご連絡ください
- ※携帯電話からお問合せいただいた方には、ショートメッセージ(SMS)またはLINE通知メッセージによるお問合せ内容に関する通知をお届けする場合があり、お客様の電話番号は株式会社LIFULLで一定期間保管されます
- ※株式会社LIFULLの個人情報の取扱い方針に同意のうえ、お電話ください
LIFULL HOME'Sは物件鮮度No.1を目指していきます 物件情報に誤りがある場合はコチラからご連絡ください
- 【物件番号】
- 1707893-0004230
- ※完成後1年未満で未入居の物件を「新築」と表示しております。
- ※完成予想図やCG合成画像は、門塀・植栽・庭・外観等、実際とは多少異なる場合があります。
物件を再検索する
東京都の人気エリアから新築一戸建てを探す
八王子市の詳細町域から新築一戸建てを探す










