一戸建て the CASA 生瀬高台-12-I
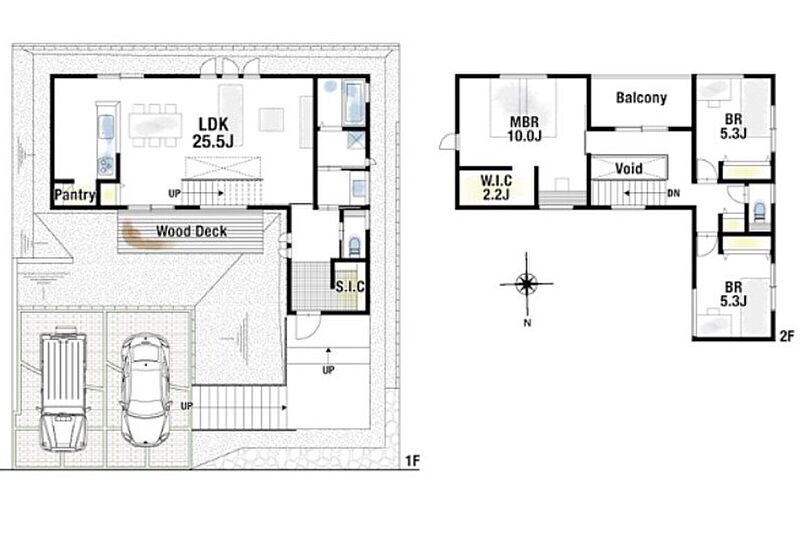
■25帖超えの広々LDK■閑静な住宅街にございますのでのんびりとお過ごしいただけます■各居室に収納があるだけでなくW.I.CやS.I.Cを完備した機能性の高い住まい
開放感あふれるウッドデッキは、家族で休日のバーベキューにも最適。リビングと繋がっていることにより空間が広く感じられます。
南向きのバルコニーは陽当りが良く、大きな窓と吹抜けを通じてLDKに心地よい光を取り込みます。
0037-618-71410
無料
魅力1 明るい室内でのびのびお過ごしいただける限定1邸!
吹抜けと大きな窓があるため、室内には光がよく入ります♪
約25帖の広々リビングで家族とコミュニケーションをとりながらのびのびとお過ごしいただけます。
キッチンからもリビングを見渡すことができるためお子様がいらっしゃるご家族にもおすすめです◎
リビングからウッドデッキが繋がっておりとても開放的な空間になり、自然を感じることもできます。夏はウッドデッキでBBQなどもおすすめです!
魅力2 約5帖の洋室が2部屋!お子様のお部屋にも◎
魅力3 敷地面積約59.53坪!
0037-618-71410
無料
内観・室内
間取り・内観のこだわりポイント
- LDK15帖以上
- 吹き抜け
- 南面バルコニー
0037-618-71410
無料
設備・仕様
設備・仕様のこだわりポイント
- キッチン
-
- カウンターキッチン
- 収納
-
- パントリー
- 全居室収納
- その他設備
-
- 都市ガス
- トイレ2ヶ所以上
- ウッドデッキ
0037-618-71410
無料
外観・分譲地
外観・分譲地のこだわりポイント
- 駐車場あり
- 低層住宅地
0037-618-71410
無料
周辺環境・地図
周辺情報
※半径4kmを超えると、周辺情報のアイコンは表示されません。
- ※不動産会社が入力した情報を基に物件の位置を表示しています。
- ※詳しくは不動産会社までお問合せください。
- ※地図上に表示される各種アイコンなどの情報は、おおよその所在地を表すものであり、物件・施設などの地点を保証するものではありません。
- ※地図の表示領域が広域になると周辺のお店・施設は表示できなくなります。
- ※地図、航空写真情報および地形ならびに周辺のお店・施設は、必ずしも現況を表すものではありません。
- ※物件から周辺のお店・施設までの距離は、利用が想定される道路を通行した場合の距離です。なお、必ずしも最短距離を保証するものではありません。
周辺環境のこだわりポイント
- 公園 400m以内
- 複数路線
0037-618-71410
無料
物件概要
| 所在地 | 兵庫県西宮市生瀬高台23-6 | ||
|---|---|---|---|
| 交通 |
JR福知山線「生瀬」駅 徒歩12分 JR福知山線「宝塚」駅 徒歩33分 |
||
| 販売価格 | 4280万円 | 最多価格帯 | - |
| 建物面積 | 112.79m2 | 土地面積 | 196.81m2 |
| 間取り | 3LDK W.I.C S.I.C パントリー | 建物構造 | 木造2階建 |
| 販売スケジュール | 販売中 | ||
| 販売戸数 / 総戸数 | 1戸 / 1戸 | ||
| 完成予定日 | 完成済 | 引き渡し可能年月 | 相談 |
| 駐車場 | 1台 ~ 2台 | 道路の幅員 | 北側幅員、約4.5m 接道、約13.3m |
| 用途地域 | 第一種低層住居専用地域 | 都市計画 | 市街化区域 |
| 地目 | 宅地 | 国土法 | - |
| 土地の権利 | 所有権 | 借地権の種類・期間 | - |
| 主たる設備の概要 | 水道/公営 ガス/都市ガス 汚水/公共下水 | 建築確認番号 | 完成済みのため省略 |
| 施工会社 | - | 機構融資 | - |
| 売主 | 取引態様 | 関西不動産販売(株)専任媒介 | |
| 備考 | フリーダイヤル 0120-31-0740 | ||
| 情報更新日 | 2026/03/30 | 次回更新予定日 | 随時 |
| 取引条件有効期限 | 2026/12/06 | ||
住宅性能・販売概要・権利のこだわりポイント
- 所有権
- 瑕疵担保付き
- 即入居可
0037-618-71410
無料
取扱い不動産会社
関西不動産販売株式会社 西宮店の会社情報
お電話でのお問合せは「LIFULL HOME'S(ライフルホームズ)を見て」とお伝えください
関西不動産販売(株)西宮店
0037-618-71410
無料
- ※携帯電話はご利用いただけます
- ※光IP電話、及びIP電話をご利用のお客様はTEL:0798-31-0700へご連絡ください
- ※携帯電話からお問合せいただいた方には、ショートメッセージ(SMS)またはLINE通知メッセージによるお問合せ内容に関する通知をお届けする場合があり、お客様の電話番号は株式会社LIFULLで一定期間保管されます
- ※株式会社LIFULLの個人情報の取扱い方針に同意のうえ、お電話ください
| 会社名 |
関西不動産販売株式会社 西宮店 |
|---|---|
| 免許番号 | 国土交通大臣 (1) 第 9973 号 |
| 所在地 | 兵庫県西宮市産所町14-5 ニュートンビル西宮 |
| 所属団体 |
(公社)近畿地区不動産公正取引協議会 |
この物件にお問合せする
不動産会社に電話で相談したい!
関西不動産販売(株)西宮店
0037-618-71410
無料
電話でのお問合せは「LIFULL HOME'S(ライフルホームズ)を見て」とお伝えください
- ※携帯電話はご利用いただけます
- ※光IP電話、及びIP電話をご利用のお客様はTEL:0798-31-0700へご連絡ください
- ※携帯電話からお問合せいただいた方には、ショートメッセージ(SMS)またはLINE通知メッセージによるお問合せ内容に関する通知をお届けする場合があり、お客様の電話番号は株式会社LIFULLで一定期間保管されます
- ※株式会社LIFULLの個人情報の取扱い方針に同意のうえ、お電話ください
LIFULL HOME'Sは物件鮮度No.1を目指していきます 物件情報に誤りがある場合はコチラからご連絡ください
- 【物件番号】
- 1707832-0000036
- ※完成後1年未満で未入居の物件を「新築」と表示しております。
- ※完成予想図やCG合成画像は、門塀・植栽・庭・外観等、実際とは多少異なる場合があります。
物件を再検索する
兵庫県の人気エリアから新築一戸建てを探す
西宮市の詳細町域から新築一戸建てを探す
- 青木町
- 石在町
- 泉町
- 今津久寿川町
- 今津水波町
- 上ケ原十番町
- 上田中町
- 上田西町
- 老松町
- 大森町
- 笠屋町
- 上甲子園
- 神園町
- 上之町
- 上葭原町
- 柏堂西町
- 川添町
- 川東町
- 神呪町
- 苦楽園四番町
- 苦楽園六番町
- 甲東園
- 甲陽園西山町
- 甲陽園東山町
- 小曽根町
- 小松東町
- 小松南町
- 桜谷町
- 五月ケ丘
- 里中町
- 下大市東町
- 大社町
- 高座町
- 段上町
- 津門稲荷町
- 津門住江町
- 中屋町
- 鳴尾町
- 仁川百合野町
- 仁川町
- 能登町
- 浜甲子園
- 浜町
- 東鳴尾町
- 東町
- 樋ノ口町
- 日野町
- 広田町
- 毘沙門町
- 前浜町
- 松生町
- 南甲子園
- 門戸荘
- 山口町下山口
- 山口町名来
- すみれ台
- 生瀬高台
- 花の峯
- 宝生ケ丘
- 名塩茶園町
- 生瀬東町
- 名塩さくら台
- 名塩
- 名塩木之元













