新築一戸建て オシャレなデザイナース住宅×ホテルライクな仕様/LDKゆったり21~23帖//新宿、吉祥寺直通
- 価格
- 1号棟15,500円(税込)・2号棟16,800万円(税込)
- 所在地
- 東京都杉並区久我山4
- 交通
- 京王井の頭線「久我山」駅 徒歩10分京王井の頭線「三鷹台」駅 徒歩11分JR中央線「西荻窪」駅 徒歩18分
乗り換え案内
- 土地面積
- 1号棟105.05m2・2号棟116.38m2
- 建物面積
- 1号棟122.04m2(車庫18.11m2含む)・2号棟146.51m2(車庫など34.83m2含む)
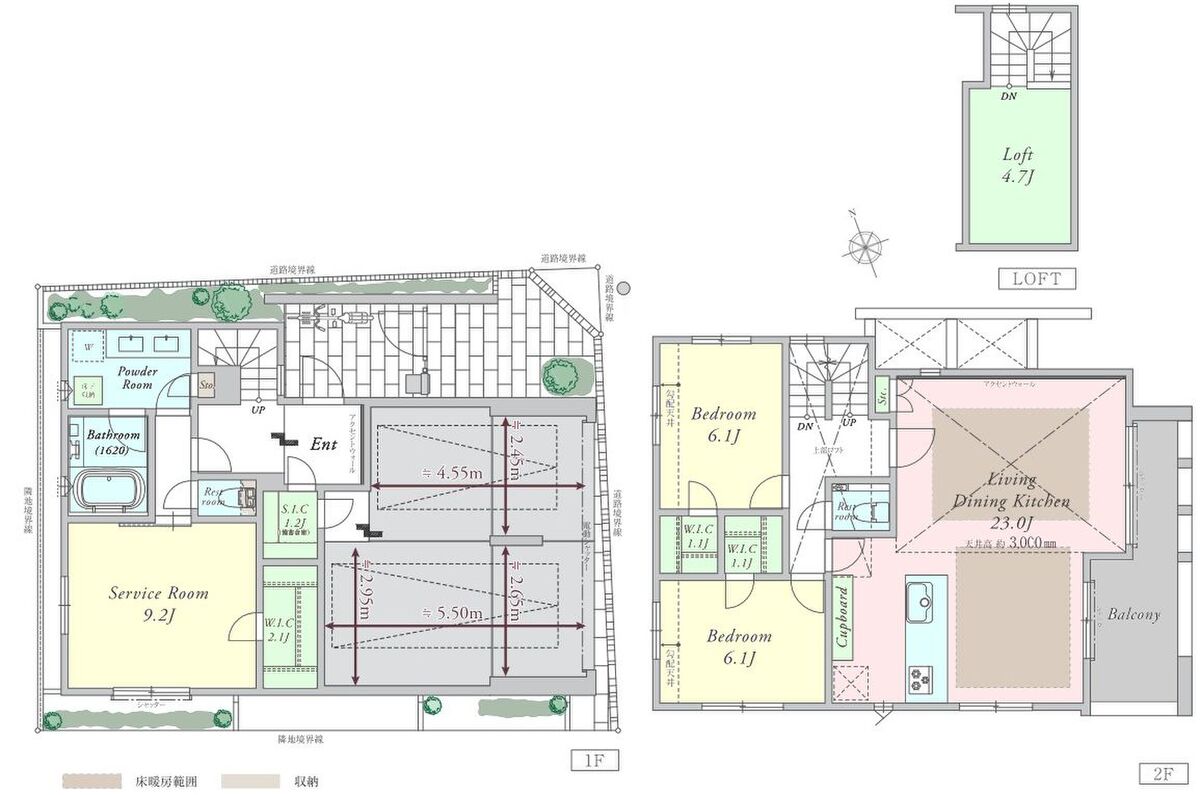
- 間取り
- 1号棟3LDK・2号棟2SLDK+ロフト
【交通】
・京王井の頭線「久我山駅」徒歩10分
~急行停車駅
~「吉祥寺」駅まで最短4分、「渋谷」駅まで最短13分直通
【POINT】
・陽当たりとプライバシーが守られる2階リビング
・カフェスタイルのオープンキッチンはみんなで会話を楽しみながらお料理を
・主寝室は8帖~9帖でキングサイズのベットや家具も余裕です
【設備】
・食器洗浄乾燥機
・大型カップボード
・浴室暖房乾燥機
・浴室1616~1620サイズ
・2ボウル洗面化粧台
・LD床暖房
・タンクレストイレ
・SIC
・WICなど
0037-618-17739
無料
魅力1 ファイナンシャルプランナーによる無料相談を実施中
■ファイナンシャルプランナーによる無料相談を実施しております。住宅ローンの支払いに係る将来のライフプランのご相談はもちろん、保険の見直しも含めたご相談も承れます。経験豊富なファイナンシャルプランナーが対応致しますので、お金に係ることはなんでもご相談ください。
■お探し初めのお客様は、月々のお支払いのイメージからご予算の確定に役立てて頂けます。
■具体的な検討段階のお客様は、物件購入後のライフプランに無理がないかご確認頂けます。
■ご購入後のお客様は、各種保険の見直しも含めたライフプランをご相談頂けます。
■完全予約制となります。尚、所要時間はおおよそ一時間半から二時間程度です。
魅力2 住設あんしんサポート
□住設あんしんサポート □
・最長10年間何度でも利用可能
・新品交換含め無料修理!
・窓口一本化でスムーズにご対応頂けます
※サポート加入条件については当社規定が御座います。
魅力3 アムティックのご紹介です
武蔵野・杉並・世田谷を中心に、価値あるお住み替えをサポート。
家族の想いをカタチにする 「住まい探し」
わたし達らしい 幸せのカタチを探しにいこう。
アムティックは、城南・城西エリアを中心に、都内23区から西東京エリアの広範囲をカバーしています。
創業以来 「家を持つ喜びと、より豊かな暮らしを提供したい。」 をテーマとして、これまで多くの 価値あるお住み替えをお手伝いしてきました。
それぞれの家族が住まいに 求める「幸せのカタチ」を結びつけらるよう、不動産のエキスパート”としてお客様のお住まいさがしをサポートします。
0037-618-17739
無料
間取り図
0037-618-17739
無料
内観・室内
間取り・内観のこだわりポイント
- LDK15帖以上
- バリアフリー
- ロフト付き
- 吹き抜け
- ワイドバルコニー
- 全室2面採光
- 全室フローリング
- 天井高2.5m以上
0037-618-17739
無料
設備・仕様
設備・仕様のこだわりポイント
- キッチン
-
- カウンターキッチン
- 食器洗い乾燥機
- 浄水器・活水器
- ガスコンロ
- 収納
-
- 床下収納
- ウォークインクローゼット
- シューズクローク
- パントリー
- 全居室収納
- その他設備
-
- 都市ガス
- シャワー付洗面化粧台
- 温水洗浄便座
- 浴室乾燥機
- 浴室1.6×1.8m以上
- 浴室暖房
- トイレ2ヶ所以上
- タンクレストイレ
- 節水型トイレ
- 床暖房
- 複層ガラス採用(二重サッシ・防犯サッシ等)
- 省エネ給湯器
- TVモニタ付インターホン
- ガレージ
0037-618-17739
無料
外観・分譲地
外観・分譲地のこだわりポイント
- 駐車場あり
- 低層住宅地
- 地盤調査済
- 角地
- 整形地
- 隣家との間隔が広い
- 平坦地
0037-618-17739
無料
周辺環境・地図
周辺環境のこだわりポイント
- スーパー 800m以内
- 小学校 800m以内
- 公園 400m以内
- 中学校 800m以内
- 保育園・幼稚園 400m以内
- 複数路線
0037-618-17739
無料
物件概要
| 所在地 | 東京都杉並区久我山4 | ||
|---|---|---|---|
| 交通 |
京王井の頭線「久我山」駅 徒歩10分 京王井の頭線「三鷹台」駅 徒歩11分 JR中央線「西荻窪」駅 徒歩18分 |
||
| 販売価格 | 1号棟15,500円(税込)・2号棟16,800万円(税込) | 最多価格帯 | - |
| 建物面積 | 1号棟122.04m2(車庫18.11m2含む)・2号棟146.51m2(車庫など34.83m2含む) | 土地面積 | 1号棟105.05m2・2号棟116.38m2 |
| 間取り | 1号棟3LDK・2号棟2SLDK+ロフト | 建物構造 | 木造2階建 |
| 販売スケジュール | 新発表/好評販売中 | ||
| 販売戸数 / 総戸数 | 2戸 / 2戸 | ||
| 完成予定日 | 完成済み(2026年1月築) | 引き渡し可能年月 | 即引き渡し可能 |
| 駐車場 | 1台 ~ 2台(ビルトインガレージ1~2台) | 道路の幅員 | 北側約4.0m私道、東側約5.4m公道 |
| 用途地域 | 第一種低層住居専用地域 | 都市計画 | - |
| 地目 | 宅地 | 国土法 | - |
| 土地の権利 | 所有権 | 借地権の種類・期間 | - |
| 主たる設備の概要 | 電気、公営水道、都市ガス | 建築確認番号 | 完成済みのため省略 |
| 施工会社 | - | 機構融資 | - |
| 売主 | 取引態様 | 仲介/アムティック株式会社 杉並支店 | |
| 備考 | - | ||
| 情報更新日 | 2026/04/11 | 次回更新予定日 | 随時 |
| 取引条件有効期限 | 2026/09/30 | ||
住宅性能・販売概要・権利のこだわりポイント
- 所有権
- 瑕疵担保付き
- 即入居可
0037-618-17739
無料
取扱い不動産会社
スタッフからのコメント
- 杉並区の物件は中村にお任せください!
- お住まい探しは思いのほか労力がかかるものです。
お客様の負担を少なくし、お客様に喜んで頂ける様に心がけてお住まい探しのお手伝いをさせていただいております。
私自身が住宅購入をした経験を踏まえて「家族や親戚、友人の住宅」を探しているつもりで、お客様の御要望を叶える為のお手伝いをさせて頂きます。
「中村にお願いして良かった」と言っていただけるよう全力で頑張ります!
私の仕事は皆様が幸せになるためのお手伝いをすることです。
その為にいつもお客様の心の声に耳を傾ける様に気をつけています。
それでは、お会いできる日を楽しみにしております!
中村光宏
アムティック株式会社 杉並支店の会社情報
お電話でのお問合せは「LIFULL HOME'S(ライフルホームズ)を見て」とお伝えください
アムティック株式会社 杉並支店
0037-618-17739
無料
- ※携帯電話はご利用いただけます
- ※光IP電話、及びIP電話をご利用のお客様はTEL:0120-788-620へご連絡ください
- ※携帯電話からお問合せいただいた方には、ショートメッセージ(SMS)またはLINE通知メッセージによるお問合せ内容に関する通知をお届けする場合があり、お客様の電話番号は株式会社LIFULLで一定期間保管されます
- ※株式会社LIFULLの個人情報の取扱い方針に同意のうえ、お電話ください
| 会社名 |
アムティック株式会社 杉並支店 |
|---|---|
| 免許番号 | 東京都知事 (3) 第 96237 号 |
| 所在地 | 東京都杉並区高円寺南4-32-6 |
| 所属団体 |
(公社)東京都宅地建物取引業協会 |
この物件にお問合せする
実際に物件・周辺環境を見て検討したい!
近隣建物や接道の状況など資料で分からない部分も一目瞭然。 まずはWEBで事前予約、スムーズに見学しましょう
ご予約無しに直接ご来場された場合、担当者不在であったり、
他のお客様のご案内の都合上、お待たせしてしまうことがございます。
不動産会社に電話で相談したい!
アムティック株式会社 杉並支店
0037-618-17739
無料
電話でのお問合せは「LIFULL HOME'S(ライフルホームズ)を見て」とお伝えください
- ※携帯電話はご利用いただけます
- ※光IP電話、及びIP電話をご利用のお客様はTEL:0120-788-620へご連絡ください
- ※携帯電話からお問合せいただいた方には、ショートメッセージ(SMS)またはLINE通知メッセージによるお問合せ内容に関する通知をお届けする場合があり、お客様の電話番号は株式会社LIFULLで一定期間保管されます
- ※株式会社LIFULLの個人情報の取扱い方針に同意のうえ、お電話ください
LIFULL HOME'Sは物件鮮度No.1を目指していきます 物件情報に誤りがある場合はコチラからご連絡ください
- 【物件番号】
- 1707728-0000218
- ※完成後1年未満で未入居の物件を「新築」と表示しております。
- ※完成予想図やCG合成画像は、門塀・植栽・庭・外観等、実際とは多少異なる場合があります。














