新築一戸建て Bloom 大野城市白木原4丁目2期
◆【5/8綺麗に完成 内装写真公開!アイルだけのお得なキャンペーン実施中!】 ◆限定1棟♪ ◆西鉄「白木原」駅徒歩4分 ◆サニー(徒歩4分)セブンイレブン(徒歩7分)買い物施設も充実
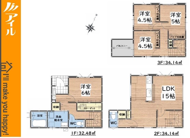
◆オールフローリング4LDK ◆キッチン横パントリー収納付 ◆2階にリビングを設置、3階に洋室を3部屋設置。プライバシーにも配慮された間取りです ◆大野小学校(徒歩9分)大野中学校(徒歩3分)エリア
★アイル×ARUHI 最短1分で借入可能額がわかるクイック事前審査!現地でも対応可能です ★アイルは定休日なし♪資料請求・その他お問合せはお気軽にどうぞ!
0037-618-46562
無料
魅力1 こだわりの間取り&充実の設備仕様
魅力2 カフェカウンター、キッチン ワークトップ、浄水器一体型 シャワー水栓
魅力3 アイルだけのお得な特典♪新生活に役立つ嬉しいプレゼントキャンペーン実施中!
アイルだけのお得なキャンペーン!
当店でご成約のお客様へ、新生活に役立つ嬉しい商品をプレゼント♪
【3点基本セット】
・カーテンレール
・純正網戸セット
・テレビアンテナ
【選べる設備】
・室内用物干し受け
・人感センサー付きダウンライト
・屋外用壁付け物干し受け
※上記3点の商品よりお選びください
詳しくは担当までお気軽にお問い合わせください。
0037-618-46562
無料
間取り図
0037-618-46562
無料
内観・室内
間取り・内観のこだわりポイント
- LDK15帖以上
- 4LDK以上
- 全室フローリング
- 3階建て
0037-618-46562
無料
設備・仕様
設備・仕様のこだわりポイント
- キッチン
-
- カウンターキッチン
- 食器洗い乾燥機
- 浄水器・活水器
- ガスコンロ
- 収納
-
- 床下収納
- パントリー
- その他設備
-
- 都市ガス
- シャワー付洗面化粧台
- 温水洗浄便座
- 浴室乾燥機
- 浴室暖房
- トイレ2ヶ所以上
- 節水型トイレ
- 複層ガラス採用(二重サッシ・防犯サッシ等)
- TVモニタ付インターホン
0037-618-46562
無料
外観・分譲地
外観・分譲地のこだわりポイント
- 駐車場あり
- 地盤調査済
- 前面道路6m以上
- 平坦地
0037-618-46562
無料
周辺環境・地図
周辺情報
※半径4kmを超えると、周辺情報のアイコンは表示されません。
- ※不動産会社が入力した情報を基に物件の位置を表示しています。
- ※詳しくは不動産会社までお問合せください。
- ※地図上に表示される各種アイコンなどの情報は、おおよその所在地を表すものであり、物件・施設などの地点を保証するものではありません。
- ※地図の表示領域が広域になると周辺のお店・施設は表示できなくなります。
- ※地図、航空写真情報および地形ならびに周辺のお店・施設は、必ずしも現況を表すものではありません。
- ※物件から周辺のお店・施設までの距離は、利用が想定される道路を通行した場合の距離です。なお、必ずしも最短距離を保証するものではありません。
周辺環境のこだわりポイント
- スーパー 800m以内
- 小学校 800m以内
- 中学校 800m以内
- 複数路線
0037-618-46562
無料
物件概要
| 所在地 | 福岡県大野城市白木原4丁目 | ||
|---|---|---|---|
| 交通 |
西鉄天神大牟田線「白木原」駅 徒歩4分 JR鹿児島本線「大野城」駅 徒歩7分 |
||
| 販売価格 | 4798万円 | 最多価格帯 | - |
| 建物面積 | 100.76m2 | 土地面積 | 81.16m2 |
| 間取り | 4LDK | 建物構造 | 木造 2階建 |
| 販売スケジュール | 販売中 | ||
| 販売戸数 / 総戸数 | 1戸 / 1戸 | ||
| 完成予定日 | 2026年03月 | 引き渡し可能年月 | 即入居可 |
| 駐車場 | 2台 | 道路の幅員 | 1号棟:北西9.8m |
| 用途地域 | 第一種住居地域 | 都市計画 | 市街化区域 |
| 地目 | 宅地 | 国土法 | - |
| 土地の権利 | 所有権 | 借地権の種類・期間 | - |
| 主たる設備の概要 | 都市ガス/個別LPG/公営水道 | 建築確認番号 | 第R07SHC120186号 |
| 施工会社 | - | 機構融資 | - |
| 売主 | - | 取引態様 | 株式会社アイル/仲介 |
| 備考 |
■アイルは安心の創業39年! 定休日なし 毎日現地見学可能 店舗はリクルート天神ビル4Fです ■現地案内随時受付中 当日のご内覧も可能です!お仕事帰りのお時間でも事前にご相談頂ければ調整いたします。 ・さくっとコース・・・忙しいお客さまでもさくっとご見学可能です。 ・ゆっくりコース・・・細かい設備等もゆっくりとご説明させていただきます。 ・じっくりコース・・・分譲地+周辺環境なども一緒にご紹介可能です。 その他お客さまのご予定に合わせてご内覧いただけます。 ■お子様連れでのご内覧・ご来店も大歓迎! お子様向けのお菓子等ご用意しております。お気軽にお申し付けくださいませ。 ■ご案内方法 ◎お客さまのご指定時間帯に、現地物件でのお待ち合わせ ◎担当スタッフによる送迎 ・ご自宅 ・最寄駅 ・物件近くの目印施設 etc… その他ご希望のお迎え場所等ございましたらお気軽にご相談下さい。 ◎弊社にご来店される場合 福岡市中央区舞鶴1-1-3 リクルート天神ビル4F ※お車でお越しの場合、駐車場料金は弊社が負担いたしますのでご安心ください 『接道』一方 北西9.8m公道 『法令上の制限』その他制限事項:宅地造成等工事規制区域 設備:都市ガス 個別LPG 公営水道 防犯シャッター 駐車場2台以上 平坦地 地盤調査済 前道6m以上 スーパーが近い(10分以内) 小学校徒歩10分以内 中学校徒歩10分以内 システムキッチン ガス3口 カウンタキッチン 対面キッチン 食器洗い機付き 浄水器 パントリー(食器・食品の収納庫) 追い焚き 浴室乾燥機 ウォシュレット オートバス付き トイレ2ヶ所 浴室1坪以上 節水型トイレ 浴室暖房 バルコニー 3階建以上 LDK15畳以上 採光2面 南向き 全室フローリング 収納 床下収納 下駄箱 シャンプドレッサー付き フラット35Sに対応 年度内入居可 モニタ付きインターフォン 複層ガラス 火災警報器(報知機) 通風良好 24時間換気システム |
||
| 情報更新日 | 2026/05/18 | 次回更新予定日 | 2026/06/01 |
| 取引条件有効期限 | 2026/05/21 | ||
住宅性能・販売概要・権利のこだわりポイント
- 所有権
- 即入居可
0037-618-46562
無料
取扱い不動産会社
スタッフからのコメント
- 最大限メリットが出せるプランをご提案させていただきます
- 売買・管理・賃貸全般を対応しており、購入時の税金対策や、所有物件の資産形成などを得意とします。不動産は長期で所有されることが多いと思いますので、最大限メリットが出せるプランをご提案させていただきます。
藤宏之
株式会社アイルの会社情報
お電話でのお問合せは「LIFULL HOME'S(ライフルホームズ)を見て」とお伝えください
株式会社アイル
0037-618-46562
無料
- ※携帯電話はご利用いただけます
- ※光IP電話、及びIP電話をご利用のお客様はTEL:092-737-1200へご連絡ください
- ※携帯電話からお問合せいただいた方には、ショートメッセージ(SMS)またはLINE通知メッセージによるお問合せ内容に関する通知をお届けする場合があり、お客様の電話番号は株式会社LIFULLで一定期間保管されます
- ※株式会社LIFULLの個人情報の取扱い方針に同意のうえ、お電話ください
| 会社名 |
株式会社アイル |
|---|---|
| 免許番号 | 福岡県知事 (8) 第 11679 号 |
| 所在地 | 福岡県福岡市中央区舞鶴1丁目1番3号 |
| 所属団体 |
(公社)福岡県宅地建物取引業協会 |
この物件にお問合せする
実際に物件・周辺環境を見て検討したい!
近隣建物や接道の状況など資料で分からない部分も一目瞭然。 まずはWEBで事前予約、スムーズに見学しましょう
ご予約無しに直接ご来場された場合、担当者不在であったり、
他のお客様のご案内の都合上、お待たせしてしまうことがございます。
不動産会社に電話で相談したい!
株式会社アイル
0037-618-46562
無料
電話でのお問合せは「LIFULL HOME'S(ライフルホームズ)を見て」とお伝えください
- ※携帯電話はご利用いただけます
- ※光IP電話、及びIP電話をご利用のお客様はTEL:092-737-1200へご連絡ください
- ※携帯電話からお問合せいただいた方には、ショートメッセージ(SMS)またはLINE通知メッセージによるお問合せ内容に関する通知をお届けする場合があり、お客様の電話番号は株式会社LIFULLで一定期間保管されます
- ※株式会社LIFULLの個人情報の取扱い方針に同意のうえ、お電話ください
LIFULL HOME'Sは物件鮮度No.1を目指していきます 物件情報に誤りがある場合はコチラからご連絡ください
- 【物件番号】
- 1707681-0005070
- ※完成後1年未満で未入居の物件を「新築」と表示しております。
- ※完成予想図やCG合成画像は、門塀・植栽・庭・外観等、実際とは多少異なる場合があります。
物件を再検索する
福岡県の人気エリアから新築一戸建てを探す














