新築一戸建て 武蔵新城駅 徒歩22分 ◆5/18(月)~5/24(日)は見学会♪ ◆現地見学予約はフリーダイヤルまで!
- 価格
- 4780万円~4980万円
- 所在地
- 神奈川県川崎市高津区千年
- 交通
- JR南武線「武蔵新城」駅 徒歩22分東急田園都市線「梶が谷」駅 徒歩27分東急大井町線「溝の口」駅 バス乗車9分、新作八幡下バス停下車 徒歩10分
乗り換え案内
- 土地面積
- 100.54m2~139.06m2
- 建物面積
- 103.5m2~118.41m2
- 間取り
- 3LDK~4LDK
●新築デザイナーズ分譲住宅 眺望良好 都会の中の落ち着いた住環境 ♪
●全棟LDK16帖以上 グルニエのある収納豊富な2階建 リビング床暖房付き!
●(株)あんしんマイホームでは当日の現地見学も可能です!お気軽にお問い合わせください!
0037-618-72390
無料
魅力1 (1)あんしんマイホーム 8つの無料サービス
■■住宅ローン比較パッケージ■■
住宅ローン金利は人によって違います!0.1%で78万円も差がつく(35年ローン、4000万円借入時)のです!あなたの融資金利を最大12の銀行で一斉比較!
■■生涯無料!FP相談サービス■■
マイホーム購入後にスタートします!プロが生涯サポートで引渡し後もずっと続く安心!住宅ローン、ライフプランの見直し等々、生涯無料でご相談可能!
■■ライフプランニングシミュレーション■■
個別の将来設計を作成、安心の資金計画で住宅探しをスタート!共働きだけど心配、お子様を私立の学校に、子どもは3人以上ほしい等々、しっかり安全に計画!
魅力2 (2)だから選ばれる 川崎エリア口コミ評価No,1
■■はじめの一歩セミナー■■
「住宅探しを始める方、近い内に始めようとお考えの方」向けのセミナー。住まいの資金計画、購入計画で損をしたくない方に必ずお役立つ。約98%が大変役にたったと回答する人気のセミナー!
■■住宅購入とお金の本 無料プレゼント■■
当グループのFPの総力をあげて作成!必要に応じ、税理士、弁護士にも監修依頼!世情に合わせた金利動向や住宅購入の問題点を分かりやすさに徹底的にこだわって編集!
■■お仕事帰り相談会■■
忙しすぎてセミナーなどには参加できない そんなあなたになんと夜10時まで相談が可能!FP資格者が個別対応。個別相談だからより具体的で分かり易い。
魅力3 (3)相談だけでもOK お気軽にご相談下さい
■■住宅ローン安全確認シート■■
5人に1人が支払いに困窮!?無理な住宅ローンは組んではいけません!あなたが安全に返済できる上限を知りたくありませんか?借入可能額と借入安全額は違います!安心して返済していける借入額をご提案します!
■■ファイナンシャルプランナー個別相談■■
物件情報に目が行きがちなお住まい探し。でも、人生で最大のお買い物である住宅。数千万円もの住宅ローンを組むのですから、一番最初に行うべきはお金の相談。
住宅購入・売却など住宅購入に係るお金の問題をプロがサポート!FP資格者が個別にご対応。
0037-618-72390
無料
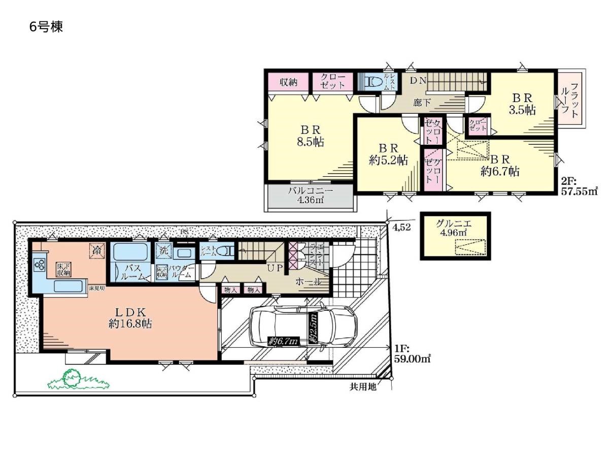
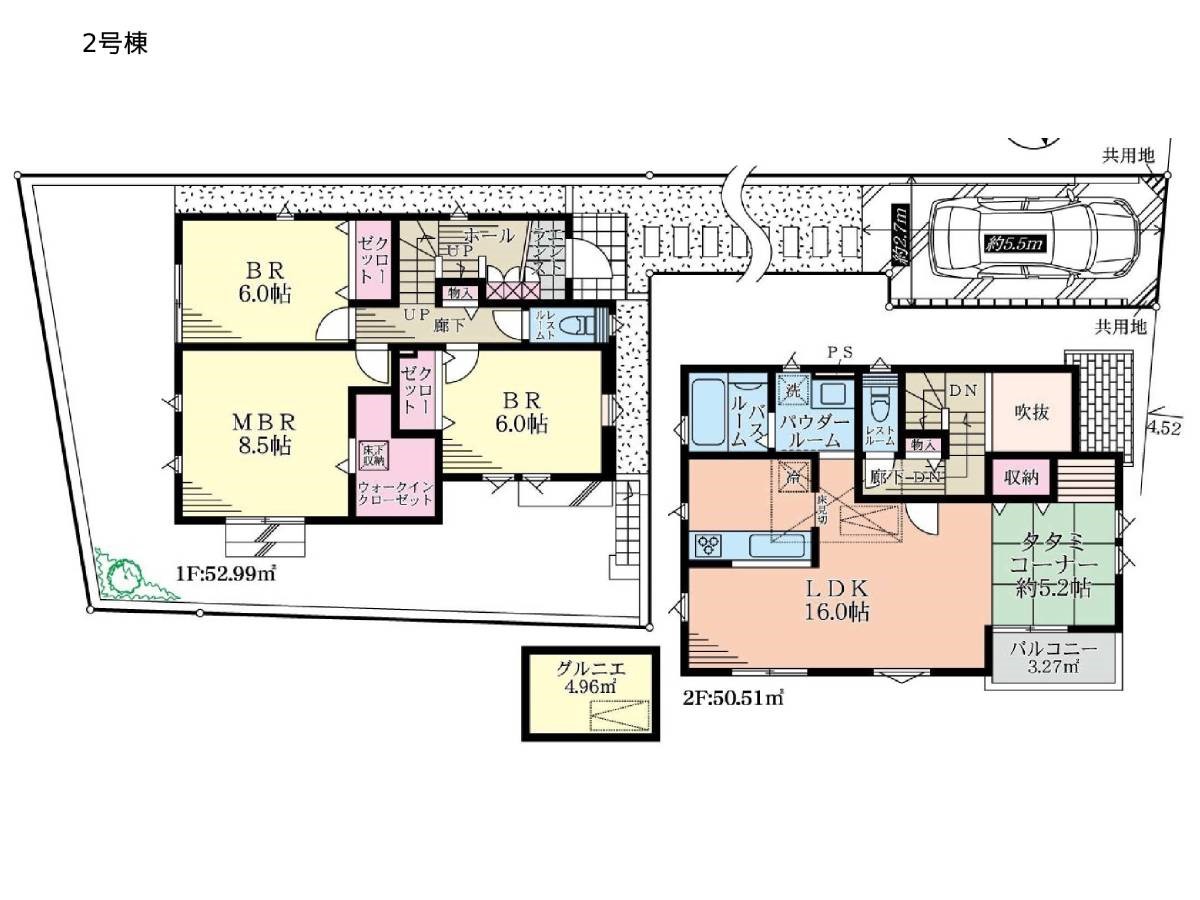
間取り図
0037-618-72390
無料
内観・室内
間取り・内観のこだわりポイント
- LDK15帖以上
- 4LDK以上
- 全居室6帖以上
- 吹き抜け
- 南面バルコニー
- 全室2面採光
- 全室フローリング
0037-618-72390
無料
設備・仕様
設備・仕様のこだわりポイント
- キッチン
-
- 浄水器・活水器
- ガスコンロ
- 収納
-
- 床下収納
- ウォークインクローゼット
- 全居室収納
- その他設備
-
- 都市ガス
- シャワー付洗面化粧台
- 温水洗浄便座
- 浴室乾燥機
- 浴室暖房
- トイレ2ヶ所以上
- 床暖房
- 複層ガラス採用(二重サッシ・防犯サッシ等)
- TVモニタ付インターホン
- ガレージ
0037-618-72390
無料
外観・分譲地
外観・分譲地のこだわりポイント
- テラス
- 駐車場あり
- 地盤調査済
- 高台
0037-618-72390
無料
周辺環境・地図
-
【その他】
ユニクロ (1200m 15分)
川崎市民プラザ通り店 シンプルなデザインと価格で人気。フリース...
-
【買い物】
A-プライス溝の口店 (1000m 13分)
飲食店向けの「プロの食材の店」として毎日の仕入をサポートします...
-
【買い物】
ライフ高津新作店 (1300m 17分)
「安全と安心」「鮮度と品質」「信頼とサービス」にこだわっていま...
-
【買い物】
ロイヤルホームセンター梶ヶ谷店 (1100m 14分)
工具・金物・資材をはじめ、リフォーム・インテリア・ガーデニング...
-
【買い物】
クリエイトS・D川崎千年店 (1400m 18分)
豊富な品揃えときめ細やかなサービスのドラッグストア。日用品から...
-
【買い物】
FUJI 上野川店 (1400m 18分)
近隣には、スーパーがいくつかあるので、お買い物が楽しくなりそう...
-
案内図
周辺環境のこだわりポイント
- 小学校 800m以内
- 公園 400m以内
- 中学校 800m以内
- 複数路線
0037-618-72390
無料
物件概要
| 所在地 | 神奈川県川崎市高津区千年 | ||
|---|---|---|---|
| 交通 |
JR南武線「武蔵新城」駅 徒歩22分 東急田園都市線「梶が谷」駅 徒歩27分 東急大井町線「溝の口」駅 バス乗車9分、新作八幡下バス停下車 徒歩10分 |
||
| 販売価格 | 4780万円~4980万円 | 最多価格帯 | 4900万円台1戸 4800万円台1戸 4700万円台2戸 他 |
| 建物面積 | 103.5m2~118.41m2 | 土地面積 | 100.54m2~139.06m2 |
| 間取り | 3LDK~4LDK | 建物構造 | 木造 2階建 |
| 販売スケジュール | 販売中 | ||
| 販売戸数 / 総戸数 | 4戸 / 6戸 | ||
| 完成予定日 | 2025年11月 | 引き渡し可能年月 | 即入居可 |
| 駐車場 | 1台 | 道路の幅員 | 4号棟:南東4.5m/6号棟:南東4.5m/1号棟:南東4.5m/2号棟:南東4.5m |
| 用途地域 | 第一種中高層住居専用地域 | 都市計画 | 市街化区域 |
| 地目 | 宅地 | 国土法 | 届出不要 |
| 土地の権利 | 所有権 | 借地権の種類・期間 | - |
| 主たる設備の概要 | 都市ガス/公営水道/公共下水 | 建築確認番号 | 第KBI-YKH25-10-0643号 |
| 施工会社 | - | 機構融資 | - |
| 売主 | - | 取引態様 | FP住宅相談ネットワーク(株)あんしんマイホーム / 仲介 |
| 備考 |
景観法による規制有、宅地造成工事規制区域、高度地区、準防火地域、日影制限有、崖上につき建築制限有、一部協定通路再建築時に擁壁の築造工事が必要です 建物面積に車庫面積含む(1号棟、6号棟12.42m2) 土地面積に路地状部分約25m2含む(2号棟、4号棟)共用地に関する協定書有 ゴミ協定書有 雨水排水に関する協定書有(2号棟、4号棟) ●現地見学時のタイムスケジュール お客様のご希望に合わせた所要時間でご対応いたします。なお、弊社で対応できる無料サービスは下記の通りです。 問合せ時に「時間がないので現地見学のみで」や「現地見学とライフプランのみ希望」など、お気軽に申し付け下さい。 (1)問合せ物件の見学:所要時間は30分程度 (2)周辺販売中物件の見学:所要時間は1物件ごとに20~30分程度 (3)周辺環境(スーパー、駅までの道のり)のご案内:所要時間20分程度 (4)住宅ローン12銀行比較パッケージ(弊社窓口で、各銀行の審査を一括で行います)所要時間:30分程度 (5)ライフプランシュミレーション(一生涯のお金の計算書を無料で作成します)所要時間:1時間程度 ●FP住宅相談ネットワークとは:ファイナンシャルプランナーが経営する住宅販売会社です。あんしんマイホームはそのグループの川崎相談窓口です。いずれも地元密着体制で未公開物件を数多く取扱いしているのが特徴です。 ●その他、無料サポートキャンペーン中! (1)はじめの一歩セミナー:「探し始めの方」や「今すぐではないけど、いずれ探そうと思っている方」向けの、住宅購入初心者セミナーです。毎月1回開催しています。 (2)契約前の物件調査(気に入った物件が見つかったら申し付け下さい) 不動産は契約後に返品はできません。住んでから後悔しないように、購入予定物件の周辺住民に聞き込み調査を行ってご報告致します。「近所トラブルが起きていないか」「変わった住人はいないか」「以前には何があったか」「水害やがけ崩れの履歴がないか」など、気になることは何でも無料で調査致します。プロフェッショナルとして後悔させない不動産取引をお約束いたします。 |
||
| 情報更新日 | 2026/05/20 | 次回更新予定日 | 2026/06/03 |
| 取引条件有効期限 | 2026/05/23 | ||
住宅性能・販売概要・権利のこだわりポイント
- 所有権
- 即入居可
0037-618-72390
無料
取扱い不動産会社
スタッフからのコメント
- お客様の不安をゼロにする無料サービスが好評です!
- はじめまして。青森県三沢市出身の玉川 広太(たまがわ こうた)と申します。
安全な支払額、住宅ローンの比較、十分すぎる物件見学、現地調査を契約前にしっかりとご説明いたします。
お客様目線で購入に関するご不安を軽減いたします。
●堂々の2冠を獲得!
物件情報充実度No,1 口コミ評価No,1
おかげさまで2018年川崎エリア不動産会社満足度調査において2冠を獲得することができました!!
●あんしんマイホームの各種無料サービス
◇12銀行比較パッケージ
◇ライフプランシミュレーション
◇未公開物件のご提案
◇契約前の物件調査(近所トラブル、事件事故、災害、電磁波、放射線)
玉川 広太
株式会社あんしんマイホーム 営業2課の会社情報
お電話でのお問合せは「LIFULL HOME'S(ライフルホームズ)を見て」とお伝えください
あんしんマイホーム
0037-618-72390
無料
- ※携帯電話はご利用いただけます
- ※光IP電話、及びIP電話をご利用のお客様はTEL:044-820-2318へご連絡ください
- ※携帯電話からお問合せいただいた方には、ショートメッセージ(SMS)またはLINE通知メッセージによるお問合せ内容に関する通知をお届けする場合があり、お客様の電話番号は株式会社LIFULLで一定期間保管されます
- ※株式会社LIFULLの個人情報の取扱い方針に同意のうえ、お電話ください
| 会社名 |
株式会社あんしんマイホーム 営業2課 |
|---|---|
| 免許番号 | 神奈川県知事 (2) 第 27909 号 |
| 所在地 | 神奈川県川崎市高津区久本3-13-10 |
| 所属団体 |
(公社)神奈川県宅地建物取引業協会 |
この物件にお問合せする
実際に物件・周辺環境を見て検討したい!
近隣建物や接道の状況など資料で分からない部分も一目瞭然。 まずはWEBで事前予約、スムーズに見学しましょう
ご予約無しに直接ご来場された場合、担当者不在であったり、
他のお客様のご案内の都合上、お待たせしてしまうことがございます。
不動産会社に電話で相談したい!
あんしんマイホーム
0037-618-72390
無料
電話でのお問合せは「LIFULL HOME'S(ライフルホームズ)を見て」とお伝えください
- ※携帯電話はご利用いただけます
- ※光IP電話、及びIP電話をご利用のお客様はTEL:044-820-2318へご連絡ください
- ※携帯電話からお問合せいただいた方には、ショートメッセージ(SMS)またはLINE通知メッセージによるお問合せ内容に関する通知をお届けする場合があり、お客様の電話番号は株式会社LIFULLで一定期間保管されます
- ※株式会社LIFULLの個人情報の取扱い方針に同意のうえ、お電話ください
LIFULL HOME'Sは物件鮮度No.1を目指していきます 物件情報に誤りがある場合はコチラからご連絡ください
- 【物件番号】
- 1707641-0000610
- ※完成後1年未満で未入居の物件を「新築」と表示しております。
- ※完成予想図やCG合成画像は、門塀・植栽・庭・外観等、実際とは多少異なる場合があります。













