新築一戸建て 【細田工務店】グローイングスクエア狛江グランネオ 第2期
【細田工務店】成約キャンペーン!モデルハウス販売会開催!小田急小田原線「狛江」駅徒歩8~9分。第一種低層住居専用地域に細田工務店のグランネオシリーズ全9邸!
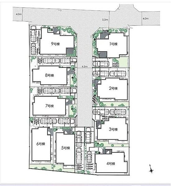
■開発道路を設けた全9邸のプライベート感あふれる街区
■建物面積98.4m2、4LDKのゆとりあるプラン
■創エネ×省エネ、光熱費の大幅削減、「太陽光発電システム」搭載
■東京ゼロエミB仕様
■高耐震・制震性を備えた6面体構造の「ハイブリッドキューブ工法」
■快適に健康的に過ごせるZEHレベルの高断熱性能・省エネ住宅
■耐久性・耐震性に優れ、金利優遇が受けられる「長期優良住宅」
0037-618-29916
無料
間取り図
0037-618-29916
無料
内観・室内
間取り・内観のこだわりポイント
- LDK15帖以上
- 4LDK以上
- バリアフリー
- 屋上・ルーフバルコニー
- ワイドバルコニー
- 南面バルコニー
- 全室フローリング
0037-618-29916
無料
設備・仕様
-
太陽光発電システム
環境とエコに貢献できる太陽光パネルを全棟...
-
エコワン
エコワンはガスと電気を組み合わせたハイブ...
-
スマートホーム(LIXIL Life A...
LIXIL社製のLife Assist2...
-
防犯カメラ
人感センサー、LEDライトを内蔵した防犯...
-
セコムホームセキュリティ
外出時も在宅時も24時間365日ご家族の...
-
省エネ性能ラベル
※販売対象の内の一部の住戸(8号棟)のラ...
-
長期優良住宅
環境負荷の軽減や良質な社会資産として継承...
-
ハイブリッドキューブ広報
制振性能をもつ壁倍率5倍の制振ダンパー耐...
-
ZEHレベルの高性能住宅
断熱サッシや天井等の「高断熱」化、LED...
設備・仕様のこだわりポイント
- キッチン
-
- カウンターキッチン
- 食器洗い乾燥機
- 浄水器・活水器
- ガスコンロ
- 収納
-
- 床下収納
- ウォークインクローゼット
- シューズクローク
- パントリー
- 全居室収納
- その他設備
-
- 都市ガス
- マイホーム発電システム
- スマートハウス
- シャワー付洗面化粧台
- 温水洗浄便座
- 浴室乾燥機
- 浴室1.6×1.8m以上
- 浴室暖房
- トイレ2ヶ所以上
- 節水型トイレ
- 床暖房
- ブロードバンド
- 複層ガラス採用(二重サッシ・防犯サッシ等)
- スマートキー
- 省エネ給湯器
- 電動シャッター
- TVモニタ付インターホン
- ホームセキュリティ対応
- 宅配ボックス
- EV充電設備
- ホームセキュリティ対応
- セコム
- スマートハウス
- ライフアシスト2
省エネ性能
- エネルギー消費性能:★★★★★★(削減率50%達成)
- 断熱性能:6段階/7段階
- 目安光熱費:約13.6万円/年 ※「省エネ性能ラベル」は特定の住戸の性能を示し、全ての住戸の性能を示していない場合があります。
0037-618-29916
無料
外観・分譲地
外観・分譲地のこだわりポイント
- 駐車場あり
- 低層住宅地
- 地盤調査済
- 整形地
- 平坦地
0037-618-29916
無料
周辺環境・地図
周辺情報
※半径4kmを超えると、周辺情報のアイコンは表示されません。
- ※不動産会社が入力した情報を基に物件の位置を表示しています。
- ※詳しくは不動産会社までお問合せください。
- ※地図上に表示される各種アイコンなどの情報は、おおよその所在地を表すものであり、物件・施設などの地点を保証するものではありません。
- ※地図の表示領域が広域になると周辺のお店・施設は表示できなくなります。
- ※地図、航空写真情報および地形ならびに周辺のお店・施設は、必ずしも現況を表すものではありません。
- ※物件から周辺のお店・施設までの距離は、利用が想定される道路を通行した場合の距離です。なお、必ずしも最短距離を保証するものではありません。
周辺環境のこだわりポイント
- スーパー 800m以内
- 小学校 800m以内
0037-618-29916
無料
物件概要
| 所在地 | 東京都狛江市中和泉1-1759-10(地番) | ||
|---|---|---|---|
| 交通 |
小田急小田原線「狛江」駅 徒歩9分 |
||
| 販売価格 | 11290万円 | 最多価格帯 | - |
| 建物面積 | 98.4m2(29.76坪) | 土地面積 | 125.01m2(37.81坪) |
| 間取り | 3(4)LDK ※4LDKに変更可(有償) | 建物構造 | 木造2階建(軸組工法) |
| 販売スケジュール | 先着順申込受付 | ||
| 販売戸数 / 総戸数 | 1戸 / 9戸 | ||
| 完成予定日 | 2025年12月 | 引き渡し可能年月 | 即入居可(諸手続き完了次第) |
| 駐車場 | 2台 | 道路の幅員 | 道路幅:4.5m・5m、アスファルト舗装・インターロッキング(私道負担136m2を1/9負担) |
| 用途地域 | 第一種低層住居専用地域 | 都市計画 | - |
| 地目 | 宅地 | 国土法 | - |
| 土地の権利 | 所有権 | 借地権の種類・期間 | - |
| 主たる設備の概要 | 東京電力、都市ガス、公営水道、公共下水道 | 建築確認番号 | 第R07SHC108745号(令和7年6月16日付) |
| 施工会社 | 株式会社 細田工務店 | 機構融資 | - |
| 売主 | 株式会社 細田工務店 [宅建業免許:国土交通大臣(16) 第483号] | 取引態様 | 株式会社 長谷工アーベスト(販売代理) |
| モデルルーム情報 | 公開中 | ||
| 備考 |
【先着順申込受付】 ■受付時間:午前10時~午後6時(毎週水曜木曜・第二火曜定休※祝日を除く) ■受付場所:現地インフォメーションセンター ※お申込みの際は認印、身分証明書、直近2年分の収入証明書(源泉徴収票・確定申告書の写し等)をご持参ください。 ※先着順受付のため、お申込み済み、ご契約済みの場合があります。予めご了承願います。 ・9物件合同成約特典キャンペーン:対象物件について、5/1(金)~5/31(日)までにご成約いただいた方に、「星野リゾート宿泊ギフト券10万円分プレゼント! ※2026年6月末日までに引渡可能な方。 ※成約特典は、他の特典・キャンペーンとの併用は不可です。詳細は営業スタッフへご確認ください。 |
||
| 情報更新日 | 2026/05/14 | 次回更新予定日 | 2026/05/28 |
| 取引条件有効期限 | 2026/05/31 | ||
住宅性能・販売概要・権利のこだわりポイント
- 所有権
- 仲介手数料不要
- 売主・代理
- 耐震・制震・免震構造
- 長期優良住宅
- 設計住宅性能評価書
- フラット35・S適合証明書
- 建設住宅性能評価書(新築時)
0037-618-29916
無料
取扱い不動産会社
株式会社細田工務店 の会社情報
お電話でのお問合せは「LIFULL HOME'S(ライフルホームズ)を見て」とお伝えください
インフォメーションデスク
0037-618-29916
無料
- ※携帯電話はご利用いただけます
- ※光IP電話、及びIP電話をご利用のお客様はTEL:0120-111-076へご連絡ください
- ※携帯電話からお問合せいただいた方には、ショートメッセージ(SMS)またはLINE通知メッセージによるお問合せ内容に関する通知をお届けする場合があり、お客様の電話番号は株式会社LIFULLで一定期間保管されます
- ※株式会社LIFULLの個人情報の取扱い方針に同意のうえ、お電話ください
| 会社名 |
株式会社細田工務店 |
|---|---|
| 免許番号 | 建設大臣 (16) 第 483 号 |
| 所在地 | 東京都杉並区阿佐谷南3-35-21 |
| 所属団体 |
(公社)首都圏不動産公正取引協議会 |
この物件にお問合せする
実際に物件・周辺環境を見て検討したい!
近隣建物や接道の状況など資料で分からない部分も一目瞭然。 まずはWEBで事前予約、スムーズに見学しましょう
ご予約無しに直接ご来場された場合、担当者不在であったり、
他のお客様のご案内の都合上、お待たせしてしまうことがございます。
不動産会社に電話で相談したい!
インフォメーションデスク
0037-618-29916
無料
電話でのお問合せは「LIFULL HOME'S(ライフルホームズ)を見て」とお伝えください
- ※携帯電話はご利用いただけます
- ※光IP電話、及びIP電話をご利用のお客様はTEL:0120-111-076へご連絡ください
- ※携帯電話からお問合せいただいた方には、ショートメッセージ(SMS)またはLINE通知メッセージによるお問合せ内容に関する通知をお届けする場合があり、お客様の電話番号は株式会社LIFULLで一定期間保管されます
- ※株式会社LIFULLの個人情報の取扱い方針に同意のうえ、お電話ください
LIFULL HOME'Sは物件鮮度No.1を目指していきます 物件情報に誤りがある場合はコチラからご連絡ください
- 【物件番号】
- 1707536-0000087
- ※完成後1年未満で未入居の物件を「新築」と表示しております。
- ※完成予想図やCG合成画像は、門塀・植栽・庭・外観等、実際とは多少異なる場合があります。
