新築一戸建て 【飯田グループ物件】所沢市上新井 16期 全2棟 ※駅チカ徒歩4分 ハートフルタウン
- 価格
- 4390万円
- 所在地
- 埼玉県所沢市上新井1
- 交通
- 西武池袋線「西所沢」駅 徒歩4分西武新宿線「航空公園」駅 徒歩24分西武狭山線「下山口」駅 徒歩27分
乗り換え案内
- 土地面積
- 93.98m2(実測)
- 建物面積
- 85.59m2(実測)
- 間取り
- 3LDK(納戸)
この物件は未完成のため、掲載写真(外観、内観、設備等)には、施工例が含まれている場合があります。物件詳細については、掲載の不動産会社宛にお問合せください。
<本日ご見学可>
駅チカ徒歩4分!長期優良住宅認定物件!
○お買い物施設が近く便利な立地!
スーパー徒歩9分、コンビニ徒歩6分、ドラッグストア徒歩5分
小学校徒歩12分、中学校徒歩30分、保育園徒歩4分
■レイアウト自在の16帖のLDK
■家事がはかどる食洗機付き対面キッチン
■安心・安全のおすみつき!
「設計」「建設」の【住宅性能評価】において耐震最高等級を全棟取得!
0037-618-80019
無料
魅力1 忙しい毎日に、余裕と安心をプラス
●24時間換気システムで健康的な暮らしを
常に新鮮な空気を取り入れることで、室内の二酸化炭素や湿気、臭いを排除し、健康的な生活環境を保つことができます。
●家族をつなぐ対面式キッチンと効率的な食洗機の組み合わせ!
対面キッチンなら、料理中も家族やゲストと会話を楽しめ、子どもやペットの様子も見守れます。食洗機を使えば片付けが楽になり、大切な人たちとの時間をより充実させられます。
●毎日の安全を見守るTVモニター付きインターホン
来訪者の確認・防犯対策・宅配便の対応もスムーズに。日々の暮らしの安心と便利を両立する、今や欠かせない必須設備です。
魅力2 毎日のお買い物が楽々!豊富なスーパーが揃う理想の住環境
【学校】
所沢市立上新井小学校:徒歩12分(960m)
所沢市立小手指中学校:徒歩30分(2400m)
【幼稚園・保育園】
桑の実西所沢保育園:徒歩4分(308m)
西所沢保育園:徒歩10分(743m)
【買い物】
西友西所沢店:徒歩9分(714m)
Olympicエフワン:徒歩10分(733m)
スーパーオザムけやき台店:徒歩13分(1010m)
デイリーヤマザキ西所沢駅前店:徒歩6分(430m)
マツモトキヨシ西所沢店:徒歩10分(741m)
【その他】
西所沢一郵便局:徒歩7分(558m)
所沢市立所沢図書館所沢分館:徒歩15分(1163m)
東和銀行所沢支店:徒歩8分(567m)
魅力3 【ホームトレードセンター】による一括サポート!お気軽にお問い合わせください!
☆ホームトレードセンターは日本一の分譲実績を誇る飯田グループホールディングス株式会社唯一の不動産販売専門会社です。
専門知識の高い販売専門のプロがアフターケアまでしっかりとサポート致します!
マイホーム探しや住宅購入、お住まいの住み替えご相談ください♪
当社買い取り保証サービスもご好評いただいております。もちろん住宅ローンのシミュレーション、資金計画等も承っております。
0037-618-80019
無料
間取り図
0037-618-80019
無料
内観・室内
間取り・内観のこだわりポイント
- LDK15帖以上
- バリアフリー
- 南面バルコニー
- 全室フローリング
0037-618-80019
無料
設備・仕様
-
【オートバス】
自動でお風呂の準備が整うため準備時間の短...
-
【長期優良住宅】
長期優良住宅とは、設備や広さなどの条件を...
-
【耐震性能最高等級3】
消防署や警察署など防災拠点となる建物に求...
-
【複層ガラス】
2枚のガラスを組み合わせて作った窓ガラス...
-
【システムキッチン】
見栄えもよくお手入れもスムーズに出来ます...
-
【浴室に窓】
窓付きのバスルームは、採光もあり明るく気...
-
ベタ基礎は「鉄筋コンクリート造」
耐震性を発揮する鉄筋入りスラブー体基礎を...
-
オリジナル柱脚・柱頭固定金物「TロックI...
「TロックII」は、ホールダウン金物の約...
-
「オリジナル耐力壁パネル」で特許を取得
壁倍率5.0倍は国土交通省が定める数値内...
設備・仕様のこだわりポイント
- キッチン
-
- カウンターキッチン
- 食器洗い乾燥機
- 浄水器・活水器
- 収納
-
- 床下収納
- 全居室収納
- その他設備
-
- 都市ガス
- シャワー付洗面化粧台
- 温水洗浄便座
- トイレ2ヶ所以上
- 節水型トイレ
- 複層ガラス採用(二重サッシ・防犯サッシ等)
- 省エネ給湯器
- TVモニタ付インターホン
省エネ性能
- エネルギー消費性能:★★★(削減率20%達成)
- 断熱性能:5段階/7段階 ※「省エネ性能ラベル」は特定の住戸の性能を示し、全ての住戸の性能を示していない場合があります。
0037-618-80019
無料
外観・分譲地
外観・分譲地のこだわりポイント
- 駐車場あり
- 低層住宅地
- 地盤調査済
- 敷地延長・変形地
- 整形地
0037-618-80019
無料
周辺環境・地図
周辺環境のこだわりポイント
- スーパー 800m以内
- 保育園・幼稚園 400m以内
- 複数路線
0037-618-80019
無料
物件概要
| 所在地 | 埼玉県所沢市上新井1 | ||
|---|---|---|---|
| 交通 |
西武池袋線「西所沢」駅 徒歩4分 西武新宿線「航空公園」駅 徒歩24分 西武狭山線「下山口」駅 徒歩27分 |
||
| 販売価格 | 4390万円 | 最多価格帯 | - |
| 建物面積 | 85.59m2(実測) | 土地面積 | 93.98m2(実測) |
| 間取り | 3LDK(納戸) | 建物構造 | 木造2階建 |
| 販売スケジュール | 販売中 | ||
| 販売戸数 / 総戸数 | 1戸 / 2戸 | ||
| 完成予定日 | 2026年5月 | 引き渡し可能年月 | 即引渡可 |
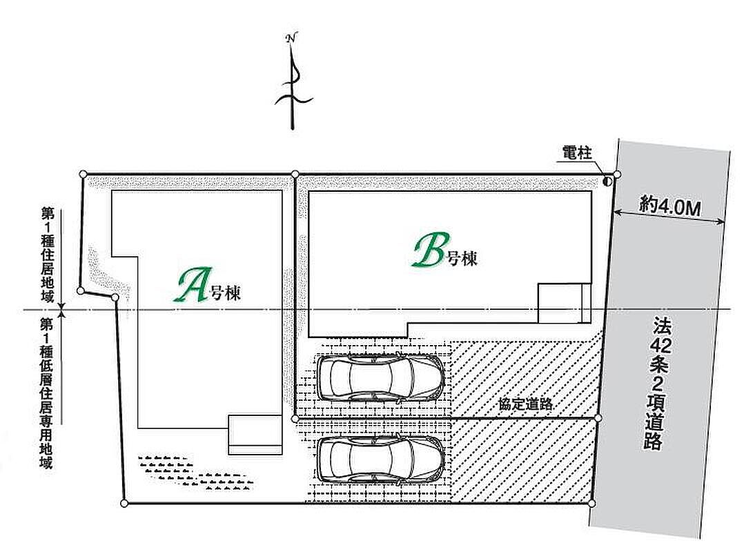
| 駐車場 | 1台 | 道路の幅員 | 道路幅:3m、アスファルト舗装、東 3m 私道 |
| 用途地域 | 第一種低層住居専用地域、第一種住居地域 | 都市計画 | - |
| 地目 | 宅地 | 国土法 | - |
| 土地の権利 | 所有権 | 借地権の種類・期間 | - |
| 主たる設備の概要 | 公営水道、公共下水、都市ガス | 建築確認番号 | 第HPA-26-00523-1号他 |
| 施工会社 | - | 機構融資 | - |
| 売主 | 取引態様 | 飯田グループホールディングス ホームトレードセンター(株)所沢営業所 <仲介> | |
| 備考 |
【その他制限事項】 景観法による規制有、航空法による規制有、宅地造成工事規制区域、日影制限有、土地面積:路地状部分約32平米含(A号棟)、東側42条2項道路(セットバックは土地面積と別途) 、法第22条区域、絶対高さ10m、自然公園法、都市再生特別措置法、掘削承諾有 【イベント情報】 ◎貴重なお時間の中で、ご希望の情報をご案内致します! お客様のご都合に合わせて「知りたい情報だけ」という短時間のご案内も可能です。 事前にお申し付けください。 ◎見学の際はお客様のご希望に合わせて3コース設けております。 当日はデジカメやスマホでの写真撮影ももちろん可能です。ご自宅でのご検討の際にお役立てください。 1)さくっと現地見学コース(所要時間:30分) お忙しいお客様向けです。物件のご案内(主に間取り)のみさせていただきます。 2)じっくり見学コース(所要時間:1時間) 物件の雰囲気だけではなく、設備などもしっかり確認されたいお客様向けです。 間取りに加え、システムキッチンなど気になる設備もしっかりご案内いたします。 3)納得見学コース(所要時間:2時間) 「見学予約」の際は、上記希望の番号をご入力ください。 「お電話やメール」の際も、番号をお伝えいただけると、ご案内がスムーズです。 ◎物件の間取り、設備に加え、周辺環境もご案内いたします。 現時点では、小学校、スーパー、図書館などご家族でご利用されることが予想される施設を車で回る予定です。「こんな施設があったら見学したい!」というようなご希望があればぜひご連絡ください。 ◎初めての住宅購入で、何から始めればいいか分からない! そんなお客様に、経験豊富なスタッフがわかりやすく丁寧にご案内致します! 小さなお子様連れでもゆったりと見学いただけますので、まずはお気軽にお問い合わせください。 ◎案内員が常駐しておりませんので、見学の際は必ず事前にお問い合わせいただけますと幸いです。 |
||
| 情報更新日 | 2026/05/29 | 次回更新予定日 | 2026/06/12 |
| 取引条件有効期限 | 2027/04/13 | ||
住宅性能・販売概要・権利のこだわりポイント
- 所有権
- 瑕疵担保付き
- 耐震・制震・免震構造
- 長期優良住宅
- 設計住宅性能評価書
- フラット35・S適合証明書
- 建設住宅性能評価書(新築時)
- 即入居可
0037-618-80019
無料
取扱い不動産会社
スタッフからのコメント
- 安心・安全な新築一戸建てをご案内します。
- ご住宅をご購入、ご売却いただく事によって、お客様の人生を豊かにするをモットーに1人1人のお客様に寄り添いながら、サポートさせていただきます。
《この物件について》駅チカの利便性と落ち着いた住環境を両立できるお住まいです。LDKゆったり16帖!ソファを置いても余裕の広さです。お買い物施設が近く日常の生活が便利な立地!小学校・保育園が徒歩圏内でお子様の通学も安心!
《得意エリア》埼玉県南中部、南西部、東京都多摩北部
崎山 貴大
飯田グループホールディングス ホームトレードセンター株式会社 所沢営業所の会社情報
お電話でのお問合せは「LIFULL HOME'S(ライフルホームズ)を見て」とお伝えください
飯田グループホールディングス ホームトレードセンター(株)所沢営業所
0037-618-80019
無料
- ※携帯電話はご利用いただけます
- ※光IP電話、及びIP電話をご利用のお客様はTEL:042-003-8588へご連絡ください
- ※携帯電話からお問合せいただいた方には、ショートメッセージ(SMS)またはLINE通知メッセージによるお問合せ内容に関する通知をお届けする場合があり、お客様の電話番号は株式会社LIFULLで一定期間保管されます
- ※株式会社LIFULLの個人情報の取扱い方針に同意のうえ、お電話ください
| 会社名 |
飯田グループホールディングス ホームトレードセンター株式会社 所沢営業所 |
|---|---|
| 免許番号 | 国土交通大臣 (3) 第 8044 号 |
| 所在地 | 埼玉県所沢市緑町1-16-21 センチュリー新所沢105号室 |
| 所属団体 |
(公社)埼玉県宅地建物取引業協会 |
この物件にお問合せする
実際に物件・周辺環境を見て検討したい!
近隣建物や接道の状況など資料で分からない部分も一目瞭然。 まずはWEBで事前予約、スムーズに見学しましょう
ご予約無しに直接ご来場された場合、担当者不在であったり、
他のお客様のご案内の都合上、お待たせしてしまうことがございます。
不動産会社に電話で相談したい!
飯田グループホールディングス ホームトレードセンター(株)所沢営業所
0037-618-80019
無料
電話でのお問合せは「LIFULL HOME'S(ライフルホームズ)を見て」とお伝えください
- ※携帯電話はご利用いただけます
- ※光IP電話、及びIP電話をご利用のお客様はTEL:042-003-8588へご連絡ください
- ※携帯電話からお問合せいただいた方には、ショートメッセージ(SMS)またはLINE通知メッセージによるお問合せ内容に関する通知をお届けする場合があり、お客様の電話番号は株式会社LIFULLで一定期間保管されます
- ※株式会社LIFULLの個人情報の取扱い方針に同意のうえ、お電話ください
LIFULL HOME'Sは物件鮮度No.1を目指していきます 物件情報に誤りがある場合はコチラからご連絡ください
- 【物件番号】
- 1706120-0002683
- ※完成後1年未満で未入居の物件を「新築」と表示しております。
- ※完成予想図やCG合成画像は、門塀・植栽・庭・外観等、実際とは多少異なる場合があります。
物件を再検索する
埼玉県の人気エリアから新築一戸建てを探す
- 川越市
- 熊谷市
- 川口市
- 行田市
- 秩父市
- 飯能市
- 加須市
- 本庄市
- 東松山市
- 春日部市
- 狭山市
- 羽生市
- 鴻巣市
- 深谷市
- 上尾市
- 草加市
- 越谷市
- 蕨市
- 戸田市
- 入間市
- 朝霞市
- 志木市
- 和光市
- 新座市
- 桶川市
- 久喜市
- 北本市
- 八潮市
- 富士見市
- 三郷市
- 蓮田市
- 坂戸市
- 幸手市
- 鶴ヶ島市
- 日高市
- 吉川市
- ふじみ野市
- 白岡市
- 北足立郡伊奈町
- 入間郡三芳町
- 入間郡毛呂山町
- 入間郡越生町
- 比企郡滑川町
- 比企郡嵐山町
- 比企郡小川町
- 比企郡川島町
- 比企郡吉見町
- 比企郡鳩山町
- 比企郡ときがわ町
- 秩父郡横瀬町
- 秩父郡皆野町
- 児玉郡美里町
- 児玉郡神川町
- 児玉郡上里町
- 大里郡寄居町
- 南埼玉郡宮代町
- 北葛飾郡杉戸町
- 北葛飾郡松伏町














