新築一戸建て 【1階と2階にファミリークロークのある家族に寄り添う工夫の詰まった邸宅。】
- 価格
- 4,780万円
- 所在地
- 東京都東村山市恩多町1
- 交通
- 西武新宿線「久米川」駅 徒歩25分西武新宿線「小平」駅 徒歩29分西武拝島線「萩山」駅 徒歩34分
乗り換え案内
- 土地面積
- 124.95m2
- 建物面積
- 100.83m2
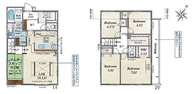
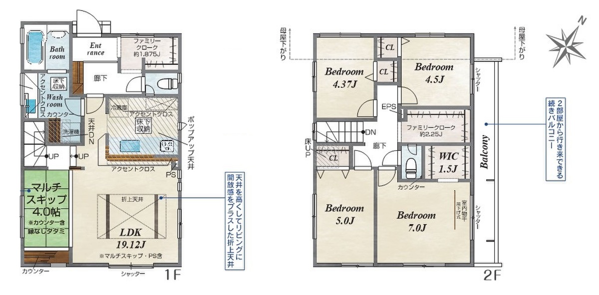
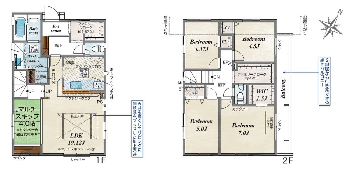
- 間取り
- 4LDK
1階にある19.12帖の広々としたLDKには、多目的に使える4.0帖のスキップフロアを配置。
2階から行き来できる続きバルコニーや大容量のファミリークロークなど、家事動線をスムーズにする工夫が満載。
駐車2台可(車種による)、前道8mでお車の出し入れスムーズです。
0037-618-41075
無料
魅力1 前面道路8mの開放感のある立地。
魅力2 暮らしを彩る充実の設備仕様。
魅力3 スーパーなど周辺環境の整った地域。
0037-618-41075
無料
間取り図
0037-618-41075
無料
内観・室内
間取り・内観のこだわりポイント
- 4LDK以上
- 全室2面採光
0037-618-41075
無料
設備・仕様
設備・仕様のこだわりポイント
- キッチン
-
- カウンターキッチン
- 食器洗い乾燥機
- 収納
-
- 床下収納
- ウォークインクローゼット
- 全居室収納
- その他設備
-
- 都市ガス
- 浴室乾燥機
- 浴室暖房
- トイレ2ヶ所以上
0037-618-41075
無料
外観・分譲地
外観・分譲地のこだわりポイント
- 駐車場あり
- 低層住宅地
- 前面道路6m以上
0037-618-41075
無料
周辺環境・地図
周辺環境のこだわりポイント
- 公園 400m以内
- 保育園・幼稚園 400m以内
- 複数路線
0037-618-41075
無料
物件概要
| 所在地 | 東京都東村山市恩多町1 | ||
|---|---|---|---|
| 交通 |
西武新宿線「久米川」駅 徒歩25分 西武新宿線「小平」駅 徒歩29分 西武拝島線「萩山」駅 徒歩34分 |
||
| 販売価格 | 4,780万円 | 最多価格帯 | - |
| 建物面積 | 100.83m2 | 土地面積 | 124.95m2 |
| 間取り | 4LDK | 建物構造 | 木造2階建 |
| 販売スケジュール | 販売中 | ||
| 販売戸数 / 総戸数 | 1戸 / 1戸 | ||
| 完成予定日 | 2026年4月中旬 | 引き渡し可能年月 | 2026年5月中旬 |
| 駐車場 | 駐車2台可(車種による) | 道路の幅員 | 北側8m |
| 用途地域 | 第一種低層住居専用地域 | 都市計画 | - |
| 地目 | 宅地 | 国土法 | - |
| 土地の権利 | 所有権 | 借地権の種類・期間 | - |
| 主たる設備の概要 | 電気、公営水道、都市ガス | 建築確認番号 | ヂ亜R07SHC122022号 |
| 施工会社 | - | 機構融資 | - |
| 売主 | 取引態様 | FP住宅相談ネットワーク(株)東京マイホーム計画 / 仲介 | |
| 備考 |
景観法による規制有、高度地区、準防火地域、日影制限有 現地見学会(事前に必ずお問い合わせください) 9:30~18:30 ※※建築見学会いよいよ開催!※※ ■今週の見学会タイムスケジュール■ (1)~(4)をお客様のご希望でアレンジいただけます (1)現地で建物構造や仕様の詳細説明 (約30分) ☆建物の基礎や躯体などは完成してからでは 判りません。建築中の今だからこそご確認 できる見学会です! ☆自分の家を建ててくれたのはどんな人? 大工さんに会えるのは今だけ! ☆近くの完成モデルハウスもご見学できます! (2)現地で周辺環境のご説明と実際のご見学 (約20分) ☆スーパーの品揃えや通学路の安全性、病院、 公園・・etc.生活の利便性を現体験できます! ☆その他無料のサービスとして・・・ 「ご近所にはどんな方がお住まいなのか・・」 などのご不安を事前に解消!現地ご見学の 際、ご希望があれば弊社営業スタッフが実際 に近隣の住民の方とお引き合わせします! (3)住宅ローン専門のFPによる資金計画とご提案 (約30分) (4)その他、ご条件に合わせた販売中物件のご見学 (約30分~120分) ☆広告出稿できない貴重な販売物件情報もござい ます。ご希望があれば営業スタッフにお申し出 ください。 *スタート時間につきましては、お問い合わせ時に ご指定いただけます。 *必要のないイベントは省略をしてお時間を短縮 することができます。 *お客様のお時間に合わせたご案内をお約束。 お問い合わせの際、営業スタッフに 「何時から何時まで」 とお申し出ください。 |
||
| 情報更新日 | 2026/05/14 | 次回更新予定日 | 2026/05/28 |
| 取引条件有効期限 | 2026/12/30 | ||
住宅性能・販売概要・権利のこだわりポイント
- 所有権
- 瑕疵担保付き
- 長期優良住宅
- 建設住宅性能評価書(新築時)
0037-618-41075
無料
取扱い不動産会社
スタッフからのコメント
- 本日現地のご案内が可能です!
- 【この物件について】 東京マイホーム計画では当日の現地見学も対応可能です。こちらの物件以外にも、東京西部・多摩エリアの物件が多数ございますので、お気軽にお問い合わせください!
永倉 裕樹
株式会社東京マイホーム計画の会社情報
お電話でのお問合せは「LIFULL HOME'S(ライフルホームズ)を見て」とお伝えください
FP住宅相談ネットワーク(株)東京マイホーム計画 / 042-386-7620 / 小金井市本町6-14-45
0037-618-41075
無料
- ※携帯電話はご利用いただけます
- ※光IP電話、及びIP電話をご利用のお客様はTEL:042-386-7620へご連絡ください
- ※携帯電話からお問合せいただいた方には、ショートメッセージ(SMS)またはLINE通知メッセージによるお問合せ内容に関する通知をお届けする場合があり、お客様の電話番号は株式会社LIFULLで一定期間保管されます
- ※株式会社LIFULLの個人情報の取扱い方針に同意のうえ、お電話ください
| 会社名 |
株式会社東京マイホーム計画 |
|---|---|
| 免許番号 | 東京都知事 (3) 第 97204 号 |
| 所在地 | 東京都小金井市本町6-14-45 OSビル2F |
| 所属団体 |
(公社)東京都宅地建物取引業協会 |
この物件にお問合せする
実際に物件・周辺環境を見て検討したい!
近隣建物や接道の状況など資料で分からない部分も一目瞭然。 まずはWEBで事前予約、スムーズに見学しましょう
ご予約無しに直接ご来場された場合、担当者不在であったり、
他のお客様のご案内の都合上、お待たせしてしまうことがございます。
不動産会社に電話で相談したい!
FP住宅相談ネットワーク(株)東京マイホーム計画 / 042-386-7620 / 小金井市本町6-14-45
0037-618-41075
無料
電話でのお問合せは「LIFULL HOME'S(ライフルホームズ)を見て」とお伝えください
- ※携帯電話はご利用いただけます
- ※光IP電話、及びIP電話をご利用のお客様はTEL:042-386-7620へご連絡ください
- ※携帯電話からお問合せいただいた方には、ショートメッセージ(SMS)またはLINE通知メッセージによるお問合せ内容に関する通知をお届けする場合があり、お客様の電話番号は株式会社LIFULLで一定期間保管されます
- ※株式会社LIFULLの個人情報の取扱い方針に同意のうえ、お電話ください
LIFULL HOME'Sは物件鮮度No.1を目指していきます 物件情報に誤りがある場合はコチラからご連絡ください
- 【物件番号】
- 1705947-0001766
- ※完成後1年未満で未入居の物件を「新築」と表示しております。
- ※完成予想図やCG合成画像は、門塀・植栽・庭・外観等、実際とは多少異なる場合があります。














