新築一戸建て 「グラファーレ 京王線 東府中駅徒歩12分、緑豊かな府中の地に限定1棟誕生。」
- 価格
- 5,680万円
- 所在地
- 東京都府中市若松町3
- 交通
- 京王線「東府中」駅 徒歩12分京王線「多磨霊園」駅 徒歩14分西武多摩川線「白糸台」駅 徒歩19分
乗り換え案内
- 土地面積
- 100.27m2
- 建物面積
- 79.48m2
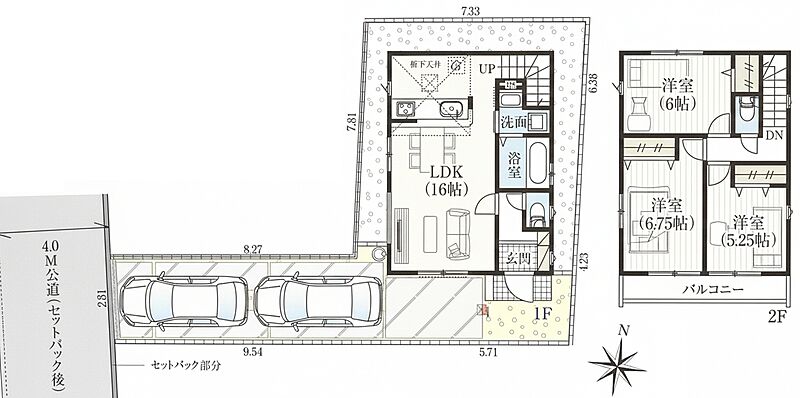
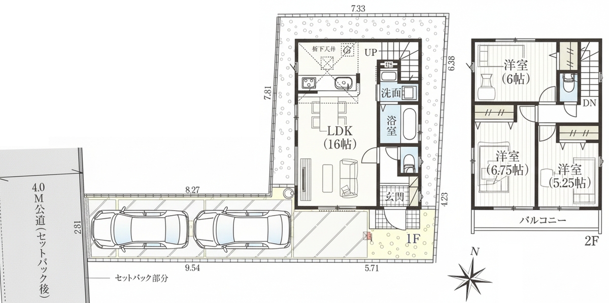
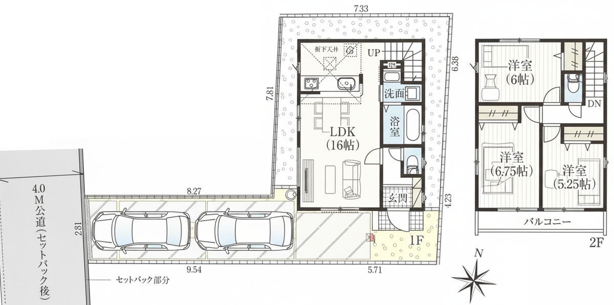
- 間取り
- 3LDK
京王線「東府中」駅まで徒歩12分・3駅利用可能な通勤通学に便利な好立地!忙しい朝や遅い帰宅時にも嬉しいですよね!駅周辺のお買物施設も利用でき、便利で快適な生活が送れそう。
耐震等級3、ZEH水準仕様の住宅。
住宅性能において国のお墨付きが得られたことの証明となる性能評価を取得した住宅です!高い耐震性能に加えて、耐熱に関しても最高等級を標準取得しており、安心して快適に暮らしていけるワンランク上の建物です。
0037-618-86310
無料
魅力1 閑静な住宅地で子育て家族にピッタリ。
魅力2 暮らしを彩る設備仕様。
魅力3 スーパーなど周辺施設が整った地域。
0037-618-86310
無料
間取り図
0037-618-86310
無料
内観・室内
間取り・内観のこだわりポイント
- LDK15帖以上
- 南面バルコニー
- 全室2面採光
0037-618-86310
無料
設備・仕様
設備・仕様のこだわりポイント
- キッチン
-
- カウンターキッチン
- 収納
-
- 床下収納
- その他設備
-
- 都市ガス
- 浴室乾燥機
- 浴室暖房
- トイレ2ヶ所以上
0037-618-86310
無料
外観・分譲地
外観・分譲地のこだわりポイント
- 駐車場あり
- 低層住宅地
- 敷地延長・変形地
0037-618-86310
無料
周辺環境・地図
周辺環境のこだわりポイント
- スーパー 800m以内
- コンビニ 400m以内
- 小学校 800m以内
- 複数路線
0037-618-86310
無料
物件概要
| 所在地 | 東京都府中市若松町3 | ||
|---|---|---|---|
| 交通 |
京王線「東府中」駅 徒歩12分 京王線「多磨霊園」駅 徒歩14分 西武多摩川線「白糸台」駅 徒歩19分 |
||
| 販売価格 | 5,680万円 | 最多価格帯 | - |
| 建物面積 | 79.48m2 | 土地面積 | 100.27m2 |
| 間取り | 3LDK | 建物構造 | 木造2階建 |
| 販売スケジュール | 販売中 | ||
| 販売戸数 / 総戸数 | 1戸 / 1戸 | ||
| 完成予定日 | 2026年3月末日 | 引き渡し可能年月 | 相談 |
| 駐車場 | - | 道路の幅員 | 西側4m |
| 用途地域 | 第一種低層住居専用地域 | 都市計画 | 市街化区域 |
| 地目 | 宅地 | 国土法 | - |
| 土地の権利 | 所有権 | 借地権の種類・期間 | - |
| 主たる設備の概要 | 電気、公営水道、都市ガス | 建築確認番号 | TKK確済25-292号 |
| 施工会社 | - | 機構融資 | - |
| 売主 | 取引態様 | FP住宅相談ネットワーク(株)東京マイホーム計画 / 仲介 | |
| 備考 |
景観法による規制有、高度地区、日影制限有、別途セットバック部分約0.39m2有 現地見学会(事前に必ずお問い合わせください) 9:30~18:30 ※※建築見学会いよいよ開催!※※ ■今週の見学会タイムスケジュール■ (1)~(4)をお客様のご希望でアレンジいただけます (1)現地で建物構造や仕様の詳細説明 (約30分) ☆建物の基礎や躯体などは完成してからでは 判りません。建築中の今だからこそご確認 できる見学会です! ☆自分の家を建ててくれたのはどんな人? 大工さんに会えるのは今だけ! ☆近くの完成モデルハウスもご見学できます! (2)現地で周辺環境のご説明と実際のご見学 (約20分) ☆スーパーの品揃えや通学路の安全性、病院、 公園・・etc.生活の利便性を現体験できます! ☆その他無料のサービスとして・・・ 「ご近所にはどんな方がお住まいなのか・・」 などのご不安を事前に解消!現地ご見学の 際、ご希望があれば弊社営業スタッフが実際 に近隣の住民の方とお引き合わせします! (3)住宅ローン専門のFPによる資金計画とご提案 (約30分) (4)その他、ご条件に合わせた販売中物件のご見学 (約30分~120分) ☆広告出稿できない貴重な販売物件情報もござい ます。ご希望があれば営業スタッフにお申し出 ください。 *スタート時間につきましては、お問い合わせ時に ご指定いただけます。 *必要のないイベントは省略をしてお時間を短縮 することができます。 *お客様のお時間に合わせたご案内をお約束。 お問い合わせの際、営業スタッフに 「何時から何時まで」 とお申し出ください。 |
||
| 情報更新日 | 2026/03/23 | 次回更新予定日 | 随時 |
| 取引条件有効期限 | 2026/12/30 | ||
住宅性能・販売概要・権利のこだわりポイント
- 所有権
- 瑕疵担保付き
0037-618-86310
無料
取扱い不動産会社
スタッフからのコメント
- 本日現地のご案内が可能です!
- 【この物件について】 東京マイホーム計画では当日の現地見学も対応可能です。こちらの物件以外にも、東京西部・多摩エリアの物件が多数ございますので、お気軽にお問い合わせください!
安藤 淳平
株式会社東京マイホーム計画の会社情報
お電話でのお問合せは「LIFULL HOME'S(ライフルホームズ)を見て」とお伝えください
FP住宅相談ネットワーク(株)東京マイホーム計画 / 042-386-7620 / 小金井市本町6-14-45
0037-618-86310
無料
- ※携帯電話はご利用いただけます
- ※光IP電話、及びIP電話をご利用のお客様はTEL:042-386-7620へご連絡ください
- ※携帯電話からお問合せいただいた方には、ショートメッセージ(SMS)またはLINE通知メッセージによるお問合せ内容に関する通知をお届けする場合があり、お客様の電話番号は株式会社LIFULLで一定期間保管されます
- ※株式会社LIFULLの個人情報の取扱い方針に同意のうえ、お電話ください
| 会社名 |
株式会社東京マイホーム計画 |
|---|---|
| 免許番号 | 東京都知事 (3) 第 97204 号 |
| 所在地 | 東京都小金井市本町6-14-45 OSビル2F |
| 所属団体 |
(公社)東京都宅地建物取引業協会 |
この物件にお問合せする
実際に物件・周辺環境を見て検討したい!
近隣建物や接道の状況など資料で分からない部分も一目瞭然。 まずはWEBで事前予約、スムーズに見学しましょう
ご予約無しに直接ご来場された場合、担当者不在であったり、
他のお客様のご案内の都合上、お待たせしてしまうことがございます。
不動産会社に電話で相談したい!
FP住宅相談ネットワーク(株)東京マイホーム計画 / 042-386-7620 / 小金井市本町6-14-45
0037-618-86310
無料
電話でのお問合せは「LIFULL HOME'S(ライフルホームズ)を見て」とお伝えください
- ※携帯電話はご利用いただけます
- ※光IP電話、及びIP電話をご利用のお客様はTEL:042-386-7620へご連絡ください
- ※携帯電話からお問合せいただいた方には、ショートメッセージ(SMS)またはLINE通知メッセージによるお問合せ内容に関する通知をお届けする場合があり、お客様の電話番号は株式会社LIFULLで一定期間保管されます
- ※株式会社LIFULLの個人情報の取扱い方針に同意のうえ、お電話ください
LIFULL HOME'Sは物件鮮度No.1を目指していきます 物件情報に誤りがある場合はコチラからご連絡ください
- 【物件番号】
- 1705947-0001700
- ※完成後1年未満で未入居の物件を「新築」と表示しております。
- ※完成予想図やCG合成画像は、門塀・植栽・庭・外観等、実際とは多少異なる場合があります。
物件を再検索する
東京都の人気エリアから新築一戸建てを探す








