新築一戸建て 「長期優良住宅取得、耐震・制震の地震に強い家。」
- 価格
- 6,090万円
- 所在地
- 東京都西東京市南町6
- 交通
- 西武新宿線「田無」駅 徒歩13分JR中央線「東小金井」駅 徒歩37分西武池袋線「ひばりヶ丘」駅 西武バス17分「田無町三丁目」バス停 徒歩8分
乗り換え案内
- 土地面積
- 100.03m2~102.22m2
- 建物面積
- 86.11m2~101.84m2
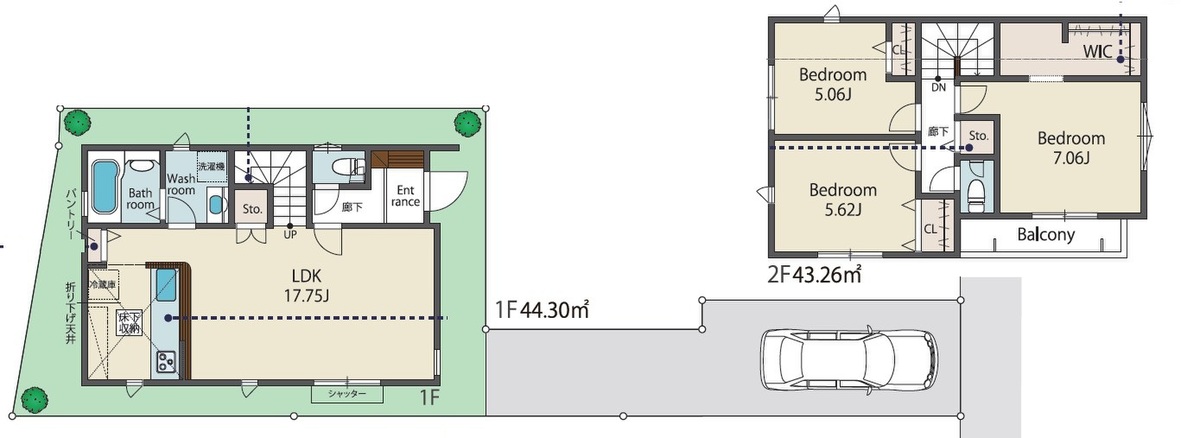
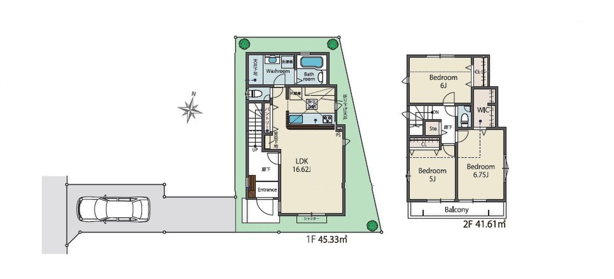
- 間取り
- 1LDK+2S、2LDK+S、3LDK、3LDK+S、4LDK
14棟の邸宅が織りなす、統一感のある美しい街並みは、新しい生活を始めるのにぴったりです。
田無駅まで徒歩13分、通勤・通学に便利な好立地。毎日の時間を有効に使え、駅周辺の商業施設も気軽に利用できる、快適な生活が叶います。
住宅性能評価(建設・設計)のダブル取得。耐震等級は最高等級の3。建築基準法の1.5倍。地震に強い安心住宅です。
0037-618-08848
無料
魅力1 閑静な住宅地で子育て家族にピッタリ。
魅力2 季節の移ろいを感じられる立地。
魅力3 充実の設備仕様。
0037-618-08848
無料
間取り図
0037-618-08848
無料
内観・室内
間取り・内観のこだわりポイント
- LDK15帖以上
- 4LDK以上
- 南面バルコニー
- 全室2面採光
0037-618-08848
無料
設備・仕様
設備・仕様のこだわりポイント
- キッチン
-
- カウンターキッチン
- 食器洗い乾燥機
- 収納
-
- 床下収納
- ウォークインクローゼット
- 全居室収納
- その他設備
-
- 都市ガス
- 浴室乾燥機
- 浴室暖房
- トイレ2ヶ所以上
- タンクレストイレ
- 宅配ボックス
0037-618-08848
無料
外観・分譲地
外観・分譲地のこだわりポイント
- 駐車場あり
- 総戸数・総区画数が10以上〜30未満
- 角地
- 南道路
- 敷地延長・変形地
0037-618-08848
無料
周辺環境・地図
周辺環境のこだわりポイント
- スーパー 800m以内
- コンビニ 400m以内
- 小学校 800m以内
- 中学校 800m以内
- 保育園・幼稚園 400m以内
- 複数路線
0037-618-08848
無料
物件概要
| 所在地 | 東京都西東京市南町6 | ||
|---|---|---|---|
| 交通 |
西武新宿線「田無」駅 徒歩13分 JR中央線「東小金井」駅 徒歩37分 西武池袋線「ひばりヶ丘」駅 西武バス17分「田無町三丁目」バス停 徒歩8分 |
||
| 販売価格 | 6,090万円 | 最多価格帯 | 6000万円台(1区画) |
| 建物面積 | 86.11m2~101.84m2 | 土地面積 | 100.03m2~102.22m2 |
| 間取り | 1LDK+2S、2LDK+S、3LDK、3LDK+S、4LDK | 建物構造 | 木造2階建 |
| 販売スケジュール | 販売中 | ||
| 販売戸数 / 総戸数 | 1戸 / 14戸 | ||
| 完成予定日 | 2025年12月下旬 | 引き渡し可能年月 | 2026年3月下旬 |
| 駐車場 | 1台 | 道路の幅員 | 新設道路4.5m、南側5.95m |
| 用途地域 | 第一種中高層住居専用地域 | 都市計画 | 市街化区域 |
| 地目 | 畑 | 国土法 | - |
| 土地の権利 | 所有権 | 借地権の種類・期間 | - |
| 主たる設備の概要 | 電気、公営水道、都市ガス | 建築確認番号 | 第R07SHC118924号、第R07SHC118925号、第R07SHC118926号、第R07SHC116024号、第R07SHC118927号、第R07SHC116025号、第R07SHC116414号、第R07SHC116026号、第R07SHC116027号、第R07SHC118928号、第R07SHC116028号、第R07SHC116029号、第R07SHC118930号、第R07SHC116029号 |
| 施工会社 | - | 機構融資 | - |
| 売主 | 取引態様 | FP住宅相談ネットワーク(株)東京マイホーム計画 / 仲介 | |
| 備考 |
景観法による規制有、高度地区、準防火地域、日影制限有、最低敷地面積100m2、公有地拡大推進法、農地法、生産緑地法、宅地造成及び特定盛土等規制法 現地見学会(事前に必ずお問い合わせください) 9:30~18:30 ※※建築見学会いよいよ開催!※※ ■今週の見学会タイムスケジュール■ (1)~(4)をお客様のご希望でアレンジいただけます (1)現地で建物構造や仕様の詳細説明 (約30分) ☆建物の基礎や躯体などは完成してからでは 判りません。建築中の今だからこそご確認 できる見学会です! ☆自分の家を建ててくれたのはどんな人? 大工さんに会えるのは今だけ! ☆近くの完成モデルハウスもご見学できます! (2)現地で周辺環境のご説明と実際のご見学 (約20分) ☆スーパーの品揃えや通学路の安全性、病院、 公園・・etc.生活の利便性を現体験できます! ☆その他無料のサービスとして・・・ 「ご近所にはどんな方がお住まいなのか・・」 などのご不安を事前に解消!現地ご見学の 際、ご希望があれば弊社営業スタッフが実際 に近隣の住民の方とお引き合わせします! (3)住宅ローン専門のFPによる資金計画とご提案 (約30分) (4)その他、ご条件に合わせた販売中物件のご見学 (約30分~120分) ☆広告出稿できない貴重な販売物件情報もござい ます。ご希望があれば営業スタッフにお申し出 ください。 *スタート時間につきましては、お問い合わせ時に ご指定いただけます。 *必要のないイベントは省略をしてお時間を短縮 することができます。 *お客様のお時間に合わせたご案内をお約束。 お問い合わせの際、営業スタッフに 「何時から何時まで」 とお申し出ください。 |
||
| 情報更新日 | 2026/03/27 | 次回更新予定日 | 随時 |
| 取引条件有効期限 | 2026/06/30 | ||
住宅性能・販売概要・権利のこだわりポイント
- 所有権
- 瑕疵担保付き
- 長期優良住宅
0037-618-08848
無料
取扱い不動産会社
スタッフからのコメント
- 本日現地のご案内が可能です!
- 【この物件について】 東京マイホーム計画では当日の現地見学も対応可能です。こちらの物件以外にも、東京西部・多摩エリアの物件が多数ございますので、お気軽にお問い合わせください!
安藤 淳平
株式会社東京マイホーム計画の会社情報
お電話でのお問合せは「LIFULL HOME'S(ライフルホームズ)を見て」とお伝えください
FP住宅相談ネットワーク(株)東京マイホーム計画 / 042-386-7620 / 小金井市本町6-14-45
0037-618-08848
無料
- ※携帯電話はご利用いただけます
- ※光IP電話、及びIP電話をご利用のお客様はTEL:042-386-7620へご連絡ください
- ※携帯電話からお問合せいただいた方には、ショートメッセージ(SMS)またはLINE通知メッセージによるお問合せ内容に関する通知をお届けする場合があり、お客様の電話番号は株式会社LIFULLで一定期間保管されます
- ※株式会社LIFULLの個人情報の取扱い方針に同意のうえ、お電話ください
| 会社名 |
株式会社東京マイホーム計画 |
|---|---|
| 免許番号 | 東京都知事 (3) 第 97204 号 |
| 所在地 | 東京都小金井市本町6-14-45 OSビル2F |
| 所属団体 |
(公社)東京都宅地建物取引業協会 |
この物件にお問合せする
実際に物件・周辺環境を見て検討したい!
近隣建物や接道の状況など資料で分からない部分も一目瞭然。 まずはWEBで事前予約、スムーズに見学しましょう
ご予約無しに直接ご来場された場合、担当者不在であったり、
他のお客様のご案内の都合上、お待たせしてしまうことがございます。
不動産会社に電話で相談したい!
FP住宅相談ネットワーク(株)東京マイホーム計画 / 042-386-7620 / 小金井市本町6-14-45
0037-618-08848
無料
電話でのお問合せは「LIFULL HOME'S(ライフルホームズ)を見て」とお伝えください
- ※携帯電話はご利用いただけます
- ※光IP電話、及びIP電話をご利用のお客様はTEL:042-386-7620へご連絡ください
- ※携帯電話からお問合せいただいた方には、ショートメッセージ(SMS)またはLINE通知メッセージによるお問合せ内容に関する通知をお届けする場合があり、お客様の電話番号は株式会社LIFULLで一定期間保管されます
- ※株式会社LIFULLの個人情報の取扱い方針に同意のうえ、お電話ください
LIFULL HOME'Sは物件鮮度No.1を目指していきます 物件情報に誤りがある場合はコチラからご連絡ください
- 【物件番号】
- 1705947-0001640
- ※完成後1年未満で未入居の物件を「新築」と表示しております。
- ※完成予想図やCG合成画像は、門塀・植栽・庭・外観等、実際とは多少異なる場合があります。
物件を再検索する
東京都の人気エリアから新築一戸建てを探す














