新築一戸建て 【ラスト1棟】北九州市八幡西区御開1丁目 新築戸建
■お客様のご希望の日時にご案内させていただきます(^^)/
■「業務スーパー」「ダイレックス」徒歩5分圏内で買い物便利!
■「本城公園(陸上競技場)」徒歩5分でお子様がのびのび遊べます、日々の散歩コースにもオススメです!
0037-618-45650
無料
魅力1 ●並列で2台駐車可能!
魅力2 ●使い勝手の良い広々屋根付きバルコニー有り!
魅力3 ●徒歩15分圏内に買い物施設が充実!
0037-618-45650
無料
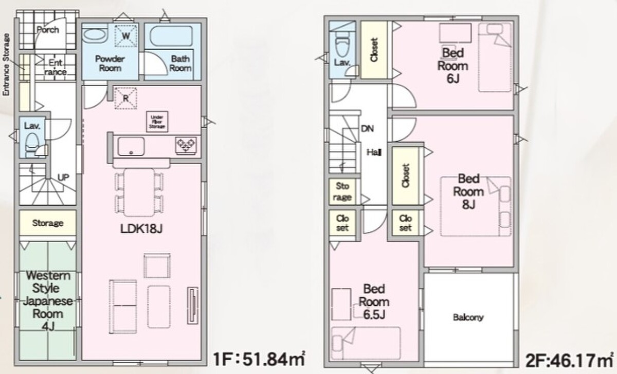
間取り図
-
【間取図】 間取り 4LDK+WIC 価格 2188万円 建物面積 100.44m2 土地面積 147.17m2 -
【区画図】 間取り - 価格 未定 建物面積 - 土地面積 - -
【省エネ性能ラベル】 間取り - 価格 未定 建物面積 - 土地面積 - -
ちょっとしたお庭付き! 間取り - 価格 未定 建物面積 - 土地面積 - -
使い勝手の良い広々インナーバルコニー! 間取り - 価格 未定 建物面積 - 土地面積 - -
あると安心のEV充電コンセント! 間取り - 価格 未定 建物面積 - 土地面積 - -
スタイリッシュなデザインの郵便受け! 間取り - 価格 未定 建物面積 - 土地面積 - -
心安らぐ和室♪ 間取り - 価格 未定 建物面積 - 土地面積 - -
3口コンロで料理がはかどります! 間取り - 価格 未定 建物面積 - 土地面積 -
0037-618-45650
無料
内観・室内
間取り・内観のこだわりポイント
- LDK15帖以上
- 4LDK以上
- バリアフリー
- 和室
- 屋上・ルーフバルコニー
- 南面バルコニー
- 全室2面採光
0037-618-45650
無料
設備・仕様
設備・仕様のこだわりポイント
- キッチン
-
- カウンターキッチン
- 浄水器・活水器
- ガスコンロ
- 収納
-
- 床下収納
- ウォークインクローゼット
- 全居室収納
- その他設備
-
- 都市ガス
- シャワー付洗面化粧台
- 温水洗浄便座
- 浴室乾燥機
- 浴室暖房
- トイレ2ヶ所以上
- 節水型トイレ
- 複層ガラス採用(二重サッシ・防犯サッシ等)
- 省エネ給湯器
- TVモニタ付インターホン
省エネ性能
- エネルギー消費性能:★★★(削減率20%達成)
- 断熱性能:5段階/7段階 ※「省エネ性能ラベル」は特定の住戸の性能を示し、全ての住戸の性能を示していない場合があります。
0037-618-45650
無料
外観・分譲地
外観・分譲地のこだわりポイント
- 駐車場あり
- 地盤調査済
- 平坦地
0037-618-45650
無料
周辺環境・地図
周辺環境のこだわりポイント
- スーパー 800m以内
- コンビニ 400m以内
- 公園 400m以内
0037-618-45650
無料
物件概要
| 所在地 | 福岡県北九州市八幡西区御開1丁目 | ||
|---|---|---|---|
| 交通 |
JR筑豊本線「二島」駅 徒歩22分 |
||
| 販売価格 | 2,188万円 | 最多価格帯 | - |
| 建物面積 | 100.44m2 | 土地面積 | 147.17m2 |
| 間取り | 4LDK+WIC | 建物構造 | 木造2階建 |
| 販売スケジュール | 販売中 | ||
| 販売戸数 / 総戸数 | 1戸 / 3戸 | ||
| 完成予定日 | 2025年12月 | 引き渡し可能年月 | 即引渡可 |
| 駐車場 | 2台 | 道路の幅員 | 北側4.9m~5m公道 |
| 用途地域 | 第一種住居地域 | 都市計画 | 市街化区域 |
| 地目 | 宅地 | 国土法 | 届出不要 |
| 土地の権利 | 所有権 | 借地権の種類・期間 | - |
| 主たる設備の概要 | 公営水道、都市ガス、本下水 | 建築確認番号 | 完成済みのため省略 |
| 施工会社 | - | 機構融資 | - |
| 売主 | 取引態様 | 株式会社情報サービス福岡 北九州本店(仲介) | |
| 備考 | - | ||
| 情報更新日 | 2026/05/16 | 次回更新予定日 | 2026/05/30 |
| 取引条件有効期限 | 2027/05/16 | ||
住宅性能・販売概要・権利のこだわりポイント
- 所有権
- 瑕疵担保付き
- 即入居可
0037-618-45650
無料
取扱い不動産会社
スタッフからのコメント
- お客様のご希望の日時にご案内させていただきます(^^)/
- 即日・土日・平日・夕方からのご見学大歓迎!
他の物件をあわせてご紹介することも可能です♪
頭金、諸経費、税金等お客様の疑問即対応!
住宅ローンも様々な角度で比較し提案します♪
北九州本店 福澤
株式会社情報サービス福岡の会社情報
お電話でのお問合せは「LIFULL HOME'S(ライフルホームズ)を見て」とお伝えください
株式会社情報サービス福岡 北九州本店
0037-618-45650
無料
- ※携帯電話はご利用いただけます
- ※光IP電話、及びIP電話をご利用のお客様はTEL:093-883-8724へご連絡ください
- ※携帯電話からお問合せいただいた方には、ショートメッセージ(SMS)またはLINE通知メッセージによるお問合せ内容に関する通知をお届けする場合があり、お客様の電話番号は株式会社LIFULLで一定期間保管されます
- ※株式会社LIFULLの個人情報の取扱い方針に同意のうえ、お電話ください
| 会社名 |
株式会社情報サービス福岡 |
|---|---|
| 免許番号 | 福岡県知事 (3) 第 17142 号 |
| 所在地 | 福岡県福岡市博多区諸岡3丁目1-35 |
| 所属団体 |
(一社)九州不動産公正取引協議会 |
この物件にお問合せする
実際に物件・周辺環境を見て検討したい!
近隣建物や接道の状況など資料で分からない部分も一目瞭然。 まずはWEBで事前予約、スムーズに見学しましょう
ご予約無しに直接ご来場された場合、担当者不在であったり、
他のお客様のご案内の都合上、お待たせしてしまうことがございます。
不動産会社に電話で相談したい!
株式会社情報サービス福岡 北九州本店
0037-618-45650
無料
電話でのお問合せは「LIFULL HOME'S(ライフルホームズ)を見て」とお伝えください
- ※携帯電話はご利用いただけます
- ※光IP電話、及びIP電話をご利用のお客様はTEL:093-883-8724へご連絡ください
- ※携帯電話からお問合せいただいた方には、ショートメッセージ(SMS)またはLINE通知メッセージによるお問合せ内容に関する通知をお届けする場合があり、お客様の電話番号は株式会社LIFULLで一定期間保管されます
- ※株式会社LIFULLの個人情報の取扱い方針に同意のうえ、お電話ください
LIFULL HOME'Sは物件鮮度No.1を目指していきます 物件情報に誤りがある場合はコチラからご連絡ください
- 【物件番号】
- 1704517-0000378
- ※完成後1年未満で未入居の物件を「新築」と表示しております。
- ※完成予想図やCG合成画像は、門塀・植栽・庭・外観等、実際とは多少異なる場合があります。
物件を再検索する














