一戸建て 23(土)24(日)現地説明会 堺市中区東山 全3邸
■頭金0円ローン可能!■ホームズに掲載してない物件もご相談下さい!■近畿圏トップクラスの新築取扱件数!■年間取引件数600件以上!
お家探しはTV・CMでお馴染みの住まいるプラス1にお任せ下さい!住宅ローン提携銀行多数!最優遇金利0.688%~!オプション工事最大40%OFF!火災保険最大20%OFF!光熱費削減キャンペーン実施!
住宅ローン相談無料!今お持ちのローンを最大500万円まで住宅ローンと一本化が可能!住宅ローンアドバイザー有資格者等多数在籍!「住まい選びのプロフェッショナル」住まいるプラス1に是非ご相談ください!
0037-618-29969
無料
魅力1 Terrechez~自然光を最大限に取り込む開放的な明るい家~
―テラシエシリーズのこだわり―◆「Terre」:解放感、「Chez」:~の家を組み合わせたテラシエ。自然光を最大限に生かしたケイアイプランニングの新定番です。◆多様化するニーズやライフスタイル、持ち家が人生の全てではなくなった時代です。その中で人の心を豊かにできるよう、エリアの特性に合った、オリジナリティを日々追求しています。◆用地取得からアフターサービスまで。自社による一貫体制でお応え。◆お客様に安心して永く住み続けていただくために、ケイアイプランニングでは30年間にわたる長期保証で大切なご家族と住まいを見守り続けます。
魅力2 災害に耐える強い家を目指して...安心安全な住まいづくりが大切な家族を守ります。
―テラシエシリーズのおすすめ構造ポイント― ◆木造軸組工法の場合、木材同士を組み合わせたうえで、その接合部を補強金物で止めます。耐震金物は接合部を強固にし、地震の揺れなどで金物が外れる事を防止しています。 ◆地盤の強さを調べる調査法の1つで、近年では戸建て住宅等の地盤調査の方式として最も広く普及しているスウェーデン式地盤試験を採用。安心して暮らせる家づくりの為には欠かせない工程ですね♪ ◆木造軸組工法は柱で建物を支えている為、壁を抜いて間取りを変えたり壁に大きな窓を作ることも比較的容易にできます。特にリフォームで間取りを変えたり、増築も簡単にできます。
魅力3 日々の生活を豊かに...快適な暮らしをサポートする充実した設備が満載です。
―テラシエシリーズのおすすめ設備ポイント― ◆一日の疲れを癒す広々とした浴室。足をのばしてゆったりと湯船につかれますよ。窓付きで湿気対策もバッチリです♪ ◆キッチンのシンクはステンレス製。水や熱、さびに強く汚れやにおいもつきにくい素材なので長く清潔に保つことができます! ◆白を基調とした清潔感のあるシャンプードレッサー。フラットな鏡は掃除がしやすく毎日清潔!◆24時間換気システムで室内の空気をしっかり循環!
0037-618-29969
無料
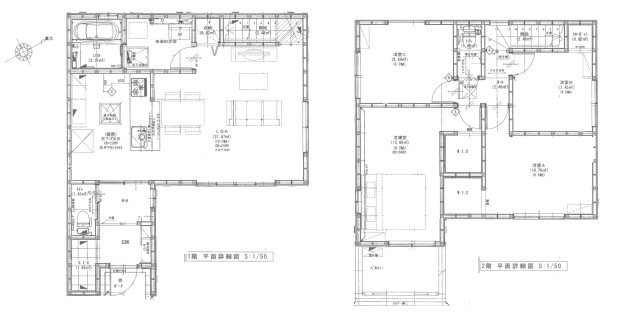
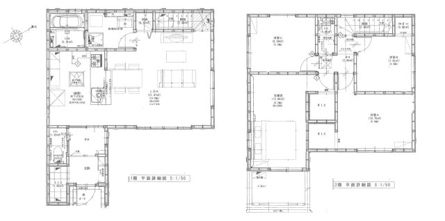
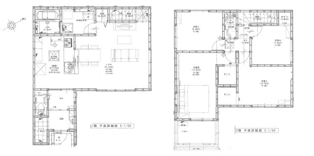
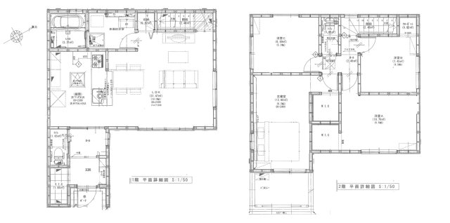
間取り図
-
1号地 間取り 4LDK 価格 3499万円 建物面積 96.46m2 土地面積 108.39m2 -
1号地 間取り 4LDK 価格 3499万円 建物面積 96.46m2 土地面積 108.39m2 -
1号地 間取り 4LDK 価格 3499万円 建物面積 96.46m2 土地面積 108.39m2 -
1号地 間取り 4LDK 価格 3499万円 建物面積 96.46m2 土地面積 108.39m2 -
1号地 間取り 4LDK 価格 3499万円 建物面積 96.46m2 土地面積 108.39m2 -
1号地 間取り 4LDK 価格 3499万円 建物面積 96.46m2 土地面積 108.39m2 -
1号地 間取り 4LDK 価格 3499万円 建物面積 96.46m2 土地面積 108.39m2 -
1号地 間取り 4LDK 価格 3499万円 建物面積 96.46m2 土地面積 108.39m2 -
1号地 間取り 4LDK 価格 3499万円 建物面積 96.46m2 土地面積 108.39m2
0037-618-29969
無料
内観・室内
間取り・内観のこだわりポイント
- LDK15帖以上
- 4LDK以上
- バリアフリー
- 全室フローリング
0037-618-29969
無料
設備・仕様
-
浴室暖房乾燥機
四季を通して快適なバスライフをお手伝いす...
-
浴室暖房乾燥機リモコン
浴室暖房乾燥機リモコン!浴室暖房・衣類乾...
-
給湯器リモコン(浴室側)
省エネタイプの給湯器でお湯はり・追い炊き...
-
給湯器リモコン(LDK側)
ボタン一つでお風呂のお湯はり・追い炊き可...
-
カラーモニターインターホン
声だけでなく来訪者の姿や顔がモニターで確...
-
キッチンシンク
蛇口の先端に浄水器を内蔵しています!原水...
-
食器洗浄乾燥機
食事後の一仕事、食器洗いをボタン一つでお...
-
コンロ
ダブル高火力Siセンサー付きコンロ!3口...
-
レンジフード
汚れにくいスロットフィルタでお手入れラク...
設備・仕様のこだわりポイント
- キッチン
-
- IHコンロ
- カウンターキッチン
- 食器洗い乾燥機
- 浄水器・活水器
- ガスコンロ
- 収納
-
- 床下収納
- ウォークインクローゼット
- シューズクローク
- 全居室収納
- その他設備
-
- 都市ガス
- オール電化
- シャワー付洗面化粧台
- 温水洗浄便座
- 浴室乾燥機
- 浴室1.6×1.8m以上
- 浴室暖房
- トイレ2ヶ所以上
- 複層ガラス採用(二重サッシ・防犯サッシ等)
- TVモニタ付インターホン
0037-618-29969
無料
外観・分譲地
外観・分譲地のこだわりポイント
- 駐車場あり
- 地盤調査済
- 平坦地
0037-618-29969
無料
周辺環境・地図
周辺情報
※半径4kmを超えると、周辺情報のアイコンは表示されません。
- ※不動産会社が入力した情報を基に物件の位置を表示しています。
- ※詳しくは不動産会社までお問合せください。
- ※地図上に表示される各種アイコンなどの情報は、おおよその所在地を表すものであり、物件・施設などの地点を保証するものではありません。
- ※地図の表示領域が広域になると周辺のお店・施設は表示できなくなります。
- ※地図、航空写真情報および地形ならびに周辺のお店・施設は、必ずしも現況を表すものではありません。
- ※物件から周辺のお店・施設までの距離は、利用が想定される道路を通行した場合の距離です。なお、必ずしも最短距離を保証するものではありません。
周辺環境のこだわりポイント
- 複数路線
0037-618-29969
無料
物件概要
| 所在地 | 大阪府堺市中区東山 | ||
|---|---|---|---|
| 交通 |
南海泉北線「深井」駅 徒歩23分 南海泉北線「泉ケ丘」駅 徒歩42分 南海高野線「初芝」駅 徒歩45分 |
||
| 販売価格 | 3099万円~3499万円 | 最多価格帯 | - |
| 建物面積 | 96.46m2~97.72m2 | 土地面積 | 108.39m2~143.83m2 |
| 間取り | 4LDK | 建物構造 | 木造 地上2階建て |
| 販売スケジュール | - | ||
| 販売戸数 / 総戸数 | 2戸 / 3戸 | ||
| 完成予定日 | 完成済み | 引き渡し可能年月 | 即日可 |
| 駐車場 | 2台 | 道路の幅員 | 北東側4.0m公道 |
| 用途地域 | 第一種住居 | 都市計画 | 市街化区域 |
| 地目 | 宅地 | 国土法 | 届出不要 |
| 土地の権利 | 所有権 | 借地権の種類・期間 | - |
| 主たる設備の概要 | 水道:公営 排水:公共下水 ガス:都市ガス 電気:有 | 建築確認番号 | 完成済み |
| 施工会社 | - | 機構融資 | - |
| 売主 | 売主 | 取引態様 | 株式会社近畿住宅流通 本店(仲介) |
| 備考 | ■頭金0円フルローン可能!■ご質問等、お電話でお問い合わせ下さい!■ ■住宅ローンアドバイザーがご対応させて頂きます!■ 借入額3,099万円 年利0.788%(変動金利)50年 毎月62,508円 ボーナス払い0円 ※ローンは一定要件該当者が対象です。適用される金利は融資実行時のものとなり、表記されている金利・返済額と異なる場合があります。 | ||
| 情報更新日 | 2026/05/19 | 次回更新予定日 | 2026/06/02 |
| 取引条件有効期限 | 2026/06/02 | ||
住宅性能・販売概要・権利のこだわりポイント
- 所有権
- 瑕疵担保付き
- フラット35・S適合証明書
0037-618-29969
無料
取扱い不動産会社
スタッフからのコメント
- お客様のご要望にお応えできるよう一生懸命頑張ります!
- メディアでお馴染みの住まいるプラス1近畿住宅流通本店です。関西全域(大阪・京都・滋賀・兵庫・奈良・和歌山)エリア担当を分け、地域専属専門で展開している会社です。おかげさまで近畿圏トップクラスの新築取扱件数!年間取引件数600件以上の成約件数・実績ある店舗です。実績があるがゆえ、各物件の売主様からの信用と信頼関係がありますのでお客様優位のお取引とご不安のない安心なお取引ができます。住宅ローンをご提案させて頂く各銀行からも信用実績がありますのでローン審査や低金利取得には他よりもご納得して頂く自信があります!ご縁を大切に必ずお役に立ちます!
伊藤 風雅
住まいるプラス1 株式会社近畿住宅流通の会社情報
お電話でのお問合せは「LIFULL HOME'S(ライフルホームズ)を見て」とお伝えください
株式会社近畿住宅流通 本店
0037-618-29969
無料
- ※携帯電話はご利用いただけます
- ※光IP電話、及びIP電話をご利用のお客様はTEL:072-840-0555へご連絡ください
- ※携帯電話からお問合せいただいた方には、ショートメッセージ(SMS)またはLINE通知メッセージによるお問合せ内容に関する通知をお届けする場合があり、お客様の電話番号は株式会社LIFULLで一定期間保管されます
- ※株式会社LIFULLの個人情報の取扱い方針に同意のうえ、お電話ください
| 会社名 |
住まいるプラス1 株式会社近畿住宅流通 |
|---|---|
| 免許番号 | 大阪府知事 (4) 第 53115 号 |
| 所在地 | 大阪府枚方市池之宮2丁目2-15 |
| 所属団体 |
(一社)大阪府宅地建物取引業協会 |
この物件にお問合せする
実際に物件・周辺環境を見て検討したい!
近隣建物や接道の状況など資料で分からない部分も一目瞭然。 まずはWEBで事前予約、スムーズに見学しましょう
ご予約無しに直接ご来場された場合、担当者不在であったり、
他のお客様のご案内の都合上、お待たせしてしまうことがございます。
不動産会社に電話で相談したい!
株式会社近畿住宅流通 本店
0037-618-29969
無料
電話でのお問合せは「LIFULL HOME'S(ライフルホームズ)を見て」とお伝えください
- ※携帯電話はご利用いただけます
- ※光IP電話、及びIP電話をご利用のお客様はTEL:072-840-0555へご連絡ください
- ※携帯電話からお問合せいただいた方には、ショートメッセージ(SMS)またはLINE通知メッセージによるお問合せ内容に関する通知をお届けする場合があり、お客様の電話番号は株式会社LIFULLで一定期間保管されます
- ※株式会社LIFULLの個人情報の取扱い方針に同意のうえ、お電話ください
LIFULL HOME'Sは物件鮮度No.1を目指していきます 物件情報に誤りがある場合はコチラからご連絡ください
- 【物件番号】
- 1704203-0005712
- ※完成後1年未満で未入居の物件を「新築」と表示しております。
- ※完成予想図やCG合成画像は、門塀・植栽・庭・外観等、実際とは多少異なる場合があります。














