一戸建て タマタウン行田市藤原
- 価格
- 2,680万円
- 所在地
- 埼玉県行田市藤原町1-24-12付近
- 交通
- 秩父鉄道「東行田」駅 徒歩24分
乗り換え案内
- 土地面積
- 146.07m2~178.34m2(44.18坪~53.95坪)(登記)
- 建物面積
- 105.98m2(32.05坪)
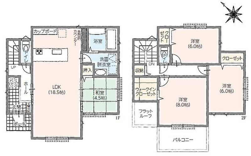
- 間取り
- 4LDK
最終1棟!敷地面積149.16m2●LDK18帖以上●全邸SIC完備●収納充実タマホームが創る高性能戸建て新規分譲戸建住宅を是非一度ご見学下さい!
0037-633-92351
無料
内観・室内
間取り・内観のこだわりポイント
- LDK15帖以上
- 4LDK以上
- 和室
0037-633-92351
無料
設備・仕様
設備・仕様のこだわりポイント
- キッチン
-
- IHコンロ
- 食器洗い乾燥機
- 収納
-
- ウォークインクローゼット
- シューズクローク
- その他設備
-
- 浴室暖房
- 複層ガラス採用(二重サッシ・防犯サッシ等)
- TVモニタ付インターホン
0037-633-92351
無料
外観・分譲地
外観・分譲地のこだわりポイント
- 駐車場あり
0037-633-92351
無料
物件概要
| 所在地 | 埼玉県行田市藤原町1-24-12付近 | ||
|---|---|---|---|
| 交通 |
秩父鉄道「東行田」駅 徒歩24分 |
||
| 販売価格 | 2,680万円 | 最多価格帯 | - |
| 建物面積 | 105.98m2(32.05坪) | 土地面積 | 146.07m2~178.34m2(44.18坪~53.95坪)(登記) |
| 間取り | 4LDK | 建物構造 | 木造2階建(軸組工法) |
| 販売スケジュール | 販売中 | ||
| 販売戸数 / 総戸数 | 1戸 / 9戸 | ||
| 完成予定日 | 2022年12月完成 | 引き渡し可能年月 | 即引渡可 |
| 駐車場 | 全棟駐車場2台完備! | 道路の幅員 | 6.7m |
| 用途地域 | 工業地域 | 都市計画 | 市街化区域 |
| 地目 | 宅地 | 国土法 | - |
| 土地の権利 | 所有権 | 借地権の種類・期間 | - |
| 主たる設備の概要 | 東京電力 公営上下水 オール電化 | 建築確認番号 | 完成済みのため省略 |
| 施工会社 | - | 機構融資 | - |
| 売主 | 取引態様 | タマホーム株式会社/売主 | |
| 備考 | - | ||
| 情報更新日 | 2026/04/24 | 次回更新予定日 | 随時 |
| 取引条件有効期限 | 2026/09/27 | ||
住宅性能・販売概要・権利のこだわりポイント
- 所有権
- 瑕疵担保付き
- 売主・代理
- 耐震・制震・免震構造
- 即入居可
0037-633-92351
無料
取扱い不動産会社
タマホーム株式会社の会社情報
お電話でのお問合せは「LIFULL HOME'S(ライフルホームズ)を見て」とお伝えください
タマホーム(株)土地買取センター春日部店
0037-633-92351
無料
- ※携帯電話はご利用いただけます
- ※光IP電話、及びIP電話をご利用のお客様はTEL:0120-941-316へご連絡ください
- ※携帯電話からお問合せいただいた方には、ショートメッセージ(SMS)またはLINE通知メッセージによるお問合せ内容に関する通知をお届けする場合があり、お客様の電話番号は株式会社LIFULLで一定期間保管されます
- ※株式会社LIFULLの個人情報の取扱い方針に同意のうえ、お電話ください
| 会社名 |
タマホーム株式会社 |
|---|---|
| 免許番号 | 国土交通大臣 (5) 第 6857 号 |
| 所在地 | 東京都港区高輪3-22-9 |
| 所属団体 |
(公社)東京都宅地建物取引業協会 |
この物件にお問合せする
実際に物件・周辺環境を見て検討したい!
近隣建物や接道の状況など資料で分からない部分も一目瞭然。 まずはWEBで事前予約、スムーズに見学しましょう
ご予約無しに直接ご来場された場合、担当者不在であったり、
他のお客様のご案内の都合上、お待たせしてしまうことがございます。
不動産会社に電話で相談したい!
タマホーム(株)土地買取センター春日部店
0037-633-92351
無料
電話でのお問合せは「LIFULL HOME'S(ライフルホームズ)を見て」とお伝えください
- ※携帯電話はご利用いただけます
- ※光IP電話、及びIP電話をご利用のお客様はTEL:0120-941-316へご連絡ください
- ※携帯電話からお問合せいただいた方には、ショートメッセージ(SMS)またはLINE通知メッセージによるお問合せ内容に関する通知をお届けする場合があり、お客様の電話番号は株式会社LIFULLで一定期間保管されます
- ※株式会社LIFULLの個人情報の取扱い方針に同意のうえ、お電話ください
LIFULL HOME'Sは物件鮮度No.1を目指していきます 物件情報に誤りがある場合はコチラからご連絡ください
- 【物件番号】
- 1701809-0000531
- ※完成後1年未満で未入居の物件を「新築」と表示しております。
- ※完成予想図やCG合成画像は、門塀・植栽・庭・外観等、実際とは多少異なる場合があります。
物件を再検索する
埼玉県の人気エリアから新築一戸建てを探す
- 川越市
- 熊谷市
- 川口市
- 秩父市
- 所沢市
- 飯能市
- 加須市
- 本庄市
- 東松山市
- 春日部市
- 狭山市
- 羽生市
- 鴻巣市
- 深谷市
- 上尾市
- 草加市
- 越谷市
- 蕨市
- 戸田市
- 入間市
- 朝霞市
- 志木市
- 和光市
- 新座市
- 桶川市
- 久喜市
- 北本市
- 八潮市
- 富士見市
- 三郷市
- 蓮田市
- 坂戸市
- 幸手市
- 鶴ヶ島市
- 日高市
- 吉川市
- ふじみ野市
- 白岡市
- 北足立郡伊奈町
- 入間郡三芳町
- 入間郡毛呂山町
- 入間郡越生町
- 比企郡滑川町
- 比企郡嵐山町
- 比企郡小川町
- 比企郡川島町
- 比企郡吉見町
- 比企郡鳩山町
- 比企郡ときがわ町
- 秩父郡横瀬町
- 秩父郡皆野町
- 秩父郡長瀞町
- 秩父郡小鹿野町
- 児玉郡美里町
- 児玉郡神川町
- 児玉郡上里町
- 大里郡寄居町
- 南埼玉郡宮代町
- 北葛飾郡杉戸町
- 北葛飾郡松伏町
