新築一戸建て ポラスの分譲住宅 北小金21プロジェクト ひととき×すみか
この物件は未完成のため、掲載写真(外観、内観、設備等)には、施工例が含まれている場合があります。物件詳細については、掲載の不動産会社宛にお問合せください。
■JR常磐線・武蔵野線の2沿線利用可
■バス利用で「北小金」駅・「八柱」駅へスムーズアクセス
■「すみか+」×「ひととき」ブランドが融合した21邸の街
■カースペース+サイクルスペース有
■様々な税制優遇と安心のアフターサポート
◇ロングサポート60
■安心の高台の立地
■4スタイルのプラン
■本物の木を五感で感じる暮らし
■夜道を照らす「灯かりのいえなみ協定(R)」
【1期/販売価格4490万円~現地モデルハウス公開中】
◇WEBまたはお電話にて、お気軽にお問い合わせください!
お電話でのお問い合わせは0120-208-069(通話料無料)まで。
0037-618-99664
無料
魅力1 ≪家族との時間も自分の時間も満喫できる心地よい住まい~モデルハウス7号棟~≫
モデルハウス7号棟公開中!ぜひ現地にて実際にご覧ください。
◆開放感のある対面キッチン
コミュニケーションを取りやすい対面キッチン。リビングとの間に壁がないため開放感を感じられます。
◆スタディカウンター
キッチンの隣にスタディカウンターを設けました。在宅ワークやパソコンでの調べ物の際に活躍します。
◆KOAGARIキッズスペース
段差を設けた小上り空間は、お子さまの遊び場や家事スペース、家族の憩いの空間など多彩に活用できます。
◆スキップダイニング
リビングとダイニングの間にスキップを設けました。空間を柔らかく分け、それぞれの場所でゆったりと過ごせます。
魅力2 ≪適材適所の収納を豊富に採り入れたインナープラン~モデルハウス7号棟~≫
◆リビングクロゼット
日用品の指定席をつくることで、リビングをすっきりと保てます。外出用のコートや上着をかけて収納できます。
◆フロートボックス
KOAGARIキッズスペースに設けた吊収納は、衣類をかけて収納できます。おもちゃや寝具の収納にも便利です。
◆ロフト
寝室からハシゴで上るロフトは、収納スペースとしてだけではなく、読書や趣味の空間としても使えます。
◆ギャラリーシェルフ
ギャラリーシェルフには、お子さまの作品や写真の他、お好みのインテリアを飾って楽しむことができます。
魅力3 ≪快適な暮らしをサポートする上質な設備仕様~モデルハウス7号棟~≫
◆セカンドシンク
リビングから直接アクセスできる洗面室。帰宅後すぐに手洗い・うがいができる嬉しい設計。外出前の準備にも便利です。
◆食器洗浄乾燥機
後片付けをサポートするビルトインタイプの食器洗浄乾燥機が標準装備。家事の時間短縮になるだけでなく、水道代の節約にもつながり一石二鳥です。
◆玄関ロング手摺り
玄関手摺りは、特注で床から天井までのユニバーサルデザインを採用。小さな子どもからお年寄り、背の高い大人の方でも快適に利用できます。
◆LD床暖房
リビングだけでなくダイニング部分もカバー。部屋の空気を汚さずに、快適な温かさに保ちます。
0037-618-99664
無料
内観・室内
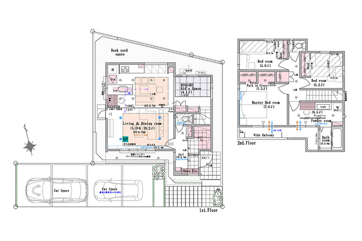
間取り・内観のこだわりポイント
- ロフト付き
- 吹き抜け
- 屋上・ルーフバルコニー
- 南面バルコニー
- 天井高2.5m以上
0037-618-99664
無料
設備・仕様
-
【キッチン/トクラスBb】
こだわったのは「ベーシックにして上質」と...
-
【浴室/Panasonicオフローラ】
時間にも気持ちにもゆとりが生まれる、キレ...
-
【洗面化粧台/パナソニック シーライン】
繋ぎ目のないボウル一体型カウンターのため...
-
【床暖房】
埃を巻き上げず足元から暖かくなる床暖房。...
-
【スマホで「外でもドアホン」】
約5型ワイドタッチパネル液晶、外出中でも...
-
【システムキー】
リモコンキーをバッグやポケットに入れてお...
-
【安全な暮らしを守る電動シャッター】
窓まわりの一部に防犯性を高める便利な電動...
-
【エコワン】※70L採用
電気で効率良くお湯を沸かし、ガスで使いた...
-
【ウルトラファインバブル】
ウルトラファインバブルのお湯は、乾燥しが...
設備・仕様のこだわりポイント
- キッチン
-
- カウンターキッチン
- 食器洗い乾燥機
- 浄水器・活水器
- ガスコンロ
- 収納
-
- ウォークインクローゼット
- シューズクローク
- パントリー
- その他設備
-
- 都市ガス
- シャワー付洗面化粧台
- 温水洗浄便座
- 浴室乾燥機
- 浴室暖房
- トイレ2ヶ所以上
- 節水型トイレ
- 床暖房
- 複層ガラス採用(二重サッシ・防犯サッシ等)
- スマートキー
- 省エネ給湯器
- 電動シャッター
- TVモニタ付インターホン
- 宅配ボックス
- EV充電設備
省エネ性能
- エネルギー消費性能:★★★(削減率20%達成)
- 断熱性能:5段階/7段階
- 目安光熱費:約18万円/年 ※「省エネ性能ラベル」は特定の住戸の性能を示し、全ての住戸の性能を示していない場合があります。
0037-618-99664
無料
外観・分譲地
-
【洗練されたスクエアなフォルム】
木目調と石目調の外壁を採用。落ち着きのある色彩が外観デザインに...
-
【広々としたグランピングバルコニー】
テーブルやイスを置けばカフェのように憩え、パソコンを持ち込めば...
-
【宅配ボックス付機能門柱】
宅配ボックス付のスタイリッシュな機能門柱。留守の間でも宅配便が...
-
【カースペース・サイクルスペース】
通勤通学をはじめ、アクティブな暮らしに便利な車や自転車を停めら...
-
【庭のある暮らし】
芝生の上で子どもたちと遊べて、好きなガーデニングも楽しめる 庭...
-
【各邸の連なりが目を惹く外観】
街区内道路に沿って連なる各邸が奥行きのある風景を描く街並み。邸...
外観・分譲地のこだわりポイント
- 駐車場あり
- 低層住宅地
- 総戸数・総区画数が10以上〜30未満
- 地盤調査済
- 角地
- 前面道路6m以上
- 平坦地
- 高台
0037-618-99664
無料
周辺環境・地図
周辺情報
※半径4kmを超えると、周辺情報のアイコンは表示されません。
- ※不動産会社が入力した情報を基に物件の位置を表示しています。
- ※詳しくは不動産会社までお問合せください。
- ※地図上に表示される各種アイコンなどの情報は、おおよその所在地を表すものであり、物件・施設などの地点を保証するものではありません。
- ※地図の表示領域が広域になると周辺のお店・施設は表示できなくなります。
- ※地図、航空写真情報および地形ならびに周辺のお店・施設は、必ずしも現況を表すものではありません。
- ※物件から周辺のお店・施設までの距離は、利用が想定される道路を通行した場合の距離です。なお、必ずしも最短距離を保証するものではありません。
-
【学校】
根木内中学校(現地より徒歩6分) (約420m)
「確かな知性と、たくましい心と体」を学校教育目標に掲げている中...
-
【学校】
みらいつばめ保育園(現地より徒歩5分) (約390m)
2022年4月に開園した、閑静な住宅街に位置する保育園です。ひ...
-
【買い物】
テラスモール松戸(現地より徒歩14分) (約1080m)
「豊かに・楽しむ・毎日の暮らし」をコンセプトとした周辺エリア最...
-
【買い物】
コモディイイダ 北小金店(現地より徒歩21分) (約1650m)
生鮮食品・加工食品・惣菜・日用雑貨などを取り扱うスーパーです。...
-
【レジャー】
からす公園(現地より徒歩3分) (約190m)
住宅街の中にある、緑豊かな公園です。公園内は高低差のある2つの...
-
【レジャー】
ユーカリ交通公園(現地より徒歩5分) (約340m)
子ども達が楽しく遊びながら正しい交通知識・交通ルールを学ぶこと...
-
案内図
-
交通図
周辺環境のこだわりポイント
- スーパー 800m以内
- 小学校 800m以内
- 総合病院 800m以内
- 公園 400m以内
- 中学校 800m以内
- 保育園・幼稚園 400m以内
- 複数路線
0037-618-99664
無料
物件概要
| 所在地 | 千葉県松戸市小金原4丁目26番36(地番)他 | ||
|---|---|---|---|
| 交通 |
JR常磐線「北小金」駅 バス15分 交通公園バス停 徒歩4分 JR武蔵野線「新松戸」駅 徒歩31分~32分 京成松戸線「八柱」駅 バス12分 いちょう通りバス停 徒歩8分 |
||
| 販売価格 | 4,490万円 | 最多価格帯 | - |
| 建物面積 | 95.64m2~100.2m2 | 土地面積 | 130.8m2~135.07m2 / 私道負担なし |
| 間取り | 3LDK ~ 3LDK(4LDK対応可※有償工事) | 建物構造 | 木造2階建(在来工法) |
| 販売スケジュール | 販売期名/1期2次 | ||
| 販売戸数 / 総戸数 | 2戸 / 21戸 | ||
| 完成予定日 | 2026年4月完成済 | 引き渡し可能年月 | 2026年5月中旬 |
| 駐車場 | 2台 | 道路の幅員 | 5.0M公道 |
| 用途地域 | 第一種低層住居専用地域 | 都市計画 | 市街化区域 |
| 地目 | 宅地 山林 | 国土法 | - |
| 土地の権利 | 所有権 | 借地権の種類・期間 | - |
| 主たる設備の概要 | 公営水道、東京電力・他、都市ガス、本下水、カースペース、外構、植栽その他付帯設備一式 | 建築確認番号 | 第SJK-KX255628420号(2025年10月17日)1号棟他 |
| 施工会社 | ポラテック(株) | 機構融資 | - |
| 売主 | (株)中央住宅 不動産ソリューション事業部 [宅建業:国土交通大臣(13)第2401号] | 取引態様 | 売主 |
| モデルルーム情報 | 【予約制・現地モデルハウス公開中】一組様ずつご案内いたします。 | ||
| イベント情報 |
|
||
| 備考 | 東京電力・他/都市ガス/本下水/カースペース/外構/植栽その他付帯設備一式 | ||
| 情報更新日 | 2026/04/16 | 次回更新予定日 | 2026/04/20 |
| 取引条件有効期限 | 2026/04/18 | ||
住宅性能・販売概要・権利のこだわりポイント
- 所有権
- 瑕疵担保付き
- 仲介手数料不要
- 売主・代理
- 間取り変更可能
- フラット35・S適合証明書
0037-618-99664
無料
現地・イベント情報
【住まい探し応援キャンペーン実施中♪】ポラスの分譲住宅 北小金21プロジェクト ひととき×すみか
| 開催日時 |
2026年01月05日〜2026年12月28日
|
|---|---|
| 開催場所 | 千葉県松戸市小金原4丁目26番47、26番48(地番)他 |
| 交通 |
JR常磐線「北小金」駅 バス15分 徒歩4分 JR武蔵野線「新松戸」駅 徒歩32分 京成松戸線「八柱」駅 バス12分 徒歩8分 |
エリアを熟知したスタッフが、豊富な取引経験と各エリアのポラス住まいの情報館ネットワークを生かして、お客様のご要望にきめ細かく対応します。住宅情報・土地情報、税金・ローンなど住まいに関するご相談は、ぜひお気軽にお問い合わせくださいませ! ◇お問い合わせは【0120-208-069(通話料無料)】まで。
取扱い不動産会社
スタッフからのコメント
- 2025年キッズデザイン賞受賞ブランド!-天空の街-全21邸
- ~すみかとひとときに住むということ~
かけがえのない家族のひと時を、住まう人それぞれが持つ”暮らしのものさし”に提案力で応えていく「Sumi-ka+」。そして、人と木の空間が紡ぐ「HITO-TO-KI」。
その2つのブランドが融合した街に住まうということ。それは家族の笑顔が生まれ想い描いた理想が叶えられる場所があるということ。そして、そこに紡がれてゆく日常を憧れの場面に仕立てていくこと。あなたが探す「心地よい住まい」とは何か?の問いかけにきっとこの住まいは、答えを出すことができます。
企画設計 村田
ポラスグループ 株式会社中央住宅 不動産ソリューション事業部の会社情報
お電話でのお問合せは「LIFULL HOME'S(ライフルホームズ)を見て」とお伝えください
(株)中央住宅 不動産ソリューション事業部 不動産開発部
0037-618-99664
無料
- ※携帯電話はご利用いただけます
- ※光IP電話、及びIP電話をご利用のお客様はTEL:0120-208-069へご連絡ください
- ※携帯電話からお問合せいただいた方には、ショートメッセージ(SMS)またはLINE通知メッセージによるお問合せ内容に関する通知をお届けする場合があり、お客様の電話番号は株式会社LIFULLで一定期間保管されます
- ※株式会社LIFULLの個人情報の取扱い方針に同意のうえ、お電話ください
| 会社名 |
ポラスグループ 株式会社中央住宅 不動産ソリューション事業部 |
|---|---|
| 免許番号 | 国土交通大臣 (12) 第 2401 号 |
| 所在地 | 埼玉県越谷市南越谷2-14-38 |
| 所属団体 |
(公社)首都圏不動産公正取引協議会 |
ポラスグループ 中央住宅の会社紹介
この物件にお問合せする
実際に物件・周辺環境を見て検討したい!
近隣建物や接道の状況など資料で分からない部分も一目瞭然。 まずはWEBで事前予約、スムーズに見学しましょう
ご予約無しに直接ご来場された場合、担当者不在であったり、
他のお客様のご案内の都合上、お待たせしてしまうことがございます。
不動産会社に電話で相談したい!
(株)中央住宅 不動産ソリューション事業部 不動産開発部
0037-618-99664
無料
電話でのお問合せは「LIFULL HOME'S(ライフルホームズ)を見て」とお伝えください
- ※携帯電話はご利用いただけます
- ※光IP電話、及びIP電話をご利用のお客様はTEL:0120-208-069へご連絡ください
- ※携帯電話からお問合せいただいた方には、ショートメッセージ(SMS)またはLINE通知メッセージによるお問合せ内容に関する通知をお届けする場合があり、お客様の電話番号は株式会社LIFULLで一定期間保管されます
- ※株式会社LIFULLの個人情報の取扱い方針に同意のうえ、お電話ください
LIFULL HOME'Sは物件鮮度No.1を目指していきます 物件情報に誤りがある場合はコチラからご連絡ください
- 【物件番号】
- 1701288-0000518
- ※完成後1年未満で未入居の物件を「新築」と表示しております。
- ※完成予想図やCG合成画像は、門塀・植栽・庭・外観等、実際とは多少異なる場合があります。
物件を再検索する
千葉県の人気エリアから新築一戸建てを探す
松戸市の詳細町域から新築一戸建てを探す














