新築一戸建て ブールガーデン彦島本村町3号地
- 価格
- 3,680万円
- 所在地
-
山口県下関市彦島本村町7丁目
地図を見る
- 交通
- ロータリー 徒歩2分~2分
- 土地面積
- 202.93m2(61.38坪)
- 建物面積
- 104.88m2(31.73坪)
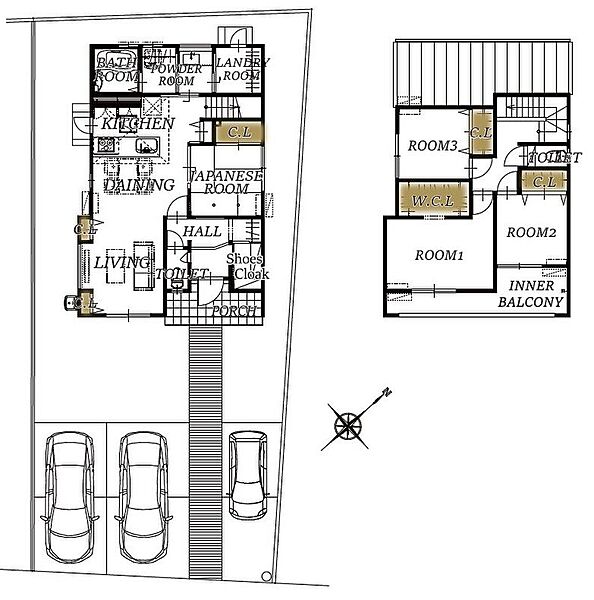
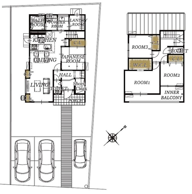
- 間取り
- 4LDK+WIC+ランドリールーム+シューズクローク+インナーバルコニー
家事の全てを室内で完結できる最新の間取り。共働き世帯向けの新築住宅。
駐車並列3台可。平坦地でお庭もしっかりある理想的な敷地。今話題のウルトラファインバブル給湯器を設置。浴槽はマイクロバブルで白濁のお湯を楽しめます。
LDKは広々18.5畳。玄関には大型シューズクロークを完備。ハンガーパイプは上着も掛けられます。
0037-618-26926
無料
内観・室内
間取り・内観のこだわりポイント
- LDK15帖以上
- 4LDK以上
- 和室
0037-618-26926
無料
設備・仕様
設備・仕様のこだわりポイント
- キッチン
-
- 食器洗い乾燥機
- ガスコンロ
- 収納
-
- 床下収納
- ウォークインクローゼット
- シューズクローク
- パントリー
- 全居室収納
- その他設備
-
- 都市ガス
- シャワー付洗面化粧台
- 温水洗浄便座
- 浴室乾燥機
- 浴室暖房
- トイレ2ヶ所以上
- 節水型トイレ
- 複層ガラス採用(二重サッシ・防犯サッシ等)
- スマートキー
- 省エネ給湯器
- TVモニタ付インターホン
0037-618-26926
無料
外観・分譲地
外観・分譲地のこだわりポイント
- 駐車場あり
- 地盤調査済
- 整形地
- 前面道路6m以上
- 平坦地
0037-618-26926
無料
周辺環境・地図
周辺情報
※半径4kmを超えると、周辺情報のアイコンは表示されません。
- ※不動産会社が入力した情報を基に物件の位置を表示しています。
- ※詳しくは不動産会社までお問合せください。
- ※地図上に表示される各種アイコンなどの情報は、おおよその所在地を表すものであり、物件・施設などの地点を保証するものではありません。
- ※地図の表示領域が広域になると周辺のお店・施設は表示できなくなります。
- ※地図、航空写真情報および地形ならびに周辺のお店・施設は、必ずしも現況を表すものではありません。
- ※物件から周辺のお店・施設までの距離は、利用が想定される道路を通行した場合の距離です。なお、必ずしも最短距離を保証するものではありません。
0037-618-26926
無料
物件概要
| 所在地 | 山口県下関市彦島本村町7丁目 | ||
|---|---|---|---|
| 交通 |
ロータリー 徒歩2分~2分 |
||
| 販売価格 | 3,680万円 | 最多価格帯 | - |
| 建物面積 | 104.88m2(31.73坪) | 土地面積 | 202.93m2(61.38坪) |
| 間取り | 4LDK+WIC+ランドリールーム+シューズクローク+インナーバルコニー | 建物構造 | 木造 ガルバリウム鋼板ぶき 2階建 |
| 販売スケジュール | 販売中 | ||
| 販売戸数 / 総戸数 | 1戸 / 1戸 | ||
| 完成予定日 | 2026年1月 | 引き渡し可能年月 | 2026年5月 |
| 駐車場 | 1台 ~ 3台 | 道路の幅員 | 公道 幅員8.2m |
| 用途地域 | 第一種住居地域 | 都市計画 | 市街化区域 |
| 地目 | 宅地 | 国土法 | - |
| 土地の権利 | 所有権 | 借地権の種類・期間 | - |
| 主たる設備の概要 | 中国電力、上下水道、都市ガス | 建築確認番号 | 完成済みのため省略 |
| 施工会社 | - | 機構融資 | - |
| 売主 | 株式会社エミアス [国土交通大臣(2)第9165号] | 取引態様 | 株式会社エミアス/売主 |
| 備考 |
*建物保証10年 *地盤保証20年 *住宅設備保証10年 *洪水浸水想定区域(0.5m以上~3m未満の区域) *土砂災害警戒区域 |
||
| 情報更新日 | 2026/05/17 | 次回更新予定日 | 2026/05/22 |
| 取引条件有効期限 | 2026/12/30 | ||
住宅性能・販売概要・権利のこだわりポイント
- 所有権
- 瑕疵担保付き
- 仲介手数料不要
- 売主・代理
- 耐震・制震・免震構造
- 即入居可
- 耐震・制震・免震構造
- 耐震等級3相当、制震ダンパー設置
0037-618-26926
無料
取扱い不動産会社
株式会社エミアスの会社情報
お電話でのお問合せは「LIFULL HOME'S(ライフルホームズ)を見て」とお伝えください
株式会社エミアス 不動産売買営業部
0037-618-26926
無料
- ※携帯電話はご利用いただけます
- ※光IP電話、及びIP電話をご利用のお客様はTEL:0120-69-0246へご連絡ください
- ※携帯電話からお問合せいただいた方には、ショートメッセージ(SMS)またはLINE通知メッセージによるお問合せ内容に関する通知をお届けする場合があり、お客様の電話番号は株式会社LIFULLで一定期間保管されます
- ※株式会社LIFULLの個人情報の取扱い方針に同意のうえ、お電話ください
| 会社名 |
株式会社エミアス |
|---|---|
| 免許番号 | 国土交通大臣 (2) 第 9165 号 |
| 所在地 | 山口県下関市一の宮住吉2丁目11-17 |
| 所属団体 |
(公社)山口県宅地建物取引業協会 |
この物件にお問合せする
実際に物件・周辺環境を見て検討したい!
近隣建物や接道の状況など資料で分からない部分も一目瞭然。 まずはWEBで事前予約、スムーズに見学しましょう
ご予約無しに直接ご来場された場合、担当者不在であったり、
他のお客様のご案内の都合上、お待たせしてしまうことがございます。
不動産会社に電話で相談したい!
株式会社エミアス 不動産売買営業部
0037-618-26926
無料
電話でのお問合せは「LIFULL HOME'S(ライフルホームズ)を見て」とお伝えください
- ※携帯電話はご利用いただけます
- ※光IP電話、及びIP電話をご利用のお客様はTEL:0120-69-0246へご連絡ください
- ※携帯電話からお問合せいただいた方には、ショートメッセージ(SMS)またはLINE通知メッセージによるお問合せ内容に関する通知をお届けする場合があり、お客様の電話番号は株式会社LIFULLで一定期間保管されます
- ※株式会社LIFULLの個人情報の取扱い方針に同意のうえ、お電話ください
LIFULL HOME'Sは物件鮮度No.1を目指していきます 物件情報に誤りがある場合はコチラからご連絡ください
- 【物件番号】
- 1701056-0000056
- ※完成後1年未満で未入居の物件を「新築」と表示しております。
- ※完成予想図やCG合成画像は、門塀・植栽・庭・外観等、実際とは多少異なる場合があります。






