新築一戸建て 【ワウハウス】ソフィスガーデン大門三丁目第2
2棟の同時見学可能です!
省エネ&創エネのZEH住宅。高性能住宅を月々支払い7万円から。
■創業28年累計5300棟超のお引渡し実績
■あかり協定で夜遅くのご帰宅時にも安心安全
■電気代を気にせず年中快適な暮らし/ZEH基準の断熱等級5
■ワウハウスの定期訪問・定期点検は安心の15年
0037-618-85307
無料
魅力1 100万円損しない!ワウハウスは仲介手数料不要!
ワウハウスの物件は、ワウハウスが仲介業者を介さずお客様と直接売買を行うため仲介手数料が不要となります。100万円以上の仲介手数料を節約できるのは、自社施工販売のワウハウスだからこそ。(仲介手数料参考例:取引額3,000万円の仲介手数料は“100万円/税込”。ワウハウスではこの仲介手数料が不要です。)詳細は当社スタッフへお伺いください。
魅力2 ワウハウスだからできること(1)
【15年の定期訪問・点検】
メンテナンスを専門とした、アフター担当が、「1ヶ月、6ヶ月、1年、2年、5年、10年、15年」のアフター定期訪問及び点検にお伺いし、住まいを詳細に点検いたします。
【長期10年保証】
住宅瑕疵担保責任保険で安心の10年保証。
基礎、柱、床、屋根などの「構造耐力上主要な部分」および「雨水の浸入を防止する部分」に欠陥が発生した場合、補修または賠償を保証します。
【地盤品質保証】
地盤は保険会社によって保証されており、不同沈下が起きて建物に重大な支障が発生した場合でも修復をお約束いたします。
建物の引渡しから20年を経過した日まで継続されます。
魅力3 ワウハウスだからできること(2)
【しろあり10年保証】
全周基礎パッキン工法を標準採用しているワウハウスが提供する木造住宅に、施工後10年以内に白蟻が発生した場合、最高1000万円を限度に補償額の給付を保証します。
【あかりの灯る家(あかり協定)】
暗くなるとLEDの外灯照明が明るさセンサーにより自動点灯。
沿道を明るく照らすとともに、夜道の足元も明るくなり、防犯効果への期待など夜間の安全性をよい高めます。
【ご見学お待ちしております】
建売住宅の見学会は、新しい生活をイメージできたり、新品の住宅を見ていただけます。
わたしたちが、理想の物件に巡り会えるようお手伝いさせていただきます。
0037-618-85307
無料
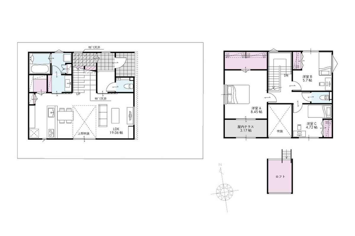
間取り図
0037-618-85307
無料
内観・室内
間取り・内観のこだわりポイント
- LDK15帖以上
- 4LDK以上
- ロフト付き
- 吹き抜け
- 和室
- 天井高2.5m以上
0037-618-85307
無料
設備・仕様
設備・仕様のこだわりポイント
- キッチン
-
- IHコンロ
- カウンターキッチン
- 食器洗い乾燥機
- 浄水器・活水器
- 収納
-
- ウォークインクローゼット
- シューズクローク
- パントリー
- 全居室収納
- その他設備
-
- オール電化
- マイホーム発電システム
- シャワー付洗面化粧台
- 温水洗浄便座
- 浴室乾燥機
- 浴室1.6×1.8m以上
- 浴室暖房
- トイレ2ヶ所以上
- タンクレストイレ
- 節水型トイレ
- 複層ガラス採用(二重サッシ・防犯サッシ等)
- スマートキー
- 省エネ給湯器
- TVモニタ付インターホン
- EV充電設備
- マイホーム発電システム
- 太陽光パネル
省エネ性能
- エネルギー消費性能:★★★★(削減率30%達成)〜 ★★★★★★(削減率50%達成)
- 断熱性能:5〜6段階/7段階
- 目安光熱費:約12.9万円/年 ※「省エネ性能ラベル」は特定の住戸の性能を示し、全ての住戸の性能を示していない場合があります。
0037-618-85307
無料
外観・分譲地
外観・分譲地のこだわりポイント
- 駐車場あり
- 地盤調査済
- 角地
- 前面道路6m以上
- 平坦地
0037-618-85307
無料
周辺環境・地図
周辺情報
※半径4kmを超えると、周辺情報のアイコンは表示されません。
- ※不動産会社が入力した情報を基に物件の位置を表示しています。
- ※詳しくは不動産会社までお問合せください。
- ※地図上に表示される各種アイコンなどの情報は、おおよその所在地を表すものであり、物件・施設などの地点を保証するものではありません。
- ※地図の表示領域が広域になると周辺のお店・施設は表示できなくなります。
- ※地図、航空写真情報および地形ならびに周辺のお店・施設は、必ずしも現況を表すものではありません。
- ※物件から周辺のお店・施設までの距離は、利用が想定される道路を通行した場合の距離です。なお、必ずしも最短距離を保証するものではありません。
周辺環境のこだわりポイント
- スーパー 800m以内
- 小学校 800m以内
- 公園 400m以内
- 保育園・幼稚園 400m以内
0037-618-85307
無料
物件概要
| 所在地 | 広島県福山市大門町3丁目398番 | ||
|---|---|---|---|
| 交通 |
JR山陽本線「大門」駅 徒歩18分~20分 |
||
| 販売価格 | 3,340~3,430万円 | 最多価格帯 | - |
| 建物面積 | 113.2~115.8m2 | 土地面積 | 139.84m2~140.89m2 |
| 間取り | 4LDKS | 建物構造 | 木造2階建(特殊金物・軸組工法) |
| 販売スケジュール | 販売中 | ||
| 販売戸数 / 総戸数 | 2戸 / 6戸 | ||
| 完成予定日 | 2026年2月他 | 引き渡し可能年月 | 即引渡可 |
| 駐車場 | 2台 | 道路の幅員 | 東側10m公道(1~3号地)、北側6m公道(3・4号地)、西側公道(5・6号地)に接す |
| 用途地域 | 第一種住居地域 | 都市計画 | 市街化区域 |
| 地目 | 宅地 | 国土法 | - |
| 土地の権利 | 所有権 | 借地権の種類・期間 | - |
| 主たる設備の概要 | オール電化、公共下水、公営水道 | 建築確認番号 | 完成済みのため省略 |
| 施工会社 | ワウハウス株式会社 | 機構融資 | - |
| 売主 | ワウハウス株式会社 | 取引態様 | 売主:ワウハウス株式会社 |
| 備考 |
モデルハウス(事前に必ずお問い合わせください) 日程/公開中 時間/9:00~18:00 どんな疑問でもお気軽にお問合せください! ホームズ経由もしくは下記フリーダイヤルまで☆ フリーダイヤル:0120-111-406 ※「ホームズを見た」とお伝えください。 [ 仲介手数料不要のその訳は… ] こちらの物件はワウハウスが自社で設計から建築、販売まで行っているので、仲介人なしでご購入いただけます! そのため、ワウハウスの物件は仲介手数料不要でご購入いただけます。 ◇当社HPからも様々な物件をご確認いただけます♪ → https://www.wowhouse.jp/ ◆当社売主のメリット◆ 自ら土地を仕入れ、建物の設計・施工を行なう自社一貫施工体制! ●自社施工だからこそ、建物の構造や工法・仕様についてなんでもお答えします! ●自社物件なので、空き物件などの情報が正確! ●15年のアフター定期訪問及び点検も自社(ワウハウス)が行います! [ 予約制現地見学会 開催中 ] 〇現地/モデルハウス見学(20分~40分程度) ●ご要望や資金計画等のご相談(30分~1時間程度) ご希望の時間内で、お気軽にご見学頂けます♪ ※所要時間は内容により、多少前後する場合がございます。 〇生活環境から実際の物件の特長や構造などお話しさせていただきます♪ ●お客様それぞれに最適な資金プランをご提案!もちろん無料☆ 〇掲載物件以外にも、ご紹介可能な物件あります◎ [ 住まいの無料相談会 開催中 ] ○住宅ローンについて聞いてみたい! ●自己資金はいくら用意すればいいの? ○土地がないけど大丈夫? ●希望の地域に物件がない ○住宅の買い方がわからない などなど |
||
| 情報更新日 | 2026/05/13 | 次回更新予定日 | 2026/05/27 |
| 取引条件有効期限 | 2026/12/31 | ||
住宅性能・販売概要・権利のこだわりポイント
- 所有権
- 瑕疵担保付き
- 仲介手数料不要
- 売主・代理
- 低炭素住宅
- 即入居可
0037-618-85307
無料
取扱い不動産会社
ワウハウス株式会社の会社情報
お電話でのお問合せは「LIFULL HOME'S(ライフルホームズ)を見て」とお伝えください
ワウハウス株式会社 本社営業部
0037-618-85307
無料
- ※携帯電話はご利用いただけます
- ※光IP電話、及びIP電話をご利用のお客様はTEL:0120-111-406へご連絡ください
- ※携帯電話からお問合せいただいた方には、ショートメッセージ(SMS)またはLINE通知メッセージによるお問合せ内容に関する通知をお届けする場合があり、お客様の電話番号は株式会社LIFULLで一定期間保管されます
- ※株式会社LIFULLの個人情報の取扱い方針に同意のうえ、お電話ください
| 会社名 |
ワウハウス株式会社 |
|---|---|
| 免許番号 | 国土交通大臣 (6) 第 5893 号 |
| 所在地 | 広島県福山市南蔵王町六丁目12番22号 |
| 所属団体 |
中国地区不動産公正取引協議会 |
この物件にお問合せする
実際に物件・周辺環境を見て検討したい!
近隣建物や接道の状況など資料で分からない部分も一目瞭然。 まずはWEBで事前予約、スムーズに見学しましょう
ご予約無しに直接ご来場された場合、担当者不在であったり、
他のお客様のご案内の都合上、お待たせしてしまうことがございます。
不動産会社に電話で相談したい!
ワウハウス株式会社 本社営業部
0037-618-85307
無料
電話でのお問合せは「LIFULL HOME'S(ライフルホームズ)を見て」とお伝えください
- ※携帯電話はご利用いただけます
- ※光IP電話、及びIP電話をご利用のお客様はTEL:0120-111-406へご連絡ください
- ※携帯電話からお問合せいただいた方には、ショートメッセージ(SMS)またはLINE通知メッセージによるお問合せ内容に関する通知をお届けする場合があり、お客様の電話番号は株式会社LIFULLで一定期間保管されます
- ※株式会社LIFULLの個人情報の取扱い方針に同意のうえ、お電話ください
LIFULL HOME'Sは物件鮮度No.1を目指していきます 物件情報に誤りがある場合はコチラからご連絡ください
- 【物件番号】
- 1700628-0000366
- ※完成後1年未満で未入居の物件を「新築」と表示しております。
- ※完成予想図やCG合成画像は、門塀・植栽・庭・外観等、実際とは多少異なる場合があります。
物件を再検索する
広島県の人気エリアから新築一戸建てを探す
福山市の詳細町域から新築一戸建てを探す
- 青葉台
- 赤坂町大字赤坂
- 今津町
- 駅家町大字江良
- 駅家町大字上山守
- 駅家町大字近田
- 駅家町大字中島
- 駅家町大字万能倉
- 沖野上町
- 春日町
- 加茂町
- 加茂町大字下加茂
- 川口町
- 北吉津町
- 草戸町
- 新涯町
- 地吹町
- 瀬戸町大字地頭分
- 千田町
- 千田町大字千田
- 高西町川尻
- 多治米町
- 大門町
- 大門町大門
- 長者町
- 千代田町
- 津之郷町大字加屋
- 坪生町
- 手城町
- 西深津町
- 野上町
- 東深津町
- 東町
- 引野町
- 日吉台
- 本庄町中
- 松永町
- 南蔵王町
- 南手城町
- 南松永町
- 箕島町
- 水呑町
- 水呑向丘
- 御船町
- 宮前町
- 御幸町大字下岩成
- 柳津町
- 山手町
- 横尾町
- 幕山台
- 西新涯町
- 東川口町
- 引野町北
- 東陽台
- 高西町
- 能島
- 内海町
- 新市町大字宮内
- 沼隈町大字草深
- 神辺町
- 水呑町三新田















