新築一戸建て Luxsis 学芸大学 Vol.9
- 価格
- 13,990万円(税込)~15,690万円(税込)
- 所在地
- 東京都世田谷区下馬3丁目
- 交通
- 東急東横線「学芸大学」駅 徒歩12分東急東横線「祐天寺」駅 徒歩20分東急田園都市線「三軒茶屋」駅 徒歩21分
乗り換え案内
- 土地面積
- 88.50m2~95.37m2
- 建物面積
- 104.32m2~111.78m2
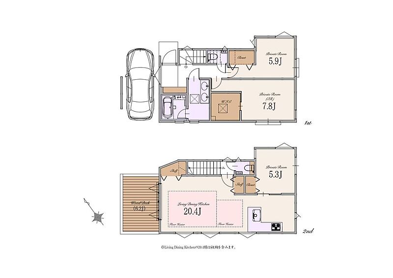
- 間取り
- 1LDK+3S、2LDK+1S
この物件は未完成のため、掲載写真(外観、内観、設備等)には、施工例が含まれている場合があります。物件詳細については、掲載の不動産会社宛にお問合せください。
「Luxsis」とは、デザイン窓や天窓、吹抜けを多く配置することにより、自然光を多く取り入れ、家の内部を明るく照らす「光と光が出会う住宅」です。
女性デザイナーがトータルプロデュースする、間取り配置やカラーコーディネート、細やかな心配りは、きっとあなたを満足させるはずです。
デザインの優れた住宅を建築する事だけではなく、省エネ性を兼ね備えたエコ住宅でもあります。制震にもこだわり、巨大な地震にも安心な住宅をご提供します。
0037-633-01043
無料
間取り図
0037-633-01043
無料
内観・室内
間取り・内観のこだわりポイント
- LDK15帖以上
- ワイドバルコニー
- 全室フローリング
- 天井高2.5m以上
0037-633-01043
無料
設備・仕様
設備・仕様のこだわりポイント
- キッチン
-
- 食器洗い乾燥機
- 浄水器・活水器
- ガスコンロ
- 収納
-
- 床下収納
- ウォークインクローゼット
- 全居室収納
- その他設備
-
- 都市ガス
- シャワー付洗面化粧台
- 温水洗浄便座
- 浴室乾燥機
- 浴室暖房
- トイレ2ヶ所以上
- タンクレストイレ
- ミストサウナ
- 床暖房
- 複層ガラス採用(二重サッシ・防犯サッシ等)
- スマートキー
- 省エネ給湯器
- ウッドデッキ
- 電動シャッター
- TVモニタ付インターホン
- 宅配ボックス
- EV充電設備
省エネ性能
- エネルギー消費性能:★★(削減率10%達成)
- 断熱性能:4段階/7段階 ※「省エネ性能ラベル」は特定の住戸の性能を示し、全ての住戸の性能を示していない場合があります。
0037-633-01043
無料
外観・分譲地
外観・分譲地のこだわりポイント
- 駐車場あり
- 低層住宅地
- 地盤調査済
0037-633-01043
無料
周辺環境・地図
周辺環境のこだわりポイント
- スーパー 800m以内
- 小学校 800m以内
- 公園 400m以内
- 中学校 800m以内
- 保育園・幼稚園 400m以内
- 複数路線
0037-633-01043
無料
物件概要
| 所在地 | 東京都世田谷区下馬3丁目 | ||
|---|---|---|---|
| 交通 |
東急東横線「学芸大学」駅 徒歩12分 東急東横線「祐天寺」駅 徒歩20分 東急田園都市線「三軒茶屋」駅 徒歩21分 |
||
| 販売価格 | 13,990万円(税込)~15,690万円(税込) | 最多価格帯 | - |
| 建物面積 | 104.32m2~111.78m2 | 土地面積 | 88.50m2~95.37m2 |
| 間取り | 1LDK+3S、2LDK+1S | 建物構造 | 木造スレート葺2階建て(制震住宅+耐震住宅) |
| 販売スケジュール | 販売中 | ||
| 販売戸数 / 総戸数 | 2戸 / 3戸 | ||
| 完成予定日 | 2026年10月末 | 引き渡し可能年月 | 2026年11月末 |
| 駐車場 | 有り | 道路の幅員 | 北西側約3.7m私道 別途私道負担面積 私道部分26.43m2(持分1/4) |
| 用途地域 | 第一種低層住居専用地域、第一種中高層住居専用地域 | 都市計画 | 市街化区域 |
| 地目 | 宅地 | 国土法 | 届出不要 |
| 土地の権利 | 所有権 | 借地権の種類・期間 | - |
| 保証金 | ‐ | ||
| 主たる設備の概要 | 当地区の電力会社、公営水道、都市ガス、本下水 | 建築確認番号 | A号棟:確認サービス第 KS126-3120-50593 号 他 |
| 施工会社 | 株式会社エスケーホームプロパティ(媒介) | 機構融資 | フラット35S(金利Bプラン)利用可 |
| 売主 | 株式会社エスケーホーム | 取引態様 | 株式会社エスケーホームプロパティ(媒介) |
| モデルルーム情報 | モデルルーム、ショールーム有り | ||
| イベント情報 |
|
||
| 備考 |
【現地見学会のご予約について】 現地のご見学をご希望のお客様は、お電話にてお気軽にお問合わせ下さい。 当日や夜間のご予約も承ります。 お客様一人一人に合わせたライフプランのご提案をさせて頂きますので 資金計画、住宅ローン等についても、お気軽にご相談下さい。 心よりご予約をお待ちしております。 |
||
| 情報更新日 | 2026/04/16 | 次回更新予定日 | 2026/04/23 |
| 取引条件有効期限 | 2026/12/31 | ||
住宅性能・販売概要・権利のこだわりポイント
- 所有権
- 瑕疵担保付き
- 耐震・制震・免震構造
- フラット35・S適合証明書
- 耐震・制震・免震構造
- 制震テープを構造合板や石膏ボード等と柱梁の間に介在させることにより、建物全体の体質改善が図られ、「制震住宅」となります。その結果、地震のエネルギーが吸収され(制震効果)、建物の応答変位を約80%低減します。
0037-633-01043
無料
現地・イベント情報
Luxsis 学芸大学 Vol.9
| 開催日時 |
2026年02月28日〜2026年12月31日
|
|---|---|
| 開催場所 | 東京都世田谷区下馬3丁目 |
| 交通 |
東急東横線「学芸大学」駅 徒歩12分 東急東横線「祐天寺」駅 徒歩20分 東急田園都市線「三軒茶屋」駅 徒歩21分 |
上記、開催日にてご予約を承っております。Luxsisの専門スタッフがご案内致します。弊社では 「日常を美しくする」という新提案 をコンセプトに「お客様と住まい」の出会いを大切にしております。その出会いが“未来の上質な日常″へつながるようサポートします。お客様一人一人に合わせたライフプランのご提案をさせて頂きますので、資金計画、住宅ローン等についても、お気軽にご相談下さい。心より、ご予約お待ちしております。
取扱い不動産会社
株式会社エスケーホームプロパティの会社情報
お電話でのお問合せは「LIFULL HOME'S(ライフルホームズ)を見て」とお伝えください
株式会社エスケーホームプロパティ
0037-633-01043
無料
- ※携帯電話はご利用いただけます
- ※光IP電話、及びIP電話をご利用のお客様はTEL:0120-554-019へご連絡ください
- ※携帯電話からお問合せいただいた方には、ショートメッセージ(SMS)またはLINE通知メッセージによるお問合せ内容に関する通知をお届けする場合があり、お客様の電話番号は株式会社LIFULLで一定期間保管されます
- ※株式会社LIFULLの個人情報の取扱い方針に同意のうえ、お電話ください
| 会社名 |
株式会社エスケーホームプロパティ |
|---|---|
| 免許番号 | 東京都知事 (6) 第 78633 号 |
| 所在地 | 東京都新宿区西新宿2-6-1 新宿住友ビル15階 |
| 所属団体 |
(公社)首都圏不動産公正取引協議会 |
この物件にお問合せする
実際に物件・周辺環境を見て検討したい!
近隣建物や接道の状況など資料で分からない部分も一目瞭然。 まずはWEBで事前予約、スムーズに見学しましょう
ご予約無しに直接ご来場された場合、担当者不在であったり、
他のお客様のご案内の都合上、お待たせしてしまうことがございます。
不動産会社に電話で相談したい!
株式会社エスケーホームプロパティ
0037-633-01043
無料
電話でのお問合せは「LIFULL HOME'S(ライフルホームズ)を見て」とお伝えください
- ※携帯電話はご利用いただけます
- ※光IP電話、及びIP電話をご利用のお客様はTEL:0120-554-019へご連絡ください
- ※携帯電話からお問合せいただいた方には、ショートメッセージ(SMS)またはLINE通知メッセージによるお問合せ内容に関する通知をお届けする場合があり、お客様の電話番号は株式会社LIFULLで一定期間保管されます
- ※株式会社LIFULLの個人情報の取扱い方針に同意のうえ、お電話ください
LIFULL HOME'Sは物件鮮度No.1を目指していきます 物件情報に誤りがある場合はコチラからご連絡ください
- 【物件番号】
- 1700569-0000343
- ※完成後1年未満で未入居の物件を「新築」と表示しております。
- ※完成予想図やCG合成画像は、門塀・植栽・庭・外観等、実際とは多少異なる場合があります。
物件を再検索する
東京23区の人気エリアから新築一戸建てを探す






