新築一戸建て 【補助金対象】【セキスイハイム】スマートハイムプレイス柏市明原
■「柏」駅徒歩15分 JR・東武2路線が利用できる柏駅は、都心直結の交通利便と高い商業集積を誇る千葉県有数のターミナル駅。 「東京」駅へは直通35分と、通勤に便利な立地です。
■充実の周辺環境 スーパー・コンビニ・ドラッグストアが身近に点在し、駅前の高島屋や専門店街も普段使い可能。 食料品から衣料、日用品まで、日常の買い物がスムーズに揃う生活利便性の高い環境です。
■鉄骨造2階建て3LDK 工場で作るユニット工法の鉄骨住宅は、耐震性能も高く、重厚感のあるデザイン。 太陽光・蓄電池搭載で日々の光熱費を削減。もしもの災害時も家族を守る設備仕様です。
0037-618-02995
無料
魅力1 ビックターミナル柏駅徒歩圏内に佇む安心・快適な鉄骨住宅
工場で作るボックスラーメン構造ユニット工法の鉄骨住宅です。
耐震性能も高く、重厚感のあるデザイン。
キッチンからリビングまで隔たりのない大空間で、
家族との時間を過ごすのに最適の間取り設計です。
南東向きに大開口があり、LDK全体に太陽の光が差し込みます。
魅力2 生活と収納にゆとりある生活
主寝室は南東向きの大開口で光を取り込み、部屋から扉一つで大きなWICに入れます。
各洋室は約5.8畳のです。机やベッドを置くスペースも十分に確保できます。
各部屋にクローゼットがついています。
魅力3 家族との時間を大切にできるキッチン
リビング、ダイニングにいる家族と会話をしながらお料理でき、
カップボードも充実しています。すぐ横の広々洗面は、
納戸と隣り合わせになっており、収納が充実しています。
0037-618-02995
無料
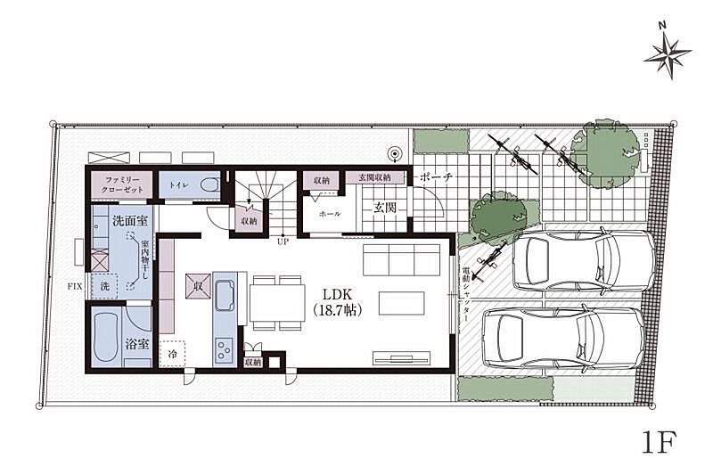
間取り図
0037-618-02995
無料
内観・室内
-
No.1_LDK1(撮影_2025年12月)
キッチンからリビングまで隔たりのない大空間です。家族との時間を...
-
No.1_LDK2(撮影_2025年12月)
南東向きに大開口があり、LDK全体に太陽の光が差し込みます。
-
No.1_キッチン(撮影_2025年12月)
リビング、ダイニングにいる家族と会話をしながらお料理できます。...
-
No.1_主寝室(撮影_2025年12月)
南東向きの大開口で光を取り込みます。穏やかな時間を演出する調光...
-
No.1_洗面(撮影_2025年12月)
広々洗面で、ファミリークローゼットと隣り合わせになっており、収...
-
No.1_洋室1(撮影_2025年12月)
約5.8畳の洋室です。各部屋にクローゼットがついています。
0037-618-02995
無料
設備・仕様
設備・仕様のこだわりポイント
- その他設備
-
- 都市ガス
省エネ性能
-
※「省エネ性能ラベル」は特定の住戸の性能を示し、全ての住戸の性能を示していない場合があります。
0037-618-02995
無料
外観・分譲地
0037-618-02995
無料
周辺環境・地図
周辺情報
※半径4kmを超えると、周辺情報のアイコンは表示されません。
- ※不動産会社が入力した情報を基に物件の位置を表示しています。
- ※詳しくは不動産会社までお問合せください。
- ※地図上に表示される各種アイコンなどの情報は、おおよその所在地を表すものであり、物件・施設などの地点を保証するものではありません。
- ※地図の表示領域が広域になると周辺のお店・施設は表示できなくなります。
- ※地図、航空写真情報および地形ならびに周辺のお店・施設は、必ずしも現況を表すものではありません。
- ※物件から周辺のお店・施設までの距離は、利用が想定される道路を通行した場合の距離です。なお、必ずしも最短距離を保証するものではありません。
-
【その他】
JR常磐線「柏」駅 (1140m 15分)
JR常磐線の快速・各駅、東武アーバンパークラインなどの路線が乗...
-
【その他】
認定こども園 くるみこども園 (340m 5分)
65年以上の歴史をもつ幼保連携型認定こども園。子育て拠点事業と...
-
【学校】
柏市立柏第一小学校 (1240m 16分)
柏市の中心地市街地に位置する公立小学校。旭東小学校と併合して、...
-
【病院・役所】
柏厚生総合病院 (790m 10分)
1979年に開設された、地域の中核病院として地域連携を密接に行...
-
【買い物】
ピーコックストア 豊四季台店 (490m 7分)
イオングループのスーパーマーケットチェーン。フレッシュな旬の味...
-
【レジャー】
豊四季台公園 (390m 5分)
「長寿社会のまちづくり」プロジェクトが進められている豊四季台に...
-
案内図
-
交通図
周辺環境のこだわりポイント
- 複数路線
0037-618-02995
無料
物件概要
| 所在地 | 千葉県柏市明原3丁目 | ||
|---|---|---|---|
| 交通 |
JR常磐線「柏」駅 徒歩14分~15分 東武バス「向原住宅」バス停 徒歩3分~4分 |
||
| 販売価格 | 7570万円 | 最多価格帯 | 7570万円(1戸) |
| 建物面積 | 99.72m2 | 土地面積 | 126.06m2 |
| 間取り | 3LDK | 建物構造 | 2階建て 構造:鉄骨造 工法: |
| 販売スケジュール | - | ||
| 販売戸数 / 総戸数 | 1戸 / 1戸 | ||
| 完成予定日 | 2025/12 | 引き渡し可能年月 | 相談 |
| 駐車場 | - | 道路の幅員 | 4.02m |
| 用途地域 | 第1種中高層住居専用地域 | 都市計画 | - |
| 地目 | - | 国土法 | - |
| 土地の権利 | 所有権 | 借地権の種類・期間 | - |
| 主たる設備の概要 | 都市ガス、公営水道、公共下水 | 建築確認番号 | 完成済み |
| 施工会社 | - | 機構融資 | - |
| 売主 | 東京セキスイハイム株式会社 | 取引態様 | 東京セキスイハイム株式会社(売主) |
| 備考 |
●長期優良住宅補助金対象!子育て世帯・若夫婦世帯なら長期優良住宅対象補助金80万円が受給できます。※受給条件がありますので詳しくは担当までお問い合わせください。 ●No.1価格改定しました!10万円DOWN● ■公式HPでプレゼント企画実施中!詳しくは公式HPへ! ■休業情報等については公式HPをご覧ください。 ■見学可能です。 ■ご来場について: 営業時間内でも、ご予約のお客様がいらっしゃらない場合、分譲地にスタッフが不在の場合もございます。 WEBまたはお電話にてご来場の予約をいただき、お越しくださいませ。 尚、メールやお電話でも各種ご相談を承っておりますので、お気軽にお問い合わせください。 --------- ■まちなみガイドラインがあります。 ■建物仕様について、太陽光発電システム・HEMS・EVコンセントの設置を条件とします。 ■先着順申込受付中の物件は、申込済・契約済の場合がありますので、ご了承ください。 ■お申込の際には、お認印・収入証明書(給与収入のみの方:直近2年分源泉徴収票、 給与収入のみ以外の方:確定申告書一式の写し[直近3期分]・身分証明書(運転免許証等)が必要です。 ■掲載の図面は計画段階の図面を基に描き起こしたもので、実際とは異なる場合があります。 また、施工上やむをえない変更が生じた場合は、建物竣工時の状態を優先します。 ■まちなみ画像・CGには販売済区画を含む場合がございます。最新の販売状況は区画図等をご参照下さい。 ■家具・調度品等は販売価格に含まれません。 ■お引渡時期については、諸手続き完了後となります。ただし造成・建築中の物件については、完工後のお引渡となります。 |
||
| 情報更新日 | 2026/05/07 | 次回更新予定日 | 2026/05/14 |
| 取引条件有効期限 | 2026/05/21 | ||
住宅性能・販売概要・権利のこだわりポイント
- 所有権
- 売主・代理
0037-618-02995
無料
取扱い不動産会社
東京セキスイハイム株式会社の会社情報
お電話でのお問合せは「LIFULL HOME'S(ライフルホームズ)を見て」とお伝えください
東京セキスイハイム株式会社
0037-618-02995
無料
- ※携帯電話はご利用いただけます
- ※光IP電話、及びIP電話をご利用のお客様はTEL:0120-122-816へご連絡ください
- ※携帯電話からお問合せいただいた方には、ショートメッセージ(SMS)またはLINE通知メッセージによるお問合せ内容に関する通知をお届けする場合があり、お客様の電話番号は株式会社LIFULLで一定期間保管されます
- ※株式会社LIFULLの個人情報の取扱い方針に同意のうえ、お電話ください
| 会社名 |
東京セキスイハイム株式会社 |
|---|---|
| 免許番号 | 国土交通大臣 (4) 第 7584 号 |
| 所在地 | 東京都新宿区西新宿3丁目 7-1 新宿パークタワー34階N棟 |
| 所属団体 |
(公社)首都圏不動産公正取引協議会 |
この物件にお問合せする
実際に物件・周辺環境を見て検討したい!
近隣建物や接道の状況など資料で分からない部分も一目瞭然。 まずはWEBで事前予約、スムーズに見学しましょう
ご予約無しに直接ご来場された場合、担当者不在であったり、
他のお客様のご案内の都合上、お待たせしてしまうことがございます。
不動産会社に電話で相談したい!
東京セキスイハイム株式会社
0037-618-02995
無料
電話でのお問合せは「LIFULL HOME'S(ライフルホームズ)を見て」とお伝えください
- ※携帯電話はご利用いただけます
- ※光IP電話、及びIP電話をご利用のお客様はTEL:0120-122-816へご連絡ください
- ※携帯電話からお問合せいただいた方には、ショートメッセージ(SMS)またはLINE通知メッセージによるお問合せ内容に関する通知をお届けする場合があり、お客様の電話番号は株式会社LIFULLで一定期間保管されます
- ※株式会社LIFULLの個人情報の取扱い方針に同意のうえ、お電話ください
LIFULL HOME'Sは物件鮮度No.1を目指していきます 物件情報に誤りがある場合はコチラからご連絡ください
- 【物件番号】
- 1700554-0000492
- ※完成後1年未満で未入居の物件を「新築」と表示しております。
- ※完成予想図やCG合成画像は、門塀・植栽・庭・外観等、実際とは多少異なる場合があります。
物件を再検索する
千葉県の人気エリアから新築一戸建てを探す









