新築一戸建て ポラスの分譲住宅 ミンクス獨協大学前
この物件は未完成のため、掲載写真(外観、内観、設備等)には、施工例が含まれている場合があります。物件詳細については、掲載の不動産会社宛にお問合せください。
■東武スカイツリーライン「獨協大学前〈草加松原〉」駅徒歩15~16分
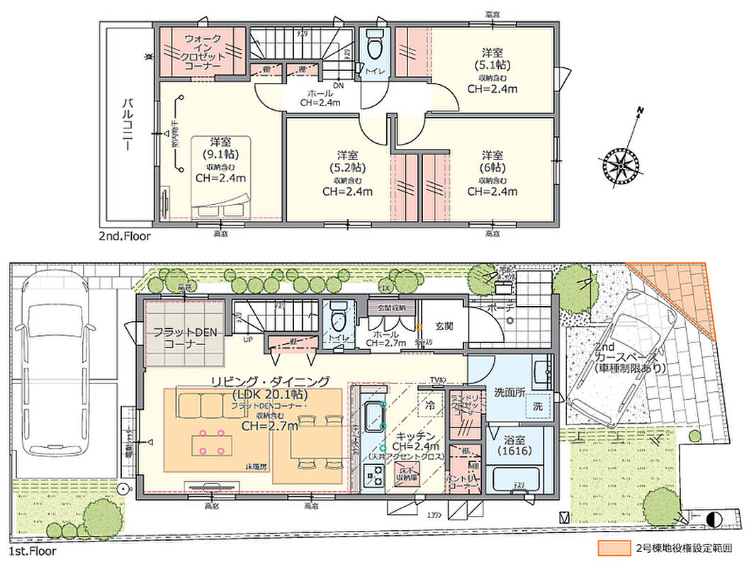
■地役権を設定した共有空間「コモン・ポケット」
■駐車2台対応号棟有
■土地面積120m2以上
■まつばら綾瀬川公園まで徒歩8分
■全邸LDK18帖以上
■4LDKプラン有
■家族とつながるリビング+α空間
■リビング天井高2.7M・掃出しサッシ高2.2Mのゆとり
■コミュニケーションがとりやすい「ハイオープンキッチン」
■夜の街並みを美しく照らす「灯かりのいえなみ協定(R)」
■ウルトラファインバブル搭載「エコワンX5」
■耐震等級3取得
【カーナビ住所】
「埼玉県草加市弁天2丁目5(付近)」
とご入力ください。
0037-618-64921
無料
魅力1 《暮らしの快適性を高める2つの収納スタイル》
「つながる収納」と「まとめる収納」の2つのコンセプトを持つ収納空間をデザイン。
◆リビング収納
消耗品のストックや掃除用具、文具など、生活感の出やすい小物の定位置として活用できます。
◆パントリー
食材の買い置きや調理家電の収納に。保存食や飲料なども保管しておけるので、いざという時の備えにも活躍します。
◆ランドリークロゼット
パジャマや下着を置ける収納スペースを洗面所内に設置。洗剤やシャンプーなどのストックもさっと取り出せます。
◆土間収納
玄関脇にタイル敷きの収納スペースをご用意。DIY用品や外遊びの道具、ベビーカーなどを収納できます。
※号棟により採
魅力2 《住民同士が繋がり、温かく豊かな時間が紡がれる街》
◆化粧割栗石「よいやみ」
存在感のある割栗石をエクステリアに採用。自然な風合いと立体感が街並みにアクセントを添え、美しい景観を創出します。
◆灯かりのいえなみ協定(R)
暗くなるとLED外部照明が自動点灯。夜の街並みを美しく浮かび上がらせ、安全性を高める効果もあります。※照明の数や種類は号棟により異なります。
◆EV・PHEV充電用屋外コンセント
エコカーライフをサポートする、電気自動車用の屋外コンセントを設置。時代の先進性を感じさせる洗練されたデザインと共に、充電ケーブルの接続のしやすさや、毎日の充電に求められる耐久性にも配慮しています。
魅力3 《公園の緑と駅周辺の利便性が調和する魅力的な住環境》
歴史的情緒や豊かな風景、旧草加松原団地から続く人との繋がりを色濃く残す「獨協大学前<草加松原>」エリア。
駅の西側では松原団地の賑わいを受け継ぐ伝統的なお祭り「まつばらだんち祭・日山盆踊り」を実施。
住まいのある東側では松原綾瀬川公園で「草加ふささら祭り」や「春の子どもフェスタ」などのイベントが開催。2つのエリアで人と地域が繋がる街に地域密着型のポラスの街が生まれ、その歴史に加わっていきます。
・篠葉公園/640m
・松原団地記念公園/1600m
・東武ストア草加中根店/440m
・ドラッグセイムス弁天町店/490m
・八幡小学校/990m
・松江中学校/930m
・しの
0037-618-64921
無料
間取り図
0037-618-64921
無料
内観・室内
間取り・内観のこだわりポイント
- LDK15帖以上
- 4LDK以上
- 全室フローリング
- 天井高2.5m以上
0037-618-64921
無料
設備・仕様
-
【キッチン/クリナップSTEDIA】
毎日使うから、長くキレイを保てるキッチン...
-
【蛇口一体型浄水器/クローレ】
“飲む・洗う・調理”のあらゆるシーンに対...
-
【浴室/リクシルAX】
なめらかな光沢が美しい人造大理石浴槽は、...
-
【洗面化粧台/Panasonicシーライ...
拭き取りやすい水はねパネルを付けたサニタ...
-
【トイレ/リクシルベーシア】
いつでも清潔な状態が保てるように、便器も...
-
【LD床暖房】
住まいの空間を快適にしてくれるガス温水式...
-
【外でもドアホン】
玄関ドアの施錠、子どもたちの出迎えや来客...
-
【スマートロックシステム「FamiLoc...
スマートフォンやリモコンを使用して玄関ド...
-
【ハイブリッド給湯・暖房システム「ECO...
電気で効率良くお湯を沸かし、ガスで使いた...
設備・仕様のこだわりポイント
- キッチン
-
- カウンターキッチン
- 食器洗い乾燥機
- 浄水器・活水器
- ガスコンロ
- 収納
-
- 床下収納
- ウォークインクローゼット
- パントリー
- 全居室収納
- その他設備
-
- 都市ガス
- シャワー付洗面化粧台
- 温水洗浄便座
- 浴室乾燥機
- 浴室暖房
- トイレ2ヶ所以上
- 節水型トイレ
- 床暖房
- 複層ガラス採用(二重サッシ・防犯サッシ等)
- スマートキー
- 省エネ給湯器
- 電動シャッター
- TVモニタ付インターホン
- 宅配ボックス
- EV充電設備
省エネ性能
-
※「省エネ性能ラベル」は特定の住戸の性能を示し、全ての住戸の性能を示していない場合があります。
0037-618-64921
無料
外観・分譲地
外観・分譲地のこだわりポイント
- 駐車場あり
- 地盤調査済
- 前面道路6m以上
- 平坦地
0037-618-64921
無料
周辺環境・地図
周辺情報
※半径4kmを超えると、周辺情報のアイコンは表示されません。
- ※不動産会社が入力した情報を基に物件の位置を表示しています。
- ※詳しくは不動産会社までお問合せください。
- ※地図上に表示される各種アイコンなどの情報は、おおよその所在地を表すものであり、物件・施設などの地点を保証するものではありません。
- ※地図の表示領域が広域になると周辺のお店・施設は表示できなくなります。
- ※地図、航空写真情報および地形ならびに周辺のお店・施設は、必ずしも現況を表すものではありません。
- ※物件から周辺のお店・施設までの距離は、利用が想定される道路を通行した場合の距離です。なお、必ずしも最短距離を保証するものではありません。
-
【学校】
八幡小学校/徒歩13分 (約990m)
「やる気で勉強」「はっきりあいさつ」「たくさん運動」をキャッチ...
-
【学校】
松江中学校/徒歩12分 (約930m)
1985年に開校。「学ぶ意欲のある生徒(かしこく)」「強い心と...
-
【買い物】
東武ストア 草加中根店(現地より徒歩6分) (約440m)
無料駐車場63台完備。食品・酒・生活用品・たばこなどが取り扱わ...
-
【買い物】
ドラッグセイムス 弁天町店(現地より徒歩7分) (約490m)
医薬品や化粧品はもちろん、食品やベビー用品・ペット用品などが取...
-
【病院・役所】
かたい内科クリニック(現地より徒歩6分) (約480m)
診療科目は内科、消化器内科、糖尿病内科、アレルギー内科、整形外...
-
【レジャー】
まつばら綾瀬川公園(現地より徒歩8分) (約580m)
広い敷地内には広場を中心に親水ラグーン、健康器具、木製遊具のほ...
周辺環境のこだわりポイント
- スーパー 800m以内
- 公園 400m以内
- 複数路線
0037-618-64921
無料
物件概要
| 所在地 | 埼玉県草加市弁天2丁目1145番1他 | ||
|---|---|---|---|
| 交通 |
東武伊勢崎線「獨協大学前」駅 徒歩15分~16分 東武伊勢崎線「獨協大学前」駅 バス12分 中根町バス停 徒歩6分 つくばエクスプレス「八潮」駅 バス36分 中根町バス停 徒歩6分 |
||
| 販売価格 | 4,890万円~5,890万円 | 最多価格帯 | - |
| 建物面積 | 95.22m2~103.09m2 | 土地面積 | 121.02m2~143.17m2 / 私道負担なし |
| 間取り | 3LDK+スキップDEN+パントリー+ファミリークロゼット+ウォークインクロゼットコーナー ~ 4LDK+スキップDEN+土間収納+パントリー+ウォークインクロゼットコーナー | 建物構造 | 木造2階建(2×4工法) |
| 販売スケジュール | 先着順申込受付中 | ||
| 販売戸数 / 総戸数 | 3戸 / 5戸 | ||
| 完成予定日 | 2026年6月下旬予定 | 引き渡し可能年月 | 2026年7月下旬 |
| 駐車場 | 1台 | 道路の幅員 | 東側6.1M~6.3M公道 |
| 用途地域 | 工業地域 | 都市計画 | 市街化区域 |
| 地目 | 宅地 | 国土法 | - |
| 土地の権利 | 所有権 | 借地権の種類・期間 | - |
| 主たる設備の概要 | 公営水道、東京電力・他、都市ガス、本下水、カースペース、外構、植栽その他付帯設備一式 | 建築確認番号 | 2025.12.15 第SJK-KX255638660号(1号棟)他 |
| 施工会社 | グローバルホーム(株) ポラスグループ | 機構融資 | - |
| 売主 | (株)中央住宅 マインドスクェア事業部 [宅建業:国土交通大臣(13)第2401号] | 取引態様 | 売主 |
| モデルルーム情報 | 近隣モデルハウス公開中! | ||
| 備考 |
■共有持分/ごみ集積所2.26m2×1/5 ※販売価格には、建物の消費税10%分が含まれます。 ※灯かりのいえなみ協定(R)があります。詳細は販売員までご確認下さい。 ※建ぺい率・容積率は県条例第3条ただし書適用により号棟により異なります。 (3号棟:建ぺい率45.49%/容積率151.65%、5号棟:建ぺい率49.73%/容積率165.79%) ※土地面積には承役地を含みます。承役地部分には通行の妨げとなる物を設けることはできません。詳細は土地利用と地役権設定に関する覚書をご確認下さい。 [設備]公営水道/東京電力・他/都市ガス/本下水/カースペース/外構/植栽その他付帯設備一式 |
||
| 情報更新日 | 2026/05/27 | 次回更新予定日 | 2026/06/01 |
| 取引条件有効期限 | 2026/05/29 | ||
住宅性能・販売概要・権利のこだわりポイント
- 所有権
- 瑕疵担保付き
- 仲介手数料不要
- 売主・代理
- フラット35・S適合証明書
0037-618-64921
無料
取扱い不動産会社
ポラスグループ 株式会社中央住宅 マインドスクェア事業部の会社情報
お電話でのお問合せは「LIFULL HOME'S(ライフルホームズ)を見て」とお伝えください
(株)中央住宅 マインドスクェア事業部 営業課
0037-618-64921
無料
- ※携帯電話はご利用いただけます
- ※光IP電話、及びIP電話をご利用のお客様はTEL:0120-350-255へご連絡ください
- ※携帯電話からお問合せいただいた方には、ショートメッセージ(SMS)またはLINE通知メッセージによるお問合せ内容に関する通知をお届けする場合があり、お客様の電話番号は株式会社LIFULLで一定期間保管されます
- ※株式会社LIFULLの個人情報の取扱い方針に同意のうえ、お電話ください
| 会社名 |
ポラスグループ 株式会社中央住宅 マインドスクェア事業部 |
|---|---|
| 免許番号 | 国土交通大臣 (13) 第 2401 号 |
| 所在地 | 埼玉県越谷市弥生町17-1 越谷ツインシティAシティ2F |
| 所属団体 |
(公社)首都圏不動産公正取引協議会 |
この物件にお問合せする
実際に物件・周辺環境を見て検討したい!
近隣建物や接道の状況など資料で分からない部分も一目瞭然。 まずはWEBで事前予約、スムーズに見学しましょう
ご予約無しに直接ご来場された場合、担当者不在であったり、
他のお客様のご案内の都合上、お待たせしてしまうことがございます。
不動産会社に電話で相談したい!
(株)中央住宅 マインドスクェア事業部 営業課
0037-618-64921
無料
電話でのお問合せは「LIFULL HOME'S(ライフルホームズ)を見て」とお伝えください
- ※携帯電話はご利用いただけます
- ※光IP電話、及びIP電話をご利用のお客様はTEL:0120-350-255へご連絡ください
- ※携帯電話からお問合せいただいた方には、ショートメッセージ(SMS)またはLINE通知メッセージによるお問合せ内容に関する通知をお届けする場合があり、お客様の電話番号は株式会社LIFULLで一定期間保管されます
- ※株式会社LIFULLの個人情報の取扱い方針に同意のうえ、お電話ください
LIFULL HOME'Sは物件鮮度No.1を目指していきます 物件情報に誤りがある場合はコチラからご連絡ください
- 【物件番号】
- 1700446-0000908
- ※完成後1年未満で未入居の物件を「新築」と表示しております。
- ※完成予想図やCG合成画像は、門塀・植栽・庭・外観等、実際とは多少異なる場合があります。
物件を再検索する
埼玉県の人気エリアから新築一戸建てを探す
- 川越市
- 熊谷市
- 川口市
- 行田市
- 秩父市
- 所沢市
- 飯能市
- 加須市
- 本庄市
- 東松山市
- 春日部市
- 狭山市
- 羽生市
- 鴻巣市
- 深谷市
- 上尾市
- 越谷市
- 蕨市
- 戸田市
- 入間市
- 朝霞市
- 志木市
- 和光市
- 新座市
- 桶川市
- 久喜市
- 北本市
- 八潮市
- 富士見市
- 三郷市
- 蓮田市
- 坂戸市
- 幸手市
- 鶴ヶ島市
- 日高市
- 吉川市
- ふじみ野市
- 白岡市
- 北足立郡伊奈町
- 入間郡三芳町
- 入間郡毛呂山町
- 入間郡越生町
- 比企郡滑川町
- 比企郡嵐山町
- 比企郡小川町
- 比企郡川島町
- 比企郡吉見町
- 比企郡鳩山町
- 比企郡ときがわ町
- 秩父郡横瀬町
- 秩父郡皆野町
- 児玉郡美里町
- 児玉郡神川町
- 児玉郡上里町
- 大里郡寄居町
- 南埼玉郡宮代町
- 北葛飾郡杉戸町
- 北葛飾郡松伏町















