新築一戸建て ポラスの分譲住宅 プリマージュ越谷・大袋 ブライトトゥモロー
【アクセス】
◆東武スカイツリーライン「『北越谷』駅・『大袋』駅利用
◆徒歩圏内に生活施設が集まる暮らしやすい街
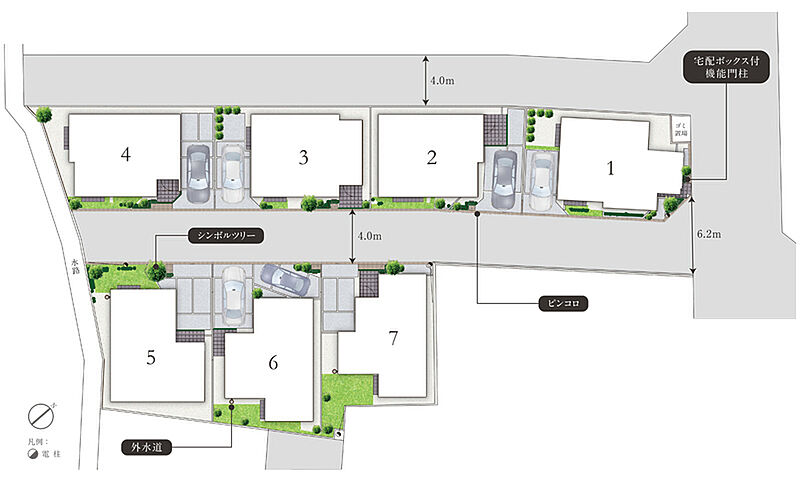
【モダンな7邸が創出する美しい街並風家】
◆リビングの一角にある段差空間ステージリビング
◆リビング続きで個室としても使える多目的ルーム有
【ネットで見学予約できる日程】より、見学予約ができます!
◆火曜日・水曜日は定休日になりますが、内覧の相談は可能です。
◆内覧以外にも資金計画やライフプランに寄り添ったご提案をいたします♪
0037-618-32054
無料
魅力1 【全棟建物完成/モデルハウス公開中】見学予約受付中!
モダンな7邸が創出する、美しい街並風景と、実際にお住まいになる家がご覧いただけます。こちらの物件は、11/30までのご成約で50万円分の特典付です。ぜひこの機会にポラスの家を体感してください。お待ちしております。
魅力2 【INNER DESIGN】多彩な照明が協奏する居心地のよいリビング空間
家族が集まるリビングの居心地を深めるため、建築化照明やライティングダクトなど多彩な照明アイテムを採用しホテルライクな空間をデザイン。
リビングに隣接したスペースにはライフスタイルの幅を広げるプランを2スタイルご提案。
魅力3 【ポラスの標準仕様】ワンランク上の暮らしを叶える標準設計&アイテム
末永く快適で居心地のよい住まいであるために、天井の開放感やサッシの大きさ、光の入り方まで丁寧に空間を設計。木の豊かな質感を感じられるフロアや住まいをすっきり保てる収納計画など、住まいの細部までこだわった家づくり。
0037-618-32054
無料
間取り図
0037-618-32054
無料
内観・室内
間取り・内観のこだわりポイント
- LDK15帖以上
- 天井高2.5m以上
0037-618-32054
無料
設備・仕様
設備・仕様のこだわりポイント
- キッチン
-
- カウンターキッチン
- 食器洗い乾燥機
- 浄水器・活水器
- ガスコンロ
- 収納
-
- 床下収納
- ウォークインクローゼット
- シューズクローク
- パントリー
- その他設備
-
- 都市ガス
- 温水洗浄便座
- トイレ2ヶ所以上
- 節水型トイレ
- 床暖房
- 省エネ給湯器
- 電動シャッター
- TVモニタ付インターホン
- 宅配ボックス
省エネ性能
-
※「省エネ性能ラベル」は特定の住戸の性能を示し、全ての住戸の性能を示していない場合があります。
0037-618-32054
無料
外観・分譲地
外観・分譲地のこだわりポイント
- 駐車場あり
0037-618-32054
無料
周辺環境・地図
周辺情報
※半径4kmを超えると、周辺情報のアイコンは表示されません。
- ※不動産会社が入力した情報を基に物件の位置を表示しています。
- ※詳しくは不動産会社までお問合せください。
- ※地図上に表示される各種アイコンなどの情報は、おおよその所在地を表すものであり、物件・施設などの地点を保証するものではありません。
- ※地図の表示領域が広域になると周辺のお店・施設は表示できなくなります。
- ※地図、航空写真情報および地形ならびに周辺のお店・施設は、必ずしも現況を表すものではありません。
- ※物件から周辺のお店・施設までの距離は、利用が想定される道路を通行した場合の距離です。なお、必ずしも最短距離を保証するものではありません。
-
【学校】
弥栄小学校(現地より徒歩12分) (約890m)
越谷市では平成27年度より、児童生徒の生きる力の育成を目指し内...
-
【学校】
北陽中学校(現地より徒歩23分) (約1820m)
のどかで落ち着いた環境にあり、生徒数は少なめです。農業体験がで...
-
【学校】
新栄中学校(現地より徒歩15分) (約1130m)
越谷市立新栄中学校は、生徒数が比較的少ないことが特徴です。また...
-
【学校】
しらとりこども園(現地より徒歩6分) (約410m)
広い園庭や、畑、ダイニングルーム、恵まれた環境を最大限保育に活...
-
【学校】
深田保育所(現地より徒歩6分) (約460m)
一人ひとりの子ども達が健やかで心豊かに育つようにと願い、家庭の...
-
【学校】
アスナロ幼稚園(現地より徒歩9分) (約710m)
それぞれの園児の個性を伸ばしながら45年以上地域に根ざした幼稚...
-
案内図
周辺環境のこだわりポイント
- 公園 400m以内
0037-618-32054
無料
物件概要
| 所在地 | 埼玉県越谷市大字弥十郎字裏沼213-1(地番)他 | ||
|---|---|---|---|
| 交通 |
東武伊勢崎線「北越谷」駅 バス15分 弥十郎公園入口バス停 徒歩3分 東武伊勢崎線「大袋」駅 徒歩20分 東武伊勢崎線「せんげん台」駅 徒歩34分 |
||
| 販売価格 | 4,490万円 | 最多価格帯 | - |
| 建物面積 | 98.52m2 | 土地面積 | 105.89m2 / 私道負担なし |
| 間取り | 4LDK+2ウォークインクロゼット +パントリー+土間収納+テラスバルコニー | 建物構造 | 木造2階建(在来工法) |
| 販売スケジュール | 先着順申込受付中 | ||
| 販売戸数 / 総戸数 | 1戸 / 7戸 | ||
| 完成予定日 | 2025年6月完成済 | 引き渡し可能年月 | 即引渡可 |
| 駐車場 | 1台 | 道路の幅員 | 北東側7.0M公道、北西側4.0M公道、南東側6.0M公道、4.0M新設道路 |
| 用途地域 | 第一種中高層住居専用地域 | 都市計画 | 市街化区域 |
| 地目 | 宅地 | 国土法 | - |
| 土地の権利 | 所有権 | 借地権の種類・期間 | - |
| 主たる設備の概要 | 公営水道、東京電力・他、都市ガス、本下水、カースペース、外構、植栽その他付帯設備一式 | 建築確認番号 | 第SJK-KX245651170号(2025年1月6日/1号棟) |
| 施工会社 | ポラテック(株) | 機構融資 | - |
| 売主 | (株)新田開発 [宅建業:国土交通大臣(13)第2401号] | 取引態様 | 代理 |
| モデルルーム情報 | 近隣モデルハウス公開中! | ||
| 備考 |
【売主】株式会社新田開発/埼玉県知事(11)第10531号 【販売代理】株式会社中央住宅 ※1・6号棟はモデルハウスとして使用させていただきます。詳細はモデルハウス確認書をご覧ください。 [設備]公営水道/東京電力・他/都市ガス/本下水/カースペース/外構/植栽その他付帯設備一式 |
||
| 情報更新日 | 2026/05/17 | 次回更新予定日 | 随時 |
| 取引条件有効期限 | 2026/05/19 | ||
住宅性能・販売概要・権利のこだわりポイント
- 所有権
- 売主・代理
- 即入居可
0037-618-32054
無料
取扱い不動産会社
スタッフからのコメント
- 【売主物件】ポラスの分譲住宅・戸建分譲第一事業部
- 物件のプロがあなたの理想のマイホームを見つけるサポートを致します。 物件の選び方から住宅ローンの試算まで、お気軽にご相談ください。 また、Webにはまだ掲載されていない未公開物件のご紹介も致します。
ポラスの分譲住宅STAFF
ポラスグループ 株式会社中央住宅 戸建分譲第一事業部の会社情報
お電話でのお問合せは「LIFULL HOME'S(ライフルホームズ)を見て」とお伝えください
(株)中央住宅 戸建分譲 第一事業部
0037-618-32054
無料
- ※携帯電話はご利用いただけます
- ※光IP電話、及びIP電話をご利用のお客様はTEL:0120-921-988へご連絡ください
- ※携帯電話からお問合せいただいた方には、ショートメッセージ(SMS)またはLINE通知メッセージによるお問合せ内容に関する通知をお届けする場合があり、お客様の電話番号は株式会社LIFULLで一定期間保管されます
- ※株式会社LIFULLの個人情報の取扱い方針に同意のうえ、お電話ください
| 会社名 |
ポラスグループ 株式会社中央住宅 戸建分譲第一事業部 |
|---|---|
| 免許番号 | 国土交通大臣 (13) 第 2401 号 |
| 所在地 | 埼玉県越谷市南越谷1-20-9 イーストサンビル3・1F |
| 所属団体 |
(公社)首都圏不動産公正取引協議会 |
この物件にお問合せする
実際に物件・周辺環境を見て検討したい!
近隣建物や接道の状況など資料で分からない部分も一目瞭然。 まずはWEBで事前予約、スムーズに見学しましょう
ご予約無しに直接ご来場された場合、担当者不在であったり、
他のお客様のご案内の都合上、お待たせしてしまうことがございます。
不動産会社に電話で相談したい!
(株)中央住宅 戸建分譲 第一事業部
0037-618-32054
無料
電話でのお問合せは「LIFULL HOME'S(ライフルホームズ)を見て」とお伝えください
- ※携帯電話はご利用いただけます
- ※光IP電話、及びIP電話をご利用のお客様はTEL:0120-921-988へご連絡ください
- ※携帯電話からお問合せいただいた方には、ショートメッセージ(SMS)またはLINE通知メッセージによるお問合せ内容に関する通知をお届けする場合があり、お客様の電話番号は株式会社LIFULLで一定期間保管されます
- ※株式会社LIFULLの個人情報の取扱い方針に同意のうえ、お電話ください
LIFULL HOME'Sは物件鮮度No.1を目指していきます 物件情報に誤りがある場合はコチラからご連絡ください
- 【物件番号】
- 1700338-0000508
- ※完成後1年未満で未入居の物件を「新築」と表示しております。
- ※完成予想図やCG合成画像は、門塀・植栽・庭・外観等、実際とは多少異なる場合があります。
物件を再検索する
埼玉県の人気エリアから新築一戸建てを探す
- 川越市
- 熊谷市
- 川口市
- 行田市
- 秩父市
- 所沢市
- 飯能市
- 加須市
- 本庄市
- 東松山市
- 春日部市
- 狭山市
- 羽生市
- 鴻巣市
- 深谷市
- 上尾市
- 草加市
- 蕨市
- 戸田市
- 入間市
- 朝霞市
- 志木市
- 和光市
- 新座市
- 桶川市
- 久喜市
- 北本市
- 八潮市
- 富士見市
- 三郷市
- 蓮田市
- 坂戸市
- 幸手市
- 鶴ヶ島市
- 日高市
- 吉川市
- ふじみ野市
- 白岡市
- 北足立郡伊奈町
- 入間郡三芳町
- 入間郡毛呂山町
- 入間郡越生町
- 比企郡滑川町
- 比企郡嵐山町
- 比企郡小川町
- 比企郡川島町
- 比企郡吉見町
- 比企郡鳩山町
- 比企郡ときがわ町
- 秩父郡横瀬町
- 秩父郡皆野町
- 秩父郡長瀞町
- 秩父郡小鹿野町
- 児玉郡美里町
- 児玉郡神川町
- 児玉郡上里町
- 大里郡寄居町
- 南埼玉郡宮代町
- 北葛飾郡杉戸町
- 北葛飾郡松伏町














