新築一戸建て ポラスの分譲住宅 ビー・グレイス京成大久保 階景の邸
この物件は未完成のため、掲載写真(外観、内観、設備等)には、施工例が含まれている場合があります。物件詳細については、掲載の不動産会社宛にお問合せください。
習志野市・駅近プロジェクト始動〈全2邸〉
◆京成本線「京成大久保」駅まで徒歩9分
◆「京成大久保」駅利用で「東京」駅まで45分・「成田空港」駅まで46分
◆2階建て×3階建て戸建
◆4LDKプラン×4LDK対応プラン
◆スマートロックシステム「ファミロック」採用の玄関ドア
◆「大久保小学校」まで徒歩2分・「習志野みのり幼稚園」まで徒歩7分・徒歩圏に教育施設が揃い、暮らしやすさを実感できる住環境
0037-618-93054
無料
魅力1 習志野市・駅近プロジェクト始動〈全2邸〉
◆京成本線「京成大久保」駅まで徒歩9分
◆「京成大久保」駅利用で「東京」駅まで45分・「成田空港」駅まで46分
魅力2 快適な暮らしを支える充実の標準設備
◆土間収納やパントリー、大型ウォークインクローゼット等の収納充実プラン ◆ガス式衣類乾燥機「乾太くん」 ◆ウルトラファインバブルの「エコワンX5」 ◆食洗機・浴室乾燥機・電動シャッター・床暖房・宅配ボックス標準設定
魅力3 小学校まで徒歩2分。子育て世代に安心な環境!
大久保小学校/学校教育目標は「瞳を輝かせて現代(いま)を生きる子どもの育成」。「本気でキラリ、仲間といきいき」を合言葉に教育活動が行われています。年間行事の様子などが学校HPで公開されています。
0037-618-93054
無料
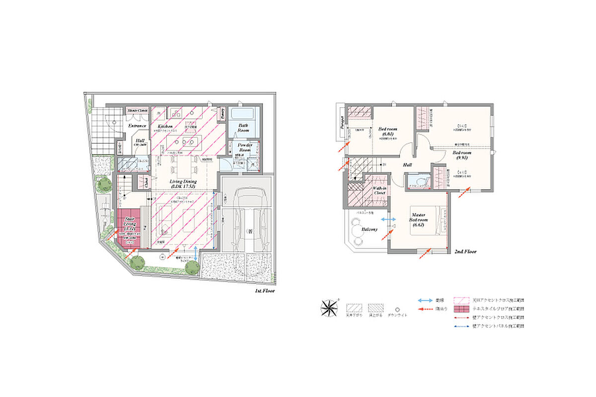
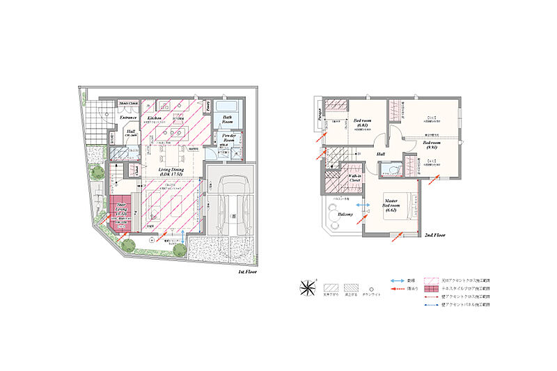
間取り図
0037-618-93054
無料
内観・室内
間取り・内観のこだわりポイント
- LDK15帖以上
- 4LDK以上
- 全居室6帖以上
- ワイドバルコニー
- 南面バルコニー
- 全室2面採光
- 全室フローリング
- 天井高2.5m以上
- 3階建て
0037-618-93054
無料
設備・仕様
設備・仕様のこだわりポイント
- キッチン
-
- カウンターキッチン
- 食器洗い乾燥機
- 浄水器・活水器
- ガスコンロ
- 収納
-
- 床下収納
- ウォークインクローゼット
- シューズクローク
- パントリー
- 全居室収納
- その他設備
-
- 都市ガス
- シャワー付洗面化粧台
- 温水洗浄便座
- 浴室乾燥機
- 浴室1.6×1.8m以上
- 浴室暖房
- トイレ2ヶ所以上
- 床暖房
- 複層ガラス採用(二重サッシ・防犯サッシ等)
- スマートキー
- 省エネ給湯器
- 電動シャッター
- TVモニタ付インターホン
- 宅配ボックス
省エネ性能
-
※「省エネ性能ラベル」は特定の住戸の性能を示し、全ての住戸の性能を示していない場合があります。
0037-618-93054
無料
外観・分譲地
外観・分譲地のこだわりポイント
- 駐車場あり
- 地盤調査済
- 角地
- 南道路
0037-618-93054
無料
周辺環境・地図
周辺情報
※半径4kmを超えると、周辺情報のアイコンは表示されません。
- ※不動産会社が入力した情報を基に物件の位置を表示しています。
- ※詳しくは不動産会社までお問合せください。
- ※地図上に表示される各種アイコンなどの情報は、おおよその所在地を表すものであり、物件・施設などの地点を保証するものではありません。
- ※地図の表示領域が広域になると周辺のお店・施設は表示できなくなります。
- ※地図、航空写真情報および地形ならびに周辺のお店・施設は、必ずしも現況を表すものではありません。
- ※物件から周辺のお店・施設までの距離は、利用が想定される道路を通行した場合の距離です。なお、必ずしも最短距離を保証するものではありません。
-
【学校】
大久保小学校(現地より徒歩2分) (約140m)
学校教育目標は「瞳を輝かせて現代(いま)を生きる子どもの育成」...
-
【学校】
第二中学校(現地より徒歩19分) (約1450m)
1947年創立の伝統ある中学校。教育目標は「自ら学ぶ 人間性豊...
-
【学校】
みのりつくしこども園(現地より徒歩7分) (約510m)
「知・徳・体の調和のとれた人間性豊かな子どもを育てる」ことを目...
-
【学校】
習志野みのり幼稚園(現地より徒歩7分) (約540m)
年間を通して楽しめる温水プールや、汽車の大型遊具がある園庭など...
-
【買い物】
マルエツ 大久保駅前店(現地より徒歩7分) (約490m)
生鮮食品・総菜・日用品などを取り扱うスーパーマーケット。営業時...
-
【買い物】
ビッグ・エー 本大久保一丁目店(現地より徒歩7分) (約540m)
新鮮な食材がお得に揃うスーパーマーケット。HPにチラシが掲載さ...
周辺環境のこだわりポイント
- スーパー 800m以内
- コンビニ 400m以内
- 小学校 800m以内
- 総合病院 800m以内
- 公園 400m以内
0037-618-93054
無料
物件概要
| 所在地 | 千葉県習志野市大久保1丁目442番10他 | ||
|---|---|---|---|
| 交通 |
京成本線「京成大久保」駅 徒歩9分 |
||
| 販売価格 | 4,980万円・5,690万円 | 最多価格帯 | - |
| 建物面積 | 97.7m2~99.97m2 | 土地面積 | 71.03m2~95.86m2 / 私道負担あり 67m2(持分4分の1) |
| 間取り | 3LDK(4LDK対応可※別途有償)+ステアリビング+土間収納+パントリー+リネン庫+ウォークインクローゼット ~ 4LDK(3LDK対応可)+土間収納+パントリー+リネン庫+ウォークインクローゼット | 建物構造 | 木造2階建(在来工法) 木造3階建て在来工法 |
| 販売スケジュール | 2026年4月4日(土)申し込み受付開始! | ||
| 販売戸数 / 総戸数 | 2戸 / 2戸 | ||
| 完成予定日 | 2026年7月下旬予定 | 引き渡し可能年月 | 2026年11月2日 |
| 駐車場 | 1台 | 道路の幅員 | 4.0m私道 |
| 用途地域 | 第一種住居地域 | 都市計画 | 市街化区域 |
| 地目 | 畑 (宅地渡し) | 国土法 | - |
| 土地の権利 | 所有権 | 借地権の種類・期間 | - |
| 主たる設備の概要 | 公営水道、東京電力・他、都市ガス、本下水、カースペース、外構 | 建築確認番号 | 第SJK-KX255647070号(2026年2月13日)1号棟他 |
| 施工会社 | ポラテック(株) | 機構融資 | - |
| 売主 | 中央グリーン開発(株) [宅建業:国土交通大臣(5)第6871号] | 取引態様 | 売主 |
| モデルルーム情報 | 近隣モデルハウス案内可能 | ||
| 備考 |
※入居予定は号棟により異なります。詳しくは販売員までお問い合わせください。 ※各施設までの徒歩所要時間(距離)は、「最も遠い号棟を起点」に計測しております。 ※毎週火・水曜日は弊社定休日となります。火・水曜日の見学予約はご対応いたしかねますのであらかじめご了承ください。 ※灯かりのいえなみ協定(R)がございます。詳しくは販売員までお問い合わせください。 ※建ペイ率・容積率に関しては道路幅員、接道状況により数値が異なる場合がございますのでご了承ください。 ※建物の一部が下がり壁、勾配天井、下がり天井になる場合がございます。詳細は設計図書でご確認ください。 [設備]公営水道/東京電力・他/都市ガス/本下水/カースペース/外構 |
||
| 情報更新日 | 2026/04/16 | 次回更新予定日 | 2026/04/20 |
| 取引条件有効期限 | 2026/04/18 | ||
住宅性能・販売概要・権利のこだわりポイント
- 所有権
- 瑕疵担保付き
- 仲介手数料不要
- 売主・代理
0037-618-93054
無料
取扱い不動産会社
ポラスグループ 中央グリーン開発株式会社の会社情報
お電話でのお問合せは「LIFULL HOME'S(ライフルホームズ)を見て」とお伝えください
中央グリーン開発(株) 千葉支店船橋事業所
0037-618-93054
無料
- ※携帯電話はご利用いただけます
- ※光IP電話、及びIP電話をご利用のお客様はTEL:0120-996-778へご連絡ください
- ※携帯電話からお問合せいただいた方には、ショートメッセージ(SMS)またはLINE通知メッセージによるお問合せ内容に関する通知をお届けする場合があり、お客様の電話番号は株式会社LIFULLで一定期間保管されます
- ※株式会社LIFULLの個人情報の取扱い方針に同意のうえ、お電話ください
| 会社名 |
ポラスグループ 中央グリーン開発株式会社 |
|---|---|
| 免許番号 | 国土交通大臣 (5) 第 6871 号 |
| 所在地 | 埼玉県越谷市南越谷1-2905-3 |
| 所属団体 |
(公社)首都圏不動産公正取引協議会 |
この物件にお問合せする
実際に物件・周辺環境を見て検討したい!
近隣建物や接道の状況など資料で分からない部分も一目瞭然。 まずはWEBで事前予約、スムーズに見学しましょう
ご予約無しに直接ご来場された場合、担当者不在であったり、
他のお客様のご案内の都合上、お待たせしてしまうことがございます。
不動産会社に電話で相談したい!
中央グリーン開発(株) 千葉支店船橋事業所
0037-618-93054
無料
電話でのお問合せは「LIFULL HOME'S(ライフルホームズ)を見て」とお伝えください
- ※携帯電話はご利用いただけます
- ※光IP電話、及びIP電話をご利用のお客様はTEL:0120-996-778へご連絡ください
- ※携帯電話からお問合せいただいた方には、ショートメッセージ(SMS)またはLINE通知メッセージによるお問合せ内容に関する通知をお届けする場合があり、お客様の電話番号は株式会社LIFULLで一定期間保管されます
- ※株式会社LIFULLの個人情報の取扱い方針に同意のうえ、お電話ください
LIFULL HOME'Sは物件鮮度No.1を目指していきます 物件情報に誤りがある場合はコチラからご連絡ください
- 【物件番号】
- 1700129-0000842
- ※完成後1年未満で未入居の物件を「新築」と表示しております。
- ※完成予想図やCG合成画像は、門塀・植栽・庭・外観等、実際とは多少異なる場合があります。
物件を再検索する
千葉県の人気エリアから新築一戸建てを探す















