新築一戸建て 住まいのトータテ ヴェルコート国分1丁目
この物件は未完成のため、掲載写真(外観、内観、設備等)には、施工例が含まれている場合があります。物件詳細については、掲載の不動産会社宛にお問合せください。
◆家事楽動線と「+α」の空間◆ 洗濯→干す→畳む→収納が最短で完結するランドリー×ファミリークローク動線や便利で快適な「+α」の空間を作りました。
◆アクセスしやすく、暮らしやすいエリア◆ ・西鉄バス「洗出」停…徒歩5分・西鉄大牟田線「都府楼前」駅…徒歩10分・JR鹿児島本線「都府楼南」駅…車で4分・福岡市都市高速「水城」IC…車で4分
◆生活施設が充実し、暮らしやすいエリア◆ ・マミーズ太宰府西店 徒歩5分・ルミエール太宰府店 車で3分・セブンイレブン太宰府国分店 徒歩6分・とびうめアリーナ 徒歩7分
0037-618-06785
無料
魅力1 ◆生活施設が充実し、暮らしやすいエリア◆
ヴェルコート国分1丁目から 》》》【教育機関】・「国分」小学校…徒歩15分・「学習院」中学校…徒歩11分・ありんこ保育園…徒歩6分 【交通機関】・西鉄バス「洗出」停…徒歩5分・西鉄大牟田線「都府楼前」駅…徒歩10分・JR鹿児島本線「都府楼南」駅…車で4分・福岡市都市高速「水城」IC…車で4分 【ショッピング】・マミーズ太宰府西店…徒歩5分・ルミエール太宰府店…車で3分
魅力2 ◆「 快適で便利な暮らし 」をサポートする多彩な設備◆
【 Low-E複層ガラス 】…… 薄い金属膜のコーティングにより太陽熱を効果的に遮断し、冬は暖かさを保ち、夏は室内を涼しく保ちます。断熱性能が高いため、冷暖房費の節約にも効果的です。 【 宅配ボックス 】…… 家族全員不在時はもちろん、お子様の留守番や在宅中の家事育児で手が離せない時、防犯のため対面を避けたい時など、さまざまな状況で安心・安全にご利用いただける設備です。 【 EVコンセント 】…… EVコンセントと屋外防水コンセントが設置されており、電気自動車の充電はもちろん、屋外での電気機器の使用にも便利。自宅で簡単に充電でき、生活の幅が広がります。
魅力3 ◆「ただいま」の数だけ、暮らしが育つ家◆
私たちトータテ都市開発九州は、『 「ただいま」の数だけ、暮らしが育つ家 』をコンセプトに、家族が幸せを感じ、思い出を育む家づくりを目指しています。住宅の外観やインテリアだけでなく、見えない部分にも思いやりを込めた設計を行い、細部に至るまで心を配った住まいを丁寧に作り上げています。充実した標準装備や外構を含む価格設定で安心を提供し、施工からメンテナンス、リフォームまで一貫サポート。20年、30年先も皆様の暮らしを支え続けます。
0037-618-06785
無料
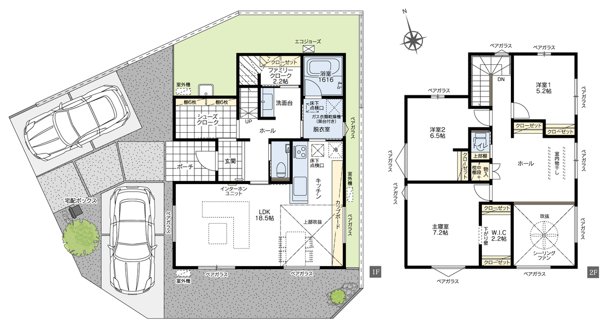
間取り図
0037-618-06785
無料
内観・室内
間取り・内観のこだわりポイント
- LDK15帖以上
- バリアフリー
- 吹き抜け
- 全室フローリング
- 天井高2.5m以上
0037-618-06785
無料
設備・仕様
設備・仕様のこだわりポイント
- キッチン
-
- カウンターキッチン
- 食器洗い乾燥機
- 浄水器・活水器
- 収納
-
- 床下収納
- ウォークインクローゼット
- シューズクローク
- その他設備
-
- 都市ガス
- 浴室乾燥機
- トイレ2ヶ所以上
- 複層ガラス採用(二重サッシ・防犯サッシ等)
- スマートキー
- 省エネ給湯器
- 宅配ボックス
- EV充電設備
0037-618-06785
無料
外観・分譲地
外観・分譲地のこだわりポイント
- 駐車場あり
- 地盤調査済
- 南道路
0037-618-06785
無料
周辺環境・地図
周辺情報
※半径4kmを超えると、周辺情報のアイコンは表示されません。
- ※不動産会社が入力した情報を基に物件の位置を表示しています。
- ※詳しくは不動産会社までお問合せください。
- ※地図上に表示される各種アイコンなどの情報は、おおよその所在地を表すものであり、物件・施設などの地点を保証するものではありません。
- ※地図の表示領域が広域になると周辺のお店・施設は表示できなくなります。
- ※地図、航空写真情報および地形ならびに周辺のお店・施設は、必ずしも現況を表すものではありません。
- ※物件から周辺のお店・施設までの距離は、利用が想定される道路を通行した場合の距離です。なお、必ずしも最短距離を保証するものではありません。
周辺環境のこだわりポイント
- スーパー 800m以内
0037-618-06785
無料
物件概要
| 所在地 | 福岡県太宰府市国分1丁目2 | ||
|---|---|---|---|
| 交通 |
西鉄天神大牟田線「都府楼前」駅 徒歩10分 |
||
| 販売価格 | 4588万円 | 最多価格帯 | - |
| 建物面積 | 113.44m2 | 土地面積 | 155.63m2 |
| 間取り | 3LDK | 建物構造 | 地上2階、木造 |
| 販売スケジュール | - | ||
| 販売戸数 / 総戸数 | 1戸 / 6戸 | ||
| 完成予定日 | 2026年07月 ~ 2026年07月 | 引き渡し可能年月 | 相談 |
| 駐車場 | 2台 | 道路の幅員 | 5.1m |
| 用途地域 | 第一種住居地域 | 都市計画 | 市街化区域 |
| 地目 | 宅地 | 国土法 | 不要 |
| 土地の権利 | 所有権 | 借地権の種類・期間 | - |
| 主たる設備の概要 | 公営水道、九州電力 ,都市ガス | 建築確認番号 | 第KJH25-01394-1号 |
| 施工会社 | トータテ都市開発九州 | 機構融資 | - |
| 売主 | (株)トータテ都市開発九州 [福岡県知事(5)第15292号] | 取引態様 | 株式会社トータテ都市開発九州(売主) |
| 備考 | - | ||
| 情報更新日 | 2026/05/20 | 次回更新予定日 | 2026/06/03 |
| 取引条件有効期限 | 2027/01/30 | ||
住宅性能・販売概要・権利のこだわりポイント
- 所有権
- 瑕疵担保付き
- 仲介手数料不要
- 売主・代理
- 耐震・制震・免震構造
- フラット35・S適合証明書
0037-618-06785
無料
取扱い不動産会社
株式会社トータテ都市開発九州の会社情報
お電話でのお問合せは「LIFULL HOME'S(ライフルホームズ)を見て」とお伝えください
(株)トータテ都市開発九州
0037-618-06785
無料
- ※携帯電話はご利用いただけます
- ※光IP電話、及びIP電話をご利用のお客様はTEL:092-812-5516へご連絡ください
- ※携帯電話からお問合せいただいた方には、ショートメッセージ(SMS)またはLINE通知メッセージによるお問合せ内容に関する通知をお届けする場合があり、お客様の電話番号は株式会社LIFULLで一定期間保管されます
- ※株式会社LIFULLの個人情報の取扱い方針に同意のうえ、お電話ください
| 会社名 |
株式会社トータテ都市開発九州 |
|---|---|
| 免許番号 | 福岡県知事 (5) 第 15292 号 |
| 所在地 | 福岡県福岡市早良区飯倉2丁目13-3 |
| 所属団体 |
(公社)福岡県宅地建物取引業協会 |
この物件にお問合せする
実際に物件・周辺環境を見て検討したい!
近隣建物や接道の状況など資料で分からない部分も一目瞭然。 まずはWEBで事前予約、スムーズに見学しましょう
ご予約無しに直接ご来場された場合、担当者不在であったり、
他のお客様のご案内の都合上、お待たせしてしまうことがございます。
不動産会社に電話で相談したい!
(株)トータテ都市開発九州
0037-618-06785
無料
電話でのお問合せは「LIFULL HOME'S(ライフルホームズ)を見て」とお伝えください
- ※携帯電話はご利用いただけます
- ※光IP電話、及びIP電話をご利用のお客様はTEL:092-812-5516へご連絡ください
- ※携帯電話からお問合せいただいた方には、ショートメッセージ(SMS)またはLINE通知メッセージによるお問合せ内容に関する通知をお届けする場合があり、お客様の電話番号は株式会社LIFULLで一定期間保管されます
- ※株式会社LIFULLの個人情報の取扱い方針に同意のうえ、お電話ください
LIFULL HOME'Sは物件鮮度No.1を目指していきます 物件情報に誤りがある場合はコチラからご連絡ください
- 【物件番号】
- 1700122-0000359
- ※完成後1年未満で未入居の物件を「新築」と表示しております。
- ※完成予想図やCG合成画像は、門塀・植栽・庭・外観等、実際とは多少異なる場合があります。
物件を再検索する
福岡県の人気エリアから新築一戸建てを探す















