新築一戸建て 【陽当り良好の南角】フレッシュタウン丸山2丁目
この物件は未完成のため、掲載写真(外観、内観、設備等)には、施工例が含まれている場合があります。物件詳細については、掲載の不動産会社宛にお問合せください。
【売主物件】閑静な住宅街の陽当り良好な南角地の物件です。
鎌ケ谷駅からメインストリートを真っすぐフラットアプローチ
日常買い物施設、子育て施設充実エリア
0037-618-68889
無料
魅力1 南向きの明るいリビングと解放感あるロフトと吹抜勾配天井つきの居室
魅力2 駅からは整備された歩道でフラットアプローチ
魅力3 省エネ仕様、塗膜15年保証外壁
0037-618-68889
無料
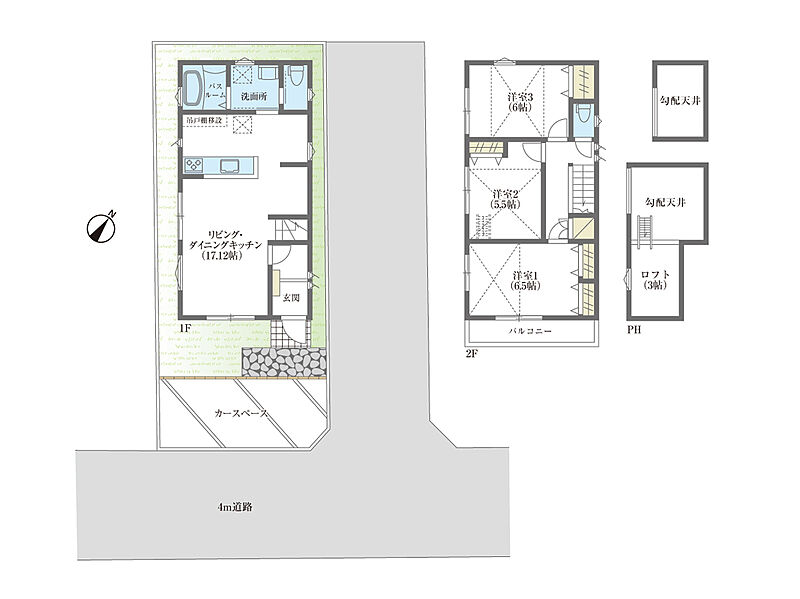
間取り図
0037-618-68889
無料
内観・室内
間取り・内観のこだわりポイント
- LDK15帖以上
- ロフト付き
- 吹き抜け
- 南面バルコニー
- 全室フローリング
- 天井高2.5m以上
0037-618-68889
無料
設備・仕様
設備・仕様のこだわりポイント
- キッチン
-
- カウンターキッチン
- ガスコンロ
- 収納
-
- 床下収納
- 全居室収納
- その他設備
-
- 都市ガス
- シャワー付洗面化粧台
- 温水洗浄便座
- 浴室乾燥機
- トイレ2ヶ所以上
- 節水型トイレ
- 複層ガラス採用(二重サッシ・防犯サッシ等)
- 省エネ給湯器
- 電動シャッター
- TVモニタ付インターホン
0037-618-68889
無料
外観・分譲地
外観・分譲地のこだわりポイント
- 駐車場あり
- 低層住宅地
- 角地
- 南道路
- 整形地
- 平坦地
0037-618-68889
無料
周辺環境・地図
周辺情報
※半径4kmを超えると、周辺情報のアイコンは表示されません。
- ※不動産会社が入力した情報を基に物件の位置を表示しています。
- ※詳しくは不動産会社までお問合せください。
- ※地図上に表示される各種アイコンなどの情報は、おおよその所在地を表すものであり、物件・施設などの地点を保証するものではありません。
- ※地図の表示領域が広域になると周辺のお店・施設は表示できなくなります。
- ※地図、航空写真情報および地形ならびに周辺のお店・施設は、必ずしも現況を表すものではありません。
- ※物件から周辺のお店・施設までの距離は、利用が想定される道路を通行した場合の距離です。なお、必ずしも最短距離を保証するものではありません。
周辺環境のこだわりポイント
- スーパー 800m以内
- 公園 400m以内
- 中学校 800m以内
- 複数路線
0037-618-68889
無料
物件概要
| 所在地 | 千葉県鎌ケ谷市丸山2-1 | ||
|---|---|---|---|
| 交通 |
東武野田線「鎌ケ谷」駅 徒歩11分 京成松戸線「鎌ヶ谷大仏」駅 徒歩13分 京成松戸線「初富」駅 徒歩18分 |
||
| 販売価格 | 3280万円 | 最多価格帯 | - |
| 建物面積 | 82.62m2 | 土地面積 | 86.90m |
| 間取り | 3LDK+ロフト | 建物構造 | 木造2階建 |
| 販売スケジュール | 先着順受付中 | ||
| 販売戸数 / 総戸数 | 1戸 / 1戸 | ||
| 完成予定日 | 2026年6月予定 | 引き渡し可能年月 | 2026年6月予定 |
| 駐車場 | 1台 | 道路の幅員 | 南側4m公道 |
| 用途地域 | 第一種低層住居専用地域 | 都市計画 | 市街化区域 |
| 地目 | 宅地 | 国土法 | - |
| 土地の権利 | 所有権 | 借地権の種類・期間 | - |
| 主たる設備の概要 | 電気、公営水道、都市ガス、本下水 | 建築確認番号 | 第252346号 |
| 施工会社 | - | 機構融資 | - |
| 売主 | 取引態様 | 売主/(株)興和ハウジング | |
| 備考 |
□■フレッシュタウンについて■□ フレッシュタウンは2000棟の実績から培ったノウハウを活かした 新築分譲住宅と都市型住宅のオーダーメイドを実現する建築条件付売地を コンセプトとした興和ハウジングのオリジナルブランドです。 売主のため、もちろん仲介手数料は不要です。 「フレッシュタウン」は利便性にこだわり、総武線の船橋・東船橋を中心とした 徒歩圏に 地震に強い、耐震性能と安全を考慮した住まいづくりで、 2000棟の施工実績を達成しました。 また、オーダーメイド対応の建築条件付売地で 建築した建物には、 ひとつとして同じ住宅はありません。 |
||
| 情報更新日 | 2026/05/01 | 次回更新予定日 | 2026/05/08 |
| 取引条件有効期限 | 2026/12/25 | ||
住宅性能・販売概要・権利のこだわりポイント
- 所有権
- 瑕疵担保付き
- 仲介手数料不要
- 売主・代理
0037-618-68889
無料
取扱い不動産会社
スタッフからのコメント
- 打合せブース
- 都市型住宅 × オーダーメイド
フレッシュタウンは2000棟の実績から培ったノウハウを活かした
新築分譲住宅と都市型住宅のオーダーメイドを実現する
建築条件付売地をコンセプトとしたオリジナルブランドです。
理想のお住まいをぜひご相談ください。
打合せブース
(株)興和ハウジングの会社情報
お電話でのお問合せは「LIFULL HOME'S(ライフルホームズ)を見て」とお伝えください
売主/(株)興和ハウジング
0037-618-68889
無料
- ※携帯電話はご利用いただけます
- ※光IP電話、及びIP電話をご利用のお客様はTEL:047-424-6700へご連絡ください
- ※携帯電話からお問合せいただいた方には、ショートメッセージ(SMS)またはLINE通知メッセージによるお問合せ内容に関する通知をお届けする場合があり、お客様の電話番号は株式会社LIFULLで一定期間保管されます
- ※株式会社LIFULLの個人情報の取扱い方針に同意のうえ、お電話ください
| 会社名 |
(株)興和ハウジング |
|---|---|
| 免許番号 | 千葉県知事 (10) 第 8765 号(更新中) |
| 所在地 | 千葉県船橋市東船橋3-38-15 |
| 所属団体 |
(一社)千葉県宅地建物取引業協会 |
この物件にお問合せする
実際に物件・周辺環境を見て検討したい!
近隣建物や接道の状況など資料で分からない部分も一目瞭然。 まずはWEBで事前予約、スムーズに見学しましょう
ご予約無しに直接ご来場された場合、担当者不在であったり、
他のお客様のご案内の都合上、お待たせしてしまうことがございます。
不動産会社に電話で相談したい!
売主/(株)興和ハウジング
0037-618-68889
無料
電話でのお問合せは「LIFULL HOME'S(ライフルホームズ)を見て」とお伝えください
- ※携帯電話はご利用いただけます
- ※光IP電話、及びIP電話をご利用のお客様はTEL:047-424-6700へご連絡ください
- ※携帯電話からお問合せいただいた方には、ショートメッセージ(SMS)またはLINE通知メッセージによるお問合せ内容に関する通知をお届けする場合があり、お客様の電話番号は株式会社LIFULLで一定期間保管されます
- ※株式会社LIFULLの個人情報の取扱い方針に同意のうえ、お電話ください
LIFULL HOME'Sは物件鮮度No.1を目指していきます 物件情報に誤りがある場合はコチラからご連絡ください
- 【物件番号】
- 1700061-0000300
- ※完成後1年未満で未入居の物件を「新築」と表示しております。
- ※完成予想図やCG合成画像は、門塀・植栽・庭・外観等、実際とは多少異なる場合があります。
物件を再検索する
千葉県の人気エリアから新築一戸建てを探す














