清瀬市下宿2丁目

この物件を何度も見ています
中古一戸建て清瀬市下宿2丁目4LDK / 3,398万円
かんたん1分
クイック問合せ(無料)
お問合せ先
おうちの仲介+ 秋津営業所 株式会社アークレスト 秋津営業所
- 営業時間
- 09:30 〜 19:00
- 定休日
- 毎週火曜・水曜日 夏季休暇・年末年始
主要項目が同一の物件について
LIFULL HOME’Sは、物件所在地や間取りタイプ、賃料/価格などの様々な要素から同じ物件とみなされる居住用物件を1つにまとめて物件一覧に表示しています。
- システム上の制約により、同じ物件がまとめて表示されない場合があります
同じ物件を取り扱っている会社
主要項目が同一の物件について
LIFULL HOME’Sは、物件所在地や間取りタイプ、賃料/価格などの様々な要素から同じ物件とみなされる居住用物件を1つにまとめて物件一覧に表示しています。
- システム上の制約により、同じ物件がまとめて表示されない場合があります
お問合せ先を選ぶ
この物件を取り扱っている会社が他にもあります
3社
物件を保存・共有する
LINEで共有
URLをコピー
物件情報ページのQRコード
QRコードを読み取ると、物件情報ページが開きます
お問合せの注意事項
- ※お客様の電話番号は不動産会社に通知されません
- ※光IP電話、及びIP電話からはご利用になれません
- ※お電話によるお問合せは、店舗営業時間内にお願いします
- ※不動産会社がお電話に出られなかった場合、お問合せいただいた後に不動産会社より折り返しのお電話がある場合がございます(電話会社が提供するサービスを介して折り返しお電話をするため、この場合においてもお客様の電話番号は不動産会社に通知されません。)
- ※携帯電話からお問合せいただいた方には、電話会社が提供するメッセージサービスを介してショートメッセージ(SMS)またはLINE通知メッセージによるお問合せ内容に関する通知をお届けする場合があります
- ※お客様が通話中に不動産会社にお伝えになったお客様の個人情報及び、電話会社が発番する折り返し専用の電話番号は、お問合せ先不動産会社が資料送付・電子メール送信・電話連絡などの目的で保管する可能性があります。お問合せ先不動産会社が保管する個人情報の取扱いについては、各不動産会社に直接お問合せください
- ※株式会社LIFULLでは本サービスを円滑に運用するために、お客様の発信者番号をサービスご利用の控えとして一定期間保管いたします
- ※上記および株式会社LIFULLの個人情報の取扱い方針に同意のうえ、お問合せください
- ※不動産会社の方からの上記電話番号によるお問合せはお断りしております
- ※各種情報と現状に差異がある場合は、現状優先となります
- ※不動産会社が入力した情報を基に物件付近の地図を表示しており、物件の所在地を示したものではありません。詳しくは不動産会社までお問合せください
- ※QRコードは株式会社デンソーウェーブの登録商標です
ご意見をお寄せください
サイトへのリクエスト・ご意見
みなさまからのリクエストやご意見を参考に、サイト改善に取り組んでいます。
物件情報に誤りがある場合
LIFULL HOME'Sは物件鮮度No.1を目指していきます。お気づきの点がございましたら、ご連絡ください。
画像一覧
全30枚
全30枚
間取り

1/1
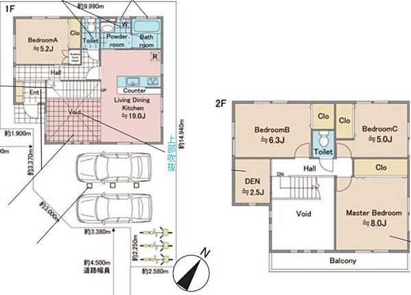
- 間取り
- 4LDK+カースペース
内観

1/8
- リビング/ダイニング
- お料理をしながらリビング全体を見渡すことが出来るので、お子様が遊んだり、勉強していても一緒に空間を共有できます

2/8
- リビング/ダイニング
- リビングイン階段の造りは家族間で顔を合わせる機会が増え自然とコミュニケーションが生まれます。また、別の階にいても互いの気配を緩やかに感じながら過ごすことができるメリットがあります。

3/8
- 寝室
- 主寝室として使えそうなお部屋です。広めの作りと収納。バルコニーに面し、開放感たっぷりなプライベート空間です。パントリー併用型クローゼットも魅力的ですね。

4/8
- 子供部屋
- 子供部屋としても十分な広さがあるお部屋です。家族個々の安らぎの空間を確保でき、プライベートなベッドルームは暮らす方の感性で造り上げたいものです。

5/8
- 子供部屋
- 2面採光の明るいお部屋。窓を開ければ心地良い風が通り抜けます。是非、現地で明るさ、風通し、体感してみて下さい。

6/8
- 洋室
- ワークスペースになります。在宅ワーク、学習、その他書斎にできたり様々なバリエーションが叶えられる一室となっております。

7/8
- 洋室
- 小さな納戸があり、嵩張る物の収納であったり備蓄品や緊急時のものを入れるのもよさそうですね。クローゼット上の収納もかなり広いので色々なものがしまえそうです。

8/8
- 玄関
- 広々とした大変魅力的な玄関の住宅となっております。ご家族みなさんが気持ちよく帰ってこられる空間となっております。収納力が十分あるので玄関周りがスッキリと片付くのが、うれしいポイントですね。
外観

1/2
- 外観
- 現地の様子になります。あなたの夢のお手伝いをさせていただきます。是非、現地に足をお運びいただき、物件と周辺環境をご確認くださいね!きっと素敵な出会いがありますよ(^^)/

2/2
- バルコニー
- バルコニーは陽ざしがたっぷりと差し込み、とっても気持ちの良い空間になっております。お洗濯もはかどりそうですし、プランターを並べて、お好きなお花で《ガーデニング》などはいかがでしょうか?
設備

1/7
- キッチン
- 毎日使うキッチンだからこそ、食事の準備を楽しい時間に!『忙しい時でもスムーズに無駄なく作業でき』『お手入れも簡単にできる』など、うれしい工夫がたくさん!毎日を楽しくするキッチンスペースです

2/7
- キッチン
- 人気の対面タイプのキッチン!配膳がしやすく食事の準備や後片付けがはかどります。料理をしながらリビングを見渡せ、お子様が遊ぶ様子を見守りながらのお料理や、宿題をちょっとアドバイスもできますね

3/7
- 浴室
- 1坪タイプの大きな浴室になっております。小さなお子様がいてもご家族で入浴が可能となっております。また、半身浴が楽しめる日々の疲れを癒してくれる空間になること間違いなしです!

4/7
- トイレ
- 1階と2階にそれぞれトイレを設置。朝のバタバタする時間帯にも混み合うことなく快適にお使いいただけますね。

5/7
- トイレ
- 清潔感のあるすっきりとしたトイレ。毎日使う場所だからこそ、お手入れやお掃除が簡単なシンプルなデザインです。小窓付きなので、常時換気ができ、気になる汚れやカビの発生を抑えられますね!

6/7
- 洗面
- 【鏡の裏にたっぷり収納】たくさんの小物をしまえる全収納タイプ。トレイの位置を変えることで背の高いものも収納できます。

7/7
- 駐車場
- 駐車場付きなら駐車場費用を節約でき、さらに自転車置き場や物置としても利用すれば、駐輪場代やトランクルーム代の節約にもつながるでしょう。車を停めていない間は子どもが遊ぶスペースとしても活用できます。
周辺環境

1/10
- 周辺
- ワッツウィズ 清瀬旭が丘団地ビッグ・エー店 徒歩9分。 650m

2/10
- 周辺
- セブンイレブン 清瀬下宿2丁目店 徒歩2分。【営業時間】5時から23時 160m

3/10
- 周辺
- 清瀬市立清瀬第三中学校 徒歩9分。【通学 区域】旭が丘1-6丁目、下宿1-3丁目、下清戸1・3丁目の一部、下清戸2丁目、4丁目、5丁目、中里5・6丁目一部 720m

4/10
- 周辺
- 清瀬市立清明小学校 徒歩6分。【通学 区域】旭が丘1丁目-6丁目、下宿1丁目(ただし1番1-8号第八小区域を除く)-3丁目 450m

5/10
- 周辺
- 東光会東所沢病院 徒歩14分。所沢市の高齢者医療、回復期リハビリテーションや高齢者介護に取り組んでいます。 JR武蔵野線「東所沢駅」から「東所沢病院」まで徒歩約19分。 1060m

6/10
- 周辺
- 下宿貝戸児童遊園 徒歩7分。武蔵野線の高架横に整備された小さな公園です。 550m

7/10
- 周辺
- 新座駅(JR 武蔵野線) 徒歩27分。発車メロディーは鉄腕アトム! 南口には大型商業施設が多数あり! 2150m

8/10
- 周辺
- スギドラッグ 清瀬旭が丘店 徒歩6分。【営業時間】9時から22時【駐車場】21台 450m

9/10
- 周辺
- カインズ新座店 徒歩19分。営業時間:午前9時30分~午後8時 駐車場:有 1470m

10/10
- 周辺
- 清瀬旭が丘郵便局 徒歩9分。新座駅[出口2]徒歩24分 650m
その他

1/2
- その他
- 天井が吹き抜け仕様になっており、開放感が見られます。階段も圧迫感がなくおしゃれな仕様となっております。

2/2
- その他
- バルコニーから見渡した景色になります。お天気の良い日は、青空がよく見え、気持ちのいい空間になりそうですね!陽当り具合などを、是非現地にてお確かめください!お問い合わせお待ちしておりますね(^^)/





