名古屋市守山区白沢町 一戸建て

この物件を何度も見ています
中古一戸建て名古屋市守山区白沢町 一戸建て5DK / 1,499万円
かんたん1分
クイック問合せ(無料)
お問合せ先
株式会社ウィル 大曽根営業所
- 営業時間
- 10:00 〜 19:00
- 定休日
- 年末年始
- 期間
- 2026年02月21日(土)~2026年02月23日(月)
- 開催時間
- 午後01:00~午後05:00
物件を保存・共有する
LINEで共有
URLをコピー
物件情報ページのQRコード
QRコードを読み取ると、物件情報ページが開きます
お問合せの注意事項
- ※お客様の電話番号は不動産会社に通知されません
- ※光IP電話、及びIP電話からはご利用になれません
- ※お電話によるお問合せは、店舗営業時間内にお願いします
- ※不動産会社がお電話に出られなかった場合、お問合せいただいた後に不動産会社より折り返しのお電話がある場合がございます(電話会社が提供するサービスを介して折り返しお電話をするため、この場合においてもお客様の電話番号は不動産会社に通知されません。)
- ※携帯電話からお問合せいただいた方には、電話会社が提供するメッセージサービスを介してショートメッセージ(SMS)またはLINE通知メッセージによるお問合せ内容に関する通知をお届けする場合があります
- ※お客様が通話中に不動産会社にお伝えになったお客様の個人情報及び、電話会社が発番する折り返し専用の電話番号は、お問合せ先不動産会社が資料送付・電子メール送信・電話連絡などの目的で保管する可能性があります。お問合せ先不動産会社が保管する個人情報の取扱いについては、各不動産会社に直接お問合せください
- ※株式会社LIFULLでは本サービスを円滑に運用するために、お客様の発信者番号をサービスご利用の控えとして一定期間保管いたします
- ※上記および株式会社LIFULLの個人情報の取扱い方針に同意のうえ、お問合せください
- ※不動産会社の方からの上記電話番号によるお問合せはお断りしております
- ※各種情報と現状に差異がある場合は、現状優先となります
- ※不動産会社が入力した情報を基に物件付近の地図を表示しており、物件の所在地を示したものではありません。詳しくは不動産会社までお問合せください
- ※QRコードは株式会社デンソーウェーブの登録商標です
ご意見をお寄せください
サイトへのリクエスト・ご意見
みなさまからのリクエストやご意見を参考に、サイト改善に取り組んでいます。
物件情報に誤りがある場合
LIFULL HOME'Sは物件鮮度No.1を目指していきます。お気づきの点がございましたら、ご連絡ください。
画像一覧
全27枚
全27枚
間取り

1/1
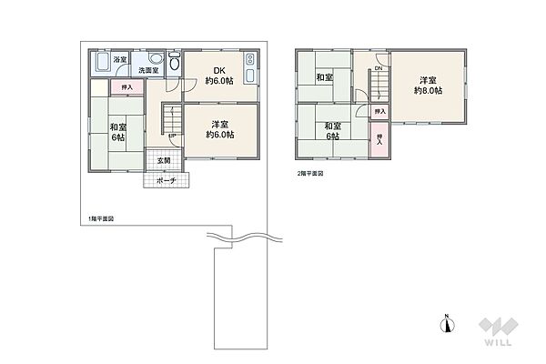
- 間取り
- 間取りは延床面積82.59平米の5DK。1階に水回りが集約した家事動線に優れたプラン。個室5部屋のうち4部屋が6帖以上の広さを確保しています。
内観

1/3
- リビング/ダイニング
- DK

2/3
- 玄関
- 物件の玄関

3/3
- 玄関
- 玄関
外観

1/9
- 外観
- 外観周辺は戸建が並ぶ閑静な住宅街です。

2/9
- 外観
- 駐車スペース。お車1台の駐車が可能です。自転車も奥に置いていただけます。

3/9
- 外観
- 玄関アプローチ。旗竿地の奥に建物があるため、人目につきにくいです。

4/9
- 外観
- 前面道路戸建てが立ち並ぶ閑静な住宅街で、交通量の少ない通りです。落ち着いた雰囲気の街並みです。

5/9
- 外観
- 前面道路。幅員に余裕があるため、お車の運転をしていてもストレスがありません。

6/9
- 外観
- 物件の外観(南東側から)[2024年12月17日撮影]

7/9
- 外観
- 物件の外観(南側から)[2024年12月17日撮影]

8/9
- バルコニー
- 南側バルコニー[2024年2月9日撮影]

9/9
- バルコニー
- バルコニーからの眺め(南方向)[2024年2月9日撮影]
設備

1/3
- 浴室
- 浴室

2/3
- トイレ
- トイレ

3/3
- 駐車場
- 物件の駐輪スペース[2024年12月17日撮影]
周辺環境

1/9
- 周辺
- 白沢小学校[公立]の外観

2/9
- 周辺
- 守山北中学校[公立]の外観

3/9
- 周辺
- ナフコ不二屋(守山店)の外観

4/9
- 周辺
- 守山区休日急病診療所・東部平日夜間急病センターの外観

5/9
- 周辺
- 道風公園の外観

6/9
- 周辺
- 桃の花保育園[私立]の外観

7/9
- 周辺
- 守山区役所の外観

8/9
- 周辺
- ピアゴ(西城店)の外観

9/9
- 周辺
- 小幡緑地(西園)の外観
その他

1/2
- その他
- 南東側洋室

2/2
- その他
- 庭[2024年12月17日撮影]














