八王子市左入町

この物件を何度も見ています
中古一戸建て八王子市左入町5LDK / 2,400万円
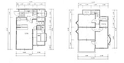
満足につながるゆとりと使いやすい間取りの5LDK!
京王電鉄京王線「京王八王子」駅迄3130m
いなげや 八王子中野店迄1220m
ファミリーマート 八王子インター店迄630m
吉岡医院迄770m
左入公園迄680m
八王子市立甲ノ原中学校迄1270m
八王子市立中野北小学校迄1010m
甲ノ原保育園迄1310m

この物件が気になりましたか?
2,400万円
試算の内訳
5.8万円/月
0.8万円/月
- ※支払い目安/月は、都市銀行変動金利下限金利の平均値を金利に設定し試算したものです
- ※都市銀行:りそな銀行、三井住友銀行、三菱UFJ銀行、みずほ銀行とする
5LDK/94.77㎡
JR中央線 八王子駅 バス13分 馬場谷戸下車 徒歩7分
- 京王線 京王八王子駅 バス7分 馬場谷戸下車 徒歩18分
問合せ先:朝日土地建物株式会社 八王子支店 営業2課
ポイント
★程よい自然に囲まれた、心癒される落ち着いた住環境 ★陽だまりに包まれる住まい。南道路の暖かい戸建て ★家じゅうまるごと、電気でスマートなオール電化♪ ★八王子IC近く、都心も郊外も自由自在
Pick up
間取り
間取り
5LDK
5LDK
- 建物面積
- 94.77㎡
- 駐車場
- 空有 (1台) 無料
- 備考
- 満足につながるゆとりと使いやすい間取りの5LDK!
設備
設備情報
キッチン
- IHコンロ
- システムキッチン
- 食器洗い乾燥機
バス・トイレ・洗面
- 追焚機能
- 浴室1.6×1.6m以上
- 洗面所独立
収納
- ウォークインクローゼット
- クローゼット
室内
- 10m2以上の庭
- 全室フローリング
駐車場・駐輪場
- 駐車場あり
- 平面駐車場
セキュリティ
- TVモニタ付インターホン
インフラ
- 公営水道
- ガスその他
- 下水
設備について、不動産会社に質問
お問合せ方法
不動産会社へのお問合せは、下記の3種類からお選びいただけます。
※不動産会社へのお問合せには料金は発生しません
物件に関して気になっていることを相談できます
不動産会社からメールで連絡がありますので、内見の相談をメール上で行うことも可能です。
内見したい日時が決まっている方
不動産会社から折り返し連絡がありますので、日程調整を行ってください。
物件の空き状況など今すぐ確認できます
直接お話しを聞きたい場合は電話でのお問合せも可能です。営業時間を確認の上、電話をおかけください。
周辺環境
周辺画像
- 京王電鉄京王線「京王八王子」駅迄3130m
- いなげや 八王子中野店迄1220m
- ファミリーマート 八王子インター店迄630m
- 吉岡医院迄770m
- 左入公園迄680m
- 八王子市立甲ノ原中学校迄1270m
- 八王子市立中野北小学校迄1010m
- 甲ノ原保育園迄1310m
周辺情報
学校
- 八王子市立中野北小学校(1,001m)
- 八王子市立甲ノ原中学校(1,263m)
買い物
- コンビニ(622m)
- スーパー(1,218m)
- 商店街(2,874m)
その他施設
- 総合病院(1,939m)
- 公園(673m)
周辺地図
東京都八王子市左入町
ハザード情報
周辺駅の口コミ
八王子
いいね度:
都心まで行かなくても大抵のことは済む。おいしいご飯屋さんが多くあり、駅前には飲み屋もたくさんある。昔からの友人も地元に残ることが多く引っ越しで遠くに行く人も少ないのはいい街だからだと思う。 (20代男性)
いいね度:
駅まで徒歩圏内であること。昔からの町内会があり、住民の交流があること。自然の四季を感じられること。ただ、自分の収入では、土地の値段が高くて、購入して住むのは厳しい。 (50代女性)
いいね度:
引っ越してくる前に住んでいた札幌の方が近所になんでも揃っていた。近くに大きな運動公園があるのはいいが、22時まで利用出来るので窓を開けている季節は五月蝿い。 (40代女性)
京王八王子
いいね度:
都心ほどオシャレなお店などは充実していないが、生活をする分には十分であると感じるから。教育施設や自然も多く、学生や子育て家庭にもとても過ごしやすいと感じる。 (20代女性)
いいね度:
子育てに良い施設が多く街であるが、駅前に住んでいるため、近くに遊べる公園がないところが残念。基本的には便利で住みやすい (30代女性)
いいね度:
自然が多く、鶯の鳴き声が聞こえたり、玉虫がいたり、メジロを見ることもできる。 (60代男性)
口コミ情報は、LIFULL HOME’Sが18歳〜69歳の男女を対象にWEBアンケートを実施し、独自に集計しています。内容には回答者の主観的な表現が含まれる場合があるほか、事実と異なる場合もございます。ご了承ください
物件概要
| 価格 | 2,400万円 支払い目安:6.6万円/月 ※LIFULL HOME’S試算 |
|---|---|
| 間取り | 5LDK |
| 建物面積 | 94.77㎡ |
| 土地面積 | 148.6㎡(公簿) |
| 駐車場 | 空有 (1台) 無料 |
| 築年月 | 2002年2月(築25年) |
| 所在地 | 東京都八王子市左入町 |
| 交通 |
|
| 総戸数 | 1戸 |
| 主要採光面 | 南 |
| 建物構造 | 木造/2階建 |
| 接道状況 | 一方 ( 4.8m 公道 ) |
| 都市計画 | 市街化区域 |
| 用途地域 | 第一種低層住居専用地域 |
| 建ぺい率 | 40% |
| 容積率 | 80% |
| 土地権利 | 所有権 |
| 国土法届出 | 不要 |
| 現況 | 空家 見学予約する無料 ご希望のお日にちなど、お気軽にお問合せください |
| 引渡し | 相談 |
| 取引態様 | 仲介 |
| 備考 | 宅地造成工事規制区域、航空法、景観法、高度地区、日影制限有、高さ限度有、法第22条区域、谷野・梅坪地区地区計画区域 程よい自然に囲まれ、日々の暮らしの中で心安らぐ落ち着いた住環境が魅力の戸建て住宅です。南道路に面しているため日当たりが良く、室内には明るく暖かな陽光が差し込み、家族が自然と集まる心地よい空間が広がります。 家じゅうすべてを電気でまかなうオール電化仕様のため、光熱費の管理がしやすく、安全面や快適性を重視される方にもおすすめです。 また、八王子ICが近く、都心方面への通勤はもちろん、郊外へのお出かけやレジャーにもアクセス良好。自然と利便性のバランスが取れた、永く安心して暮らせる住まいです。 市街化 |
| LIFULL HOME'S 物件番号 | 0123170-0006616 |
| 自社管理番号 | hc2-6520 |
情報公開日:2026/02/16
最新情報提供日:2026/05/08
情報有効期限:2026/05/22
条件が似ている物件
「八王子市」周辺・「価格2,400万円」前後の物件

価格がより安い
1,897万円
4LDK/89.42㎡
- 住所
- 東京都八王子市元八王子町3丁目
- 交通
- JR中央線 高尾駅駅 徒歩26分
- 築年数
- 築49年

価格がより安い
1,380万円
4LDK/112.36㎡
- 住所
- 東京都八王子市戸吹町
- 交通
- JR中央線 戸吹下車駅 徒歩4分
- 築年数
- 築31年

築年数がより浅い
2,890万円
4LDK/100.9㎡
- 住所
- 東京都八王子市元八王子町3丁目
- 交通
- JR中央線 霞ヶ丘住宅下車駅 徒歩7分
- 築年数
- 築10年

価格がより安い
2,080万円
5DK/154.47㎡
- 住所
- 東京都八王子市西寺方町
- 交通
- JR中央線 宝生寺団地下車駅 徒歩7分
- 築年数
- 築42年

2,680万円
3DK/66.03㎡
- 住所
- 東京都八王子市元横山町3丁目
- 交通
- JR中央線 八王子駅駅 徒歩13分
- 築年数
- 築31年

価格がより安い
1,740万円
4DK/77.43㎡
- 住所
- 東京都八王子市諏訪町
- 交通
- JR中央線 下諏訪宿下車駅 徒歩2分
- 築年数
- 築45年

2,980万円
3SDK/84.45㎡
- 住所
- 東京都八王子市子安町2丁目
- 交通
- JR中央線 八王子駅駅 徒歩12分
- 築年数
- 築32年

価格がより安い
1,580万円
4DK/77.66㎡
- 住所
- 東京都八王子市元八王子町2丁目
- 交通
- JR中央線 元八2丁目下車駅 徒歩3分
- 築年数
- 築31年

価格がより安い
1,890万円
3LDK/70.79㎡
- 住所
- 東京都八王子市川口町
- 交通
- JR中央線 榎木下車駅 徒歩2分
- 築年数
- 築24年

価格がより安い
1,900万円
4LDK/94.76㎡
- 住所
- 東京都八王子市西寺方町
- 交通
- JR中央線 陵北大橋下車駅 徒歩9分
- 築年数
- 築13年
この物件について問合せませんか?
会社情報
朝日土地建物株式会社 八王子支店 営業2課
| 交通 |
|
|---|---|
| 営業時間 | 09:30 〜 21:00 |
| 定休日 | 毎週水曜日 隔週火曜日 夏季休暇 年末年始 |
| 免許番号 | 国土交通大臣(9)第3744号 |
優良店認定について
より安心で快適な住まい探しをしていただけるように、LIFULL HOME'S加盟店に対して独自調査を実施。一定の基準をクリアしている店舗を「優良店」に認定する制度です。
会社紹介
八王子市・日野市・多摩市の不動産は朝日土地建物八王子店にお任せください!創業42周年の安心と信頼。豊富な物件情報が自慢です!WEB未公開物件も多数!お気軽にお問合せください。
会社の紹介動画
動画の読み込みに失敗しました。
再読み込みしてください。
会社の特徴
- 女性スタッフ対応可
- 19時以降も営業
- 駅から歩いて3分以内
- 提携ローン会社紹介可
- 土地買取
- 中古マンション買取
- 中古一戸建て買取
- 注文住宅建築
- 引越し業者紹介可
スタッフコメント

田中康太
保有資格:宅地建物取引士
コミュニケーションを大切に、誠実にご対応させて頂きます。
保育園から高校までサッカーを続けておりました。 自慢のフットワークと粘り強さを生かして、全力でサポートさせていただきます! 前職はパティシエなので、季節に応じたスィーツのお話も交えお住まい探しも楽しんでいただけるよう最善を尽くします!!
この会社の取扱い売買物件
支払い目安
月々支払額
-
万円/月
支払いの内訳
元金(住宅ローン)
- -万円/月
金利(住宅ローン)
- -万円/月
算出の内訳
- 価格
- 2,400万円
金利について
金利は借入額に応じて支払う利息の割合で、低いほど返済額が少なくなります。
変動金利は固定金利より金利が低い傾向にありますが、金利見直しのタイミングで上昇する可能性もあります。
都市銀行の参考値
- 変動
- 0.640%~0.925%
- 10年固定
- 2.260%~3.100%
- 全期間固定
- 1.380%~2.890%
- ※5.0%以内で設定してください
- ※月々支払額算出用の初期値は都市銀行変動金利下限金利の平均値を設定しています
- ※参考値に記載の金利は「融資利率の下限金利」のレンジを表示しています
- ※都市銀行:りそな銀行、三井住友銀行、三菱UFJ銀行、みずほ銀行とする
- ※金利タイプについてはこちら
返済期間について
返済期間を短く設定すると利息の支払いを少なく抑えられますが、毎月の返済額は多くなります。返済可能な額を念頭に、収入が得られる期間までに完済できるように検討するといいでしょう。
一般的には35年以内で完済する人が多いようです。
- ※50年以内で設定してください
- ※初期値は35年を設定しています
頭金について
住宅購入金額のうち、現金で支払う金額が頭金です。一般的には物件価格の20%程度価格が必要といわれていますが、頭金なしで融資可能な金融機関もあります。頭金を多く用意することで借入額を減らすことができますが、将来のライフイベントも考慮して手元に資金をいくら残すかを検討してみましょう。
- ※価格の50%以内で設定してください
ボーナス返済について
毎月の返済額に加えて、ボーナス月には指定した金額を返済します。金融機関によって異なりますが、契約額の40~50%をボーナス返済にすることが可能です。 住宅ローンの返済は長期にわたるため、今後、ボーナスの減額や転職の予定がある場合は、ボーナス返済を設定しない、もしくは金額を少なくするほうがいいでしょう。
- ※年間返済額の50%以内で設定してください
- ※年2回(お客様が入力した金額×2回)として計算しています
このシミュレーションは、LIFULL HOME'Sで試算した概算です。参考情報としてご活用ください。
- ご利用にあたって
- ※このシミュレーションは、LIFULL HOME'Sで試算した概算であるため、月々支払額の目安の正確性・妥当性や借り入れを保証するものではありません。参考情報としてお客様にご活用いただくものです。また、お借り入れを保証するものではありません。 実際の購入・借入にあたっては、金融機関でご確認ください
- ※初期値として入力されている金利は、2025年12月01日時点での都市銀行変動金利下限金利の平均値です
- ※変動金利は一般的に年2回金利が見直され、返済額の変更は5年ごとに行われます
- ※物件によっては、借地料(地代)や設備利用料、セキュリティー費用などが別途かかる場合がございます。詳細は不動産会社にご確認ください
- ※金利は住宅ローン申込時ではなく、金融機関からの資金受取時点における金利が適用されます
- ※住宅ローン契約の際には、諸費用が別途かかります(手数料や印紙税、保証料など)。適正予算チェックの購入希望予算・購入上限予算では一律7%を諸費用として算出しています
- ※月々支払額の目安は「万円」単位で、(管理費等・修繕積立金は合算後)100円台を切り上げた上で小数点第一位までを表示しています
- ※実際の金利などの詳細は、金融機関にご確認ください
- ※当社は、お客様のLIFULL HOME'Sの閲覧履歴(閲覧物件・お気に入り物件・検索条件・問合せ件数・訪問時間帯等をいい、以下閲覧履歴情報といいます)を取得保有しております。今回ご入力いただいた内容とお客様の閲覧履歴情報を紐づけて、以下の目的で利用いたします。・お客様に有益と思われるご提案・情報のご提供をするための分析・情報配信・その他当社の個人情報の取扱い方針に記載する利用目的
- ※また、ご入力いただいた内容は以下の利用目的のため、お客様がLIFULL HOME'Sを通じて過去および将来お問合せされる不動産会社に提供させて頂くことがあります。・お問合せ先不動産会社から、お客様に有益と思われるご提案または情報をご提供するため
- ※当社における個人情報の取扱い詳細については、当社の個人情報の取扱い方針をご参照ください
ローン・購入について、不動産会社に相談
お問合せ方法
不動産会社へのお問合せは、下記の3種類からお選びいただけます。
※不動産会社へのお問合せには料金は発生しません
物件に関して気になっていることを相談できます
不動産会社からメールで連絡がありますので、内見の相談をメール上で行うことも可能です。
内見したい日時が決まっている方
不動産会社から折り返し連絡がありますので、日程調整を行ってください。
物件の空き状況など今すぐ確認できます
直接お話しを聞きたい場合は電話でのお問合せも可能です。営業時間を確認の上、電話をおかけください。
予算を検討する
予算条件を入力
おうち予算シミュレーション年齢・子供の有無・世帯収入などから、購入できる住宅価格の目安を詳細に計算できます。
住宅ローン診断一番おトクな住宅ローンを比較・診断します。提供元:モゲチェック
今の家、いくらで売れる?売却額で購入予算と月々の支払いが変わります。ローン・購入について、不動産会社に相談
お問合せ方法
不動産会社へのお問合せは、下記の3種類からお選びいただけます。
※不動産会社へのお問合せには料金は発生しません
物件に関して気になっていることを相談できます
不動産会社からメールで連絡がありますので、内見の相談をメール上で行うことも可能です。
内見したい日時が決まっている方
不動産会社から折り返し連絡がありますので、日程調整を行ってください。
物件の空き状況など今すぐ確認できます
直接お話しを聞きたい場合は電話でのお問合せも可能です。営業時間を確認の上、電話をおかけください。
お問合せ(無料)
お問合せの前に確認!
問合せ先:朝日土地建物株式会社 八王子支店 営業2課
オンライン相談の流れ
- 1
問合せ時に項目をチェック
資料請求フォームから「オンライン相談を希望」にチェックして送信。電話での問合せも可能です。
- 2
不動産会社と日程・接続方法を調整
不動産会社から連絡が来ますので、ご確認ください。
- 3
指定場所にアクセス
当日、予約時刻になったらビデオ通話につなぎ、ご相談ください。
- ※ビデオ通話方法は各不動産会社指定のものとなります。通信時の回線、速度、対象のOS・ブラウザ等はお客様自身の責任で確認してください。株式会社LIFULLはこれら一切の責任を負いません。
- ※ビデオ通話にかかる通信料はお客様負担となります
かんたん1分
クイック問合せ(無料)
お問合せ先
朝日土地建物株式会社 八王子支店 営業2課
- 営業時間
- 09:30 〜 21:00
- 定休日
- 毎週水曜日 隔週火曜日 夏季休暇 年末年始
オンライン相談の流れ
- 1
問合せ時に項目をチェック
資料請求フォームから「オンライン相談を希望」にチェックして送信。電話での問合せも可能です。
- 2
不動産会社と日程・接続方法を調整
不動産会社から連絡が来ますので、ご確認ください。
- 3
指定場所にアクセス
当日、予約時刻になったらビデオ通話につなぎ、ご相談ください。
- ※ビデオ通話方法は各不動産会社指定のものとなります。通信時の回線、速度、対象のOS・ブラウザ等はお客様自身の責任で確認してください。株式会社LIFULLはこれら一切の責任を負いません。
- ※ビデオ通話にかかる通信料はお客様負担となります
オンライン相談の流れ
- 1
問合せ時に項目をチェック
資料請求フォームから「オンライン相談を希望」にチェックして送信。電話での問合せも可能です。
- 2
不動産会社と日程・接続方法を調整
不動産会社から連絡が来ますので、ご確認ください。
- 3
指定場所にアクセス
当日、予約時刻になったらビデオ通話につなぎ、ご相談ください。
- ※ビデオ通話方法は各不動産会社指定のものとなります。通信時の回線、速度、対象のOS・ブラウザ等はお客様自身の責任で確認してください。株式会社LIFULLはこれら一切の責任を負いません。
- ※ビデオ通話にかかる通信料はお客様負担となります
物件を保存・共有する
LINEで共有
URLをコピー
物件情報ページのQRコード
QRコードを読み取ると、物件情報ページが開きます
お問合せの注意事項
- ※お客様の電話番号は不動産会社に通知されません
- ※光IP電話、及びIP電話からはご利用になれません
- ※お電話によるお問合せは、店舗営業時間内にお願いします
- ※不動産会社がお電話に出られなかった場合、お問合せいただいた後に不動産会社より折り返しのお電話がある場合がございます(電話会社が提供するサービスを介して折り返しお電話をするため、この場合においてもお客様の電話番号は不動産会社に通知されません。)
- ※携帯電話からお問合せいただいた方には、電話会社が提供するメッセージサービスを介してショートメッセージ(SMS)またはLINE通知メッセージによるお問合せ内容に関する通知をお届けする場合があります
- ※お客様が通話中に不動産会社にお伝えになったお客様の個人情報及び、電話会社が発番する折り返し専用の電話番号は、お問合せ先不動産会社が資料送付・電子メール送信・電話連絡などの目的で保管する可能性があります。お問合せ先不動産会社が保管する個人情報の取扱いについては、各不動産会社に直接お問合せください
- ※株式会社LIFULLでは本サービスを円滑に運用するために、お客様の発信者番号をサービスご利用の控えとして一定期間保管いたします
- ※上記および株式会社LIFULLの個人情報の取扱い方針に同意のうえ、お問合せください
- ※不動産会社の方からの上記電話番号によるお問合せはお断りしております
- ※各種情報と現状に差異がある場合は、現状優先となります
- ※不動産会社が入力した情報を基に物件付近の地図を表示しており、物件の所在地を示したものではありません。詳しくは不動産会社までお問合せください
- ※QRコードは株式会社デンソーウェーブの登録商標です
ご意見をお寄せください
サイトへのリクエスト・ご意見
みなさまからのリクエストやご意見を参考に、サイト改善に取り組んでいます。
物件情報に誤りがある場合
LIFULL HOME'Sは物件鮮度No.1を目指していきます。お気づきの点がございましたら、ご連絡ください。
LIFULL HOME'S 地図・周辺情報
「周辺施設・災害リスク」を表示するには縮尺を変える必要があります。
※学区:この物件は地図上で示した公立学校の学区内の可能性が高いです。学区の詳細は各自治体にご確認ください。
この物件周辺の施設一覧
買い物:日用品
- ファミリーマート 八王子インター店
- セイジョー八王子中野店
- ダイソーコピオ楢原店
- ジェーソン 八王子楢原店
- いなげや 八王子中野店
買い物:大型店
- 京王百貨店セレオ八王子店
- イゲタヤ八日町本店
- ヨドバシカメラ 八王子店
- ファッションセンターしまむら 中野上町店
- ケーヨーデイツー 楢原店
グルメ
- 無添くら寿司 八王子インター店
- ロイヤルホスト 八王子インター店
- 平城苑 八王子店
- コメダ珈琲店八王子楢原店
- 安楽亭 八王子中野上町店
娯楽施設
- 甲の原体育館プール(室内)
- 滝山ゴルフ練習場
- 中田公園
- コニカミノルタサイエンスドーム
- アドバンステニスクラブ
公園
- 都立滝山自然公園
文化施設
- 村内美術館
- 東京富士美術館
- 八王子市夢美術館
- 桑都日本遺産センター八王子博物館
- オリンパスミュージアム
役所・公共施設
- 八王子市役所
- 八王子警察署
- 八王子中野山王郵便局
- 八王子市生涯学習センター図書館
- 警視庁第九方面本部
医療
- 緑雲会多摩病院
- 徳成会八王子山王病院
- 医療法人財団興和会右田病院
- 北原リハビリテーション病院
- 米山産婦人科病院
保育施設
- なかの幼稚園
- 甲ノ原保育園
- 光明第三こども園
- 津久田保育園
- 犬目幼稚園
学校
- 八王子市立中野北小学校
- 八王子市立甲ノ原中学校
- 私立工学院大学附属高校
- 私立工学院大学八王子キャンパス
- 私立創価女子短期大学
- 周辺施設について
- 周辺施設は、参考情報としてのみご利用ください(周辺施設は、株式会社LIFULLが地図情報の提供事業者から提供を受けた情報とLIFULL HOME’Sの物件情報に基づき、独自の方法で抽出し提供しているものです。周辺施設は、移転や閉鎖等により情報が最新ではない、または正しくない場合がありますが、地図情報の提供事業者から提供された情報をそのまま周辺施設として表示しているため、正確かつ最新の情報へ修正することができないことがあります。)
- 周辺施設は、株式会社LIFULLが掲載するものであり、不動産物件情報を掲載している不動産会社が掲載するものではありません
- 避難所以外の周辺情報は2023年7月21日時点のものになります
- 避難所について
- データ出典:国土交通省 国土政策局 国土数値情報 「国土数値情報 避難施設データ」(平成24年度)をもとに株式会社LIFULLが編集・加工
- 開設が必要な施設もあります。避難の際や、最新の情報は自治体へご確認ください。
- 本データは、原則として地方公共団体の地域防災計画に記載された避難所リストを参考にしています。ただし、地方公共団体によっては、他の情報源から整備しているものもあり、地方公共団体ごとの避難施設データの整備基準が異なりますので、注意ください。
- 本データの利用により、ご利用者様又は第三者に生じた損害については、ご利用者様がその責任を負うものとし、当社および出典元である国土交通省国土情報課、各データの原典作成者は一切責任を負いません。
- 学区について
- 学区情報は参考情報としてお客様にご活用いただくものです。
- 学区情報の正確性、完全性、最新性などについて、保証いたしかねます。
- ご判断については、各自治体の教育委員会にもご確認されるなどされたうえで、お客様自身のご責任で行ってください。
- お客様は、自己の責任に基づき本サービスを利用するものとし、事由の如何を問わず、株式会社LIFULL、物件を掲載している不動産会社、データ提供元は一切責任を負いません。
- 本サービスは予告なく終了する場合があります。
- 本データは、合同会社ジオ・ケイが提供する学校区データベース小学校・中学校【2020年度版】を株式会社LIFULLが加工のうえ、表示したものです。
- 学区は随時見直しの対象となり、最新のデータは各自治体の教育委員会が保有しています。
この物件は、最大浸水深が指定されていないエリアにあります。
この物件は、最大浸水深が50cm未満のエリアにあります。
この物件は、最大浸水深が1m未満のエリアにあります。
この物件は、最大浸水深が2m未満のエリアにあります。
この物件は、最大浸水深が5m未満のエリアにあります。
この物件は、最大浸水深が5m以上のエリアにあります。
指定されていないエリアです。しかし、この災害リスクは76mメッシュで評価したものでピンポイントで安全性を見るものではありません。必ず現地では物件周辺をチェックし周囲との高低差を確認しましょう。
一般的な一戸建てで浸水深が50cm未満の場合には床下浸水の可能性があります。土地が周囲から想定される浸水深以上に高い、高くなるようにかさ上げされている、建物の基礎が高く作られている、1階に居住スペースが作られていないなどの場合には浸水せずに済むこともあり得るので、実際の土地、建物と周囲の関係、浸水対策などを確認してみましょう。
一般的な一戸建ての場合、浸水深が50cm以上になると床上浸水する恐れがあり、2mとなると1階軒下まで水が来ると考えられます。その危険を考えるとリビングなど生活の場は2階以上を中心にしておくのが現実的でしょう。大きな家具、家電は1階に置かない、エアコンの室外機や外部電源は浸水を避けられる位置につける、子どもや高齢者のいる家庭では階段を使いやすいものにしておくなどの工夫も考えられます。
一般的な一戸建ての場合、浸水深が2mとなると1階部分まで、5mとなると2階軒下まで水が来ると考えられます。この場合、建物内での避難は難しいため、台風、豪雨等の情報には常に注意を払い、遅れることなく避難できるようにしましょう。そのためには立地のチェックが大事です。近隣の避難場所を確認するだけではなく、避難場所への経路に土地が低いなどで通れなくなる場所がないかなども現地で確認しましょう。市町村を超えた広域避難が呼びかけられている場所では親戚、友人宅など避難できる場所をあらかじめ確保しておくことも大事です。
この物件は、土砂災害警戒区域に指定されていないエリアにあります。
この物件は、土砂災害警戒区域に指定されているエリアにある可能性があります。
この物件は、土砂災害特別警戒区域に指定されているエリアにある可能性があります。
指定されていないエリアです。しかし、この災害リスクは250mメッシュで評価したものでピンポイントで安全性を見るものではありません。土砂災害警戒区域・土砂災害特別警戒区域内に立地する建物については、不動産取引での説明が義務付けられています。物件が該当するかは、不動産会社にお問い合わせください。
各都道府県が調査・区域指定をしている土砂災害が発生した場合に、住民に危害が生ずるおそれがあると認められる区域です。この災害リスクは250mメッシュで評価したもので、実際とは異なる可能性があります。土砂災害警戒区域・土砂災害特別警戒区域内に立地する建物については、不動産取引での説明が義務付けられています。物件が該当するかは、不動産会社にお問い合わせください。
この物件は、液状化リスクが不明なエリアにあります。
この物件は、液状化リスクが低いエリアにあります。
この物件は、液状化リスクがやや低いエリアにあります。
この物件は、液状化リスクがやや高いエリアにあります。
この物件は、液状化リスクが高いエリアにあります。
この物件は、液状化リスクが非常に高いエリアにあります。
液状化リスクは表層地盤の地形から評価したもので、地盤改良工事でリスクを軽減することができます。液状化は震度5以上の地震で起こりやすく、地盤沈下や路面の亀裂、地中の下水道管が隆起・破損が発生することがあるため、周辺施設のチェックも必要です。購入前には必ず物件の地盤調査、地盤改良の有無を不動産会社に確認しましょう。
この物件は、最大震度が不明なエリアにあります。
この物件は、最大震度5弱以下が予測されるエリアにあります。
この物件は、最大震度5強が予測されるエリアにあります。
この物件は、最大震度6弱が予測されるエリアにあります。
この物件は、最大震度6強が予測されるエリアにあります。
この物件は、最大震度7が予測されるエリアにあります。
震度5強以下の地震が起きた場合でも、新耐震基準の物件は軽微なひび割れ程度に留まる設計がされています。予測データでは比較的に地震の揺れが大きくないエリアですが、耐震性能は工法やメーカーによって異なります。長く安心して住むために耐震性能に加え、耐久性、メンテナンスのしやすいかを不動産会社に確認しましょう。
震度6弱以上の地震が起きた場合、耐震性能が低い一戸建ての場合は倒壊しないものの、ひび割れ等の被害が想定されます。予測データでは比較的に地震の揺れが大きなエリアなので、住宅の耐震性能について不動産会社に確認しましょう。長く安心して住むために耐震性能に加え、耐久性、メンテナンスのしやすさもポイントです。
災害リスク情報は、株式会社LIFULLが掲載するものであり、不動産物件情報を掲載している不動産会社が掲載するものではありません
災害リスク情報は、参考情報として提供するものです。災害リスク情報の正確性・完全性・最新性について保証するものではありません。本サービス利用により生じた損害等について、株式会社LIFULLおよび各データの出典元は一切責任を負いません
地図の拡大レベルによっては、エリアに表示される災害レベルが変わることがあります
ハザード情報のご利用について
詳細なハザード情報は
提供元データをご確認ください
本情報は、株式会社LIFULLが地図情報の提供事業者から提供を受けた情報とLIFULL HOME'Sの物件情報に基づき、独自の方法で抽出・加工し提供しているものです。ハザード情報を詳しくお調べになりたい場合は、提供元の情報または自治体の公表データをご確認ください
※本情報は、株式会社LIFULLが掲載するものであり、不動産会社が掲載するものではありません
間取り

1/1
- 間取り
- 満足につながるゆとりと使いやすい間取りの5LDK!
周辺環境

1/8
- 周辺
- 京王電鉄京王線「京王八王子」駅迄3130m

2/8
- 周辺
- いなげや 八王子中野店迄1220m

3/8
- 周辺
- ファミリーマート 八王子インター店迄630m

4/8
- 周辺
- 吉岡医院迄770m

5/8
- 周辺
- 左入公園迄680m

6/8
- 周辺
- 八王子市立甲ノ原中学校迄1270m

7/8
- 周辺
- 八王子市立中野北小学校迄1010m

8/8
- 周辺
- 甲ノ原保育園迄1310m
