

【鹿児島市 平屋】25.05坪 カフェテイストな北欧デザインの家
施工事例データ
スタイリッシュな北欧デザインのカフェテイストな平屋。完成したとき、白壁に緑色の屋根の色合いが気に入ったそう。平屋のモデルハウスにひとめぼれし丸和建設で建てようと決めた。奥様が元々好きだったカーキ系の色で統一しながら全体の色使いにこだわった。お気に入りのポイントは好みの色使いで選んだタイルと洗面。コーディネーターに提案された照明も今ではお気に入りだ
スタイリッシュな北欧デザインのカフェテイストな平屋。完成したとき、白壁に緑色の屋根の色合いが気に入ったそう。平屋のモデルハウスにひとめぼれし丸和建設で建てようと決めた。奥様が元々好きだったカーキ系の色で統一しながら全体の色使いにこだわった。お気に入りのポイントは好みの色使いで選んだタイルと洗面。コーディネーターに提案された照明も今ではお気に入りだ
本体価格
坪単価
床面積
土地面積
間取り
工法
所在地
竣工年
家族構成
ペット
商品名
建築対応エリア
家づくりのヒントとは

- 家づくりのアイディア
- イメージふくらむ写真
- 工法や技術
- 間取り・プラン実例
内観・外観画像(4件)

白い壁と緑の屋根が特徴的な家。まるでおしゃれなカフェのようだ

こだわりのタイルがおしゃれなキッチン。手元を隠すことで生活感を感じさせない

家に入ってすぐ目に入る照明や建具がとてもかわいく、家族や来客を迎えてくれる

見せる配管で洗面下をすっきりとおしゃれに見せている。こだわりの色遣いのタイルはお気に入りのポイント
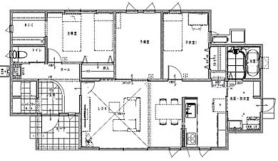
間取り図(1件)

1階
家づくりのヒントとは

- 家づくりのアイディア
- イメージふくらむ写真
- 工法や技術
- 間取り・プラン実例
この会社の他の施工事例(41件)






施工事例
【鹿児島市 平屋】29.49坪(97.50㎡)グレイッシュカラーが目を惹く平屋
- 床面積
- 29.49坪(97.50㎡)
- 土地面積
- 68.12坪(225.21㎡)
- 竣工年
- -年
- 工法
- ツーバイフォー・ツーバイシックス工法
この会社のおすすめカタログ

【2F、平屋】企画住宅 RAKUie(ラクイエ)
家づくりに「楽」がある。住んでみて「楽」しさがある。
建てたいエリアを教えてください
選択していただくとお客様情報の入力に進みます。
※会社の建築対応エリアによって、選択できないエリアがあります。

【平屋】企画住宅 RAKUie(ラクイエ) プラン集
家づくりに「楽」がある。住んでみて「楽」しさがある。
建てたいエリアを教えてください
選択していただくとお客様情報の入力に進みます。
※会社の建築対応エリアによって、選択できないエリアがあります。

【2F】企画住宅 RAKUie(ラクイエ) プラン集
家づくりに「楽」がある。住んでみて「楽」しさがある。
建てたいエリアを教えてください
選択していただくとお客様情報の入力に進みます。
※会社の建築対応エリアによって、選択できないエリアがあります。
この会社の他の情報
- モデルハウス・住宅展示場(0件)
- カタログ(3件)
- 画像(321件)
- 評判(7件)
- 住宅イベント(0件)
- こだわり・特長(24件)
- 店舗・営業所・支店(1件)
- スタッフへのインタビュー(0件)
お問合せ
電話でお問合せ
音声案内に従い、
店舗番号4132を入力してください
※上記番号で通話できない場合は、099-269-7600におかけ直しください
※住み替えを検討されているお客様以外からのお問合わせはお断りしております
メールでお問合せ
家づくりのヒントとは

- 家づくりのアイディア
- イメージふくらむ写真
- 工法や技術
- 間取り・プラン実例
共有する
他の「平屋住宅」の施工事例








施工事例
【平屋/自然素材】家族団らんを楽しむ、国産材をふんだんに使用したここちよい住まい
- 床面積
- 26.50坪(87.77㎡)
- 土地面積
- 71.40坪(236.05㎡)
- 竣工年
- 2022年
- 工法
- 木造軸組(在来)工法


施工事例
【ウェルズホーム】回遊動線が便利な、北欧ナチュラルな平屋 ◆ 白河市 25坪
- 床面積
- 25.50坪(84.46㎡)
- 土地面積
- 69.94坪(231.21㎡)
- 竣工年
- 2025年
- 工法
- ツーバイフォー・ツーバイシックス工法


建築対応エリア
| 宮崎県 | 都城市、小林市、えびの市 |
|---|---|
| 鹿児島県 | 鹿児島市、鹿屋市、枕崎市、阿久根市、出水市、指宿市、垂水市、薩摩川内市、日置市、曽於市、霧島市、いちき串木野市、南さつま市、志布志市、南九州市、伊佐市、姶良市、薩摩郡さつま町、出水郡長島町、姶良郡湧水町、曽於郡大崎町、肝属郡東串良町、肝属郡錦江町、肝属郡南大隅町、肝属郡肝付町 |
建てたいエリアを教えてください
選択していただくとお客様情報の入力に進みます。
※会社の建築対応エリアによって、選択できないエリアがあります。
オンライン相談とは
- 1
住宅メーカーへ問合せ
「この会社へお問合せ」ボタンを押して、フォーム上で「オンライン相談を希望する」旨をご記入し送信します。
- 2
住宅メーカーと日程を調整
住宅メーカーから連絡が来たらオンライン相談の日程を調整して、予約完了。
- 3
相談方法のご確認
メールやSMS等にてオンライン相談の利用方法が届きますので、ご確認ください。
- 4
指定場所にアクセス
当日、予約時刻になったらご指定のビデオ通話につなぎ、ご相談ください。
利用時の注意事項
- ビデオ通話については各住宅メーカー指定のものとなります。
- ビデオ通話利用時には通信が発生します。従量課金制通信サービスや通信料に上限があるネット回線・プランを利用する場合は、通信量に注意してください。
- 通信速度やアプリの設定によってはビデオ通話の画質が低下することがあります。安定した画質で利用するためにも、Wi-Fi環境下での利用を推奨します。
- ご利用のビデオ通話アプリによっては、対象のOSやブラウザに制限がある場合があります。詳しくはお問合せ先住宅メーカーにご確認ください。

