
【4LDK/大容量ファミクロ/無駄のない動線】抜群の収納力を備えた家
施工事例データ
キッチンからリビング全体を見渡すことができる間取り。 約18帖のリビングは開放感があり、ゆっくりくつろげます。 大容量のファミリークローゼットは何でも収納できる大きさ。 食洗器、電動シャッター、カーテンや照明、外構アプローチまで整っています!
キッチンからリビング全体を見渡すことができる間取り。 約18帖のリビングは開放感があり、ゆっくりくつろげます。 大容量のファミリークローゼットは何でも収納できる大きさ。 食洗器、電動シャッター、カーテンや照明、外構アプローチまで整っています!
本体価格
坪単価
床面積
土地面積
間取り
工法
所在地
竣工年
家族構成
ペット
商品名
建築対応エリア
家づくりのヒントとは

- 家づくりのアイディア
- イメージふくらむ写真
- 工法や技術
- 間取り・プラン実例
内観・外観画像(5件)

キッチン
開放感のある対面キッチンは、家族との会話を楽しみながら家事ができる設計です。 使いやすさとデザイン性を兼ね備えた、毎日の暮らしを豊かにする空間です。

リビング
キッチンからリビング・ダイニングまで見渡せる、心地よい一体空間。 料理をしながら家族の様子が自然と目に入り、会話が生まれるレイアウト。

主寝室
収納付きで使い勝手の良い、明るく落ち着いた寝室。 自然光が心地よく、将来のライフスタイル変化にも対応しやすい空間です。

ウォークインクローゼット
衣類も小物もすっきり収まる、使いやすさを考えたウォークインクローゼット。 可動棚と引き出しを組み合わせ、家族それぞれの収納に対応。

脱衣室
室内干しもできる、家事効率を高めた脱衣・ランドリースペース。 洗う・干す・しまうが一か所で完結する、毎日助かる空間です。
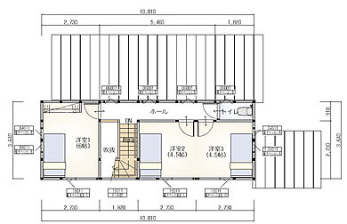
間取り図(2件)

LDKを中心に、水回りと収納を集約した暮らしやすい間取り。 家事動線が短く、コンパクトながらも広がりを感じられる住まいです。

各個室をバランスよく配置した、家族で使いやすい2階プラン。 将来の成長やライフスタイルの変化にも対応しやすい間取りです。
家づくりのヒントとは

- 家づくりのアイディア
- イメージふくらむ写真
- 工法や技術
- 間取り・プラン実例
この会社の他の施工事例(17件)
この会社のおすすめカタログ

【コスパ×職人】しもつけ匠会
匠の技が生み出す、高品質の注文住宅。
建てたいエリアを教えてください
選択していただくとお客様情報の入力に進みます。
※会社の建築対応エリアによって、選択できないエリアがあります。

【無垢素材】木の花ホーム
いい家は、大工で決まる。
建てたいエリアを教えてください
選択していただくとお客様情報の入力に進みます。
※会社の建築対応エリアによって、選択できないエリアがあります。

【平屋専門店】ホーデリーホーム
栃木県内初!【平屋】専門店
建てたいエリアを教えてください
選択していただくとお客様情報の入力に進みます。
※会社の建築対応エリアによって、選択できないエリアがあります。
この会社の他の情報
- カタログ(6件)
- 画像(185件)
- 住宅イベント(0件)
- 評判(4件)
- こだわり・特長(25件)
- 店舗・展示場・モデルハウス(1件)
- スタッフへのインタビュー(0件)
お問合せ
電話でお問合せ
音声案内に従い、
店舗番号8482を入力してください
※上記番号で通話できない場合は、0282-92-0198におかけ直しください
※住み替えを検討されているお客様以外からのお問合わせはお断りしております
メールでお問合せ
家づくりのヒントとは

- 家づくりのアイディア
- イメージふくらむ写真
- 工法や技術
- 間取り・プラン実例
設備グレードアップキャンペーン実施中
総額【200万円】の補助金+【150万円分】の豪華オプションサービス
共有する
建築対応エリア
| 茨城県 | 結城市 |
|---|---|
| 栃木県 | 宇都宮市、栃木市、佐野市、鹿沼市、日光市、小山市、真岡市、さくら市、下野市、河内郡上三川町、芳賀郡市貝町、芳賀郡芳賀町、下都賀郡壬生町、下都賀郡野木町 |
建てたいエリアを教えてください
選択していただくとお客様情報の入力に進みます。
※会社の建築対応エリアによって、選択できないエリアがあります。
オンライン相談とは
- 1
住宅メーカーへ問合せ
「この会社へお問合せ」ボタンを押して、フォーム上で「オンライン相談を希望する」旨をご記入し送信します。
- 2
住宅メーカーと日程を調整
住宅メーカーから連絡が来たらオンライン相談の日程を調整して、予約完了。
- 3
相談方法のご確認
メールやSMS等にてオンライン相談の利用方法が届きますので、ご確認ください。
- 4
指定場所にアクセス
当日、予約時刻になったらご指定のビデオ通話につなぎ、ご相談ください。
利用時の注意事項
- ビデオ通話については各住宅メーカー指定のものとなります。
- ビデオ通話利用時には通信が発生します。従量課金制通信サービスや通信料に上限があるネット回線・プランを利用する場合は、通信量に注意してください。
- 通信速度やアプリの設定によってはビデオ通話の画質が低下することがあります。安定した画質で利用するためにも、Wi-Fi環境下での利用を推奨します。
- ご利用のビデオ通話アプリによっては、対象のOSやブラウザに制限がある場合があります。詳しくはお問合せ先住宅メーカーにご確認ください。









