
心地よい空間に包まれる、洗練されたホテルライクな天然木の家
施工事例データ
北欧のホテルのようなデザインが魅力的。内装は天然木をふんだんに使用しました。家事の効率を考えた間取りで、家の中心には分厚い天然木のテーブルが設置され、家族が集まる場になっています。照明の配置や壁面の色合いも、落ち着いた雰囲気を演出。二階にはプライベートスペースが設けられ、子供たちが安心して遊べる空間が確保されています。機能性とデザイン性を兼ね備えて、毎日が心地よい生活を実現しています。
北欧のホテルのようなデザインが魅力的。内装は天然木をふんだんに使用しました。家事の効率を考えた間取りで、家の中心には分厚い天然木のテーブルが設置され、家族が集まる場になっています。照明の配置や壁面の色合いも、落ち着いた雰囲気を演出。二階にはプライベートスペースが設けられ、子供たちが安心して遊べる空間が確保されています。機能性とデザイン性を兼ね備えて、毎日が心地よい生活を実現しています。
本体価格
坪単価
床面積
土地面積
間取り
工法
所在地
竣工年
家族構成
ペット
商品名
建築対応エリア
家づくりのヒントとは

- 家づくりのアイディア
- イメージふくらむ写真
- 工法や技術
- 間取り・プラン実例
内観・外観画像(9件)

開放感あふれるデザインのリビング
リビングは開放感あふれるデザインで、家族が集う場所としての役割を果たしています。温かいひとときを楽しめる空間に仕上げられています。

シンプルながらも温かみのあるキッチン
キッチンは天然木のパネルとモダンな設備が調和しています。料理を楽しむ空間として、機能性とデザイン性を両立させました。

分厚い天然木のテーブルを設置して、家族が自然と集まるダイニングスペース
ダイニングテーブルは、家族が集う場所として特別な存在。天然木の質感が心を癒し、食事を通じてのコミュニケーションが生まれる空間となっています。

庭からの光があふれるリビング
庭からの光が差し込むリビングは、開放感と温もりが感じられる空間。大きな窓からは自然の景色が楽しめ、暮らしに潤いを与えている

居心地の良い、造作されたソファがあるリビング
天然木で造作されたソファのあるリビングは心地よい空間が広がる。家族が集まりやすいレイアウトが考えられ、落ち着いた雰囲気の癒し空間に。

収納スペースもある、リビングのソファ
リビングのソファは、スタイリッシュなデザインと快適さを兼ね備え、家族がリラックスできる空間を提供。下部の収納も工夫され、スッキリとした印象を与えている。

大容量のファミリークローゼット
2階の個室横には、広々としたファミリークローゼットが設けられている。家族全員の衣類を充分収納できる大容量スペース。

シンプルで機能的な洗面スペース
洗練された洗面台は、天然木のキャビネットが温もりを演出。シンプルながらも機能的で、毎日の生活を快適にサポートするデザインとなっている。

木の質感が際立ち、自然と調和したデザインが魅力的な外観
自然素材の温もりを感じさせる外観は、周囲の風景と調和し、落ち着いた雰囲気を醸し出しています。木の質感が豊かな表情を作り出し、家族を優しく迎える住まいとなっています。夕暮れ時には、内部の温かな光が漏れ、周囲の風景と美しく融合し、日中とは違った表情を見せてくれます。
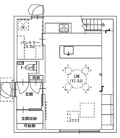
間取り図(2件)

空間が広く見えるストレートタイプのLDK。造作のソファや天然木のダイニングテーブルが家族の時間を心豊かなものにしてくれますね。

大容量のウォークインクローゼットを洗面室の前にプランニングしたので、洗濯物をすぐに片付けられます。家事の時短になり、家族で過ごす時間が増えますね。
家づくりのヒントとは

- 家づくりのアイディア
- イメージふくらむ写真
- 工法や技術
- 間取り・プラン実例
この会社の他の施工事例(13件)
この会社の他の情報
- カタログ(0件)
- 画像(140件)
- 住宅イベント(0件)
- 評判(0件)
- こだわり・特長(14件)
- 店舗・展示場・モデルハウス(1件)
- スタッフへのインタビュー(9件)
お問合せ
電話でお問合せ
音声案内に従い、
店舗番号8280を入力してください
※上記番号で通話できない場合は、077-572-7184におかけ直しください
※住み替えを検討されているお客様以外からのお問合わせはお断りしております
メールでお問合せ
家づくりのヒントとは

- 家づくりのアイディア
- イメージふくらむ写真
- 工法や技術
- 間取り・プラン実例
共有する
建築対応エリア
| 滋賀県 | 全域 |
|---|---|
| 京都府 | 全域 |
| 大阪府 | 全域 |
建てたいエリアを教えてください
選択していただくとお客様情報の入力に進みます。
※会社の建築対応エリアによって、選択できないエリアがあります。
オンライン相談とは
- 1
住宅メーカーへ問合せ
「この会社へお問合せ」ボタンを押して、フォーム上で「オンライン相談を希望する」旨をご記入し送信します。
- 2
住宅メーカーと日程を調整
住宅メーカーから連絡が来たらオンライン相談の日程を調整して、予約完了。
- 3
相談方法のご確認
メールやSMS等にてオンライン相談の利用方法が届きますので、ご確認ください。
- 4
指定場所にアクセス
当日、予約時刻になったらご指定のビデオ通話につなぎ、ご相談ください。
利用時の注意事項
- ビデオ通話については各住宅メーカー指定のものとなります。
- ビデオ通話利用時には通信が発生します。従量課金制通信サービスや通信料に上限があるネット回線・プランを利用する場合は、通信量に注意してください。
- 通信速度やアプリの設定によってはビデオ通話の画質が低下することがあります。安定した画質で利用するためにも、Wi-Fi環境下での利用を推奨します。
- ご利用のビデオ通話アプリによっては、対象のOSやブラウザに制限がある場合があります。詳しくはお問合せ先住宅メーカーにご確認ください。








