LIFULL HOME'Sは物件鮮度No.1!※評価について
サクシード伏見西町 地下1階/106
6.3万円/管理費等7,000円
14時間前 更新
画像一覧
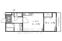
1/30間取り
2/30外観
3/30外観
4/30リビング/ダイニング
洋室
5/30室内
洋室
6/30寝室
洋室
7/30寝室
洋室
8/30子供部屋
洋室
9/30キッチン
キッチン
10/30キッチン
キッチン
11/30キッチン
キッチン
12/30浴室
風呂
13/30浴室
風呂
14/30トイレ
トイレ
15/30洗面
洗面所
16/30収納
収納
17/30収納
上段
18/30設備
下駄箱
19/30設備
洗濯機置場
20/30設備
下駄箱
21/30玄関
玄関
22/30玄関
玄関
23/30バルコニー
ベランダ
24/30エントランス
エントランス
25/30その他
眺望
26/30その他
エアコン
27/30その他
給湯器リモコン
28/30その他
TVモニターフォン
29/30周辺
京都コープ 桃山店まで500メートル
30/30周辺
セブンイレブン 京都西大手筋店まで450メートル
間取り
外観
外観
リビング/ダイニング
室内
寝室
寝室
子供部屋
キッチン
キッチン
キッチン
浴室
浴室
トイレ
洗面
収納
収納
設備
設備
設備
玄関
玄関
バルコニー
エントランス
その他
その他
その他
その他
周辺
周辺
お問合せ先 :株式会社エリッツ 宇治小倉店
住まい探し特典内容
電気・ガス・インターネットの手続き代行のご案内します。
- 利用条件
- 株式会社エリッツ 宇治小倉店で利用可
- 他特典との併用可
利用方法
来店時に本特典の画面をスマートフォンやタブレットでスタッフに提示、または画面印刷した用紙を提示ください。
有効期限 なし
2019年完成--パノラマ掲載--
物件のこだわり/設備・条件
新築(非該当)
2階以上の物件(非該当)
南向き(非該当)
駐車場(非該当)
オートロック(該当)
エアコン(該当)
バス・トイレ別(該当)
追焚機能(該当)
フローリング(該当)
ペット相談(非該当)
入居条件
二人入居可キッチン/バス・トイレ
設備・サービス
オートロック、TVモニタ付インターホン、エアコン、クローゼット、シューズボックス、BS対応、インターネット対応、インターネット使用料無料、公営水道、都市ガス、下水、フローリング、バルコニー、室内洗濯機置場、エレベーター、ゴミ出し24時間OK、宅配ボックス、バイク置き場あり、駐輪場ありその他
住まい探し特典あり備考
【ネット無料】伏見桃山に2019年2月完成、1DKマンションです。ドラッグストアのダックスが物件のお隣にありちょっとした買い物忘れにすぐに買いに行くことができす。交通機関も充実しております。・インターネット無料 ハウスクリーニング38500円(退去時)
物件周辺の生活情報
買い物
- コンビニ(450m)
- スーパー(500m)
その他施設
- 総合病院(1,500m)
交通
- 京阪本線 伏見桃山駅 徒歩10分
- 普通(停車)
- 区間急行(通過)
- 急行(通過)
- 特急(通過)
- 通勤準急・準急(停車)
- 快速特急 洛楽(通過)
- 通勤快急・快速急行(通過)
- 近鉄京都線 桃山御陵前駅 徒歩12分
- 普通(停車)
- 準急(停車)
- 急行(停車)
※急行等の停車駅情報について
急行等の停車駅に関するデータは、随時更新をしておりますが、最新の内容であることを保証するものではありません。
最新かつ正確な情報につきましては、各鉄道会社のウェブサイトにてご確認ください
物件周辺の口コミ
- 京都府京都市伏見区京町9丁目に住む人の口コミ30代女性
近くに商店街があり生活に困らないし、歴史のある町並みもあり散歩するにも楽しい
口コミを見る
この物件周辺に住む人の口コミ
口コミは、LIFULL HOME'Sが実際にこの物件の周辺に住む18歳~69歳の男女を対象に、WEBアンケート調査を実施しています。内容には回答者の主観的な表現が含まれる場合があるほか、事実と異なる場合もございます。ご了承ください。
- 京都府京都市伏見区京町9丁目に住む人の口コミ30代女性
- 近くに商店街があり生活に困らないし、歴史のある町並みもあり散歩するにも楽しい
- 京都府京都市伏見区横大路下三栖辻堂町に住む人の口コミ30代男性
- 交通の便がいいし、コンビニやスーパーやホームセンターが近くにあり、テイクアウトできる店も多く暮らしやすいから
- 京都府京都市伏見区土橋町に住む人の口コミ20代男性
- 交通の便が良く、近くに商店街があるおかげで店のバリエーションも充実しているため
- 京都府京都市伏見区納屋町に住む人の口コミ30代女性
- 適度に賑わっていて、買い物も交通も便利。自然も多く、植物や虫の音で季節を感じる事ができる。観光地でもあり県外からの観光客も多く、特産品も豊か。
- 京都府京都市伏見区南部町に住む人の口コミ30代女性
- コンビニ、スーパー、ファーストフードの店が多くて食料品の買い物が便利。
- 京都府京都市伏見区下中町に住む人の口コミ30代女性
- 歴史があり、比較的安全な街である。また、市役所、図書館、郵便局、交番、ハローワークなどの施設が近くにあるのでとても助かる
- 京都府京都市伏見区銀座町4丁目に住む人の口コミ30代女性
- 近くに路線の違う駅があり、便利。活気のある商店街があり、スーパーも多いので買い物は便利だが、ベビー用品の取り扱いが少ない。
- 京都府京都市伏見区川東町に住む人の口コミ30代男性
- 静かである。また、車があれば近隣に大型スーパーや飲食店などだいたい取り揃っている
- 京都府京都市伏見区横大路三栖山城屋敷町に住む人の口コミ30代女性
- 交通の便がよい。メガバンク?地方銀行までほぼ全て揃っている。ご飯屋さん(チェーン店など)がたくさんある。個性的な人が多く、事件が多く治安は良いとは言えないが、好きな街である。
- 京都府京都市伏見区東組町に住む人の口コミ30代女性
- 治安が良く活気のあるアーケード商店街があり日常生活に便利な場所のため。
物件概要
- 建物構造
- RC(鉄筋コンクリート)
- 駐車場
- 近隣 11,000円(税込) 物件からの距離218m
- 総戸数
- 34戸
- 契約形態
- -
- 契約期間
- 2年間
- 更新料
- 新賃料の1ヶ月分
- その他費用
- 鍵交換費用:26,400円、管理会社書類代(初回):11,000円、安心入居サポート(初回):19,800円、駐輪ステッカー(初回):330円
- 保証会社
加入要
保証会社利用料:35、000円
- 住宅保険
- 要
- 管理
- -
- LIFULL HOME'S
物件番号 - 0111605-0215014
- 自社管理番号
- 100684-0106
- 取引態様
- 仲介
- 会社名
- 株式会社エリッツ 宇治小倉店
営業スタッフコメント

株式会社エリッツ 宇治小倉店
浅原玲太
親切丁寧にお客様のお部屋探しをお手伝いいたします!
業界経験2年
資格宅地建物取引士
- 会社実績や特徴・サービス情報
- エリッツ宇治小倉店では宇治市だけでなく、城陽市、久御山町、京田辺市、京都市全域もお探しできますので、お気軽にお問合せ下さい。近鉄小倉駅徒歩1分の立地です。専用ガレージもございますので、お車でお越しの方もお気軽にご来店下さい。
エリッツ宇治小倉店では宇治市だけでなく、城陽市、久御山町、京田辺市、京都市全域もお探しできますので、お気軽にお問合せ下さい。近鉄小倉駅徒歩1分の立地です。専用ガレージもございますので、お車でお越しの方もお気軽にご来店下さい。
- 電話でお問合せ(通話無料)
お問合せ先 :株式会社エリッツ 宇治小倉店
不動産会社情報
京都でお部屋を探すなら、最多店舗数のエリッツにお任せ下さい!宇治小倉店では主に市内より南部の、宇治市、城陽市、八幡市、久御山町地域に精通しております!お気軽にご相談下さい!
- 店舗の特徴
- 引越し業者紹介可
- 年中無休
- 駐車場あり
- 社宅・寮物件取扱い
- オンライン相談可
- 保証人不要な物件あり
- 法人契約取扱い
- 駅から歩いて3分以内
電話でお問合せお客様の電話番号は不動産会社には通知されません
- 不動産会社に
つながります
お客様の電話番号は不動産会社に通知されません
- ※光IP電話、及びIP電話からはご利用になれません
- ※お電話によるお問合せは、店舗営業時間内にお願いします。つながらない場合は、お問合せフォームよりお問合せください
- ※不動産会社がお電話に出られなかった場合、お問合せいただいた後に不動産会社より折り返しのお電話がある場合がございます(お客様が非通知設定した場合は対象外です)
- ※株式会社LIFULLは電話会社が提供するサービスを介してお客様の発信者番号を受領後、折り返し専用の電話番号を発番してお問合せの不動産会社に通知します(お客様の発信者番号がお問合せの不動産会社に通知されることはございません)
- ※携帯電話からお問合せいただいた方に対し、株式会社LIFULLは電話会社が提供するメッセ―ジサービスを介してお客様の発信者番号を受領後、ショートメッセージ(SMS)またはLINE通知メッセージによるお問合せ内容に関する通知をお届けする場合があります
- ※お客様が通話中に不動産会社にお伝えになったお客様の個人情報及び、電話会社が発番する折り返し専用の電話番号は、お問合せ先不動産会社が資料送付・電子メール送信・電話連絡などの目的で保管する可能性があります。お問合せ先不動産会社が保管する個人情報の取扱いについては、各不動産会社に直接お問合せください
- ※株式会社LIFULLでは本サービスを円滑に運用するために、お客様の発信者番号をサービスご利用の控えとして一定期間保管いたします
- ※上記および株式会社LIFULLの個人情報の取扱い方針に同意のうえ、お電話ください
【LIFULL HOME'S物件番号】0111605-0215014【自社管理番号】100684-0106
オンライン対応
オンライン相談・IT重説に対応している物件です

「オンライン内見」「オンライン相談」「IT重説」とは?
物件の内見や不動産会社スタッフとの相談、契約前の重要事項説明をオンライン(ビデオ通話)で行うことができるサービスです。
オンライン内見
ビデオ通話で現地(物件)にいる不動産会社スタッフと映像・音声を使ってリアルタイムで会話しながら内見ができます。
オンライン相談
「物件について聞きたいことがある」など不動産会社スタッフへの相談もビデオ通話で行うことができます。
IT重説
契約前の重要事項説明(重説)をビデオ通話で行うことができます。
利用時の注意事項
- ビデオ通話については各不動産会社指定のものとなります。
- ビデオ通話利用時には通信が発生します。従量課金制通信サービスや通信量に上限があるネット回線・プランを利用する場合は、通信量にご注意ください。
- 通信速度やアプリの設定によってはビデオ通話の画質が低下することがあります。安定した画質で利用するためにも、Wi-Fi環境下での利用を推奨します。
- ご利用のビデオ通話アプリによっては、対象のOSやブラウザに制限がある場合があります。詳しくはお問合せ先不動産会社にご確認ください。
初期費用・月額費用をあわせて確認!この物件に住んだときの費用めやす
めやすを見るこの物件に住んだときの費用めやす
- 初期費用
- 月額費用
- 追加費用※ご確認ください
追加で費用が
かかる場合があります
必ずご確認ください
初期費用めやす約0円
追加で費用がかかります(※)敷金
0
- 礼金
126,000
賃料+共益費・管理費の1ヶ月分として換算
賃料の1ヶ月分+税として換算。不動産会社によって金額が異なるため正確な金額は不動産会社にお問合せください
※追加費用もチェック!
これらの項目以外にも費用がかかる場合があります。正確な金額は不動産会社にお問合せください。
- 初期費用
- 鍵交換費:26,400円
- 室内清掃費:不動産会社に要確認
- 火災保険費:不動産会社に要確認
- 月額費用
- 駐車場費:11,000円(税込)※近隣
- その他
- 管理会社書類代(初回):11000円
- 安心入居サポート(初回):19800円
- 駐輪ステッカー(初回):330円
- 保証会社
- 35、000円
不動産会社より
2019年完成--パノラマ掲載--
【ネット無料】伏見桃山に2019年2月完成、1DKマンションです。ドラッグストアのダックスが物件のお隣にありちょっとした買い物忘れにすぐに買いに行くことができす。交通機関も充実しております。・インターネット無料 ハウスクリーニング38500円(退去時)
- 保存する
- 共有する
- ※各種情報と現状に差異がある場合は、現状優先となります
- ※不動産会社が入力した情報を基に物件の位置を表示しています。詳しくは不動産会社までお問合せください
- ※不動産会社の方からの上記電話番号によるお問合せはお断りしております。こちら不動産会社詳細からお問合せください
- ※LIFULL HOME'Sは物件鮮度No.1を目指していきます。閲覧中の物件が「成約済である」「実際の物件情報と異なる点がある」などの場合、「掲載110番」からお問合せください
- ※QRコードは株式会社デンソーウェーブの登録商標です
この物件を取扱う他の会社
LIFULL HOME'Sでは、主要項目が同一の物件をまとめて表示しています。所在地や営業時間、掲載画像等から不動産会社を選んでお問合せください。
最近見た賃貸物件
LIFULL HOME'S 地図・周辺情報
買い物
- ファミリーマート 伏見片原町店
- 業務スーパー 大手筋店
- ダックス伏見肥後町店
- セブンイレブン 伏見南部町店
- コープ 桃山
グルメ
- 餃子の王将 大手筋店
- サンマルクカフェ京都伏見桃山店
- モスバーガー 伏見大手筋店
- カフェ・ベローチェ伏見桃山店
- なか卯 伏見桃山店
育児・教育
- みどり保育園
- 京都市立伏見板橋小学校
- 京都市立伏見中学校
- 板橋保育園
- 京都市立伏見南浜小学校
医療
- 社会福祉法人浩照会伏見桃山総合病院
- 社会医療法人岡本病院(財団)伏見岡本病院
- 医療法人社団蘇生会総合病院
- 医療法人社団蘇生会蘇生会総合病院介護医療院
- 社会医療法人弘仁会大島病院
公共施設・郵便局
- 京都御駕篭郵便局
- 京都市伏見中央図書館
- 京都市伏見区役所
- 京都西大手筋郵便局
- 京都市向島図書館
公園
- 三栖公園
- 下鳥羽公園
- 宇治川公園
- 竹田公園
- 桂川緑地久我橋東詰公園
利用可能な駅
- 徒歩10分以内
京阪本線
- 伏見桃山駅徒歩10分
- すべての駅
近鉄京都線
- 桃山御陵前駅徒歩12分
- 近鉄丹波橋駅徒歩14分
- 伏見駅徒歩21分
- 竹田駅徒歩33分
- 向島駅3.3km
京阪本線
- 丹波橋駅徒歩14分
- 中書島駅徒歩14分
- 墨染駅徒歩30分
- 藤森駅3.3km
JR奈良線
- 桃山駅徒歩19分
- JR藤森駅徒歩37分
京阪宇治線
- 観月橋駅徒歩23分
- 桃山南口駅3.1km
- 周辺情報は2023年07月21日時点のものになります。
- 周辺情報は、参考情報としてのみご利用ください(周辺情報は、株式会社LIFULLが地図情報の提供事業者から提供を受けた情報とLIFULL HOME'Sの物件情報に基づき、独自の方法で抽出し提供しているものです。周辺情報は、移転や閉鎖等により情報が最新ではない、または正しくない場合がありますが、地図情報の提供事業者から提供された情報をそのまま周辺情報として表示しているため、正確かつ最新の情報へ修正することができないことがあります。)
- 周辺情報は、株式会社LIFULLが掲載するものであり、不動産物件情報を掲載している不動産会社が掲載するものではありません
- 交通情報の一部については、株式会社LIFULLが掲載するものであり、不動産物件情報を掲載している不動産会社が掲載するものではない場合があります。交通情報に関する質問などは株式会社LIFULLにお問合せください















































