LIFULL HOME'Sは物件鮮度No.1!※評価について
サクシード伏見西町 1階/106
6.3万円/管理費等7,000円
2時間前 更新
画像一覧
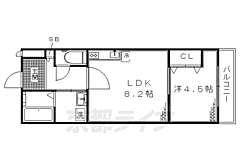
1/30間取り
間取
2/30外観
大手町商店街徒歩圏内の好立地
3/30外観
伏見桃山駅まで徒歩10分になります。
4/30リビング/ダイニング
人気エリアの1LDkタイプの物件になります。
5/30リビング/ダイニング
地下部分のバルコニになります。
6/30リビング/ダイニング
地下部分のバルコニになります。
7/30リビング/ダイニング
地下部分のバルコニになります。
8/30リビング/ダイニング
地下部分のバルコニになります。
9/30キッチン
IHの2口タイプのキッチンになります。
10/30キッチン
地下部分のバルコニになります。
11/30キッチン
地下部分のバルコニになります。
12/30キッチン
地下部分のバルコニになります。
13/30浴室
浴室乾燥機能付きになります。
14/30浴室
地下部分のバルコニになります。
15/30トイレ
ウォシュレットトイレになります。
16/30トイレ
地下部分のバルコニになります。
17/30洗面
地下部分のバルコニになります。
18/30収納
独立洗面台になります。
19/30収納
収納も大きめです
20/30設備
地下部分のバルコニになります。
21/30設備
22/30設備
23/30設備
24/30設備
25/30設備
26/30玄関
シューズボックス付きの玄関になります。
27/30バルコニー
地下部分のバルコニになります。
28/30その他
廊下部分になります。
29/30その他
30/30周辺
ファミリーマート 伏見片原町店まで113m
間取り
外観
外観
リビング/ダイニング
リビング/ダイニング
リビング/ダイニング
リビング/ダイニング
リビング/ダイニング
キッチン
キッチン
キッチン
キッチン
浴室
浴室
トイレ
トイレ
洗面
収納
収納
設備
設備
設備
設備
設備
設備
玄関
バルコニー
その他
その他
周辺
お問合せ先 :(株)京都ライフ 小倉店
仲介手数料割引
成約時の仲介手数料半月分の税別でご紹介可能です。
- 利用条件
- (株)京都ライフ 小倉店で利用可
- 他特典との併用可
- 個人契約、居住用物件に限ります。 大東建託、積水ハウス物件は除く。
利用方法
来店時に本特典の画面をスマートフォンやタブレットでスタッフに提示、または画面印刷した用紙を提示ください。
有効期限 なし
設備充実の1LDK物件 お1人でもファミリーでも便利な大手筋商店街すぐ
物件のこだわり/設備・条件
新築(非該当)
2階以上の物件(非該当)
南向き(非該当)
駐車場(非該当)
オートロック(該当)
エアコン(該当)
バス・トイレ別(該当)
追焚機能(非該当)
フローリング(該当)
ペット相談(非該当)
位置
角部屋入居条件
二人入居可キッチン/バス・トイレ
設備・サービス
オートロック、防犯カメラ、TVモニタ付インターホン、エアコン、シューズボックス、BS対応、光ファイバー、インターネット使用料無料、公営水道、都市ガス、下水、フローリング、バルコニー、室内洗濯機置場、エレベーター、宅配ボックス、バイク置き場あり、駐輪場ありその他
住まい探し特典あり
物件周辺の生活情報
学校
- 伏見板橋小学校(483m)
- 伏見中学校(373m)
買い物
- コンビニ(113m)
- スーパー(437m)
その他施設
- 板橋保育園(245m)
交通
- 京阪本線 伏見桃山駅 徒歩10分
- 普通(停車)
- 区間急行(通過)
- 急行(通過)
- 特急(通過)
- 通勤準急・準急(停車)
- 快速特急 洛楽(通過)
- 通勤快急・快速急行(通過)
- 近鉄京都線 桃山御陵前駅 徒歩12分
- 普通(停車)
- 準急(停車)
- 急行(停車)
※急行等の停車駅情報について
急行等の停車駅に関するデータは、随時更新をしておりますが、最新の内容であることを保証するものではありません。
最新かつ正確な情報につきましては、各鉄道会社のウェブサイトにてご確認ください
物件周辺の口コミ
- 京都府京都市伏見区西町に住む人の口コミ60代男性
近くにスーパーがあり、アーケードのある商店街も有り、区役所保健所も有り、繁華街に行くのにも郊外に行くのにも京阪・近鉄が有り、便利な町だと思う。名神も近いし。
口コミを見る
この物件周辺に住む人の口コミ
口コミは、LIFULL HOME'Sが実際にこの物件の周辺に住む18歳~69歳の男女を対象に、WEBアンケート調査を実施しています。内容には回答者の主観的な表現が含まれる場合があるほか、事実と異なる場合もございます。ご了承ください。
- 京都府京都市伏見区西町に住む人の口コミ60代男性
- 近くにスーパーがあり、アーケードのある商店街も有り、区役所保健所も有り、繁華街に行くのにも郊外に行くのにも京阪・近鉄が有り、便利な町だと思う。名神も近いし。
- 京都府京都市伏見区聚楽町2丁目に住む人の口コミ50代女性
- 最近、近所のアパートのゴミ出しの仕方が汚くてゴミ出しの日は通りが汚れて汚い。
- 京都府京都市伏見区下鳥羽西柳長町に住む人の口コミ20代女性
- 保育園、小学校が近くにある。買い物が出来るスーパーや病院も近くにあるので生活しやすい。最寄りの駅が少し遠いのでちょっと不便。
- 京都府京都市伏見区舞台町に住む人の口コミ60代男性
- 古都の佇まいを色濃く残している街並みがある。道は狭くて車で移動するには不便な点もあるが,公園や社寺も近くにあり緑が多い。ただし,は盗難やひったくりなどの犯罪が多く治安や子育て環境面で不満がある。
- 京都府京都市伏見区下中町に住む人の口コミ40代女性
- 駅近、商店街も近く、川沿いの景色も良く、治安も悪くない。地域のお祭り、歴史もある街で市役所、図書館、多種の銀行もあり便利な町です。私は車椅子必須ですがバリアフリーの店も増えました。
- 京都府京都市伏見区横大路橋本に住む人の口コミ60代男性
- 京都伏見。医者、コンビニ、歯医者、は多い。大病院も豊富。スーパーも大手筋には5軒集中。バス、近鉄、京阪、地下鉄が乗り入れ。公園、少ない。空気は良くない。観光都市で、14の世界遺産があり、イベント多い。
- 京都府京都市伏見区葭島矢倉町に住む人の口コミ60代男性
- 観光地であり商店街が近く学校・病院が近い 特急電車が停車する
- 京都府京都市伏見区横大路天王前に住む人の口コミ30代女性
- 大通りから少し入った所なので、車通りが比較的少ないが、工場が多く点在しているのでトラックの騒音が気になる。スーパーが遠い。
- 京都府京都市伏見区舞台町に住む人の口コミ40代女性
- 閑静住宅街。スーパー、薬局、コンビニ、ジム、バス停が、近い。
- 京都府京都市伏見区聚楽町2丁目に住む人の口コミ40代男性
- スーパーが複数あり値段を比べて楽しめて買い物ができる。道の幅は狭いのに交通量が多い事があり歩行者にとっては危険な場所がある。
物件概要
- 建物構造
- RC(鉄筋コンクリート)
- 駐車場
- 空無
- 総戸数
- 34戸
- 契約形態
- -
- 契約期間
- 2年間
- 更新料
- 新賃料の1ヶ月分
- その他費用
- 鍵交換費用:26,400円、室内清掃費用:38,500円、駐輪ステッカー代:330円、口座振替手数料:550円、入居者サポート:19,800円
- 保証会社
加入要
保証会社:ライフ保証
保証会社利用料:初回:月額賃料等の50%、更新時:1万円/1年(保証人無時80%要)
- 住宅保険
- 要
- 管理
- 管理員:巡回
- LIFULL HOME'S
物件番号 - 0100017-0218986
- 自社管理番号
- 68738-106-11
- 取引態様
- 仲介
- 会社名
- (株)京都ライフ 小倉店
営業スタッフコメント

(株)京都ライフ 小倉店
中江
営業の立場ではなくお客様の立場でご紹介。
業界経験3年
資格少額短期保険募集人
- 会社実績や特徴・サービス情報
- 宇治市、城陽市、京田辺市、京都南エリアのお部屋探しは「京都ライフ」へお任せ下さい。仲介手数料は一律、家賃の50%(税別)。来客用ガレージも完備。学生様の新生活も全力でサポートいたします。
宇治市、城陽市、京田辺市、京都南エリアのお部屋探しは「京都ライフ」へお任せ下さい。仲介手数料は一律、家賃の50%(税別)。来客用ガレージも完備。学生様の新生活も全力でサポートいたします。
- 電話でお問合せ(通話無料)
お問合せ先 :(株)京都ライフ 小倉店
不動産会社情報
(株)京都ライフ 小倉店京都ライフ小倉店
京都府宇治市小倉町神楽田21-5 ア‐バネックス小倉ビル1F
近鉄京都線 小倉駅 徒歩2分
- 営業時間
- 09:30~19:00
- 定休日
- 年中無休(盆正月を除く)
京都全域くまなくネット!京都でのお部屋探しは創業40年の「かんたんお部屋探しは・・・京都ライフへ!!
- 店舗の特徴
- 賃貸管理業務
- 24時間管理物件取扱い
- リフォーム対応
- 引越し業者紹介可
- 年中無休
- 保証人不要な物件あり
- 法人契約取扱い
- 駅から歩いて3分以内
電話でお問合せお客様の電話番号は不動産会社には通知されません
- 不動産会社に
つながります
お客様の電話番号は不動産会社に通知されません
- ※光IP電話、及びIP電話からはご利用になれません
- ※お電話によるお問合せは、店舗営業時間内にお願いします。つながらない場合は、お問合せフォームよりお問合せください
- ※不動産会社がお電話に出られなかった場合、お問合せいただいた後に不動産会社より折り返しのお電話がある場合がございます(お客様が非通知設定した場合は対象外です)
- ※株式会社LIFULLは電話会社が提供するサービスを介してお客様の発信者番号を受領後、折り返し専用の電話番号を発番してお問合せの不動産会社に通知します(お客様の発信者番号がお問合せの不動産会社に通知されることはございません)
- ※携帯電話からお問合せいただいた方に対し、株式会社LIFULLは電話会社が提供するメッセ―ジサービスを介してお客様の発信者番号を受領後、ショートメッセージ(SMS)またはLINE通知メッセージによるお問合せ内容に関する通知をお届けする場合があります
- ※お客様が通話中に不動産会社にお伝えになったお客様の個人情報及び、電話会社が発番する折り返し専用の電話番号は、お問合せ先不動産会社が資料送付・電子メール送信・電話連絡などの目的で保管する可能性があります。お問合せ先不動産会社が保管する個人情報の取扱いについては、各不動産会社に直接お問合せください
- ※株式会社LIFULLでは本サービスを円滑に運用するために、お客様の発信者番号をサービスご利用の控えとして一定期間保管いたします
- ※上記および株式会社LIFULLの個人情報の取扱い方針に同意のうえ、お電話ください
【LIFULL HOME'S物件番号】0100017-0218986【自社管理番号】68738-106-11
オンライン対応
オンライン相談に対応している物件です

「オンライン内見」「オンライン相談」「IT重説」とは?
物件の内見や不動産会社スタッフとの相談、契約前の重要事項説明をオンライン(ビデオ通話)で行うことができるサービスです。
オンライン内見
ビデオ通話で現地(物件)にいる不動産会社スタッフと映像・音声を使ってリアルタイムで会話しながら内見ができます。
オンライン相談
「物件について聞きたいことがある」など不動産会社スタッフへの相談もビデオ通話で行うことができます。
IT重説
契約前の重要事項説明(重説)をビデオ通話で行うことができます。
利用時の注意事項
- ビデオ通話については各不動産会社指定のものとなります。
- ビデオ通話利用時には通信が発生します。従量課金制通信サービスや通信量に上限があるネット回線・プランを利用する場合は、通信量にご注意ください。
- 通信速度やアプリの設定によってはビデオ通話の画質が低下することがあります。安定した画質で利用するためにも、Wi-Fi環境下での利用を推奨します。
- ご利用のビデオ通話アプリによっては、対象のOSやブラウザに制限がある場合があります。詳しくはお問合せ先不動産会社にご確認ください。
初期費用・月額費用をあわせて確認!この物件に住んだときの費用めやす
めやすを見るこの物件に住んだときの費用めやす
- 初期費用
- 月額費用
- 追加費用※ご確認ください
追加で費用が
かかる場合があります
必ずご確認ください
初期費用めやす約0円
追加で費用がかかります(※)敷金
0
- 礼金
126,000
賃料+共益費・管理費の1ヶ月分として換算
賃料の1ヶ月分+税として換算。不動産会社によって金額が異なるため正確な金額は不動産会社にお問合せください
※追加費用もチェック!
これらの項目以外にも費用がかかる場合があります。正確な金額は不動産会社にお問合せください。
- 初期費用
- 鍵交換費:26,400円
- 室内清掃費:38,500円
- 火災保険費:不動産会社に要確認
- その他
- 駐輪ステッカー代:330円
- 口座振替手数料:550円
- 入居者サポート:19800円
- 保証会社
- 初回:月額賃料等の50%、更新時:1万円/1年(保証人無時80%要)
不動産会社より
設備充実の1LDK物件 お1人でもファミリーでも便利な大手筋商店街すぐ
- 保存する
- 共有する
- ※各種情報と現状に差異がある場合は、現状優先となります
- ※不動産会社が入力した情報を基に物件の位置を表示しています。詳しくは不動産会社までお問合せください
- ※不動産会社の方からの上記電話番号によるお問合せはお断りしております。こちら不動産会社詳細からお問合せください
- ※LIFULL HOME'Sは物件鮮度No.1を目指していきます。閲覧中の物件が「成約済である」「実際の物件情報と異なる点がある」などの場合、「掲載110番」からお問合せください
- ※QRコードは株式会社デンソーウェーブの登録商標です
したい暮らしのタグから探す
この物件を取扱う他の会社
LIFULL HOME'Sでは、主要項目が同一の物件をまとめて表示しています。所在地や営業時間、掲載画像等から不動産会社を選んでお問合せください。
LIFULL HOME'S 地図・周辺情報
買い物
- ファミリーマート 伏見片原町店
- 業務スーパー 大手筋店
- ダックス伏見肥後町店
- セブンイレブン 伏見南部町店
- コープ 桃山
グルメ
- 餃子の王将 大手筋店
- サンマルクカフェ京都伏見桃山店
- モスバーガー 伏見大手筋店
- カフェ・ベローチェ伏見桃山店
- なか卯 伏見桃山店
育児・教育
- みどり保育園
- 京都市立伏見板橋小学校
- 京都市立伏見中学校
- 板橋保育園
- 国立京都教育大学教育学部附属桃山小学校
医療
- 社会福祉法人浩照会伏見桃山総合病院
- 社会医療法人岡本病院(財団)伏見岡本病院
- 医療法人社団蘇生会総合病院
- 医療法人社団蘇生会蘇生会総合病院介護医療院
- 社会医療法人弘仁会大島病院
公共施設・郵便局
- 京都御駕篭郵便局
- 京都市伏見中央図書館
- 京都市伏見区役所
- 京都西大手筋郵便局
- 京都市向島図書館
公園
- 三栖公園
- 下鳥羽公園
- 宇治川公園
- 竹田公園
- 桂川緑地久我橋東詰公園
利用可能な駅
- 徒歩10分以内
京阪本線
- 伏見桃山駅徒歩10分
- すべての駅
近鉄京都線
- 桃山御陵前駅徒歩12分
- 近鉄丹波橋駅徒歩14分
- 伏見駅徒歩21分
- 竹田駅徒歩33分
- 向島駅3.3km
京阪本線
- 丹波橋駅徒歩14分
- 中書島駅徒歩14分
- 墨染駅徒歩30分
- 藤森駅3.3km
JR奈良線
- 桃山駅徒歩19分
- JR藤森駅徒歩37分
京阪宇治線
- 観月橋駅徒歩23分
- 桃山南口駅3.1km
- 周辺情報は2023年07月21日時点のものになります。
- 周辺情報は、参考情報としてのみご利用ください(周辺情報は、株式会社LIFULLが地図情報の提供事業者から提供を受けた情報とLIFULL HOME'Sの物件情報に基づき、独自の方法で抽出し提供しているものです。周辺情報は、移転や閉鎖等により情報が最新ではない、または正しくない場合がありますが、地図情報の提供事業者から提供された情報をそのまま周辺情報として表示しているため、正確かつ最新の情報へ修正することができないことがあります。)
- 周辺情報は、株式会社LIFULLが掲載するものであり、不動産物件情報を掲載している不動産会社が掲載するものではありません
- 交通情報の一部については、株式会社LIFULLが掲載するものであり、不動産物件情報を掲載している不動産会社が掲載するものではない場合があります。交通情報に関する質問などは株式会社LIFULLにお問合せください












