LIFULL HOME'Sは物件鮮度No.1!※評価について
プラネシア星の子三条油小路 7階
9.4万円/管理費等8,000円
2日前 更新
画像一覧
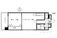
1/30間取り
2/30外観
3/30外観
4/30外観
5/30リビング/ダイニング
6/30リビング/ダイニング
7/30寝室
8/30寝室
9/30キッチン
10/30キッチン
11/30浴室
12/30浴室
13/30トイレ
14/30洗面
15/30収納
16/30収納
17/30収納
18/30収納
19/30設備
20/30設備
21/30設備
22/30玄関
23/30バルコニー
24/30エントランス
25/30エントランス
26/30エントランス
27/30駐車場
28/30その他
29/30その他
30/30周辺
間取り
外観
外観
外観
リビング/ダイニング
リビング/ダイニング
寝室
寝室
キッチン
キッチン
浴室
浴室
トイレ
洗面
収納
収納
収納
収納
設備
設備
設備
玄関
バルコニー
エントランス
エントランス
エントランス
駐車場
その他
その他
周辺
LINEチャットでも 相談できます
お問合せ先 :株式会社ALIVE賃貸住宅サービス FC京都駅前店
引越し料金割引
引越見積もり料金が通常より30%オフになります
- 利用条件
- 株式会社ALIVE賃貸住宅サービス FC京都駅前店で利用可
- 他特典との併用可
利用方法
来店時に本特典の画面をスマートフォンやタブレットでスタッフに提示、または画面印刷した用紙を提示ください。
有効期限 2025年12月22日まで
初期費用をクレジットカード支払い可。分割払い・リボ払い対応。オンライン内覧・オンライン申込可能。
物件のこだわり/設備・条件
新築(非該当)
2階以上の物件(該当)
南向き(非該当)
駐車場(非該当)
オートロック(該当)
エアコン(該当)
バス・トイレ別(該当)
追焚機能(非該当)
フローリング(該当)
ペット相談(非該当)
位置
角部屋入居条件
二人入居可キッチン/バス・トイレ
設備・サービス
オートロック、防犯カメラ、エアコン、クローゼット、シューズボックス、CS対応、BS対応、光ファイバー、公営水道、都市ガス、下水、フローリング、バルコニー、室内洗濯機置場、タイル貼り、エレベーター、ゴミ出し24時間OK、宅配ボックス、駐輪場ありその他
初期費用カード決済可、住まい探し特典あり備考
水道代2000円 町会費300円 法人可
物件周辺の生活情報
学校
- 洛中小学校(791m)
- 洛風中学校(992m)
買い物
- コンビニ(306m)
- スーパー(620m)
その他施設
- 総合病院(442m)
- 中京区役所(460m)
交通
- 京都市営烏丸線 烏丸御池駅 徒歩8分
- 普通(停車)
- 急行(停車)
- 京都地下鉄東西線 二条城前駅 徒歩7分
- 普通(停車)
※急行等の停車駅情報について
急行等の停車駅に関するデータは、随時更新をしておりますが、最新の内容であることを保証するものではありません。
最新かつ正確な情報につきましては、各鉄道会社のウェブサイトにてご確認ください
物件周辺の口コミ
- 京都府京都市中京区三条通油小路下るに住む人の口コミ50代女性
生活する上で便利がよく、安心安全に暮らせる。特に困ることがない。
口コミを見る
この物件周辺に住む人の口コミ
口コミは、LIFULL HOME'Sが実際にこの物件の周辺に住む18歳~69歳の男女を対象に、WEBアンケート調査を実施しています。内容には回答者の主観的な表現が含まれる場合があるほか、事実と異なる場合もございます。ご了承ください。
- 京都府京都市中京区三条通油小路下るに住む人の口コミ50代女性
- 生活する上で便利がよく、安心安全に暮らせる。特に困ることがない。
- 京都府京都市中京区三条通油小路下るに住む人の口コミ40代女性
- 買い物がしやすく、駐車場代は高いが、義親の車を借りて子育てするには最適。義両親と近所にするでいるので近所の人とも顔見知りになり、これ以上ない快適な子供にとっても良い生活
- 京都府京都市中京区三条通油小路下るに住む人の口コミ50代女性
- 買い物するには近所に店が多くて便利。お互いの留守の時など近所で注意しあっている。
- 京都府京都市中京区三条通油小路下るに住む人の口コミ40代女性
- 自然が少ないが交通の便が良く、買い物には困らない。銀行や郵便局も近くにたくさんあり、飲みに行っても徒歩で帰れる、しかし自転車移動が必須。車が多い、車の維持費が高く遠くに出かける時に困る
- 京都府京都市中京区聚楽廻西町に住む人の口コミ40代男性
- 会社や学校が近く、通勤通学で全くストレスを感じない。これが最大の理由。20分以内で徒歩で到着可。この環境は手放せない。
- 京都府京都市上京区仁和寺街道六軒町西入下る東入に住む人の口コミ30代男性
- 割とメガバンクの銀行も近いし、コンビニも充実しているし、ほとんど何でも揃っているので。
- 京都府京都市上京区出水通千本東入に住む人の口コミ60代女性
- 物価はやや高いが、衣食住揃っていて住みやすいし、生活の基盤もしっかりしている。
- 京都府京都市中京区衣棚通御池上るに住む人の口コミ30代女性
- 暮らしやすいが立地が良いため家賃が高い。家賃以外は満足しています。
- 京都府京都市上京区松屋町通丸太町下る2筋目西入に住む人の口コミ60代男性
- 歴史的な建造物の近くなので借景できて良い。ただし観光客が多く迷惑することもある。
- 京都府京都市上京区下ノ森通下立売上る3丁目東入に住む人の口コミ40代男性
- 100%満足はしていないが、住んでいて不便に思うことはない。それなりのものがそれなりにそろう。ただ比較的物価が高い
物件概要
- 建物構造
- RC(鉄筋コンクリート)
- 駐車場
- 無
- 総戸数
- 41戸
- 契約形態
- -
- 契約期間
- 2年間
- 更新料
- 新賃料の2ヶ月分
- その他費用
- -
- 保証会社
- -
- 住宅保険
- 要
- 管理
- 管理員:巡回
- LIFULL HOME'S
物件番号 - 0120992-0219107
- 自社管理番号
- 11688284
- 取引態様
- 仲介
- 会社名
- 株式会社ALIVE賃貸住宅サービス FC京都駅前店
営業スタッフコメント

株式会社ALIVE賃貸住宅サービス FC京都駅前店係長
盛陽平
物件博士と呼ばれています。ベテランならではの知識で安心なお部屋探しを
業界経験10年
資格宅地建物取引士
- 会社実績や特徴・サービス情報
- 京都でお部屋探しなら、賃貸住宅サービス京都駅前店へ。幅広い知識のスタッフ多数在籍しており、京都エリア全域探せます。初期費用のお支払いにはクレジットカードの利用が可能です。ぜひ楽しいお部屋探しを当店で お待ちしております。
京都でお部屋探しなら、賃貸住宅サービス京都駅前店へ。幅広い知識のスタッフ多数在籍しており、京都エリア全域探せます。初期費用のお支払いにはクレジットカードの利用が可能です。ぜひ楽しいお部屋探しを当店で お待ちしております。
- 電話でお問合せ(通話無料)
お問合せ先 :株式会社ALIVE賃貸住宅サービス FC京都駅前店
不動産会社情報
株式会社ALIVE賃貸住宅サービス FC京都駅前店

京都府京都市下京区東塩小路町544−1 野口ビル1F
JR東海道・山陽本線 京都駅 徒歩1分
- 営業時間
- 10:00~19:00
- 定休日
- 無し(年末年始休み)
優良店認定
京都でお部屋探しは賃貸住宅サービス京都駅前店へ!当店ならではの特別条件のお部屋が多数あります。賃貸だけでなく総合不動産として、売買・管理・リフォーム全てご相談ください。
- 店舗の特徴
- 賃貸管理業務
- リフォーム対応
- 年中無休
- 法人契約取扱い
- 女性スタッフ対応可
- 駅から歩いて3分以内
- 外国語を話せるスタッフ在籍
電話でお問合せお客様の電話番号は不動産会社には通知されません
- 不動産会社に
つながります
お客様の電話番号は不動産会社に通知されません
- ※光IP電話、及びIP電話からはご利用になれません
- ※お電話によるお問合せは、店舗営業時間内にお願いします。つながらない場合は、お問合せフォームよりお問合せください
- ※不動産会社がお電話に出られなかった場合、お問合せいただいた後に不動産会社より折り返しのお電話がある場合がございます(お客様が非通知設定した場合は対象外です)
- ※株式会社LIFULLは電話会社が提供するサービスを介してお客様の発信者番号を受領後、折り返し専用の電話番号を発番してお問合せの不動産会社に通知します(お客様の発信者番号がお問合せの不動産会社に通知されることはございません)
- ※携帯電話からお問合せいただいた方に対し、株式会社LIFULLは電話会社が提供するメッセ―ジサービスを介してお客様の発信者番号を受領後、ショートメッセージ(SMS)またはLINE通知メッセージによるお問合せ内容に関する通知をお届けする場合があります
- ※お客様が通話中に不動産会社にお伝えになったお客様の個人情報及び、電話会社が発番する折り返し専用の電話番号は、お問合せ先不動産会社が資料送付・電子メール送信・電話連絡などの目的で保管する可能性があります。お問合せ先不動産会社が保管する個人情報の取扱いについては、各不動産会社に直接お問合せください
- ※株式会社LIFULLでは本サービスを円滑に運用するために、お客様の発信者番号をサービスご利用の控えとして一定期間保管いたします
- ※上記および株式会社LIFULLの個人情報の取扱い方針に同意のうえ、お電話ください
【LIFULL HOME'S物件番号】0120992-0219107【自社管理番号】11688284
オンライン対応
オンライン内見・オンライン相談・IT重説に対応している物件です

「オンライン内見」「オンライン相談」「IT重説」とは?
物件の内見や不動産会社スタッフとの相談、契約前の重要事項説明をオンライン(ビデオ通話)で行うことができるサービスです。
オンライン内見
ビデオ通話で現地(物件)にいる不動産会社スタッフと映像・音声を使ってリアルタイムで会話しながら内見ができます。
オンライン相談
「物件について聞きたいことがある」など不動産会社スタッフへの相談もビデオ通話で行うことができます。
IT重説
契約前の重要事項説明(重説)をビデオ通話で行うことができます。
利用時の注意事項
- ビデオ通話については各不動産会社指定のものとなります。
- ビデオ通話利用時には通信が発生します。従量課金制通信サービスや通信量に上限があるネット回線・プランを利用する場合は、通信量にご注意ください。
- 通信速度やアプリの設定によってはビデオ通話の画質が低下することがあります。安定した画質で利用するためにも、Wi-Fi環境下での利用を推奨します。
- ご利用のビデオ通話アプリによっては、対象のOSやブラウザに制限がある場合があります。詳しくはお問合せ先不動産会社にご確認ください。
初期費用・月額費用をあわせて確認!この物件に住んだときの費用めやす
めやすを見るこの物件に住んだときの費用めやす
- 初期費用
- 月額費用
- 追加費用※ご確認ください
追加で費用が
かかる場合があります
必ずご確認ください
初期費用めやす約0円
追加で費用がかかります(※)敷金
0
- 礼金
94,000
- 保証金
0
賃料+共益費・管理費の1ヶ月分として換算
賃料の1ヶ月分+税として換算。不動産会社によって金額が異なるため正確な金額は不動産会社にお問合せください
※追加費用もチェック!
これらの項目以外にも費用がかかる場合があります。正確な金額は不動産会社にお問合せください。
- 初期費用
- 鍵交換費:不動産会社に要確認
- 室内清掃費:不動産会社に要確認
- 火災保険費:不動産会社に要確認
- 保証会社
- 不動産会社に要確認
不動産会社より
初期費用をクレジットカード支払い可。分割払い・リボ払い対応。オンライン内覧・オンライン申込可能。
水道代2000円 町会費300円 法人可
- 保存する
- 共有する
- ※各種情報と現状に差異がある場合は、現状優先となります
- ※不動産会社が入力した情報を基に物件の位置を表示しています。詳しくは不動産会社までお問合せください
- ※不動産会社の方からの上記電話番号によるお問合せはお断りしております。こちら不動産会社詳細からお問合せください
- ※LIFULL HOME'Sは物件鮮度No.1を目指していきます。閲覧中の物件が「成約済である」「実際の物件情報と異なる点がある」などの場合、「掲載110番」からお問合せください
- ※QRコードは株式会社デンソーウェーブの登録商標です
したい暮らしのタグから探す
LIFULL HOME'S 地図・周辺情報
買い物
- セブンイレブン 京都堀川三条店
- ライフ 四条烏丸店
- ダックス京都御池店
- ローソン 三条堀川店
- フレスコ プチ新町御池店
グルメ
- なか卯 二条城店
- めしや宮本むなし 御池店
- モスバーガー 烏丸御池店
- まいどおおきに食堂 四条西洞院食堂
- スターバックスコーヒー京都三条烏丸ビル店
育児・教育
- 光明幼稚園
- 京都市立洛中小学校
- 京都市立洛風中学校
- 六満こども園
- 京都市立高倉小学校
医療
- 医療法人知音会京都新町病院
- 山元病院
- 医療法人毛利病院
- 医療法人財団足立病院
- 京都第二赤十字病院
公共施設・郵便局
- 京都西洞院三条郵便局
- 京都市こどもみらい館子育て図書館
- 京都市中京区役所
- 京都新町蛸薬師郵便局
- 京都市下京図書館
公園
- 梅屋広場公園
- 光徳公園
- 京都御苑
- 梅小路公園
- 梅小路公園
利用可能な駅
- 徒歩10分以内
京都地下鉄東西線
- 二条城前駅徒歩7分
京都市営烏丸線
- 烏丸御池駅徒歩8分
- すべての駅
阪急京都本線
- 大宮駅徒歩11分
- 烏丸駅徒歩14分
- 京都河原町駅徒歩24分
- 西院駅徒歩32分
京都地下鉄東西線
- 烏丸御池駅徒歩11分
- 京都市役所前駅徒歩23分
- 三条京阪駅徒歩25分
- 西大路御池駅徒歩31分
- 東山駅徒歩32分
京福電気鉄道嵐山本線
- 四条大宮駅徒歩13分
- 西大路三条駅徒歩27分
- 西院駅徒歩29分
- 山ノ内駅徒歩37分
京都市営烏丸線
- 四条駅徒歩14分
- 丸太町駅徒歩19分
- 五条駅徒歩24分
- 今出川駅3.2km
JR山陰本線
- 二条駅徒歩19分
- 丹波口駅徒歩31分
- 円町駅3.1km
- 梅小路京都西駅3.2km
京阪本線
- 三条駅徒歩26分
- 祇園四条駅徒歩28分
- 清水五条駅徒歩35分
- 神宮丸太町駅徒歩36分
- 七条駅3.4km
- 出町柳駅4.1km
JR東海道・山陽本線
- 京都駅3.1km
- 周辺情報は2023年07月21日時点のものになります。
- 周辺情報は、参考情報としてのみご利用ください(周辺情報は、株式会社LIFULLが地図情報の提供事業者から提供を受けた情報とLIFULL HOME'Sの物件情報に基づき、独自の方法で抽出し提供しているものです。周辺情報は、移転や閉鎖等により情報が最新ではない、または正しくない場合がありますが、地図情報の提供事業者から提供された情報をそのまま周辺情報として表示しているため、正確かつ最新の情報へ修正することができないことがあります。)
- 周辺情報は、株式会社LIFULLが掲載するものであり、不動産物件情報を掲載している不動産会社が掲載するものではありません
- 交通情報の一部については、株式会社LIFULLが掲載するものであり、不動産物件情報を掲載している不動産会社が掲載するものではない場合があります。交通情報に関する質問などは株式会社LIFULLにお問合せください













