LIFULL HOME'Sは物件鮮度No.1!※評価について
プラネシア星の子三条油小路 7階
9.4万円/管理費等8,000円
2時間前 更新
画像一覧
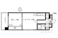
1/30間取り
2/30外観
3/30外観
4/30リビング/ダイニング
居室
5/30リビング/ダイニング
居室
6/30室内
洋室
7/30寝室
洋室
8/30寝室
洋室
9/30子供部屋
洋室
10/30キッチン
キッチン
11/30キッチン
キッチン
12/30キッチン
キッチン
13/30浴室
風呂
14/30浴室
風呂
15/30トイレ
トイレ
16/30洗面
洗面所
17/30収納
収納
18/30設備
下駄箱
19/30設備
冷蔵庫置場
20/30設備
洗濯機置場
21/30設備
下駄箱
22/30玄関
玄関
23/30バルコニー
ベランダ
24/30エントランス
エントランス
25/30その他
廊下
26/30その他
眺望
27/30その他
給湯パネル
28/30その他
廊下
29/30周辺
フレスコ 四条店まで450メートル
30/30周辺
ローソン 三条堀川店まで230メートル
間取り
外観
外観
リビング/ダイニング
リビング/ダイニング
室内
寝室
寝室
子供部屋
キッチン
キッチン
キッチン
浴室
浴室
トイレ
洗面
収納
設備
設備
設備
設備
玄関
バルコニー
エントランス
その他
その他
その他
その他
周辺
周辺
お問合せ先 :株式会社エリッツ 白梅町店
住まい探し特典内容
電気・ガス・インターネットの手続き代行のご案内します。
- 利用条件
- 株式会社エリッツ 白梅町店で利用可
- 他特典との併用可
利用方法
来店時に本特典の画面をスマートフォンやタブレットでスタッフに提示、または画面印刷した用紙を提示ください。
有効期限 なし
三条商店街まで歩いて行けて便利です。--パノラマ掲載--
基本情報
不動産用語- 賃料
- 9.4万円
- 管理費等
- 8,000円
初期費用などお気軽にお問合せください
- 敷金/礼金
- 無/1ヶ月
- 保証金/敷引・償却金
- -/-
- 交通
京都市営烏丸線 烏丸御池駅 徒歩7分
京都地下鉄東西線 二条城前駅 徒歩7分
阪急電鉄京都線 烏丸駅 徒歩10分
- 所在地
京都府京都市中京区油小路通三条下る三条油小路町
地図を見る- 築年月
- 2006年1月(築20年)
- 主要採光面
- 南西
- 専有面積
- 37.58㎡
- バルコニー面積
- -
- 所在階/階数
- 7階/8階建
- 現況
- 空家
- 入居可能時期
- 即時

人気物件はすぐに埋まってしまいます。
気になったらお早めにお問合せください。
- 情報公開日
2025/09/22
63日前 公開
- 情報更新日
2025/11/24
2時間前 更新
- 次回更新
予定日 - 2025/11/25
物件のこだわり/設備・条件
新築(非該当)
2階以上の物件(該当)
南向き(非該当)
駐車場(非該当)
オートロック(該当)
エアコン(該当)
バス・トイレ別(該当)
追焚機能(非該当)
フローリング(該当)
ペット相談可(該当)
位置
角部屋入居条件
二人入居可、ペット相談、即入居可キッチン/バス・トイレ
設備・サービス
オートロック、TVモニタ付インターホン、エアコン、クローゼット、シューズボックス、CATV、CS対応、BS対応、インターネット対応、インターネット使用料無料、公営水道、都市ガス、下水、フローリング、バルコニー、室内洗濯機置場、エレベーター、宅配ボックス、バイク置き場あり、駐輪場ありその他
住まい探し特典あり備考
新婚様に人気の1DKタイプのマンションです。キッチンガス2口コンロ設置可能です。壁一面収納で荷物もたっぷりはいります。三条商店街やスーパーフレスコがあり便利です。鉄筋コンクリート物件です。 ペット相談条件:小型犬(賃料2、000円アップ)・インターネット無料 ハウスクリーニング38500円(退去時)
物件周辺の生活情報
買い物
- コンビニ(230m)
- スーパー(450m)
交通
- 京都市営烏丸線 烏丸御池駅 徒歩7分
- 普通(停車)
- 急行(停車)
- 京都地下鉄東西線 二条城前駅 徒歩7分
- 普通(停車)
※急行等の停車駅情報について
急行等の停車駅に関するデータは、随時更新をしておりますが、最新の内容であることを保証するものではありません。
最新かつ正確な情報につきましては、各鉄道会社のウェブサイトにてご確認ください
物件周辺の口コミ
- 京都府京都市上京区猪熊通下長者町下るに住む人の口コミ30代男性
閑静な住宅街だが、繁華街へも徒歩圏内なので買い物には不自由なく暮らせる。
口コミを見る
この物件周辺に住む人の口コミ
口コミは、LIFULL HOME'Sが実際にこの物件の周辺に住む18歳~69歳の男女を対象に、WEBアンケート調査を実施しています。内容には回答者の主観的な表現が含まれる場合があるほか、事実と異なる場合もございます。ご了承ください。
- 京都府京都市上京区猪熊通下長者町下るに住む人の口コミ30代男性
- 閑静な住宅街だが、繁華街へも徒歩圏内なので買い物には不自由なく暮らせる。
- 京都府京都市中京区衣棚通御池上るに住む人の口コミ30代女性
- 暮らしやすいが立地が良いため家賃が高い。家賃以外は満足しています。
- 京都府京都市上京区日暮通丸太町上るに住む人の口コミ30代女性
- スーパー、コンビニが近い。市バスのバス停が近いので、どこにでも行きやすい
- 京都府京都市中京区新町通御池下るに住む人の口コミ20代女性
- 交通の便も良くスーパー、コンビニ、薬局も近くにあり非常に住みやすい
- 京都府京都市上京区出水通黒門東入に住む人の口コミ30代女性
- 歴史ある建造物や寺社仏閣が多く、自分の趣味にぴったりだから。
- 京都府京都市上京区下立売通新町西入に住む人の口コミ20代女性
- スーパーやコンビニが近くにあり、京都御所があることにより緑も多くあるから。警察本部などもあり治安もいいと思う。
- 京都府京都市中京区丸太町通西洞院西入に住む人の口コミ30代女性
- 駅から徒歩五分以内ではないが、スーパーやクリーニング店など生活に必要な施設が徒歩圏内で、比較的治安がよく、観光客も多くなく静かであり、住みやすいから。
- 京都府京都市上京区一条通東堀川東入上るに住む人の口コミ30代女性
- いわゆる不良と呼ばれるような下品な人がいない。どこに住んでいるか聞かれた際に、良いところに住んでいるという認知のある場所である。
- 京都府京都市中京区聚楽廻西町に住む人の口コミ30代女性
- 自治体はしっかりしていると思うことと、生活するのに便利な街。遊びに行くにも仕事などに行くにも、交通の便がいいので気に入っている。
- 京都府京都市中京区車屋町通丸太町下るに住む人の口コミ20代女性
- 電車、バスがたくさん通っていて交通の便がよく、ちかくにゆっくりできる公園もあり、商業施設にもすぐにいけてとても住みやすい街だからです。
物件概要
- 建物構造
- RC(鉄筋コンクリート)
- 駐車場
- 近隣 20,000円(税無) 物件からの距離326m
- 総戸数
- 41戸
- 契約形態
- -
- 契約期間
- 2年間
- 更新料
- 新賃料の1ヶ月分
- その他費用
- 鍵交換費用:19,800円、管理会社書類代(初回):18,700円、駐輪場代(月額):550円
- 保証会社
加入要
保証会社利用料:51、000円
- 住宅保険
- 要
- 管理
- -
- LIFULL HOME'S
物件番号 - 0117112-0290120
- 自社管理番号
- 33887-0701
- 取引態様
- 仲介
- 会社名
- 株式会社エリッツ 白梅町店
営業スタッフコメント

株式会社エリッツ 白梅町店
東出
丁寧な接客を心がけます。
業界経験5年
資格宅地建物取引士、少額短期保険募集人
- 会社実績や特徴・サービス情報
- 物件閲覧ありがとうございます。賃貸のエリッツ白梅町店です。京都市内の物件取り扱い数に自信あり。豊富な情報と確かな仲介力でお客様のご希望に添える物件をご紹介させて頂きます。学生様からご家族様まで幅広く対応しております。お部屋探しはエリッツ白梅町店までご依頼下さい。
物件閲覧ありがとうございます。賃貸のエリッツ白梅町店です。京都市内の物件取り扱い数に自信あり。豊富な情報と確かな仲介力でお客様のご希望に添える物件をご紹介させて頂きます。学生様からご家族様まで幅広く対応しております。お部屋探しはエリッツ白梅町店までご依頼下さい。
- 電話でお問合せ(通話無料)
お問合せ先 :株式会社エリッツ 白梅町店
不動産会社情報
株式会社エリッツ 白梅町店賃貸のエリッツ白梅町店

京都府京都市北区北野下白梅町44-4 サザンウインド1F
京福電気鉄道北野線 北野白梅町駅 徒歩2分
- 営業時間
- 10:00~19:00
- 定休日
- 水曜日(祝日を除く)、年末年始 ※部屋探しのお問い合わせは無休
優良店認定
JR円町駅・北野白梅町・立命館大学(衣笠キャンパス)・同志社大学・佛教大学・花園大学エリアでのお部屋探しはお任せください。単身からファミリーまで京都最多の店舗網により多数の物件を取り揃えています。
- 店舗の特徴
- 24時間管理物件取扱い
- 引越し業者紹介可
- 駐車場あり
- 系列店舗での対応可
- 社宅・寮物件取扱い
- オンライン相談可
- 保証人不要な物件あり
- 法人契約取扱い
- 女性スタッフ対応可
- 駅から歩いて3分以内
電話でお問合せお客様の電話番号は不動産会社には通知されません
- 不動産会社に
つながります
お客様の電話番号は不動産会社に通知されません
- ※光IP電話、及びIP電話からはご利用になれません
- ※お電話によるお問合せは、店舗営業時間内にお願いします。つながらない場合は、お問合せフォームよりお問合せください
- ※不動産会社がお電話に出られなかった場合、お問合せいただいた後に不動産会社より折り返しのお電話がある場合がございます(お客様が非通知設定した場合は対象外です)
- ※株式会社LIFULLは電話会社が提供するサービスを介してお客様の発信者番号を受領後、折り返し専用の電話番号を発番してお問合せの不動産会社に通知します(お客様の発信者番号がお問合せの不動産会社に通知されることはございません)
- ※携帯電話からお問合せいただいた方に対し、株式会社LIFULLは電話会社が提供するメッセ―ジサービスを介してお客様の発信者番号を受領後、ショートメッセージ(SMS)またはLINE通知メッセージによるお問合せ内容に関する通知をお届けする場合があります
- ※お客様が通話中に不動産会社にお伝えになったお客様の個人情報及び、電話会社が発番する折り返し専用の電話番号は、お問合せ先不動産会社が資料送付・電子メール送信・電話連絡などの目的で保管する可能性があります。お問合せ先不動産会社が保管する個人情報の取扱いについては、各不動産会社に直接お問合せください
- ※株式会社LIFULLでは本サービスを円滑に運用するために、お客様の発信者番号をサービスご利用の控えとして一定期間保管いたします
- ※上記および株式会社LIFULLの個人情報の取扱い方針に同意のうえ、お電話ください
【LIFULL HOME'S物件番号】0117112-0290120【自社管理番号】33887-0701
オンライン対応
オンライン内見・オンライン相談・IT重説に対応している物件です

「オンライン内見」「オンライン相談」「IT重説」とは?
物件の内見や不動産会社スタッフとの相談、契約前の重要事項説明をオンライン(ビデオ通話)で行うことができるサービスです。
オンライン内見
ビデオ通話で現地(物件)にいる不動産会社スタッフと映像・音声を使ってリアルタイムで会話しながら内見ができます。
オンライン相談
「物件について聞きたいことがある」など不動産会社スタッフへの相談もビデオ通話で行うことができます。
IT重説
契約前の重要事項説明(重説)をビデオ通話で行うことができます。
利用時の注意事項
- ビデオ通話については各不動産会社指定のものとなります。
- ビデオ通話利用時には通信が発生します。従量課金制通信サービスや通信量に上限があるネット回線・プランを利用する場合は、通信量にご注意ください。
- 通信速度やアプリの設定によってはビデオ通話の画質が低下することがあります。安定した画質で利用するためにも、Wi-Fi環境下での利用を推奨します。
- ご利用のビデオ通話アプリによっては、対象のOSやブラウザに制限がある場合があります。詳しくはお問合せ先不動産会社にご確認ください。
初期費用・月額費用をあわせて確認!この物件に住んだときの費用めやす
めやすを見るこの物件に住んだときの費用めやす
- 初期費用
- 月額費用
- 追加費用※ご確認ください
追加で費用が
かかる場合があります
必ずご確認ください
初期費用めやす約0円
追加で費用がかかります(※)敷金
0
- 礼金
94,000
賃料+共益費・管理費の1ヶ月分として換算
賃料の1ヶ月分+税として換算。不動産会社によって金額が異なるため正確な金額は不動産会社にお問合せください
※追加費用もチェック!
これらの項目以外にも費用がかかる場合があります。正確な金額は不動産会社にお問合せください。
- 初期費用
- 鍵交換費:19,800円
- 室内清掃費:不動産会社に要確認
- 火災保険費:不動産会社に要確認
- 月額費用
- 駐車場費:20,000円※近隣
- その他
- 管理会社書類代(初回):18700円
- 駐輪場代(月額):550円
- 保証会社
- 51、000円
不動産会社より
三条商店街まで歩いて行けて便利です。--パノラマ掲載--
新婚様に人気の1DKタイプのマンションです。キッチンガス2口コンロ設置可能です。壁一面収納で荷物もたっぷりはいります。三条商店街やスーパーフレスコがあり便利です。鉄筋コンクリート物件です。 ペット相談条件:小型犬(賃料2、000円アップ)・インターネット無料 ハウスクリーニング38500円(退去時)
- 保存する
- 共有する
- ※各種情報と現状に差異がある場合は、現状優先となります
- ※不動産会社が入力した情報を基に物件の位置を表示しています。詳しくは不動産会社までお問合せください
- ※不動産会社の方からの上記電話番号によるお問合せはお断りしております。こちら不動産会社詳細からお問合せください
- ※LIFULL HOME'Sは物件鮮度No.1を目指していきます。閲覧中の物件が「成約済である」「実際の物件情報と異なる点がある」などの場合、「掲載110番」からお問合せください
- ※QRコードは株式会社デンソーウェーブの登録商標です
この物件を取扱う他の会社
LIFULL HOME'Sでは、主要項目が同一の物件をまとめて表示しています。所在地や営業時間、掲載画像等から不動産会社を選んでお問合せください。
株式会社エリッツ 烏丸丸太町店
優良店認定
京都府京都市中京区丸太町通東洞院西入光り堂町426 ピア御所1階
京都市営烏丸線 丸太町駅 徒歩1分
- 営業時間
- 10:00~19:00
- 定休日
- 火・水曜日 (祝日を除く)、 ※部屋探しのお問い合わせは無休
株式会社エリッツ 椥辻店
優良店認定
京都府京都市山科区椥辻中在家町17 プラザ椥ノ辻1F
京都地下鉄東西線 椥辻駅 徒歩3分
- 営業時間
- 10:00~19:00
- 定休日
- 水曜日(祝日を除く)、年末年始 ※部屋探しのお問い合わせは無休
株式会社エリッツ 出町柳店
優良店認定
京都府京都市左京区田中関田町16−1 グランコスモ出町柳II 1F
京阪本線 出町柳駅 徒歩4分
- 営業時間
- 10:00~19:00
- 定休日
- 年中無休(年末年始を除く)
最近見た賃貸物件
LIFULL HOME'S 地図・周辺情報
買い物
- セブンイレブン 京都堀川三条店
- ライフ 四条烏丸店
- ダックス京都御池店
- ローソン 三条堀川店
- フレスコ プチ新町御池店
グルメ
- なか卯 二条城店
- めしや宮本むなし 御池店
- モスバーガー 烏丸御池店
- まいどおおきに食堂 四条西洞院食堂
- スターバックスコーヒー京都三条烏丸ビル店
育児・教育
- 光明幼稚園
- 京都市立洛中小学校
- 京都市立洛風中学校
- 六満こども園
- 京都市立高倉小学校
医療
- 医療法人知音会京都新町病院
- 山元病院
- 医療法人毛利病院
- 医療法人財団足立病院
- 京都第二赤十字病院
公共施設・郵便局
- 京都西洞院三条郵便局
- 京都市こどもみらい館子育て図書館
- 京都市中京区役所
- 京都新町蛸薬師郵便局
- 京都市下京図書館
公園
- 梅屋広場公園
- 光徳公園
- 京都御苑
- 梅小路公園
- 梅小路公園
利用可能な駅
- 徒歩10分以内
京都市営烏丸線
- 烏丸御池駅徒歩7分
京都地下鉄東西線
- 二条城前駅徒歩7分
- その他交通
- 阪急電鉄京都線 烏丸駅 徒歩10分
- 周辺情報は2023年07月21日時点のものになります。
- 周辺情報は、参考情報としてのみご利用ください(周辺情報は、株式会社LIFULLが地図情報の提供事業者から提供を受けた情報とLIFULL HOME'Sの物件情報に基づき、独自の方法で抽出し提供しているものです。周辺情報は、移転や閉鎖等により情報が最新ではない、または正しくない場合がありますが、地図情報の提供事業者から提供された情報をそのまま周辺情報として表示しているため、正確かつ最新の情報へ修正することができないことがあります。)
- 周辺情報は、株式会社LIFULLが掲載するものであり、不動産物件情報を掲載している不動産会社が掲載するものではありません
- 交通情報の一部については、株式会社LIFULLが掲載するものであり、不動産物件情報を掲載している不動産会社が掲載するものではない場合があります。交通情報に関する質問などは株式会社LIFULLにお問合せください








































