LIFULL HOME'Sは物件鮮度No.1!※評価について
過去掲載時の参考情報
以下の物件情報は広告情報ではありません。LIFULL HOME'Sが過去に掲載された物件情報を元に作成した参考情報です。
賃貸アパート物件概要
- お問合せ状況
- 現在この物件はお問合せできません
- 交通
- 所在地
東京都世田谷区南烏山3丁目3-11
地図を見る- 築年月
- 2019年3月(築7年)
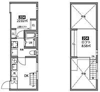
- 間取り
- 1DK
- 主要採光面
- 南
- 専有面積
- 21.1㎡
- 所在階/階数
- 2階/2階建
- 建物構造
- 木造
物件のこだわり/設備・条件
新築(非該当)
2階以上の物件(該当)
南向き(該当)
駐車場(非該当)
オートロック(該当)
エアコン(該当)
バス・トイレ別(該当)
追焚機能(非該当)
フローリング(該当)
ペット相談(非該当)
位置
角部屋入居条件
二人入居可キッチン/バス・トイレ
ガスコンロ設置済、コンロ二口、システムキッチン、専用バス、専用トイレ、バス・トイレ別、シャワー、シャワー付洗面化粧台、温水洗浄便座、浴室乾燥機、洗面所独立、浴室暖房設備・サービス
オートロック、防犯カメラ、24時間セキュリティ、TVモニタ付インターホン、エアコン、全居室収納、クローゼット、CATV、BS対応、光ファイバー、公営水道、都市ガス、フローリング、ロフト付き、室内洗濯機置場、照明器具付き、24時間換気システム、断熱窓(複層ガラス、内窓等)、全室フローリング、宅配ボックスその他
住まい探し特典あり
物件周辺の生活情報
買い物
- コンビニ(127m)
- スーパー(209m)
その他施設
- ヘルスケアセイジョー芦花公園南口店(384m)
交通
- 京王線 芦花公園駅 徒歩2分
- 普通(停車)
- 快速(通過)
- 区間急行(通過)
- 急行(通過)
- 特急(通過)
- 京王線 八幡山駅 徒歩12分
- 普通(停車)
- 快速(停車)
- 区間急行(通過)
- 急行(通過)
- 特急(通過)
※急行等の停車駅情報について
急行等の停車駅に関するデータは、随時更新をしておりますが、最新の内容であることを保証するものではありません。
最新かつ正確な情報につきましては、各鉄道会社のウェブサイトにてご確認ください
LIFULL HOME'S 地図・周辺情報
買い物
- セブンイレブン 杉並芦花公園店
- 地産マルシェ烏山店
- くすりセイジョー芦花公園店
- ローソンストア100 芦花公園店
- サミットストア 芦花公園駅前店
グルメ
- スシロー 烏山店
- ガスト 世田谷八幡山店(から好し取扱店)
- 藍屋 世田谷八幡山店
- バーミヤン 千歳烏山店
- マクドナルド 環八八幡山店
育児・教育
- 第二いちご保育園
- 世田谷区立芦花小学校
- 世田谷区立芦花中学校
- 芦花保育園
- 世田谷区立武蔵丘小学校
医療
- 医療法人社団緑眞会世田谷北部病院
- 東京都立中部総合精神保健福祉センター
- 社会福祉法人浴風会浴風会病院
- 東京都立松沢病院
- 昭和大学附属烏山病院
公共施設・郵便局
- 杉並上高井戸郵便局
- 世田谷区立烏山図書館
- 高井戸警察署
- 芦花公園駅前郵便局
- 世田谷区立粕谷図書館
公園
- 蘆花恒春園
- 東京都立高井戸公園
- 区立三井の森公園
- 希望丘公園
- 区立柏の宮公園
利用可能な駅
- 徒歩10分以内
京王線
- 芦花公園駅徒歩2分
- すべての駅
京王線
- 八幡山駅徒歩12分
- 千歳烏山駅徒歩12分
- 上北沢駅徒歩21分
- 桜上水駅徒歩31分
- 仙川駅徒歩31分
京王井の頭線
- 富士見ヶ丘駅徒歩23分
- 高井戸駅徒歩23分
- 久我山駅徒歩31分
- 浜田山駅徒歩34分
- 西永福駅3.5km
- 三鷹台駅3.5km
- 周辺情報は2023年07月21日時点のものになります。
- 周辺情報は、参考情報としてのみご利用ください(周辺情報は、株式会社LIFULLが地図情報の提供事業者から提供を受けた情報とLIFULL HOME'Sの物件情報に基づき、独自の方法で抽出し提供しているものです。周辺情報は、移転や閉鎖等により情報が最新ではない、または正しくない場合がありますが、地図情報の提供事業者から提供された情報をそのまま周辺情報として表示しているため、正確かつ最新の情報へ修正することができないことがあります。)
- 周辺情報は、株式会社LIFULLが掲載するものであり、不動産物件情報を掲載している不動産会社が掲載するものではありません
- 交通情報の一部については、株式会社LIFULLが掲載するものであり、不動産物件情報を掲載している不動産会社が掲載するものではない場合があります。交通情報に関する質問などは株式会社LIFULLにお問合せください















































