LIFULL HOME'Sは物件鮮度No.1!※評価について
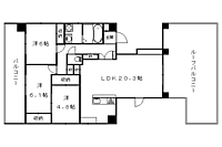
シルエラ御所南6階/605/1LDK/38.72㎡
シルエラ御所南6階/605/1LDK/38.72㎡
14.1万円/管理費等8,500円
8時間前 更新
画像一覧
1/30間取り
間取
2/30外観
3/30外観
4/30リビング/ダイニング
広く明るい室内。
5/30リビング/ダイニング
6/30リビング/ダイニング
7/30リビング/ダイニング
8/30リビング/ダイニング
9/30リビング/ダイニング
10/30リビング/ダイニング
11/30リビング/ダイニング
12/30リビング/ダイニング
13/30リビング/ダイニング
14/30リビング/ダイニング
15/30キッチン
2口IHコンロ付です。
16/30キッチン
17/30キッチン
18/30浴室
おしゃれな浴室。
19/30浴室
20/30浴室
21/30トイレ
清潔感のある洋式トイレ。
22/30洗面
便利なシャンプードレッサー。
23/30洗面
24/30洗面
25/30収納
たっぷり収納できます。
26/30設備
27/30玄関
大きなシューズボックス付きです。
28/30玄関
29/30バルコニー
広く開放感のあるバルコニー。
30/30周辺
京都御池柳馬場郵便局まで250m 御池中学校の西側
間取り
外観
外観
リビング/ダイニング
リビング/ダイニング
リビング/ダイニング
リビング/ダイニング
リビング/ダイニング
リビング/ダイニング
リビング/ダイニング
リビング/ダイニング
リビング/ダイニング
リビング/ダイニング
リビング/ダイニング
キッチン
キッチン
キッチン
浴室
浴室
浴室
トイレ
洗面
洗面
洗面
収納
設備
玄関
玄関
バルコニー
周辺
LINEチャットでも 相談できます
お問合せ先 :株式会社京都ライフ 二条駅前店
ペットは小型犬1匹のみ ペツトは小型犬1匹のみ、ネコは不可となります。
物件のこだわり/設備・条件
新築(非該当)
2階以上の物件(該当)
南向き(非該当)
駐車場(非該当)
オートロック(該当)
エアコン(該当)
バス・トイレ別(該当)
追焚機能(該当)
フローリング(該当)
ペット相談可(該当)
位置
角部屋入居条件
二人入居可、ペット相談キッチン/バス・トイレ
設備・サービス
オートロック、防犯カメラ、TVモニタ付インターホン、エアコン、床暖房、シューズボックス、CS対応、BS対応、インターネット使用料無料、公営水道、都市ガス、下水、フローリング、バルコニー、室内洗濯機置場、エレベーター、ゴミ出し24時間OK、駐輪場あり
物件周辺の生活情報
学校
- 御所南小学校(570m)
- 京都御池中学校(280m)
買い物
- コンビニ(445m)
- スーパー(790m)
その他施設
- 総合病院(1,560m)
- 銀行(190m)
- 京都府警察本部(1,660m)
交通
- 京都地下鉄東西線 京都市役所前駅 徒歩3分
- 普通(停車)
- 京都市営烏丸線 烏丸御池駅 徒歩8分
- 普通(停車)
- 急行(停車)
※急行等の停車駅情報について
急行等の停車駅に関するデータは、随時更新をしておりますが、最新の内容であることを保証するものではありません。
最新かつ正確な情報につきましては、各鉄道会社のウェブサイトにてご確認ください
物件周辺の口コミ
- 京都府京都市中京区御池通麩屋町東入に住む人の口コミ50代女性
夫の会社に歩いて5分。地下鉄の駅も近く、バス路線も多い。少し南になると観光客でいっぱいだが、このあたりは静か。医者や買い物の便もいい。
口コミを見る
この物件周辺に住む人の口コミ
口コミは、LIFULL HOME'Sが実際にこの物件の周辺に住む18歳~69歳の男女を対象に、WEBアンケート調査を実施しています。内容には回答者の主観的な表現が含まれる場合があるほか、事実と異なる場合もございます。ご了承ください。
- 京都府京都市中京区御池通麩屋町東入に住む人の口コミ50代女性
- 夫の会社に歩いて5分。地下鉄の駅も近く、バス路線も多い。少し南になると観光客でいっぱいだが、このあたりは静か。医者や買い物の便もいい。
- 京都府京都市中京区御池通麩屋町東入に住む人の口コミ30代女性
- 職場に近く、ショッピングや映画などの娯楽施設も近いので利便性が良い。治安も良いので住みやすい。
- 京都府京都市中京区新町通押小路下るに住む人の口コミ30代女性
- ・交通の便が良い・人気学区である・ビジネス街、商業エリアから少し離れている
- 京都府京都市中京区姉小路通新町東入に住む人の口コミ50代男性
- 烏丸御池駅から徒歩2分。地下鉄東西線と烏丸線が利用できる。バスも利用できる。車不要の生活は、金がかからない。
- 京都府京都市上京区西洞院通上長者町下るに住む人の口コミ60代男性
- 官庁街にも近く治安は良好 緑も多く落ち着いた街並。地下鉄の駅が徒歩圏の他バス便も数系統がある
- 京都府京都市中京区丸太町通西洞院西入に住む人の口コミ30代女性
- 駅から徒歩五分以内ではないが、スーパーやクリーニング店など生活に必要な施設が徒歩圏内で、比較的治安がよく、観光客も多くなく静かであり、住みやすいから。
- 京都府京都市中京区油小路通竹屋町下る西入に住む人の口コミ40代女性
- 乳児からお年寄りまで、人生の様々なライフステージを充実させるモデル地域になっており、公教育や介護などが充実している。
- 京都府京都市中京区室町通姉小路下るに住む人の口コミ60代女性
- 環境が一筋通りを入るだけで違う。(一方通行とか店の少なさ。店のレベル。子供の時から住んでいるので安心感がある。
- 京都府京都市中京区油小路通竹屋町下る西入に住む人の口コミ20代女性
- 駅まで歩いて10分だし、河原町まで電車ですぐ行けるので美容室などにも行きやすいと感じるから
- 京都府京都市中京区三条通油小路下るに住む人の口コミ40代女性
- 自然が少ないが交通の便が良く、買い物には困らない。銀行や郵便局も近くにたくさんあり、飲みに行っても徒歩で帰れる、しかし自転車移動が必須。車が多い、車の維持費が高く遠くに出かける時に困る
物件概要
- 建物構造
- RC(鉄筋コンクリート)
- 駐車場
- 無
- 総戸数
- 28戸
- 契約形態
- -
- 契約期間
- 2年間
- 更新料
- 新賃料の1ヶ月分
- その他費用
- ゴミ処理代:850円、駐輪ステッカー代:1,000円
- 保証会社
加入要
保証会社:オリコフォレント
保証会社利用料:初回:月額賃料等の50%、月額:システム利用料330円、更新時:1万円/1年
- 住宅保険
- 要
- 管理
- 管理員:巡回
- LIFULL HOME'S
物件番号 - 0142941-0185379
- 自社管理番号
- 05A86-605-27
- 取引態様
- 仲介
- 会社名
- 株式会社京都ライフ 二条駅前店
営業スタッフコメント

株式会社京都ライフ 二条駅前店
酒井栞
素晴らしいお部屋に出会えるまで全力でサポート致します!
業界経験2年
資格少額短期保険募集人
- 会社実績や特徴・サービス情報
- 京都市内部屋付け数3年連続1位。(株式会社全国賃貸住宅新聞調べ) 当店はJR山陰線、地下鉄東西線の二条駅から3分に立地し、通勤・通学のアクセスの良さ、近隣施設の充実から近年住みたい街と言われる二条駅すぐの所に店舗を構えております。 各エリア専門のスタッフが揃っておりますので、二条駅周辺だけでなく、京都市全域、向日市・長岡京市・宇治市など幅広くご紹介させて頂きます。 社会人のご単身・ファミリー様をはじめ、先端科学大学・同志社大学・立命館大学・京都大学など大学生のお部屋探しも全力でサポートさせて頂きます。 創業40年、地域密着に拘らせて頂いた京都最大級の物件情報をもとに、 誠心誠意、ご満足頂けるお部屋をご紹介させて頂きます。 お部屋を探しは京都ライフ 二条駅前店へ、お気軽にお立ち寄りください
京都市内部屋付け数3年連続1位。(株式会社全国賃貸住宅新聞調べ) 当店はJR山陰線、地下鉄東西線の二条駅から3分に立地し、通勤・通学のアクセスの良さ、近隣施設の充実から近年住みたい街と言われる二条駅すぐの所に店舗を構えております。 各エリア専門のスタッフが揃っておりますので、二条駅周辺だけでなく、京都市全域、向日市・長岡京市・宇治市など幅広くご紹介させて頂きます。 社会人のご単身・ファミリー様をはじめ、先端科学大学・同志社大学・立命館大学・京都大学など大学生のお部屋探しも全力でサポートさせて頂きます。 創業40年、地域密着に拘らせて頂いた京都最大級の物件情報をもとに、 誠心誠意、ご満足頂けるお部屋をご紹介させて頂きます。 お部屋を探しは京都ライフ 二条駅前店へ、お気軽にお立ち寄りください
- 電話でお問合せ(通話無料)
お問合せ先 :株式会社京都ライフ 二条駅前店
不動産会社情報
株式会社京都ライフ 二条駅前店
京都府京都市中京区西ノ京職司町72 ウエストフィールド1階
京都地下鉄東西線 二条駅 徒歩3分
- 営業時間
- 09:30~19:00
- 定休日
- 年中無休(盆正月を除く)
電話でお問合せお客様の電話番号は不動産会社には通知されません
- 不動産会社に
つながります
お客様の電話番号は不動産会社に通知されません
- ※光IP電話、及びIP電話からはご利用になれません
- ※お電話によるお問合せは、店舗営業時間内にお願いします。つながらない場合は、お問合せフォームよりお問合せください
- ※不動産会社がお電話に出られなかった場合、お問合せいただいた後に不動産会社より折り返しのお電話がある場合がございます(お客様が非通知設定した場合は対象外です)
- ※株式会社LIFULLは電話会社が提供するサービスを介してお客様の発信者番号を受領後、折り返し専用の電話番号を発番してお問合せの不動産会社に通知します(お客様の発信者番号がお問合せの不動産会社に通知されることはございません)
- ※携帯電話からお問合せいただいた方に対し、株式会社LIFULLは電話会社が提供するメッセ―ジサービスを介してお客様の発信者番号を受領後、ショートメッセージ(SMS)またはLINE通知メッセージによるお問合せ内容に関する通知をお届けする場合があります
- ※お客様が通話中に不動産会社にお伝えになったお客様の個人情報及び、電話会社が発番する折り返し専用の電話番号は、お問合せ先不動産会社が資料送付・電子メール送信・電話連絡などの目的で保管する可能性があります。お問合せ先不動産会社が保管する個人情報の取扱いについては、各不動産会社に直接お問合せください
- ※株式会社LIFULLでは本サービスを円滑に運用するために、お客様の発信者番号をサービスご利用の控えとして一定期間保管いたします
- ※上記および株式会社LIFULLの個人情報の取扱い方針に同意のうえ、お電話ください
【LIFULL HOME'S物件番号】0142941-0185379【自社管理番号】05A86-605-27
初期費用・月額費用をあわせて確認!この物件に住んだときの費用めやす
めやすを見るこの物件に住んだときの費用めやす
- 初期費用
- 月額費用
- 追加費用※ご確認ください
追加で費用が
かかる場合があります
必ずご確認ください
初期費用めやす約0円
追加で費用がかかります(※)敷金
141,000
- 礼金
141,000
賃料+共益費・管理費の1ヶ月分として換算
賃料の1ヶ月分+税として換算。不動産会社によって金額が異なるため正確な金額は不動産会社にお問合せください
※追加費用もチェック!
これらの項目以外にも費用がかかる場合があります。正確な金額は不動産会社にお問合せください。
- 初期費用
- 鍵交換費:不動産会社に要確認
- 室内清掃費:不動産会社に要確認
- 火災保険費:不動産会社に要確認
- その他
- ゴミ処理代:850円
- 駐輪ステッカー代:1000円
- 保証会社
- 初回:月額賃料等の50%、月額:システム利用料330円、更新時:1万円/1年
不動産会社より
ペットは小型犬1匹のみ ペツトは小型犬1匹のみ、ネコは不可となります。
- 保存する
- 共有する
- ※各種情報と現状に差異がある場合は、現状優先となります
- ※不動産会社が入力した情報を基に物件の位置を表示しています。詳しくは不動産会社までお問合せください
- ※不動産会社の方からの上記電話番号によるお問合せはお断りしております。こちら不動産会社詳細からお問合せください
- ※LIFULL HOME'Sは物件鮮度No.1を目指していきます。閲覧中の物件が「成約済である」「実際の物件情報と異なる点がある」などの場合、「掲載110番」からお問合せください
- ※QRコードは株式会社デンソーウェーブの登録商標です
この物件を取扱う他の会社
LIFULL HOME'Sでは、主要項目が同一の物件をまとめて表示しています。所在地や営業時間、掲載画像等から不動産会社を選んでお問合せください。
株式会社京都ライフ 河原町四条店
京都府京都市中京区奈良屋町291-2 wise core BLD.1階
阪急京都本線 京都河原町駅 徒歩4分
- 営業時間
- 09:30~19:00
- 定休日
- 年中無休(盆正月を除く)
株式会社京都ライフ 京都駅前店
京都府京都市下京区塩小路通東洞院西入東塩小路町717-1 京都駅前ビル2階
JR東海道・山陽本線 京都駅 徒歩2分
- 営業時間
- 09:30~19:00
- 定休日
- 年中無休(盆正月を除く)
ウインズリンク株式会社 アパマンショップ四条烏丸店
京都府京都市下京区月鉾町47−3
京都市営烏丸線 四条駅 徒歩3分
- 営業時間
- 09:30~19:00
- 定休日
- なし(盆休み8/13〜8/16・年末年始12/27〜1/4)
ウインズリンク株式会社 アパマンショップ河原町三条店
優良店認定
京都府京都市中京区河原町通三条上る恵比須町435番地5
京都地下鉄東西線 京都市役所前駅 徒歩3分
- 営業時間
- 09:30~19:00
- 定休日
- 年中無休(盆・正月を除く)
LIFULL HOME'S 地図・周辺情報
買い物
- セブンイレブン 京都御幸町御池店
- フレスコ 御池店
- サンドラッグゼスト御池店
- セブンイレブン 京都市役所西店
- Seriaゼスト御池店
グルメ
- 松屋 ホテルユニゾ京都烏丸御池店
- 上島珈琲店京都寺町店
- 丸亀製麺京都市役所前店
- カフェコロラドゼスト御池店
- かに道楽 京都本店
育児・教育
- 京都市御池保育所
- 京都市立御所南小学校
- 京都市立京都御池中学校
- 御所の杜ほいくえん
- 京都市立高倉小学校
医療
- 医療法人財団足立病院
- 医療法人知音会京都新町病院
- 京都第二赤十字病院
- 医療法人毛利病院
- 京都大学医学部附属病院
公共施設・郵便局
- 京都ゼスト御池内郵便局
- 京都市こどもみらい館子育て図書館
- 京都市役所
- 京都御池柳馬場郵便局
- 京都府立図書館
公園
- 梅屋広場公園
- 京都御苑
- 岡崎公園
- 円山公園
- 円山公園
利用可能な駅
- 徒歩10分以内
京都地下鉄東西線
- 京都市役所前駅徒歩3分
- 烏丸御池駅徒歩9分
京都市営烏丸線
- 烏丸御池駅徒歩8分
- すべての駅
京都市営烏丸線
- 丸太町駅徒歩14分
- 四条駅徒歩19分
- 五条駅徒歩29分
- 今出川駅徒歩33分
- 鞍馬口駅3.4km
京都地下鉄東西線
- 三条京阪駅徒歩14分
- 二条城前駅徒歩19分
- 東山駅徒歩20分
- 蹴上駅徒歩36分
京阪本線
- 三条駅徒歩14分
- 神宮丸太町駅徒歩16分
- 祇園四条駅徒歩20分
- 清水五条駅徒歩27分
- 出町柳駅徒歩32分
- 七条駅徒歩34分
阪急京都本線
- 京都河原町駅徒歩16分
- 烏丸駅徒歩19分
- 大宮駅徒歩31分
JR山陰本線
- 二条駅徒歩30分
- 丹波口駅4km
京福電気鉄道嵐山本線
- 四条大宮駅徒歩32分
叡山電鉄叡山本線
- 元田中駅3.9km
- 周辺情報は2023年07月21日時点のものになります。
- 周辺情報は、参考情報としてのみご利用ください(周辺情報は、株式会社LIFULLが地図情報の提供事業者から提供を受けた情報とLIFULL HOME'Sの物件情報に基づき、独自の方法で抽出し提供しているものです。周辺情報は、移転や閉鎖等により情報が最新ではない、または正しくない場合がありますが、地図情報の提供事業者から提供された情報をそのまま周辺情報として表示しているため、正確かつ最新の情報へ修正することができないことがあります。)
- 周辺情報は、株式会社LIFULLが掲載するものであり、不動産物件情報を掲載している不動産会社が掲載するものではありません
- 交通情報の一部については、株式会社LIFULLが掲載するものであり、不動産物件情報を掲載している不動産会社が掲載するものではない場合があります。交通情報に関する質問などは株式会社LIFULLにお問合せください














